貸店舗・事務所

東京都新宿区信濃町 四谷三丁目駅 貸店舗・事務所

情報提供元
アットホーム
賃料 67.65万円  (管理費等:なし)
礼金・敷金 67.65万円 / 246万円 保証金/敷引・償却 なし / -
交通
所在地 東京都新宿区信濃町周辺地図
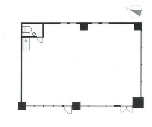
使用部分面積 82.8m2 土地面積 -
築年月 2025年5月 築年数 築1年未満
お問い合わせ先
(株)マイスター・コーポレーション
お問い合わせ先
(株)マイスター・コーポレーション

詳細情報

賃料 67.65万円  管理費等 なし 
敷金 246万円  礼金 67.65万円 
保証金 なし  敷引・償却
所在地 東京都新宿区信濃町周辺地図
交通
  • 東京メトロ丸ノ内線 四谷三丁目駅 徒歩6分乗換案内
  • JR総武・中央緩行線 信濃町駅 徒歩7分乗換案内
  • 都営大江戸線 国立競技場駅 徒歩12分乗換案内
使用部分面積 82.8m2  土地面積  
坪単価 2.71万円  その他一時金  
権利金 その他費用  
維持費等   都市計画  
用途地域   接道状況  
地目   建物構造・所在階/階数 RC 1階/14階建 
建物名   築年月(築年数) 2025年5月(築1年未満) 
条件等   契約期間 5年 
現況 空  引渡可能時期 即時 
情報提供元 アットホーム [6988589570] 情報公開日
情報更新日 - 次回更新予定日 随時

設備など

24時間セキュリティ - 1階 2階以上 -
即引渡し可 飲食店可 - エレベーター
駐車場(近隣含) -        
設備 エレベーター 
備考 新築未入居・幹線道路沿・重飲食不可(軽飲食は相談)5年の定期借家ですが延長相談・四谷3丁目駅徒歩約6分・物件のお問合せ・内見希望は宮川まで:090-5121-0814(鍵有) 築年月:2025/05築 
特記事項  

東京都新宿区信濃町 周辺地図情報

地図
※地図上に表示される物件の位置は付近住所に所在することを表すものであり、実際の物件所在地とは異なる場合がございます。
   正確な物件所在地は、取扱い不動産会社にお問い合わせください。
お問い合わせ先
(株)マイスター・コーポレーション
アピールポイント
四谷3丁目駅徒歩約6府・新築物件・スケルトン・5年の定期借家ですが延長相談・幹線道路沿・物件のお問合せ・内見希望は都内の1階のテナントを専門に取り扱う担当営業の宮川の携帯電話:090-5121-0814までお気軽にお問合せください(テナント選びは排水・動力・都市計画の用途制限・騒音・異臭等の問題が多くあり難しい所があります。テナント営業30年の経験であなたの物件探しをお手伝いします。鍵あり)

不動産会社情報

お問い合わせ先 商号:(株)マイスター・コーポレーション
免許番号:千葉県知事免許(1)第18945号
所在地:松戸市二十世紀が丘美野里町25-401
TEL:047-369-7144
取引態様:仲介
管理コード:
所属協会など:(公社)全日本不動産協会会員、(公社)首都圏不動産公正取引協議会加盟
共有する
QRコード
お問い合わせ先
(株)マイスター・コーポレーション

新宿区の暮らしデータ

人口などの統計情報

世帯数 222461世帯
人口総数 349226人
転入者数 46749人
転入率(人口1000人当たり)
133.86人
転出者数 41291人
転出率(人口1000人当たり)
118.24人
土地平均価格
住宅地
875917円/m2
商業地
5390517円/m2

新宿区の治安・ごみ収集情報

公共料金・インフラ

ガス料金(22m3使用した場合の月額) 東京瓦斯株式会社(東京地区等)3926円
水道料金(口径20mmで20m3の月額) 東京都水道局2816円
下水道料金(20m3を使用した場合の月額) 東京都下水道局2068円
下水道普及率 100.0%

安心・安全

建物火災出火件数 168件
人口10000人当たり
4.81件
刑法犯認知件数 5537件
人口1000人当たり
15.85件
ハザード・防災マップ あり

医療

一般病院総数 13ヶ所
一般診療所総数 766ヶ所
小児科医師数 237人
小児人口10000人当たり
78.56人
産婦人科医師数 153人
15~49歳女性人口1万人当たり
17.39人
介護保険料基準額(月額) 6600円

ごみ

家庭ごみ収集(可燃ごみ) 無料
備考
日量10kgを超える臨時のごみは有料。
家庭ごみの分別方式 3分別14種〔燃やすごみ 金属・陶器・ガラスごみ(陶器・刃物・ガラス類、蛍光ランプ・水銀体温計・水銀血圧計、ライター) 資源(資源プラスチック[製品プラスチック・容器包装プラスチック]、古紙[新聞、チラシ・雑誌・本、紙パック、段ボール]、びん、缶、ペットボトル、スプレー缶・カセットボンベ、乾電池)〕 拠点回収:使用済小型電子機器等 紙パック 白色トレイ 乾電池
家庭ごみの戸別収集 一部実施(高齢者・障害者世帯等のごみ出しを支援)
粗大ごみ収集 あり
備考
有料。事前申込制。家庭から排出される粗大ごみに限る。大きさにより400~3,200円。
生ごみ処理機助成金制度 なし
上限金額
-
上限比率
-
暮らしデータ提供元:生活ガイド.com
※行政機関により公表していない地域及びデータがございます。東京23区以外の政令指定都市は、市全体のデータとして表示しています。
※提供データには細心の注意を払っておりますが、調査後に変更がある場合があります。 最新の情報につきましては各市区役所までお問い合わせいただくか、自治体HPなどをご確認ください。
OCN×ドコモ光新規お申込みで合計最大137,280円相当おトク!特典の内訳・適用条件など詳細はこちら

他のエリアから探す

新宿区の詳細地域から店舗・事業用物件を探す

愛住町赤城下町揚場町荒木町市谷加賀町市谷甲良町市谷砂土原町市谷左内町市谷田町市谷台町市谷仲之町市谷八幡町市谷本村町市谷薬王寺町市谷柳町榎町大久保改代町神楽坂歌舞伎町上落合河田町喜久井町北新宿北町細工町左門町三栄町信濃町下落合下宮比町新小川町新宿水道町須賀町住吉町高田馬場箪笥町大京町津久戸町筑土八幡町天神町戸塚町富久町戸山内藤町中井中落合中里町中町納戸町西落合西五軒町西新宿西早稲田原町馬場下町東五軒町百人町袋町舟町弁天町南町南元町南山伏町山吹町矢来町横寺町余丁町四谷四谷坂町四谷三栄町四谷本塩町若葉若松町若宮町早稲田鶴巻町早稲田町

近辺の市区から探す

川口市千代田区中央区港区文京区台東区墨田区江東区品川区目黒区世田谷区渋谷区中野区杉並区豊島区北区荒川区板橋区練馬区足立区武蔵野市

周辺の駅から探す

総武・中央緩行線
水道橋飯田橋市ケ谷四ツ谷信濃町千駄ケ谷代々木新宿大久保
東京メトロ丸ノ内線
霞ケ関国会議事堂前赤坂見附四ツ谷四谷三丁目新宿御苑前新宿三丁目新宿西新宿
都営地下鉄大江戸線
赤羽橋麻布十番六本木青山一丁目国立競技場代々木新宿都庁前西新宿五丁目
掲載情報の著作権は提供元企業等に帰属します。
Copyright:(C) 2025 At Home Co.,Ltd
アプリで簡単 物件探し 大手不動産サイトの情報から一括検!プッシュ通知で物件を見逃さない
App Storeからダウンロード Google Playで手に入れよう QRコード