アプリで簡単 物件探し 通知 共有 アプリならではの機能を使ってみる
賃貸アパート

東京都足立区千住緑町3丁目 千住大橋駅 1K 賃貸(賃貸マンション・アパート)

情報提供元
スモッカ
賃料 8.8万円  (管理費等:3000円)
礼金・敷金 なし / なし 保証金/敷引・償却 なし / -
交通
所在地 東京都足立区千住緑町3丁目周辺地図
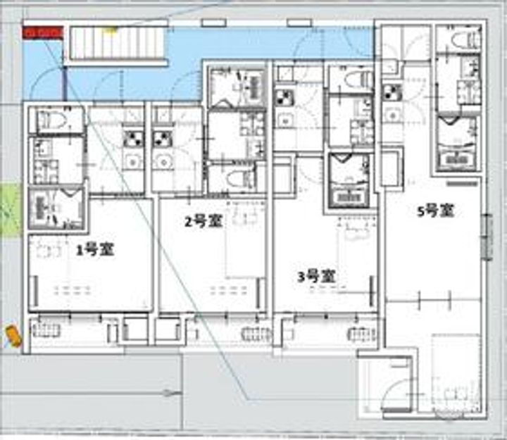
間取り 1K 専有面積 20.54m2
築年月 2025年12月 築年数 新築
おすすめポイント
2階以上の物件・南向き・デザイナーズ物件
お問い合わせ先
ハウスコム東東京株式会社 青砥店
お問い合わせ先
ハウスコム東東京株式会社 青砥店

詳細情報

賃料 8.8万円 管理費等 3000円
敷金 なし 礼金 なし
保証金 なし 敷引・償却 -
更新料 - 契約期間 2年
カード決済 -
所在地 東京都足立区千住緑町3丁目周辺地図
交通
建物名  
間取り 1K(洋室 6.1帖) 築年月(築年数) 2025年12月 新築
専有面積 20.54㎡ 所在階/階数 2階/3階建
建物構造 木造  方位 南 
現況   駐車場 -   近くの駐車場を探す
入居可能時期 2026年1月上旬 住宅保険 あり住宅保険
情報提供元 スモッカ[housecom2_HC4-5094548-202-0102] 情報公開日
情報更新日 - 次回更新予定日 随時

設備など

2階以上 最上階 - 角部屋 -
駐車場(近隣含) - エアコン付き バス・トイレ別
室内洗濯機置き場 - 追焚機能 - オートロック付き
モニタ付インターホン フローリング バルコニー
ガスコンロ可 - 浴室乾燥機 - 24時間セキュリティ -
宅配ボックス ペット相談可 - 二人入居可 -
設備 光ファイバー(ブロードバンド)・システムキッチン・ガスコンロ・コンロ2口以上・バス・トイレ別・浴室乾燥機・温水洗浄便座・エアコン・インターネット対応・オートロック・モニタ付インターホン・宅配BOX・フローリング・バルコニー・都市ガス 
リフォーム履歴 -
リノベーション履歴 -
備考 口座振替手数料(月) 550円 火災保険料(月) 2000円  入居者アプリ設定費:16,500円 退去時ハウスクリーニング:55,000円 更新料:1ヶ月 保証会社:利用必須  初回契約時:100%、総賃料の100% 駐車場備考:無し 
特記事項 2階以上の物件・南向き・デザイナーズ物件

東京都足立区千住緑町3丁目 周辺地図情報

地図
※地図上に表示される物件の位置は付近住所に所在することを表すものであり、実際の物件所在地とは異なる場合がございます。
   正確な物件所在地は、取扱い不動産会社にお問い合わせください。
お問い合わせ先
ハウスコム東東京株式会社 青砥店

不動産会社情報

お問い合わせ先 商号:ハウスコム東東京株式会社 青砥店
免許番号:東京都知事免許(1)第108283号
所在地:東京都葛飾区青戸2丁目2-20 メゾンノア 1階
TEL:0800-170-0536
取引態様:仲介
管理コード:HC4-5094548-202-0102
所属協会など:公益社団法人 首都圏不動産公正取引協議会
共有する
QRコード
お問い合わせ先
ハウスコム東東京株式会社 青砥店

    足立区の暮らしデータ

    人口などの統計情報

    世帯数 345010世帯
    人口総数 693223人
    転入者数 44256人
    転入率(人口1000人当たり)
    63.84人
    転出者数 35899人
    転出率(人口1000人当たり)
    51.79人
    土地平均価格
    住宅地
    371926円/m2
    商業地
    646909円/m2

    結婚・育児の助成金

    子育て関連の独自の取り組み (1)病児保育(在宅型)利用料金の助成。(2)あだちはじめてえほん事業。(3)あだち幼保小接続期カリキュラム。(4)あだちっ子歯科健診。(5)保育士・幼稚園教諭奨学金返済支援事業補助金。(6)保育士・幼稚園教諭住居借上げ支援事業補助金。(7)保育従事者永年勤続褒賞。(8)足立区教育・保育の質ガイドライン。(9)病児保育(施設型)。
    出産祝い あり
    公立保育所数 40所(うち0歳児保育を実施している保育所:21所)
    私立保育所数 113所(うち0歳児保育を実施している保育所:106所)
    保育所入所待機児童数 5人
    認定こども園数 7園 預かり保育実施園数 公立:- 私立:45園
    学校給食 【小学校】完全給食【中学校】完全給食
    公立中学校の学校選択制 実施(自由選択制)
    子ども・学生等医療費助成<通院>対象年齢 18歳3月末まで 子ども・学生等医療費助成<入院>対象年齢 18歳3月末まで

    足立区の治安・ごみ収集情報

    公共料金・インフラ

    ガス料金(22m3使用した場合の月額) 東京瓦斯株式会社(東京地区等)3926円
    水道料金(口径20mmで20m3の月額) 東京都水道局2816円
    下水道料金(20m3を使用した場合の月額) 東京都下水道局2068円
    下水道普及率 99.9%

    安心・安全

    建物火災出火件数 142件
    人口10000人当たり
    2.04件
    刑法犯認知件数 4222件
    人口1000人当たり
    6.07件
    ハザード・防災マップ あり

    医療

    一般病院総数 54ヶ所
    一般診療所総数 454ヶ所
    小児科医師数 144人
    小児人口10000人当たり
    19.86人
    産婦人科医師数 26人
    15~49歳女性人口1万人当たり
    1.79人
    介護保険料基準額(月額) 6750円

    ごみ

    家庭ごみ収集(可燃ごみ) 無料
    備考
    引越し等に伴う臨時ごみは有料。45リットルのごみ袋1袋あたり300円。
    家庭ごみの分別方式 3分別10種〔可燃ごみ 不燃ごみ 資源(古紙[新聞、雑誌類、雑がみ、段ボール、紙パック]、びん、缶、ペットボトル)〕千住、新田、宮城・小台のみ4分別12種〔可燃ごみ 不燃ごみ 資源(古紙[新聞、雑誌類、雑がみ、段ボール、紙パック]、びん、缶、ペットボトル) プラスチック(プラスチック製容器包装、製品プラスチック)〕
    家庭ごみの戸別収集 一部実施(次のいずれか位に該当する者のみで構成される世帯で、世帯員が集積所までごみを持ち出すことが困難であり、かつ、世帯員以外の者の協力を得ることが出来ない方。[1]要介護2以上に認定されている者。[2]身体障害者手帳1級又は2級に認定されている者。[3]その他自ら集積所にごみを出すことが困難であると区長が認める者)
    粗大ごみ収集 あり
    備考
    有料。事前申込制。ただし、指定場所への持込が可能な場合は年度内2回、1回につき10点まで無料。
    生ごみ処理機助成金制度 あり
    上限金額
    20000円
    上限比率
    50.0%
    暮らしデータ提供元:生活ガイド.com
    ※行政機関により公表していない地域及びデータがございます。東京23区以外の政令指定都市は、市全体のデータとして表示しています。
    ※提供データには細心の注意を払っておりますが、調査後に変更がある場合があります。 最新の情報につきましては各市区役所までお問い合わせいただくか、自治体HPなどをご確認ください。

    足立区内の各駅の住みやすさ

    他のエリアから探す

    足立区の詳細地域から賃貸物件を探す

    青井足立綾瀬伊興伊興本町入谷入谷町梅島梅田大谷田興野小台加賀加平北加平町栗原弘道江北古千谷本町佐野皿沼鹿浜島根新田神明神明南関原千住千住曙町千住旭町千住東千住大川町千住河原町千住寿町千住桜木千住関屋町千住龍田町千住中居町千住仲町千住橋戸町千住緑町千住宮元町千住元町千住柳町竹の塚辰沼中央本町椿東和舎人中川西綾瀬西新井西新井栄町西新井本町西伊興西加平西竹の塚西保木間花畑東綾瀬東伊興東保木間東六月町一ツ家日ノ出町平野保木間保塚町堀之内南花畑宮城六木本木本木北町本木西町本木東町本木南町谷在家谷中柳原六月六町

    近辺の市区から探す

    川口市草加市越谷市蕨市戸田市八潮市三郷市松戸市流山市千代田区中央区新宿区文京区台東区墨田区江東区豊島区北区荒川区板橋区葛飾区江戸川区

    周辺の駅から探す

    常磐線
    上野日暮里三河島南千住北千住松戸我孫子天王台
    京成電鉄本線
    京成上野日暮里新三河島町屋千住大橋京成関屋堀切菖蒲園お花茶屋青砥

    東京都足立区で他のジャンルから探す


    掲載情報の著作権は提供元企業等に帰属します。
    Copyright:(C) 2025 ZIGExN Co., Ltd.
    アプリで簡単 物件探し 大手不動産サイトの情報から一括検!プッシュ通知で物件を見逃さない
    App Storeからダウンロード Google Playで手に入れよう QRコード