アプリで簡単 物件探し 通知 共有 アプリならではの機能を使ってみる
賃貸アパート

レオパレスヒカリ 香里園駅 1K 賃貸(賃貸マンション・アパート)

情報提供元
LIFULL HOME'S
レオパレスヒカリ
賃料 4.6万円  (管理費等:5000円)
礼金・敷金 1ヶ月 / なし 保証金/敷引・償却 - / -
交通
所在地 大阪府寝屋川市寿町周辺地図
間取り 1K 専有面積 19.87m2
築年月 2006年6月 築年数 築19年7ヶ月
おすすめポイント
アパマンショップ寝屋川店はクレジット決済が可能です!!
お問い合わせ先
アパマンショップ京阪枚方店 株式会社 タカラコンステレーション
お問い合わせ先
アパマンショップ京阪枚方店 株式会社 タカラコンステレーション

詳細情報

賃料 4.6万円 管理費等 5000円
敷金 なし 礼金 1ヶ月
保証金 - 敷引・償却 -
更新料 16500円 契約期間 2年
カード決済 -
所在地 大阪府寝屋川市寿町周辺地図
交通
  • 京阪電気鉄道京阪線 香里園駅 徒歩9分乗換案内
  • 京阪電気鉄道京阪線 寝屋川市駅 徒歩25分乗換案内
建物名 レオパレスヒカリ 
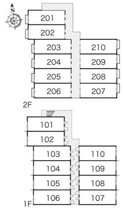
間取り 1K 築年月(築年数) 2006年6月(築19年7ヶ月)
専有面積 19.87㎡ 所在階/階数 1階/2階建
建物構造 軽量鉄骨  方位  
現況   駐車場 無    近くの駐車場を探す
入居可能時期 2025年12月上旬 住宅保険
情報提供元 LIFULL HOME'S[31032440212303] 情報公開日
情報更新日 次回更新予定日 2025年12月11日

設備など

2階以上 - 最上階 - 角部屋 -
駐車場(近隣含) - エアコン付き バス・トイレ別
室内洗濯機置き場 追焚機能 - オートロック付き -
モニタ付インターホン フローリング - バルコニー -
ガスコンロ可 - 浴室乾燥機 - 24時間セキュリティ -
宅配ボックス ペット相談可 - 二人入居可 -
設備 プロパンガス・バス・トイレ別・シャワー・エアコン・ロフト・室内洗濯機置き場・宅配BOX・モニタ付インターホン・家具付き 
リフォーム履歴 -
リノベーション履歴 -
備考 [退去時費用 退去費用実費精算※故意・過失等別途実費] 環境維持費:1ヶ月550円(税込)、鍵交換費:ご契約時16500円(税込)、退去時清掃費:41800円(税込)、インターネット利用料:有料、更新手数料:16500円(税込)、保証委託料:必要 【設備・特記事項備考】法人契約不可・ルームシェア不可/賃貸戸数:20戸/保証会社の利用:加入要/保証会社名:プラザ賃貸保証/保証会社費用:家賃等の100%または120% 
特記事項 保証人不要/代行

省エネ性能

エネルギー消費性能 -
断熱性能 -
目安光熱費 -

大阪府寝屋川市寿町 周辺地図情報

地図
※地図上に表示される物件の位置は付近住所に所在することを表すものであり、実際の物件所在地とは異なる場合がございます。
   正確な物件所在地は、取扱い不動産会社にお問い合わせください。
お問い合わせ先
アパマンショップ京阪枚方店 株式会社 タカラコンステレーション

不動産会社情報

お問い合わせ先 商号:アパマンショップ京阪枚方店 株式会社 タカラコンステレーション
免許番号:国土交通大臣(5)第6206号
所在地:大阪府枚方市岡東町18-12 MC田中ビル1F
TEL:072-843-7700
取引態様:仲介
管理コード:212303
所属協会など:所属団体未加入
共有する
QRコード

お電話でのお問い合わせ

電話をかける(携帯・PHS可)
お問い合わせダイヤル
通話無料0037-634-29247
営業時間 10:00~19:00 (定休日:年末年始休暇12月23日〜)
音声案内に従って数字を入力
お問い合わせ番号
28210-2972
不動産会社につながります
不動産会社のスタッフと
直接電話で話せます。
※不動産会社がお電話に出られなかった場合、株式会社LIFULLは電話会社が提供するサービスを介してお客様の発信者番号を受領後、折り返し専用の電話番号を発番してお問合せの不動産会社に通知します(お客様の発信者番号がお問合せの不動産会社に通知されることはございません)
※光IP電話、及びIP電話からはご利用になれません
※0037で始まる電話番号に携帯電話からお問合せいただいた方には、ショートメッセージ(SMS)によるお問合せ完了通知をお届けする場合があります
お問い合わせ先
アパマンショップ京阪枚方店 株式会社 タカラコンステレーション

    寝屋川市の暮らしデータ

    人口などの統計情報

    世帯数 101408世帯
    人口総数 225735人
    転入者数 7627人
    転入率(人口1000人当たり)
    33.79人
    転出者数 7703人
    転出率(人口1000人当たり)
    34.12人
    土地平均価格
    住宅地
    138364円/m2
    商業地
    242000円/m2

    結婚・育児の助成金

    子育て関連の独自の取り組み (1)青少年の居場所スマイル。(2)英語村事業。(3)子どもを守る位置情報(GPS)サービス(市立小学校1・2年生に無料で貸与)。(4)子育てリフレッシュ館の運営。(5)MY CITY助産師(助産師訪問・上限4回)。(6)家庭教育サポートチーム派遣。(7)子育て応援リーダー事業。(8)「待機児童ZEROプランR」の推進。(9)まち・子どもを守る防犯カメラの設置。(10)少人数学級の推進(小学校4年生まで35人学級)。(11)ねやがわ版「GIGAスクール」。(12)多胎児家庭への支援。(13)寝屋川市就学前教育・保育プログラム。(14)保育所等保育料第2子以降の無償化。(15)中学校給食の無償化。
    出産祝い あり
    公立保育所数 4所(うち0歳児保育を実施している保育所:4所)
    私立保育所数 11所(うち0歳児保育を実施している保育所:11所)
    保育所入所待機児童数 0人
    認定こども園数 31園 預かり保育実施園数 公立:0園 私立:4園
    学校給食 【小学校】完全給食【中学校】完全給食 デリバリー形式[運搬:食缶、内容:完全給食]
    公立中学校の学校選択制 未実施
    子ども・学生等医療費助成<通院>対象年齢 18歳3月末まで 子ども・学生等医療費助成<入院>対象年齢 18歳3月末まで

    寝屋川市の治安・ごみ収集情報

    公共料金・インフラ

    ガス料金(22m3使用した場合の月額) 大阪瓦斯株式会社4544円
    水道料金(口径20mmで20m3の月額) 寝屋川市2600円
    下水道料金(20m3を使用した場合の月額) 寝屋川市2406円
    下水道普及率 99.7%

    安心・安全

    建物火災出火件数 52件
    人口10000人当たり
    2.26件
    刑法犯認知件数 1597件
    人口1000人当たり
    6.95件
    ハザード・防災マップ あり

    医療

    一般病院総数 13ヶ所
    一般診療所総数 182ヶ所
    小児科医師数 37人
    小児人口10000人当たり
    14.99人
    産婦人科医師数 11人
    15~49歳女性人口1万人当たり
    2.67人
    介護保険料基準額(月額) 6690円

    ごみ

    家庭ごみ収集(可燃ごみ) 無料
    備考
    戸別収集(予約制)は、10kgまで毎に270円。クリーンセンターへの直接持込は、10kgまで毎に130円。
    家庭ごみの分別方式 3分別7種〔可燃ごみ 不燃ごみ 資源ごみ(古紙、古着、乾電池・ライター類、缶・びん、廃プラ・ペットボトル)〕
    家庭ごみの戸別収集 一部実施(ふれあい訪問収集)
    粗大ごみ収集 あり
    備考
    有料。大型ごみ・引越ごみ・多量のごみ・着火装置のあるごみは全て臨時ごみとして収集。事前予約の随時戸別収集可。またはクリーンセンターへ直接持込。
    生ごみ処理機助成金制度 あり
    上限金額
    20000円
    上限比率
    50.0%
    暮らしデータ提供元:生活ガイド.com
    ※行政機関により公表していない地域及びデータがございます。東京23区以外の政令指定都市は、市全体のデータとして表示しています。
    ※提供データには細心の注意を払っておりますが、調査後に変更がある場合があります。 最新の情報につきましては各市区役所までお問い合わせいただくか、自治体HPなどをご確認ください。
    OCN×ドコモ光新規お申込みで合計最大137,280円相当おトク!特典の内訳・適用条件など詳細はこちら

    寝屋川市内の各駅の住みやすさ

    他のエリアから探す

    寝屋川市の詳細地域から賃貸物件を探す

    池田池田旭町池田北町池田新町池田中町池田西町池田東町池田本町池田南町石津中町石津東町石津南町石津元町出雲町太秦桜が丘太秦中町太秦東が丘太秦緑が丘太秦元町打上新町打上高塚町打上中町打上南町打上宮前町打上元町梅が丘大谷町大利町大利元町音羽町春日町上神田萱島桜園町萱島信和町萱島東萱島本町萱島南町川勝町河北中町河北西町河北東町菅相塚町北大利町木田町木田元宮楠根北町楠根南町葛原葛原新町国松町黒原旭町黒原新町黒原城内町黒原橘町香里北之町香里新町香里西之町香里本通町香里南之町郡元町寿町木屋町木屋元町幸町境橋町桜木町讃良西町清水町点野下神田町下木田町昭栄町小路北町新家末広町成美町大成町田井町田井西町太間町太間東町高倉高宮高宮あさひ丘高宮栄町高宮新町高柳高柳栄町宝町長栄寺町対馬江西町対馬江東町豊里町豊野町中神田町中木田町成田町成田西町成田東町成田南町南水苑町錦町日新町仁和寺町仁和寺本町寝屋秦町初町早子町東大利町東神田町東香里園町日之出町平池町堀溝堀溝北町本町松屋町三井が丘美井町三井南町美井元町緑町御幸東町明徳明和八坂町若葉町

    近辺の市区から探す

    大阪市都島区大阪市東淀川区大阪市旭区大阪市城東区大阪市鶴見区大阪市北区吹田市高槻市守口市枚方市茨木市大東市門真市摂津市東大阪市四條畷市交野市生駒市

    周辺の駅から探す

    京阪電気鉄道京阪線
    御殿山枚方市枚方公園光善寺香里園寝屋川市萱島大和田古川橋

    大阪府寝屋川市で他のジャンルから探す


    掲載情報の著作権は提供元企業等に帰属します。
    Copyright:(C) 2025 LIFULL Co.,Ltd.
    アプリで簡単 物件探し 大手不動産サイトの情報から一括検!プッシュ通知で物件を見逃さない
    App Storeからダウンロード Google Playで手に入れよう QRコード