アプリで簡単 物件探し 通知 共有 アプリならではの機能を使ってみる
賃貸アパート

リオ・リヴァージュ 守口駅 1K 賃貸(賃貸マンション・アパート)

情報提供元
LIFULL HOME'S
リオ・リヴァージュ
賃料 6.1万円  (管理費等:2900円)
礼金・敷金 9.2万円 / なし 保証金/敷引・償却 - / -
交通
所在地 大阪府守口市八雲中町1丁目周辺地図
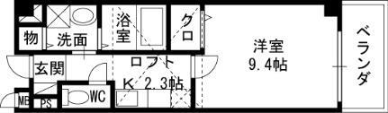
間取り 1K 専有面積 30.03m2
築年月 2007年8月 築年数 築18年5ヶ月
おすすめポイント
★物件の内覧希望・詳細等はお気軽に当店までお問合せ下さい!★
お問い合わせ先
アパマンショップ阪急高槻店 株式会社宝不動産
お問い合わせ先
アパマンショップ阪急高槻店 株式会社宝不動産

詳細情報

賃料 6.1万円 管理費等 2900円
敷金 なし 礼金 9.2万円
保証金 - 敷引・償却 -
更新料 - 契約期間 2年
カード決済 -
所在地 大阪府守口市八雲中町1丁目周辺地図
交通
  • 大阪市谷町線 守口駅 徒歩10分乗換案内
  • 京阪電気鉄道京阪線 守口市駅 徒歩14分乗換案内
建物名 リオ・リヴァージュ 
間取り 1K 築年月(築年数) 2007年8月(築18年5ヶ月)
専有面積 30.03㎡ 所在階/階数 2階/2階建
建物構造 鉄骨  方位 東 
現況   駐車場 有 16,500円 物件からの距離0m
入居可能時期 2026年1月中旬 住宅保険
情報提供元 LIFULL HOME'S[31029040202602] 情報公開日
情報更新日 次回更新予定日 2025年12月11日

設備など

2階以上 最上階 角部屋 -
駐車場(近隣含) エアコン付き バス・トイレ別
室内洗濯機置き場 追焚機能 - オートロック付き
モニタ付インターホン フローリング - バルコニー
ガスコンロ可 - 浴室乾燥機 - 24時間セキュリティ -
宅配ボックス - ペット相談可 - 二人入居可 -
設備 都市ガス・バス・トイレ別・シャワー・給湯・シャンプードレッサ・エアコン・ロフト・室内洗濯機置き場・BS端子・オートロック・バルコニー・モニタ付インターホン・オートバス 
リフォーム履歴 -
リノベーション履歴 -
備考 [退去時費用 退去費用実費精算※故意・過失等別途実費] 更新事務手数料 22,000円、月額賃料等収納手数料170円がかかります。契約時にクリーニング費50,000円、鍵セット費3,300円(税込)が必要となります。貸主インボイス登録あり 【設備・特記事項備考】ルームシェア不可/町会費 100円/クリーニング費 50000円/24時間サポート 330円/賃貸戸数:8戸/保証会社の利用:加入要/保証会社名:ハウスリーブ株式会社/保証会社費用:契約時保証委託料:2.2万/月額保証委託料:賃料総額の2.2%又は5.5% ※ペット可は2.5万/2.5% 
特記事項 保証人不要/代行 ・最上階

省エネ性能

エネルギー消費性能 -
断熱性能 -
目安光熱費 -

大阪府守口市八雲中町1丁目 周辺地図情報

地図
※地図上に表示される物件の位置は付近住所に所在することを表すものであり、実際の物件所在地とは異なる場合がございます。
   正確な物件所在地は、取扱い不動産会社にお問い合わせください。
お問い合わせ先
アパマンショップ阪急高槻店 株式会社宝不動産

不動産会社情報

お問い合わせ先 商号:アパマンショップ阪急高槻店 株式会社宝不動産
免許番号:大阪府知事(10)第25952号
所在地:大阪府高槻市城北町2丁目3-3第五誠ビル
TEL:072-675-7070
取引態様:仲介
管理コード:202602
所属協会など:所属団体未加入
共有する
QRコード

お電話でのお問い合わせ

電話をかける(携帯・PHS可)
お問い合わせダイヤル
通話無料0037-634-18118
営業時間 10:00~19:00 (定休日:第二、第三水曜日 年末年始休暇(12/23〜1/4))
音声案内に従って数字を入力
お問い合わせ番号
43527-2973
不動産会社につながります
不動産会社のスタッフと
直接電話で話せます。
※不動産会社がお電話に出られなかった場合、株式会社LIFULLは電話会社が提供するサービスを介してお客様の発信者番号を受領後、折り返し専用の電話番号を発番してお問合せの不動産会社に通知します(お客様の発信者番号がお問合せの不動産会社に通知されることはございません)
※光IP電話、及びIP電話からはご利用になれません
※0037で始まる電話番号に携帯電話からお問合せいただいた方には、ショートメッセージ(SMS)によるお問合せ完了通知をお届けする場合があります
お問い合わせ先
アパマンショップ阪急高槻店 株式会社宝不動産

    守口市の暮らしデータ

    人口などの統計情報

    世帯数 67753世帯
    人口総数 141243人
    転入者数 6379人
    転入率(人口1000人当たり)
    45.16人
    転出者数 6138人
    転出率(人口1000人当たり)
    43.46人
    土地平均価格
    住宅地
    174833円/m2
    商業地
    364000円/m2

    結婚・育児の助成金

    子育て関連の独自の取り組み -
    出産祝い なし
    公立保育所数 0所(うち0歳児保育を実施している保育所:-)
    私立保育所数 4所(うち0歳児保育を実施している保育所:4所)
    保育所入所待機児童数 0人
    認定こども園数 26園 預かり保育実施園数 公立:- 私立:1園
    学校給食 【小学校】完全給食【中学校】家庭弁当等との選択制/デリバリー形式[運搬:食缶、内容:完全給食](7校) 家庭弁当等との選択制[内容:完全給食・自校方式](義務教育学校後期課程1校)
    公立中学校の学校選択制 未実施
    子ども・学生等医療費助成<通院>対象年齢 18歳3月末まで 子ども・学生等医療費助成<入院>対象年齢 18歳3月末まで

    守口市の治安・ごみ収集情報

    公共料金・インフラ

    ガス料金(22m3使用した場合の月額) 大阪瓦斯株式会社4544円
    水道料金(口径20mmで20m3の月額) 守口市2638円
    下水道料金(20m3を使用した場合の月額) 守口市2055円
    下水道普及率 100.0%

    安心・安全

    建物火災出火件数 23件
    人口10000人当たり
    1.61件
    刑法犯認知件数 1261件
    人口1000人当たり
    8.81件
    ハザード・防災マップ あり

    医療

    一般病院総数 6ヶ所
    一般診療所総数 139ヶ所
    小児科医師数 28人
    小児人口10000人当たり
    17.80人
    産婦人科医師数 10人
    15~49歳女性人口1万人当たり
    3.71人
    介護保険料基準額(月額) 8970円

    ごみ

    家庭ごみ収集(可燃ごみ) 無料
    備考
    引越し等で、臨時に大量のごみを排出する場合は有料(収集車1台8,000円、2台目以降は4,000円/台)。
    家庭ごみの分別方式 2分別7種〔燃やすごみ 資源ごみ(プラスチック製容器包装種、ペットボトル種、空き缶種、びん・ガラス種、古紙種、古布種)〕 拠点回収:使用済小型家電 使用済乾電池・蛍光管
    家庭ごみの戸別収集 一部実施(戸別収集しているが、収集車が入れないところは拠点回収)
    粗大ごみ収集 あり
    備考
    有料。特に大きいものは要予約。
    生ごみ処理機助成金制度 なし
    上限金額
    -
    上限比率
    -
    暮らしデータ提供元:生活ガイド.com
    ※行政機関により公表していない地域及びデータがございます。東京23区以外の政令指定都市は、市全体のデータとして表示しています。
    ※提供データには細心の注意を払っておりますが、調査後に変更がある場合があります。 最新の情報につきましては各市区役所までお問い合わせいただくか、自治体HPなどをご確認ください。
    OCN×ドコモ光新規お申込みで合計最大137,280円相当おトク!特典の内訳・適用条件など詳細はこちら

    守口市内の各駅の住みやすさ

    他のエリアから探す

    守口市の詳細地域から賃貸物件を探す

    暁町祝町梅園町梅町大枝北町大枝西町大枝東町大枝南町大久保町大庭町大宮通梶町春日町金下町神木町河原町菊水通金田町京阪北本通京阪本通小春町西郷通桜町佐太中町佐太西町佐太東町早苗町下島町松月町新橋寺町寺内町外島町高瀬町滝井西町滝井元町竜田通大日町大日東町大門町寺方錦通寺方本通寺方元町東光町東郷通藤田町豊秀町土居町長池町日光町橋波西之町橋波東之町浜町馬場町東町日向町日吉町平代町文園町紅屋町北斗町本町松下町緑町南寺方北通南寺方中通南寺方東通南寺方南通桃町八雲北町八雲中町八雲西町八雲東町八島町淀江町来迎町

    近辺の市区から探す

    大阪市都島区大阪市福島区大阪市此花区大阪市西区大阪市港区大阪市大正区大阪市天王寺区大阪市浪速区大阪市西淀川区大阪市東淀川区大阪市東成区大阪市生野区大阪市旭区大阪市城東区大阪市阿倍野区大阪市西成区大阪市淀川区大阪市鶴見区大阪市平野区大阪市北区大阪市中央区吹田市枚方市八尾市寝屋川市大東市摂津市東大阪市四條畷市交野市

    周辺の駅から探す

    大阪市谷町線
    大日守口太子橋今市千林大宮関目高殿野江内代
    京阪電気鉄道京阪線
    大和田古川橋門真市西三荘守口市土居滝井千林森小路

    大阪府守口市で他のジャンルから探す


    掲載情報の著作権は提供元企業等に帰属します。
    Copyright:(C) 2025 LIFULL Co.,Ltd.
    アプリで簡単 物件探し 大手不動産サイトの情報から一括検!プッシュ通知で物件を見逃さない
    App Storeからダウンロード Google Playで手に入れよう QRコード