アプリで簡単 物件探し 通知 共有 アプリならではの機能を使ってみる
賃貸アパート

永井ハウス 蹴上駅 ワンルーム 賃貸(賃貸マンション・アパート)

情報提供元
LIFULL HOME'S
永井ハウス 京都天王町郵便局まで378m
賃料 2.6万円  (管理費等:-)
礼金・敷金 なし / なし 保証金/敷引・償却 - / -
交通
所在地 京都府京都市左京区南禅寺北ノ坊町周辺地図
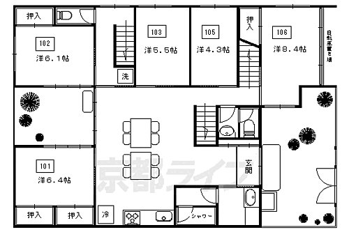
間取り ワンルーム 専有面積 7.15m2
築年月 1900年3月 築年数 築125年10ヶ月
おすすめポイント
留学生歓迎 シェアハウス 学生限定。京都市左京区 南禅寺エリアの物件です。更新料ナシ。

詳細情報

賃料 2.6万円 管理費等 -
敷金 なし 礼金 なし
保証金 - 敷引・償却 -
更新料 更新料なし 契約期間 1年
カード決済 -
所在地 京都府京都市左京区南禅寺北ノ坊町周辺地図
交通
  • 京都市東西線 蹴上駅 徒歩15分乗換案内
  • 京阪電気鉄道京阪線 三条駅 徒歩35分乗換案内
建物名 永井ハウス 
間取り ワンルーム 築年月(築年数) 1900年3月(築125年10ヶ月)
専有面積 7.15㎡ 所在階/階数 1階/2階建
建物構造 木造  方位 北 
現況 空  駐車場 無    近くの駐車場を探す
入居可能時期 即時 住宅保険
情報提供元 LIFULL HOME'S[1488370097294] 情報公開日
情報更新日 次回更新予定日 2025年12月16日

設備など

2階以上 - 最上階 - 角部屋 -
駐車場(近隣含) - エアコン付き - バス・トイレ別 -
室内洗濯機置き場 - 追焚機能 - オートロック付き -
モニタ付インターホン - フローリング バルコニー -
ガスコンロ可 - 浴室乾燥機 - 24時間セキュリティ -
宅配ボックス - ペット相談可 - 二人入居可 -
設備 上水道・フローリング・駐輪場・インターネット無料 
リフォーム履歴 -
リノベーション履歴 -
備考 インターネットを無料でご利用いただけます。 物件情報はもちろん京都のエリア情報まで幅広く対応させていただきます! 【設備・特記事項備考】専用バス・専用トイレ/水道代 3000円/オプション費用 1500円/ゴミ処理代 1650円/賃貸戸数:11戸/室内清掃費用:8800円/管理人勤務形態:巡回 
特記事項 見学予約可・学生限定

省エネ性能

エネルギー消費性能 -
断熱性能 -
目安光熱費 -

京都府京都市左京区南禅寺北ノ坊町 周辺地図情報

地図
※地図上に表示される物件の位置は付近住所に所在することを表すものであり、実際の物件所在地とは異なる場合がございます。
   正確な物件所在地は、取扱い不動産会社にお問い合わせください。

不動産会社情報

お問い合わせ先 商号:株式会社京都ライフ 百万遍店
免許番号:京都府知事(11)第006353号
所在地:京都府京都市左京区田中門前町87
TEL:075-791-0007
取引態様:仲介
管理コード:97294
所属協会など:(公社)近畿圏不動産流通機構、(公社)近畿地区不動産公正取引協議会、(公社)京都府宅地建物取引業協会
共有する
QRコード

お電話でのお問い合わせ

電話をかける(携帯・PHS可)
お問い合わせダイヤル
通話無料0037-634-08649
営業時間 09:30~19:00 (定休日:年中無休(盆正月を除く))
音声案内に従って数字を入力
お問い合わせ番号
05533-2970
不動産会社につながります
不動産会社のスタッフと
直接電話で話せます。
※不動産会社がお電話に出られなかった場合、株式会社LIFULLは電話会社が提供するサービスを介してお客様の発信者番号を受領後、折り返し専用の電話番号を発番してお問合せの不動産会社に通知します(お客様の発信者番号がお問合せの不動産会社に通知されることはございません)
※光IP電話、及びIP電話からはご利用になれません
※0037で始まる電話番号に携帯電話からお問合せいただいた方には、ショートメッセージ(SMS)によるお問合せ完了通知をお届けする場合があります

    京都市左京区の暮らしデータ

    人口などの統計情報

    世帯数 728744世帯
    人口総数 1379529人
    転入者数 85315人
    転入率(人口1000人当たり)
    61.84人
    転出者数 80567人
    転出率(人口1000人当たり)
    58.40人
    土地平均価格
    住宅地
    220880円/m2
    商業地
    1290411円/m2

    結婚・育児の助成金

    子育て関連の独自の取り組み (1)乳幼児の子育て支援機能や学童クラブ機能等を有する児童館設置。(2)こんにちはプレママ事業。(3)児童虐待未然防止に係る医療機関と子どもはぐくみ室及び京北出張所の連携。(4)子ども保健医療相談・事故防止センター設置。(5)京都はぐくみアプリ配信。(6)子育て支援コンシェルジュ育成。(7)骨髄移植手術等により免疫を喪失した子どもへのワクチン再接種費用助成制度。(8)子どもを共に育む京都市民憲章の制定、憲章の実践・普及の促進。(9)【京都安心すまい応援金】未就学の子どもがいる世帯を対象に、自己居住用として既存住宅を購入し、リフォームを行う場合に、最大200万円の応援金を交付。
    出産祝い あり
    公立保育所数 14所(うち0歳児保育を実施している保育所:13所)
    私立保育所数 196所(うち0歳児保育を実施している保育所:188所)
    保育所入所待機児童数 0人
    認定こども園数 83園 預かり保育実施園数 公立:15園 私立:81園
    学校給食 【小学校】完全給食【中学校】完全給食 家庭弁当等との選択制/デリバリー形式[運搬:ランチボックス、内容:完全給食] 給食なし
    公立中学校の学校選択制 未実施
    子ども・学生等医療費助成<通院>対象年齢 中学校卒業まで 子ども・学生等医療費助成<入院>対象年齢 中学校卒業まで

    京都市左京区の治安・ごみ収集情報

    公共料金・インフラ

    ガス料金(22m3使用した場合の月額) 大阪瓦斯株式会社4544円
    水道料金(口径20mmで20m3の月額) 京都市3014円
    下水道料金(20m3を使用した場合の月額) 京都市2013円
    下水道普及率 99.5%

    安心・安全

    建物火災出火件数 158件
    人口10000人当たり
    1.08件
    刑法犯認知件数 8104件
    人口1000人当たり
    5.54件
    ハザード・防災マップ あり

    医療

    一般病院総数 89ヶ所
    一般診療所総数 1622ヶ所
    小児科医師数 397人
    小児人口10000人当たり
    27.26人
    産婦人科医師数 201人
    15~49歳女性人口1万人当たり
    7.16人
    介護保険料基準額(月額) 7160円

    ごみ

    家庭ごみ収集(可燃ごみ) 有料
    備考
    指定ごみ袋有料。
    家庭ごみの分別方式 5分別8種〔燃やすごみ 缶・びん・ペットボトル プラスチック類 小型金属類・スプレー缶 雑がみ〕 拠点回収:移動式拠点回収):古紙(新聞・ダンボール) 雑がみ 紙パック 使用済てんぷら油 古着類 乾電池 ボタン電池 充電式電池 蛍光管 水銀体温計・水銀血圧計 小型家電 磁気テープ類 インクカートリッジ リユースびん 刃物類 使い捨てライター 陶磁器製の食器 せん定枝木の枝 石油類 医薬品・農薬 化学薬品・塗料・ワックス・絵の具 洗浄剤
    家庭ごみの戸別収集 一部実施(原則定点としているが、一部地域で狭路等やむを得ない事情がある場合のみ実施。また、ごみ出しが困難な高齢者や障害のある方などの生活支援の一つとして、御自宅の玄関先までごみの収集に伺う「ごみ収集福祉サービス[まごころ収集]」を実施)
    粗大ごみ収集 あり
    備考
    有料。事前申込制。
    生ごみ処理機助成金制度 なし
    上限金額
    -
    上限比率
    -
    暮らしデータ提供元:生活ガイド.com
    ※行政機関により公表していない地域及びデータがございます。東京23区以外の政令指定都市は、市全体のデータとして表示しています。
    ※提供データには細心の注意を払っておりますが、調査後に変更がある場合があります。 最新の情報につきましては各市区役所までお問い合わせいただくか、自治体HPなどをご確認ください。
    OCN×ドコモ光新規お申込みで合計最大137,280円相当おトク!特典の内訳・適用条件など詳細はこちら

    京都市左京区内の各駅の住みやすさ

    他のエリアから探す

    京都市左京区の詳細地域から賃貸物件を探す

    粟田口鳥居町石原町一乗寺青城町一乗寺赤ノ宮町一乗寺庵野町一乗寺梅ノ木町一乗寺大原田町一乗寺河原田町一乗寺北大丸町一乗寺木ノ本町一乗寺才形町一乗寺里ノ西町一乗寺里ノ前町一乗寺清水町一乗寺釈迦堂町一乗寺地蔵本町一乗寺染殿町一乗寺高槻町一乗寺大新開町一乗寺塚本町一乗寺築田町一乗寺出口町一乗寺燈籠本町一乗寺堂ノ前町一乗寺中ノ田町一乗寺西浦畑町一乗寺西杉ノ宮町一乗寺西閉川原町一乗寺西水干町一乗寺野田町一乗寺花ノ木町一乗寺払殿町一乗寺馬場町一乗寺東浦町一乗寺東杉ノ宮町一乗寺東閉川原町一乗寺東水干町一乗寺樋ノ口町一乗寺松原町一乗寺南大丸町一乗寺宮ノ東町一乗寺向畑町岩倉上蔵町岩倉大鷺町岩倉北池田町岩倉北桑原町岩倉北平岡町岩倉木野町岩倉下在地町岩倉忠在地町岩倉中大鷺町岩倉中河原町岩倉中在地町岩倉中町岩倉長谷町岩倉西河原町岩倉西五田町岩倉西宮田町岩倉幡枝町岩倉花園町岩倉東五田町岩倉東宮田町岩倉三笠町岩倉南池田町岩倉南大鷺町岩倉南河原町岩倉南木野町岩倉南桑原町岩倉南平岡町岩倉南四ノ坪町岩倉三宅町岩倉村松町大菊町岡崎入江町岡崎円勝寺町岡崎北御所町岡崎最勝寺町岡崎成勝寺町岡崎天王町岡崎徳成町岡崎西天王町岡崎西福ノ川町岡崎東天王町岡崎東福ノ川町岡崎法勝寺町頭町上高野池ノ内町上高野市川町上高野稲荷町上高野大塚町上高野上荒蒔町上高野北田町上高野木ノ下町上高野車地町上高野鷺町上高野沢淵町上高野下荒蒔町上高野流田町上高野西氷室町上高野畑ケ田町上高野畑町上高野八幡町上高野東山上高野深田町上高野古川町上高野諸木町上高野山ノ橋町上高野隣好町菊鉾町北白川伊織町北白川瓜生山町北白川追分町北白川小倉町北白川上池田町北白川上終町北白川上別当町北白川久保田町北白川仕伏町北白川下池田町北白川下別当町北白川地蔵谷町北白川瀬ノ内町北白川大堂町北白川蔦町北白川堂ノ前町北白川西伊織町北白川西瀬ノ内町北白川西蔦町北白川西平井町北白川西町北白川東伊織町北白川東小倉町北白川東久保田町北白川東瀬ノ内町北白川東蔦町北白川東平井町北白川平井町北白川琵琶町北白川別当町北白川丸山町北白川山田町北白川山ノ元町北門前町銀閣寺町讃州寺町鹿ケ谷上宮ノ前町鹿ケ谷桜谷町鹿ケ谷寺ノ前町鹿ケ谷徳善谷町鹿ケ谷西寺ノ前町鹿ケ谷法然院西町鹿ケ谷宮ノ前町静市市原町静市静原町静市野中町下鴨泉川町下鴨狗子田町下鴨梅ノ木町下鴨膳部町下鴨上川原町下鴨岸本町下鴨北芝町下鴨北園町下鴨北茶ノ木町下鴨北野々神町下鴨貴船町下鴨神殿町下鴨芝本町下鴨下川原町下鴨高木町下鴨蓼倉町下鴨塚本町下鴨中川原町下鴨西高木町下鴨西半木町下鴨西林町下鴨西本町下鴨東岸本町下鴨東高木町下鴨東塚本町下鴨東半木町下鴨東本町下鴨東森ケ前町下鴨本町下鴨前萩町下鴨松ノ木町下鴨松原町下鴨水口町下鴨南芝町下鴨南茶ノ木町下鴨南野々神町下鴨宮河町下鴨宮崎町下鴨森ケ前町下鴨森本町下鴨夜光町下鴨梁田町下堤町修学院石掛町修学院犬塚町修学院大林町修学院沖殿町修学院開根坊町修学院鹿ノ下町修学院川尻町修学院千万田町修学院高部町修学院坪江町修学院中林町修学院西沮沢町修学院登リ内町修学院狭間町修学院水川原町修学院薬師堂町修学院山ノ鼻町聖護院円頓美町聖護院川原町聖護院山王町聖護院中町聖護院西町聖護院東町聖護院蓮華蔵町新生洲町新車屋町新丸太町浄土寺石橋町浄土寺上馬場町浄土寺上南田町浄土寺下馬場町浄土寺下南田町浄土寺真如町浄土寺西田町浄土寺馬場町浄土寺東田町浄土寺南田町杉本町高野泉町高野上竹屋町高野清水町高野竹屋町高野蓼原町高野玉岡町高野西開町高野東開町田中飛鳥井町田中大堰町田中大久保町田中上大久保町田中上玄京町田中上古川町田中上柳町田中北春菜町田中玄京町田中里ノ内町田中里ノ前町田中下柳町田中関田町田中高原町田中西浦町田中西大久保町田中西高原町田中西春菜町田中西樋ノ口町田中野神町田中春菜町田中馬場町田中東高原町田中東春菜町田中東樋ノ口町田中樋ノ口町田中古川町田中南大久保町田中南西浦町田中門前町南禅寺北ノ坊町南禅寺草川町東竹屋町東丸太町東門前町福本町法林寺門前町孫橋町松ケ崎泉川町松ケ崎壱町田町松ケ崎井出ケ海道町松ケ崎今海道町松ケ崎河原田町松ケ崎木ノ本町松ケ崎久土町松ケ崎雲路町松ケ崎鞍馬田町松ケ崎小竹薮町松ケ崎小脇町松ケ崎御所ノ内町松ケ崎桜木町松ケ崎三反長町松ケ崎芝本町松ケ崎正田町松ケ崎杉ケ海道町松ケ崎堂ノ上町松ケ崎西桜木町松ケ崎西町松ケ崎西山松ケ崎東桜木町松ケ崎東町松ケ崎樋ノ上町松ケ崎堀町松ケ崎柳井田町松ケ崎六ノ坪町南門前町八瀬近衛町八瀬野瀬町山端壱町田町山端大君町山端大塚町山端川岸町山端川原町山端川端町山端滝ケ鼻町山端橋ノ本町山端森本町山端柳ケ坪町吉田泉殿町吉田牛ノ宮町吉田神楽岡町吉田上阿達町吉田上大路町吉田河原町吉田近衛町吉田下阿達町吉田下大路町吉田中阿達町吉田中大路町吉田二本松町吉田本町和国町

    近辺の市区から探す

    大津市京都市北区京都市上京区京都市中京区京都市東山区京都市下京区京都市南区京都市右京区京都市伏見区京都市山科区京都市西京区

    周辺の駅から探す

    京都市東西線
    烏丸御池京都市役所前三条京阪東山蹴上御陵山科東野椥辻
    京阪電気鉄道京阪線
    三条祇園四条清水五条七条東福寺

    京都府京都市左京区で他のジャンルから探す


    掲載情報の著作権は提供元企業等に帰属します。
    Copyright:(C) 2025 LIFULL Co.,Ltd.
    アプリで簡単 物件探し 大手不動産サイトの情報から一括検!プッシュ通知で物件を見逃さない
    App Storeからダウンロード Google Playで手に入れよう QRコード