アプリで簡単 物件探し 通知 共有 アプリならではの機能を使ってみる
賃貸アパート

レオネクストロータスハイム 蓮沼駅 1K 賃貸(賃貸マンション・アパート)

情報提供元
アパマンショップ
レオネクストロータスハイム
賃料 10.6万円  (管理費等:5500円)
礼金・敷金 1ヶ月 / なし 保証金/敷引・償却 なし / 実費
交通
所在地 東京都大田区東矢口1丁目周辺地図
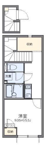
間取り 1K 専有面積 26.34m2
築年月 2015年5月 築年数 築10年6ヶ月
おすすめポイント
お部屋探しはアパマンショップ目黒西口店へお任せ下さい!!山手線・目黒線・南北線・三田線以外の他エリアもご紹介可能です!お気軽にご連絡下さいませ。 【03-6867-1010】
お問い合わせ先
アパマンショップ目黒西口店 株式会社アップル
お問い合わせ先
アパマンショップ目黒西口店 株式会社アップル

詳細情報

賃料 10.6万円 管理費等 5500円
敷金 なし 礼金 1ヶ月
保証金 なし 敷引・償却 実費
更新料 - 契約期間
カード決済 -
所在地 東京都大田区東矢口1丁目周辺地図
交通
建物名 レオネクストロータスハイム 
間取り 1K 築年月(築年数) 2015年5月(築10年6ヶ月)
専有面積 26.34㎡ 所在階/階数 2階/2階建
建物構造 木造  方位 西 
現況 居住中  駐車場 無    近くの駐車場を探す
入居可能時期 2025年11月中旬 住宅保険 あり住宅保険 2年 26680円
情報提供元 アパマンショップ[20221210012620] 情報公開日
情報更新日 - 次回更新予定日 随時

設備など

2階以上 最上階 - 角部屋 -
駐車場(近隣含) - エアコン付き バス・トイレ別
室内洗濯機置き場 - 追焚機能 - オートロック付き -
モニタ付インターホン フローリング - バルコニー
ガスコンロ可 - 浴室乾燥機 24時間セキュリティ -
宅配ボックス - ペット相談可 - 二人入居可 -
設備 エアコン・バルコニー・バス・トイレ別・モニタ付インターホン・浴室乾燥機・洗面所独立・温水洗浄便座・防犯カメラ 
リフォーム履歴 -
リノベーション履歴 -
備考 [退去時費用 退去費用実費精算※故意・過失等別途実費]環境維持費:1ヶ月550円(税込)、鍵交換費:ご契約時16500円(税込)、退去時清掃費:41800円(税込)、インターネット利用料:有料、更新手数料:16500円(税込)、保証委託料:必要 保証会社利用必須 プラザ賃貸保証 家賃等の100%または120% 志茂田小学校ことばの教室・1605m 川崎市立平間中学校・3506m コンビニ・226m スーパー・756m 病院・870m お部屋探しはアパマンショップ目黒西口店へお任せ下さい!! 山手線・目黒線・南北線・三田線以外の他エリアもご紹介可能です!お気軽にご連絡下さいませ。 【03-6867-1010】 /加盟団体名:(公社)東京都宅地建物取引協会 公取協名:(公社) 首都圏不動産公正取引協議会加盟 
特記事項

東京都大田区東矢口1丁目 周辺地図情報

地図
※地図上に表示される物件の位置は付近住所に所在することを表すものであり、実際の物件所在地とは異なる場合がございます。
   正確な物件所在地は、取扱い不動産会社にお問い合わせください。
お問い合わせ先
アパマンショップ目黒西口店 株式会社アップル

不動産会社情報

お問い合わせ先 商号:アパマンショップ目黒西口店 株式会社アップル
免許番号:国土交通大臣(5)6971
所在地:品川区上大崎2丁目27-1
TEL:03-6867-1010
取引態様:仲介
管理コード:71211214
共有する
QRコード
お問い合わせ先
アパマンショップ目黒西口店 株式会社アップル

大田区の暮らしデータ

人口などの統計情報

世帯数 399628世帯
人口総数 733634人
転入者数 55358人
転入率(人口1000人当たり)
75.46人
転出者数 47162人
転出率(人口1000人当たり)
64.29人
土地平均価格
住宅地
524720円/m2
商業地
895412円/m2

結婚・育児の助成金

子育て関連の独自の取り組み 区内保育施設の人材の確保・定着を支援し、また保育の質の向上を目的とする研修実施の他、若年層保育士の定着促進と中堅・ベテラン層保育士の同一施設における継続勤務を奨励することで保育士の質の向上を図る保育士応援手当を交付している。
出産祝い あり
公立保育所数 37所(うち0歳児保育を実施している保育所:26所)
私立保育所数 155所(うち0歳児保育を実施している保育所:104所)
保育所入所待機児童数 0人
認定こども園数 0園 預かり保育実施園数 公立:0園 私立:45園
学校給食 【小学校】完全給食【中学校】完全給食
公立中学校の学校選択制 未実施
子ども・学生等医療費助成<通院>対象年齢 18歳3月末まで 子ども・学生等医療費助成<入院>対象年齢 18歳3月末まで

大田区の治安・ごみ収集情報

公共料金・インフラ

ガス料金(22m3使用した場合の月額) 東京瓦斯株式会社(東京地区等)3926円
水道料金(口径20mmで20m3の月額) 東京都水道局2816円
下水道料金(20m3を使用した場合の月額) 東京都下水道局2068円
下水道普及率 100.0%

安心・安全

建物火災出火件数 118件
人口10000人当たり
1.58件
刑法犯認知件数 3851件
人口1000人当たり
5.15件
ハザード・防災マップ あり

医療

一般病院総数 24ヶ所
一般診療所総数 613ヶ所
小児科医師数 149人
小児人口10000人当たり
19.74人
産婦人科医師数 66人
15~49歳女性人口1万人当たり
3.96人
介護保険料基準額(月額) 6600円

ごみ

家庭ごみ収集(可燃ごみ) 無料
備考
1日平均10kgを超える量の家庭廃棄物を排出する場合、超える量1kgにつき46円。臨時に排出する場合、1kgにつき46円。
家庭ごみの分別方式 3分別11種〔可燃ごみ 不燃ごみ 資源9品目(新聞・チラシ、雑誌・雑がみ、紙パック、段ボール、飲食用びん、飲食用かん、食品トレイ、ペットボトル、発泡スチロール)〕 拠点回収:使用済小型家電10品目(携帯電話 携帯音楽プレーヤー 携帯ゲーム機器 デジタルカメラ ポータブルビデオカメラ ポータブルカーナビ 電子辞書 卓上計算機 ACアダプター USBメモリ) 廃食用油 古着
家庭ごみの戸別収集 一部実施(次のいずれかに該当する者のみで構成される世帯で、自ら集積所までごみを持ち出すことが困難であり、また他の者の協力を得ることができない世帯。[1]要介護2以上に認定されていること。[2]身体障害者障害程度1級及び2級に認定されていること。[3]その他、区長が認める者)
粗大ごみ収集 あり
備考
有料。ただし、区が指定する受入施設に自ら持ち込む場合は、手数料は5割以内の減額又は免除。事前申込制。
生ごみ処理機助成金制度 なし
上限金額
-
上限比率
-
暮らしデータ提供元:生活ガイド.com
※行政機関により公表していない地域及びデータがございます。東京23区以外の政令指定都市は、市全体のデータとして表示しています。
※提供データには細心の注意を払っておりますが、調査後に変更がある場合があります。 最新の情報につきましては各市区役所までお問い合わせいただくか、自治体HPなどをご確認ください。
OCN×ドコモ光新規お申込みで合計最大137,280円相当おトク!特典の内訳・適用条件など詳細はこちら

掲載情報の著作権は提供元企業等に帰属します。
Copyright:(C) 2025 APAMAN Co., Ltd.
アプリで簡単 物件探し 大手不動産サイトの情報から一括検!プッシュ通知で物件を見逃さない
App Storeからダウンロード Google Playで手に入れよう QRコード