アプリで簡単 物件探し 通知 共有 アプリならではの機能を使ってみる
賃貸マンション

大阪府大阪市北区大淀南2 大阪駅 ワンルーム 賃貸(賃貸マンション・アパート)

情報提供元
SUUMO
賃料 6.68万円  (管理費等:9000円)
礼金・敷金 1.5ヶ月 / なし 保証金/敷引・償却 なし / -
交通
所在地 大阪府大阪市北区大淀南2周辺地図
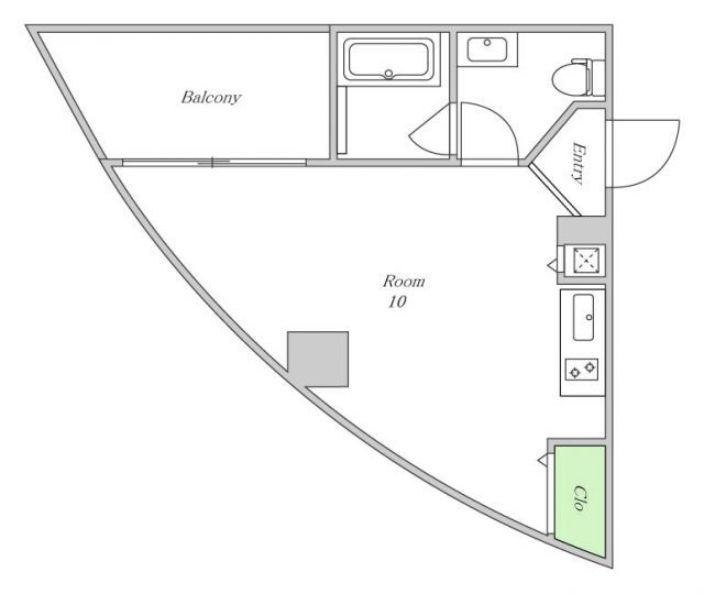
間取り ワンルーム 専有面積 24.19m2
築年月 2016年3月 築年数 築9年10ヶ月
おすすめポイント
お部屋探しはツインホーム西梅田店にお任せ下さい♪ 大淀エリアに新築マンションが完成しました。ペット飼育可能!一階が動物病院、コンビニ、公園徒歩1分の好立地お探しの方はお早めにどうぞ。お部屋探しはツインホーム西梅田店にお任せ下さい。
お問い合わせ先
ツインホーム西梅田店(株)ディパーチャー
お問い合わせ先
ツインホーム西梅田店(株)ディパーチャー

詳細情報

賃料 6.68万円 管理費等 9000円
敷金 なし 礼金 1.5ヶ月
保証金 なし 敷引・償却 -
更新料 - 契約期間
カード決済 -
所在地 大阪府大阪市北区大淀南2周辺地図
交通
建物名  
間取り ワンルーム 築年月(築年数) 2016年3月(築9年10ヶ月)
専有面積 24.19㎡ 所在階/階数 4階/11階建
建物構造 RC  方位 南 
現況   駐車場 無    近くの駐車場を探す
入居可能時期 即時 住宅保険 あり
情報提供元 SUUMO[060H100476174413] 情報公開日
情報更新日 次回更新予定日 随時

設備など

2階以上 最上階 - 角部屋 -
駐車場(近隣含) - エアコン付き バス・トイレ別
室内洗濯機置き場 追焚機能 - オートロック付き
モニタ付インターホン フローリング バルコニー
ガスコンロ可 浴室乾燥機 24時間セキュリティ -
宅配ボックス ペット相談可 - 二人入居可 -
設備 冷房・暖房・エアコン・オートロック・バルコニー・バス・トイレ別・トイレ・収納スペース・洗濯機置場・洗面所・エレベーター・フローリング・浴室乾燥機・ガスコンロ可・シャンプードレッサ・温水洗浄便座・システムキッチン・モニタ付インターホン・宅配BOX・駐輪場・クローゼット・衣類乾燥機・都市ガス・浴トイレ別・防犯カメラ・洗面所独立・コンロ2口以上・シューズボックス・インターネット無料・インターネット対応・室内洗濯機置き場 
リフォーム履歴 -
リノベーション履歴 -
備考 損保要/バストイレ別/バルコニー/エアコン/ガスコンロ対応/クロゼット/フローリング/シャワー付洗面台/TVインターホン/浴室乾燥機/オートロック/室内洗濯置/陽当り良好/シューズボックス/システムキッチン/温水洗浄便座/脱衣所/エレベーター/洗面所独立/洗面化粧台/2口コンロ/駐輪場/宅配ボックス/即入居可/礼金不要/敷金不要/防犯カメラ/全居室洋室/2沿線利用可/駅まで平坦/ネット使用料不要/眺望良好/ダブルロックキー/24時間換気システム/人感照明センサー/2駅利用可/3駅以上利用可/3沿線以上利用可/駅徒歩10分以内/24時間ゴミ出し可/敷地内ごみ置き場/全居室6畳以上/全居室8畳以上/都市ガス/洗面所にドア/玄関収納/オートライト/LAN/年内入居可/年度内入居可/敷金・礼金不要/通風良好/マルシゲ大淀店(スーパー)まで212m/阪急オアシス大淀南店(スーパー)まで125m 
特記事項 日当り良好

省エネ性能

エネルギー消費性能 -
断熱性能 -
目安光熱費 -

大阪府大阪市北区大淀南2 周辺地図情報

地図
※地図上に表示される物件の位置は付近住所に所在することを表すものであり、実際の物件所在地とは異なる場合がございます。
   正確な物件所在地は、取扱い不動産会社にお問い合わせください。
お問い合わせ先
ツインホーム西梅田店(株)ディパーチャー

不動産会社情報

お問い合わせ先 商号:ツインホーム西梅田店(株)ディパーチャー
免許番号:大阪府知事(2)第57991号
所在地:大阪府大阪市福島区福島7-14-16 エスポルテ福島1階
TEL:06-6455-5800
取引態様:仲介
管理コード:181535 570173
所属協会など:(公社)近畿地区不動産公正取引協議会加盟、(公社)全日本不動産協会大阪府本部会員
共有する
QRコード
お問い合わせ先
ツインホーム西梅田店(株)ディパーチャー

大阪市北区の暮らしデータ

人口などの統計情報

世帯数 1464615世帯
人口総数 2757642人
転入者数 225000人
転入率(人口1000人当たり)
81.59人
転出者数 188180人
転出率(人口1000人当たり)
68.24人
土地平均価格
住宅地
270839円/m2
商業地
1966607円/m2

結婚・育児の助成金

子育て関連の独自の取り組み (1)子ども・子育てプラザ(在宅での子育て家庭や地域での子育て活動を支援し、また乳幼児期の親子や子育て支援者、就学期の子どもが集い交流する機会を提供する等、地域福祉活動の推進を図る)。(2)習い事・塾代助成事業(学習塾や家庭教師、文化・スポーツ教室等学校外教育にかかる費用を、1人当たり月額1万円まで助成。所得制限あり)。
出産祝い なし
公立保育所数 53所(うち0歳児保育を実施している保育所:52所)
私立保育所数 395所(うち0歳児保育を実施している保育所:385所)
保育所入所待機児童数 2人
認定こども園数 117園 預かり保育実施園数 公立:52園 私立:-
学校給食 【小学校】完全給食【中学校】完全給食
公立中学校の学校選択制 実施
子ども・学生等医療費助成<通院>対象年齢 18歳3月末まで 子ども・学生等医療費助成<入院>対象年齢 18歳3月末まで

大阪市北区の治安・ごみ収集情報

公共料金・インフラ

ガス料金(22m3使用した場合の月額) 大阪瓦斯株式会社4544円
水道料金(口径20mmで20m3の月額) 大阪市2112円
下水道料金(20m3を使用した場合の月額) 大阪市1276円
下水道普及率 100.0%

安心・安全

建物火災出火件数 553件
人口10000人当たり
2.01件
刑法犯認知件数 39408件
人口1000人当たり
14.32件
ハザード・防災マップ あり

医療

一般病院総数 170ヶ所
一般診療所総数 3734ヶ所
小児科医師数 659人
小児人口10000人当たり
22.80人
産婦人科医師数 380人
15~49歳女性人口1万人当たり
6.15人
介護保険料基準額(月額) 9249円

ごみ

家庭ごみ収集(可燃ごみ) 無料
備考
-
家庭ごみの分別方式 4分別11種〔普通ごみ(普通ごみ、危険ごみ[竹串、ガラス片、カミソリの刃]) 資源ごみ(空き缶・空きびん・金属製の生活用品・ペットボトル、スプレー缶・カセットボンベ) 容器包装プラスチック 古紙・衣類(新聞紙・折込チラシ、段ボール、紙パック、雑誌、衣類、その他の紙類)〕
家庭ごみの戸別収集 一部実施(【ふれあい収集】65歳以上の一人暮らしの高齢者または高齢者だけの世帯、障がいがある方が居住される家庭で、ごみ出しが困難な人が対象)
粗大ごみ収集 あり
備考
有料。戸別収集。事前申込制。申込時に収集日を決定。
生ごみ処理機助成金制度 なし
上限金額
-
上限比率
-
暮らしデータ提供元:生活ガイド.com
※行政機関により公表していない地域及びデータがございます。東京23区以外の政令指定都市は、市全体のデータとして表示しています。
※提供データには細心の注意を払っておりますが、調査後に変更がある場合があります。 最新の情報につきましては各市区役所までお問い合わせいただくか、自治体HPなどをご確認ください。
OCN×ドコモ光新規お申込みで合計最大137,280円相当おトク!特典の内訳・適用条件など詳細はこちら

大阪市北区内の各駅の住みやすさ

他のエリアから探す

大阪市北区の詳細地域から賃貸物件を探す

池田町浮田扇町大深町大淀北大淀中大淀南神山町菅栄町黒崎町紅梅町国分寺末広町菅原町曾根崎曾根崎新地太融寺町茶屋町鶴野町天神西町天神橋天満天満橋兎我野町豊崎同心堂島堂山町中崎中崎西中津中之島長柄中長柄西長柄東浪花町錦町西天満野崎町万歳町東天満樋之口町本庄西本庄東松ケ枝町南扇町南森町山崎町与力町

近辺の市区から探す

大阪市都島区大阪市福島区大阪市此花区大阪市西区大阪市港区大阪市大正区大阪市天王寺区大阪市浪速区大阪市西淀川区大阪市東淀川区大阪市東成区大阪市生野区大阪市旭区大阪市城東区大阪市阿倍野区大阪市住吉区大阪市東住吉区大阪市西成区大阪市淀川区大阪市鶴見区大阪市住之江区大阪市平野区大阪市中央区吹田市守口市八尾市寝屋川市大東市摂津市四條畷市

周辺の駅から探す

東海道本線
岸辺吹田東淀川新大阪大阪塚本尼崎立花甲子園口
大阪環状線
京橋桜ノ宮天満大阪福島野田西九条弁天町大正
JR東西線
京橋大阪城北詰大阪天満宮北新地新福島海老江御幣島加島尼崎

掲載情報の著作権は提供元企業等に帰属します。
Copyright:(C) 2025 Recruit Co., Ltd.
アプリで簡単 物件探し 大手不動産サイトの情報から一括検!プッシュ通知で物件を見逃さない
App Storeからダウンロード Google Playで手に入れよう QRコード