アプリで簡単 物件探し 通知 共有 アプリならではの機能を使ってみる
賃貸マンション

ファインフラッツ南森町 南森町駅 1LDK 賃貸(賃貸マンション・アパート)

情報提供元
SUUMO
ファインフラッツ南森町 ファインフラッツ南森町
賃料 13.5万円  (管理費等:13000円)
礼金・敷金 25万円 / なし 保証金/敷引・償却 なし / -
交通
所在地 大阪府大阪市北区南森町2周辺地図
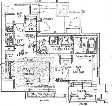
間取り 1LDK 専有面積 39.96m2
築年月 2016年1月 築年数 築9年12ヶ月
おすすめポイント
割引サービス実施中お電話番号をご入力頂きお問合せください。 他社様のインターネット掲載物件はどの物件でもまとめてご案内可能です。もちろん割引サービス適用可能です。【当日ご内覧・オンライン案内・クレジット決済】などどんなことでもご相談下さい。
お問い合わせ先
(株)エーポジション谷町店
お問い合わせ先
(株)エーポジション谷町店

詳細情報

賃料 13.5万円 管理費等 13000円
敷金 なし 礼金 25万円
保証金 なし 敷引・償却 -
更新料 - 契約期間
カード決済 初期費用カード決済可
所在地 大阪府大阪市北区南森町2周辺地図
交通
建物名 ファインフラッツ南森町 
間取り 1LDK(洋4.4 洋4.3 LDK9.7K3.4) 築年月(築年数) 2016年1月(築9年12ヶ月)
専有面積 39.96㎡ 所在階/階数 10階/15階建
建物構造 RC  方位 西 
現況   駐車場 近有 38,500円
入居可能時期 即時 住宅保険 あり 2年 23000円
情報提供元 SUUMO[060H100474414346] 情報公開日
情報更新日 次回更新予定日 随時

設備など

2階以上 最上階 - 角部屋 -
駐車場(近隣含) エアコン付き - バス・トイレ別
室内洗濯機置き場 追焚機能 オートロック付き
モニタ付インターホン フローリング バルコニー
ガスコンロ可 浴室乾燥機 24時間セキュリティ -
宅配ボックス ペット相談可 - 二人入居可
設備 オートロック・バルコニー・バス・トイレ別・トイレ・収納スペース・洗濯機置場・洗面所・エレベーター・BS端子・追焚機能・フローリング・浴室乾燥機・ガスコンロ可・シャンプードレッサ・温水洗浄便座・システムキッチン・モニタ付インターホン・宅配BOX・風呂・クローゼット・CS・床暖房・衣類乾燥機・都市ガス・浴トイレ別・防犯カメラ・洗面所独立・コンロ2口以上・シューズボックス・インターネット無料・インターネット対応・室内洗濯機置き場 
リフォーム履歴 -
リノベーション履歴 -
備考 鍵交換代3.63万円/保証会社利用必:初回保証料:月額総賃料の40% 1年更新:10 000円/普通借家02年0ヶ月/二人入居可/大阪府内全域どこでもお探し可能です。経験豊富なスタッフがご対応させて頂きますので、ご納得行くまでトコトンお探しさせていただきます。お部屋探しについて何でもご相談下さい。尚、引越業者も多数提携しております。お部屋探しはエーポジションへお任せ下さい。/バストイレ別/バルコニー/ガスコンロ対応/クロゼット/フローリング/シャワー付洗面台/TVインターホン/浴室乾燥機/オートロック/室内洗濯置/シューズボックス/システムキッチン/追焚機能浴室/温水洗浄便座/脱衣所/エレベーター/洗面所独立/洗面化粧台/2口コンロ/宅配ボックス/押入/光ファイバー/外壁タイル張り/BS・CS/敷金不要/防犯カメラ/全居室収納/分譲賃貸/グリル付/全居室洋室/全居室フローリング/2沿線利用可/CS/ネット専用回線/ネット使用料不要/床暖房/ダブルロックキー/保証金不要/24時間換気システム/高温差湯式/納戸/ミストサウナ/人感照明センサー/2駅利用可/3駅以上利用可/3沿線以上利用可/駅徒歩5分以内/駅徒歩10分以内/高層階/24時間ゴミ出し可/敷地内ごみ置き場/都市ガス/2WAY洗面所/三面鏡付洗面化粧台/玄関収納/オートライト/ダウンライト/BS/高齢者歓迎/初期費用カード決済可/巡回管理/HEP(その他)まで1384m/グルメシティ南森町店(スーパー)まで527m/ぷららてんま(ショッピングセンター)まで1129m/ダイコクドラッグNew梅新店(ドラッグストア)まで861m/ジュンク堂書店 大阪本店(その他)まで1624m/ヨドバシカメラマルチメディア梅田(その他)まで1850m 
特記事項 二人入居可・分譲タイプ・外観タイル張り・管理人巡回・高齢者相談・初期費用カード決済可

省エネ性能

エネルギー消費性能 -
断熱性能 -
目安光熱費 -

大阪府大阪市北区南森町2 周辺地図情報

地図
※地図上に表示される物件の位置は付近住所に所在することを表すものであり、実際の物件所在地とは異なる場合がございます。
   正確な物件所在地は、取扱い不動産会社にお問い合わせください。
お問い合わせ先
(株)エーポジション谷町店

不動産会社情報

お問い合わせ先 商号:(株)エーポジション谷町店
免許番号:大阪府知事(2)第58754号
所在地:大阪府大阪市中央区内本町1-2-11 ウタカビル2階
TEL:06-6937-5666
取引態様:仲介
管理コード:615370
所属協会など:(公社)近畿地区不動産公正取引協議会加盟、(公社)全日本不動産協会大阪府本部会員
共有する
QRコード
お問い合わせ先
(株)エーポジション谷町店

    大阪市北区の暮らしデータ

    人口などの統計情報

    世帯数 1464615世帯
    人口総数 2757642人
    転入者数 225000人
    転入率(人口1000人当たり)
    81.59人
    転出者数 188180人
    転出率(人口1000人当たり)
    68.24人
    土地平均価格
    住宅地
    270839円/m2
    商業地
    1966607円/m2

    結婚・育児の助成金

    子育て関連の独自の取り組み (1)子ども・子育てプラザ(在宅での子育て家庭や地域での子育て活動を支援し、また乳幼児期の親子や子育て支援者、就学期の子どもが集い交流する機会を提供する等、地域福祉活動の推進を図る)。(2)習い事・塾代助成事業(学習塾や家庭教師、文化・スポーツ教室等学校外教育にかかる費用を、1人当たり月額1万円まで助成。所得制限あり)。
    出産祝い なし
    公立保育所数 53所(うち0歳児保育を実施している保育所:52所)
    私立保育所数 395所(うち0歳児保育を実施している保育所:385所)
    保育所入所待機児童数 2人
    認定こども園数 117園 預かり保育実施園数 公立:52園 私立:-
    学校給食 【小学校】完全給食【中学校】完全給食
    公立中学校の学校選択制 実施
    子ども・学生等医療費助成<通院>対象年齢 18歳3月末まで 子ども・学生等医療費助成<入院>対象年齢 18歳3月末まで

    大阪市北区の治安・ごみ収集情報

    公共料金・インフラ

    ガス料金(22m3使用した場合の月額) 大阪瓦斯株式会社4544円
    水道料金(口径20mmで20m3の月額) 大阪市2112円
    下水道料金(20m3を使用した場合の月額) 大阪市1276円
    下水道普及率 100.0%

    安心・安全

    建物火災出火件数 553件
    人口10000人当たり
    2.01件
    刑法犯認知件数 39408件
    人口1000人当たり
    14.32件
    ハザード・防災マップ あり

    医療

    一般病院総数 170ヶ所
    一般診療所総数 3734ヶ所
    小児科医師数 659人
    小児人口10000人当たり
    22.80人
    産婦人科医師数 380人
    15~49歳女性人口1万人当たり
    6.15人
    介護保険料基準額(月額) 9249円

    ごみ

    家庭ごみ収集(可燃ごみ) 無料
    備考
    -
    家庭ごみの分別方式 4分別11種〔普通ごみ(普通ごみ、危険ごみ[竹串、ガラス片、カミソリの刃]) 資源ごみ(空き缶・空きびん・金属製の生活用品・ペットボトル、スプレー缶・カセットボンベ) 容器包装プラスチック 古紙・衣類(新聞紙・折込チラシ、段ボール、紙パック、雑誌、衣類、その他の紙類)〕
    家庭ごみの戸別収集 一部実施(【ふれあい収集】65歳以上の一人暮らしの高齢者または高齢者だけの世帯、障がいがある方が居住される家庭で、ごみ出しが困難な人が対象)
    粗大ごみ収集 あり
    備考
    有料。戸別収集。事前申込制。申込時に収集日を決定。
    生ごみ処理機助成金制度 なし
    上限金額
    -
    上限比率
    -
    暮らしデータ提供元:生活ガイド.com
    ※行政機関により公表していない地域及びデータがございます。東京23区以外の政令指定都市は、市全体のデータとして表示しています。
    ※提供データには細心の注意を払っておりますが、調査後に変更がある場合があります。 最新の情報につきましては各市区役所までお問い合わせいただくか、自治体HPなどをご確認ください。
    OCN×ドコモ光新規お申込みで合計最大137,280円相当おトク!特典の内訳・適用条件など詳細はこちら

    大阪市北区内の各駅の住みやすさ

    他のエリアから探す

    大阪市北区の詳細地域から賃貸物件を探す

    池田町浮田扇町大深町大淀北大淀中大淀南神山町菅栄町黒崎町紅梅町国分寺末広町菅原町曾根崎曾根崎新地太融寺町茶屋町鶴野町天神西町天神橋天満天満橋兎我野町豊崎同心堂島堂山町中崎中崎西中津中之島長柄中長柄西長柄東浪花町錦町西天満野崎町万歳町東天満樋之口町本庄西本庄東松ケ枝町南扇町南森町山崎町与力町

    近辺の市区から探す

    大阪市都島区大阪市福島区大阪市此花区大阪市西区大阪市港区大阪市大正区大阪市天王寺区大阪市浪速区大阪市西淀川区大阪市東淀川区大阪市東成区大阪市生野区大阪市旭区大阪市城東区大阪市阿倍野区大阪市住吉区大阪市東住吉区大阪市西成区大阪市淀川区大阪市鶴見区大阪市住之江区大阪市平野区大阪市中央区吹田市守口市八尾市寝屋川市大東市摂津市四條畷市

    周辺の駅から探す

    大阪市谷町線
    都島天神橋筋六丁目中崎町東梅田南森町天満橋谷町四丁目谷町六丁目谷町九丁目
    大阪市堺筋線
    天神橋筋六丁目扇町南森町北浜堺筋本町長堀橋
    京阪電鉄中之島線
    天満橋なにわ橋大江橋渡辺橋中之島

    マンションライブラリーを見る

    ファインフラッツ南森町

    大阪府大阪市北区で他のジャンルから探す


    掲載情報の著作権は提供元企業等に帰属します。
    Copyright:(C) 2025 Recruit Co., Ltd.
    アプリで簡単 物件探し 大手不動産サイトの情報から一括検!プッシュ通知で物件を見逃さない
    App Storeからダウンロード Google Playで手に入れよう QRコード