アプリで簡単 物件探し 通知 共有 アプリならではの機能を使ってみる
賃貸マンション

グランテラス駅南 高岡駅 2LDK 賃貸(賃貸マンション・アパート)

情報提供元
SUUMO
グランテラス駅南
賃料 7.6万円  (管理費等:3000円)
礼金・敷金 なし / 1ヶ月 保証金/敷引・償却 なし / -
交通
所在地 富山県高岡市駅南4周辺地図
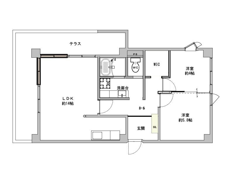
間取り 2LDK 専有面積 78.95m2
築年月 1980年12月 築年数 築45年1ヶ月
おすすめポイント
【グランテラス駅南101】 2025.11月リノベーション完成☆高岡駅まで徒歩約8分の好立地!エアコン2台、ネット無料、融雪付き駐車場(2台契約可)

詳細情報

賃料 7.6万円 管理費等 3000円
敷金 1ヶ月 礼金 なし
保証金 なし 敷引・償却 -
更新料 - 契約期間
カード決済 -
所在地 富山県高岡市駅南4周辺地図
交通
建物名 グランテラス駅南 
間取り 2LDK(洋5.8 洋4 LDK14) 築年月(築年数) 1980年12月(築45年1ヶ月)
専有面積 78.95㎡ 所在階/階数 3階/3階建
建物構造 RC  方位 西 
現況   駐車場 有 5,500円
入居可能時期 即時 住宅保険 あり
情報提供元 SUUMO[040H100472355761] 情報公開日
情報更新日 次回更新予定日 随時

設備など

2階以上 最上階 角部屋
駐車場(近隣含) エアコン付き バス・トイレ別
室内洗濯機置き場 追焚機能 - オートロック付き -
モニタ付インターホン フローリング バルコニー
ガスコンロ可 浴室乾燥機 - 24時間セキュリティ -
宅配ボックス - ペット相談可 - 二人入居可 -
設備 冷房・暖房・エアコン・バルコニー・バス・トイレ別・トイレ・収納スペース・洗濯機置場・洗面所・フローリング・ウォークインクローゼット・照明器具・ガスコンロ可・温水洗浄便座・モニタ付インターホン・駐輪場・クローゼット・2面バルコニー・都市ガス・浴トイレ別・洗面所独立・シューズボックス・インターネット無料・リノベーション・リフォーム・インターネット対応・室内洗濯機置き場 
リフォーム履歴 -
リノベーション履歴 -
備考 損保要/安心入居サポート 880円/月、火災保険 1100円/月、月額保証料 853円/月/保証会社利用必:初回保証料:50%、月額:1%、更新料なし/仲介手数料1.1ヶ月/普通借家02年/※ご契約から6ヶ月未満の解約は賃料1ヶ月分の違約金が発生します。/バストイレ別/バルコニー/エアコン/ガスコンロ対応/フローリング/TVインターホン/室内洗濯置/シューズボックス/角住戸/温水洗浄便座/洗面所独立/駐輪場/即入居可/礼金不要/最上階/照明付/全居室洋室/ウォークインクロゼット/内外装リフォーム済/保証人不要/敷金1ヶ月/全居室フローリング/デザイナーズ/2沿線利用可/エアコン2台/ネット使用料不要/2駅利用可/駅徒歩10分以内/上階無し/融雪機/敷地内ごみ置き場/LDK12畳以上/都市ガス/L字型バルコニー/リノベーション/全室照明付/リフォーム:2025年11月リフォーム済(リノベーション)/セブンイレブン高岡駅南4丁目店10番29号(コンビニ)まで239m/ファミリーマート高岡駅南一丁目店(コンビニ)まで376m/クスリのアオキ高岡駅南店(ドラッグストア)まで453m/高岡市立下関小学校(小学校)まで466m/高岡市立芳野中学校(中学校)まで499m/高岡駅(その他)まで618m/賃貸戸数:9戸 
特記事項 角部屋・最上階・デザイナーズ物件・保証人不要/代行

省エネ性能

エネルギー消費性能 -
断熱性能 -
目安光熱費 -

富山県高岡市駅南4 周辺地図情報

地図
※地図上に表示される物件の位置は付近住所に所在することを表すものであり、実際の物件所在地とは異なる場合がございます。
   正確な物件所在地は、取扱い不動産会社にお問い合わせください。

不動産会社情報

お問い合わせ先 商号:(株)高岡不動産センター
免許番号:富山県知事(14)第943号
所在地:富山県高岡市清水町3-3-63
TEL:0766-22-1334
取引態様:仲介
管理コード:24301
所属協会など: 北陸不動産公正取引協議会加盟、(公社)富山県宅地建物取引業協会会員
共有する
QRコード

    高岡市の暮らしデータ

    人口などの統計情報

    世帯数 65463世帯
    人口総数 164053人
    転入者数 4873人
    転入率(人口1000人当たり)
    29.70人
    転出者数 4696人
    転出率(人口1000人当たり)
    28.62人
    土地平均価格
    住宅地
    29532円/m2
    商業地
    52669円/m2

    結婚・育児の助成金

    子育て関連の独自の取り組み (1)第1子(2024年9月~)及び第2子(第1子が同時入所でなくとも)の保育料は半額、ただし、市民税所得割額が9.7万円未満の場合。(2)副食費について、市民税所得割額が21万1,201円未満の世帯の第3子以降の子ども、市民税所得割額が7万7,101円以上9.7万円未満の世帯の第2子について、4,500円を上限に減免。
    出産祝い なし
    公立保育所数 10所(うち0歳児保育を実施している保育所:10所)
    私立保育所数 15所(うち0歳児保育を実施している保育所:15所)
    保育所入所待機児童数 0人
    認定こども園数 22園 預かり保育実施園数 公立:- 私立:3園
    学校給食 【小学校】完全給食【中学校】完全給食
    公立中学校の学校選択制 一部実施(一部地域で隣接区域選択制)
    子ども・学生等医療費助成<通院>対象年齢 18歳3月末まで 子ども・学生等医療費助成<入院>対象年齢 18歳3月末まで

    高岡市の治安・ごみ収集情報

    公共料金・インフラ

    ガス料金(22m3使用した場合の月額) 日本海ガス株式会社5667円
    高岡ガス株式会社5756円
    水道料金(口径20mmで20m3の月額) 高岡市3438円
    下水道料金(20m3を使用した場合の月額) 高岡市3476円
    下水道普及率 93.2%

    安心・安全

    建物火災出火件数 17件
    人口10000人当たり
    1.02件
    刑法犯認知件数 922件
    人口1000人当たり
    5.54件
    ハザード・防災マップ あり

    医療

    一般病院総数 12ヶ所
    一般診療所総数 135ヶ所
    小児科医師数 35人
    小児人口10000人当たり
    20.63人
    産婦人科医師数 18人
    15~49歳女性人口1万人当たり
    6.51人
    介護保険料基準額(月額) 6494円

    ごみ

    家庭ごみ収集(可燃ごみ) 有料
    備考
    指定ごみ袋有料。袋の作成・流通及び処理手数料の徴収は、高岡地区広域圏事務組合(一般廃棄物処理施設を管理運営する一部事務組合)が実施。袋は、市内及び近隣市の小売店舗(スーパー、コンビニ等)で販売している。また、一時多量ごみの収集も有料。料金体系は粗大ごみの収集と同じ。
    家庭ごみの分別方式 3分別18種〔燃やせるごみ 燃やせないごみ(飲食用缶類[スチール缶、アルミ缶]、飲食用ペットボトル、飲食用びん[無色びん、茶色びん、その他色びん]、プラスチック容器、高分子系ごみ、金属類・家電品類、乾電池等有害ごみ[乾電池、蛍光灯・ライター]、古紙類[新聞、雑誌・チラシ、紙箱・包装紙、紙パック、段ボール]) 埋め立てごみ〕
    家庭ごみの戸別収集 一部実施(【ひとり暮らし高齢者のごみ個別収集事業】一部地域のみ実施。燃やせるごみを週1回戸別収集する。満65歳以上・ひとり暮らし・要介護認定の方で、集積場までごみ搬出が困難等の条件を全て満たす市民が対象)
    粗大ごみ収集 あり
    備考
    事前申込制。1m3までごとに3,500円(特別な処理を要する物は1個につき300円を加算、木質の家具・建具類及び畳は1個につき100円を加算)、犬・猫の死体は1体につき2,160円。
    生ごみ処理機助成金制度 なし
    上限金額
    -
    上限比率
    -
    暮らしデータ提供元:生活ガイド.com
    ※行政機関により公表していない地域及びデータがございます。東京23区以外の政令指定都市は、市全体のデータとして表示しています。
    ※提供データには細心の注意を払っておりますが、調査後に変更がある場合があります。 最新の情報につきましては各市区役所までお問い合わせいただくか、自治体HPなどをご確認ください。
    OCN×ドコモ光新規お申込みで合計最大137,280円相当おトク!特典の内訳・適用条件など詳細はこちら

    他のエリアから探す

    高岡市の詳細地域から賃貸物件を探す

    赤祖父明園町明野町あわら町井口本江石瀬石丸泉町内島永楽町駅南江尻大坪町大手町大野大町大鋸屋町荻布荻布新町御旅屋町開発本町片原横町金屋金屋本町金屋町鐘紡町上北島上関上関町上牧野上四屋鴨島町川原町神田新町北島木津木舟町木町京田京町高陵町小馬出町五福町佐野三番町三女子清水町下黒田下関町下伏間江下牧野守護町昭和町新成町新寺町新横町地子木町定塚町城東末広町関大町関町千石町宝町立野立野美鳥町長慶寺常国角三島出来田戸出戸出伊勢領戸出狼戸出光明寺戸出石代戸出西部金屋戸出町戸出吉住問屋町内免中川中川上町中川栄町中川園町中川本町中島町中曽根中田中保西町能町能町南野村波岡蓮美町羽広早川博労本町博労町東上関東下関東中川町姫野広小路深沢福岡町荒屋敷福岡町一歩二歩福岡町大滝福岡町上蓑福岡町下老子福岡町土屋福岡町福岡新福岡町本領福岡町矢部福田六家伏木一宮伏木古府伏木古府元町伏木東一宮伏木本町伏木矢田二上古定塚平成町放生津本郷本町本丸町丸の内瑞穂町宮田町向野本町向野町横田横田本町横田町芳野吉久四屋米島蓮花寺鷲北新和田

    近辺の市区から探す

    氷見市射水市

    周辺の駅から探す

    城端線
    高岡新高岡二塚戸出油田
    あいの風とやま鉄道
    石動福岡西高岡高岡やぶなみ高岡越中大門小杉呉羽富山

    富山県高岡市で他のジャンルから探す


    掲載情報の著作権は提供元企業等に帰属します。
    Copyright:(C) 2025 Recruit Co., Ltd.
    アプリで簡単 物件探し 大手不動産サイトの情報から一括検!プッシュ通知で物件を見逃さない
    App Storeからダウンロード Google Playで手に入れよう QRコード