アプリで簡単 物件探し 通知 共有 アプリならではの機能を使ってみる
賃貸アパート

[初期費用22万円以内]シエスタヴィラ北千住アルボルハウス 北千住駅 ワンルーム 賃貸(賃貸マンション・アパート)

情報提供元
SUUMO
[初期費用22万円以内]シエスタヴィラ北千住アルボルハウス 落ち着いた外観が周囲に馴染む心地よい佇まい
賃料 6.7万円  (管理費等:3000円)
礼金・敷金 なし / なし 保証金/敷引・償却 なし / -
交通
所在地 東京都足立区千住龍田町周辺地図
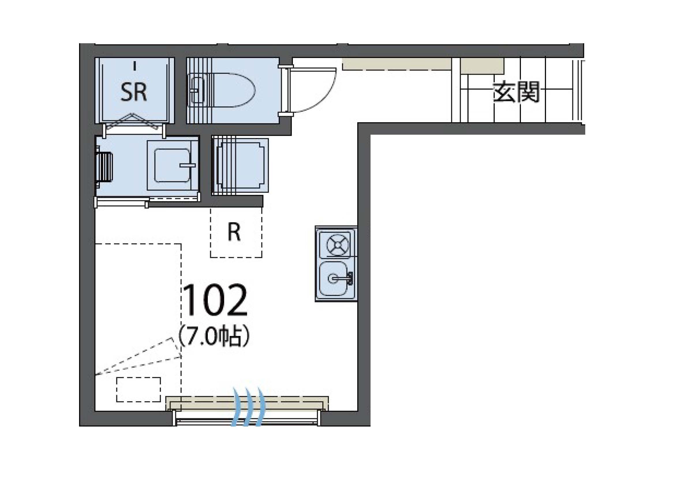
間取り ワンルーム 専有面積 16.27m2
築年月 2021年3月 築年数 築4年10ヶ月
おすすめポイント
敷金礼金0円!整形間取りで家具配置しやすい暮らしやすい 建物の角に位置する7.0帖の1R。整った居室形状でベッドやソファの配置がしやすく、水まわりはコンパクトに集約。インターネット無料もうれしいポイントです。北千住エリアで使いやすさ重視の方におすすめ!
お問い合わせ先
(株)日生リビングシエスタ
お問い合わせ先
(株)日生リビングシエスタ

詳細情報

賃料 6.7万円 管理費等 3000円
敷金 なし 礼金 なし
保証金 なし 敷引・償却 -
更新料 - 契約期間
カード決済 初期費用カード決済可
所在地 東京都足立区千住龍田町周辺地図
交通
  • 東京メトロ日比谷線 北千住駅 徒歩15分乗換案内
  • 東京メトロ千代田線 北千住駅 徒歩15分乗換案内
  • 東武伊勢崎線 北千住駅 徒歩15分乗換案内
建物名 [初期費用22万円以内]シエスタヴィラ北千住アルボルハウス 
間取り ワンルーム(7) 築年月(築年数) 2021年3月(築4年10ヶ月)
専有面積 16.27㎡ 所在階/階数 1階/3階建
建物構造 木造  方位 南 
現況   駐車場 無    近くの駐車場を探す
入居可能時期 2026年1月中旬 住宅保険 あり 2年 15000円
情報提供元 SUUMO[030H100479361720] 情報公開日
情報更新日 次回更新予定日 随時

設備など

2階以上 - 最上階 - 角部屋
駐車場(近隣含) - エアコン付き バス・トイレ別 -
室内洗濯機置き場 追焚機能 - オートロック付き
モニタ付インターホン フローリング バルコニー -
ガスコンロ可 - 浴室乾燥機 - 24時間セキュリティ -
宅配ボックス ペット相談可 - 二人入居可 -
設備 冷房・暖房・エアコン・オートロック・トイレ・収納スペース・洗濯機置場・洗面所・CATV・フローリング・シャンプードレッサ・温水洗浄便座・システムキッチン・モニタ付インターホン・宅配BOX・シャワー・IHクッキングヒータ・複層ガラス・ディンプルキー・洗面所独立・シューズボックス・インターネット無料・インターネット対応・室内洗濯機置き場 
リフォーム履歴 -
リノベーション履歴 -
備考 鍵交換費用:27500円/24時間緊急対応サポート:1320円(月額)/保証会社利用必:連帯保証人無プラン:27328円/連帯保証人有プラン:34160円/学割プラン:10000円/普通借家2年/単身者可/北千住駅徒歩圏で複数路線が利用できる立地にある角部屋の1Rです。約7.0帖の整った居室は家具配置がしやすく、窓側にくつろぎスペースをつくりやすい間取り。水まわりを玄関側にまとめているため、居室部分を有効に使えます。インターネット無料で在宅時間もスムーズに過ごせるお部屋です。/エアコン/フローリング/シャワー付洗面台/TVインターホン/オートロック/室内洗濯置/陽当り良好/シューズボックス/システムキッチン/南向き/角住戸/温水洗浄便座/洗面所独立/洗面化粧台/宅配ボックス/CATV/礼金不要/閑静な住宅地/敷金不要/IHクッキングヒーター/全居室洋室/保証人不要/単身者相談/CATVインターネット/防犯シャッター/全居室フローリング/デザイナーズ/ディンプルキー/ネット専用回線/駅まで平坦/ネット使用料不要/ダブルロックキー/保証金不要/24時間換気システム/複層ガラス/築3年以内/学生相談/学生敷金不要/3沿線以上利用可/敷地内ごみ置き場/当社管理物件/シャワールーム/室内物干機/敷金・礼金不要/保証会社利用可/初期費用30万円以下/IT重説 対応物件/初期費用カード決済可/ブラインド付/全室照明付/通風良好/巡回管理/商店街(魚屋・肉屋・花屋・和菓子屋・弁当屋・総菜屋)(スーパー)まで120m/ドラッグぱぱす(ドラッグストア)まで120m/ニコニコ湯(その他)まで290m/千住竜田郵便局(郵便局)まで120m/コインランドリーマンマチャオ(その他)まで230m/墨田川(公園)まで750m/賃貸戸数:9戸 
特記事項 角部屋・管理人巡回・日当り良好・閑静な住宅街・デザイナーズ物件・保証人不要/代行 ・初期費用カード決済可

省エネ性能

エネルギー消費性能 -
断熱性能 -
目安光熱費 -

東京都足立区千住龍田町 周辺地図情報

地図
※地図上に表示される物件の位置は付近住所に所在することを表すものであり、実際の物件所在地とは異なる場合がございます。
   正確な物件所在地は、取扱い不動産会社にお問い合わせください。
お問い合わせ先
(株)日生リビングシエスタ

不動産会社情報

お問い合わせ先 商号:(株)日生リビングシエスタ
免許番号:東京都知事(14)第26444号
所在地:東京都東久留米市本町1-4-6 2階
TEL:042-420-1632
取引態様:代理
管理コード:
所属協会など:(公社)首都圏不動産公正取引協議会加盟、(公社)全日本不動産協会東京都本部会員
共有する
QRコード
お問い合わせ先
(株)日生リビングシエスタ

足立区の暮らしデータ

人口などの統計情報

世帯数 345010世帯
人口総数 693223人
転入者数 44256人
転入率(人口1000人当たり)
63.84人
転出者数 35899人
転出率(人口1000人当たり)
51.79人
土地平均価格
住宅地
371926円/m2
商業地
646909円/m2

結婚・育児の助成金

子育て関連の独自の取り組み (1)病児保育(在宅型)利用料金の助成。(2)あだちはじめてえほん事業。(3)あだち幼保小接続期カリキュラム。(4)あだちっ子歯科健診。(5)保育士・幼稚園教諭奨学金返済支援事業補助金。(6)保育士・幼稚園教諭住居借上げ支援事業補助金。(7)保育従事者永年勤続褒賞。(8)足立区教育・保育の質ガイドライン。(9)病児保育(施設型)。
出産祝い あり
公立保育所数 40所(うち0歳児保育を実施している保育所:21所)
私立保育所数 113所(うち0歳児保育を実施している保育所:106所)
保育所入所待機児童数 5人
認定こども園数 7園 預かり保育実施園数 公立:- 私立:45園
学校給食 【小学校】完全給食【中学校】完全給食
公立中学校の学校選択制 実施(自由選択制)
子ども・学生等医療費助成<通院>対象年齢 18歳3月末まで 子ども・学生等医療費助成<入院>対象年齢 18歳3月末まで

足立区の治安・ごみ収集情報

公共料金・インフラ

ガス料金(22m3使用した場合の月額) 東京瓦斯株式会社(東京地区等)3926円
水道料金(口径20mmで20m3の月額) 東京都水道局2816円
下水道料金(20m3を使用した場合の月額) 東京都下水道局2068円
下水道普及率 99.9%

安心・安全

建物火災出火件数 142件
人口10000人当たり
2.04件
刑法犯認知件数 4222件
人口1000人当たり
6.07件
ハザード・防災マップ あり

医療

一般病院総数 54ヶ所
一般診療所総数 454ヶ所
小児科医師数 144人
小児人口10000人当たり
19.86人
産婦人科医師数 26人
15~49歳女性人口1万人当たり
1.79人
介護保険料基準額(月額) 6750円

ごみ

家庭ごみ収集(可燃ごみ) 無料
備考
引越し等に伴う臨時ごみは有料。45リットルのごみ袋1袋あたり300円。
家庭ごみの分別方式 3分別10種〔可燃ごみ 不燃ごみ 資源(古紙[新聞、雑誌類、雑がみ、段ボール、紙パック]、びん、缶、ペットボトル)〕千住、新田、宮城・小台のみ4分別12種〔可燃ごみ 不燃ごみ 資源(古紙[新聞、雑誌類、雑がみ、段ボール、紙パック]、びん、缶、ペットボトル) プラスチック(プラスチック製容器包装、製品プラスチック)〕
家庭ごみの戸別収集 一部実施(次のいずれか位に該当する者のみで構成される世帯で、世帯員が集積所までごみを持ち出すことが困難であり、かつ、世帯員以外の者の協力を得ることが出来ない方。[1]要介護2以上に認定されている者。[2]身体障害者手帳1級又は2級に認定されている者。[3]その他自ら集積所にごみを出すことが困難であると区長が認める者)
粗大ごみ収集 あり
備考
有料。事前申込制。ただし、指定場所への持込が可能な場合は年度内2回、1回につき10点まで無料。
生ごみ処理機助成金制度 あり
上限金額
20000円
上限比率
50.0%
暮らしデータ提供元:生活ガイド.com
※行政機関により公表していない地域及びデータがございます。東京23区以外の政令指定都市は、市全体のデータとして表示しています。
※提供データには細心の注意を払っておりますが、調査後に変更がある場合があります。 最新の情報につきましては各市区役所までお問い合わせいただくか、自治体HPなどをご確認ください。

足立区内の各駅の住みやすさ

他のエリアから探す

足立区の詳細地域から賃貸物件を探す

青井足立綾瀬伊興伊興本町入谷入谷町梅島梅田大谷田興野小台加賀加平北加平町栗原弘道江北古千谷本町佐野皿沼鹿浜島根新田神明神明南関原千住千住曙町千住旭町千住東千住大川町千住河原町千住寿町千住桜木千住関屋町千住龍田町千住中居町千住仲町千住橋戸町千住緑町千住宮元町千住元町千住柳町竹の塚辰沼中央本町椿東和舎人中川西綾瀬西新井西新井栄町西新井本町西伊興西加平西竹の塚西保木間花畑東綾瀬東伊興東保木間東六月町一ツ家日ノ出町平野保木間保塚町堀之内南花畑宮城六木本木本木北町本木西町本木東町本木南町谷在家谷中柳原六月六町

近辺の市区から探す

川口市草加市越谷市蕨市戸田市八潮市三郷市松戸市流山市千代田区中央区新宿区文京区台東区墨田区江東区豊島区北区荒川区板橋区葛飾区江戸川区

周辺の駅から探す

東京メトロ日比谷線
北千住南千住三ノ輪入谷上野
東京メトロ千代田線
北綾瀬綾瀬北千住町屋西日暮里千駄木根津
東武伊勢崎・大師線
東向島鐘ヶ淵堀切牛田北千住小菅五反野梅島西新井

掲載情報の著作権は提供元企業等に帰属します。
Copyright:(C) 2025 Recruit Co., Ltd.
アプリで簡単 物件探し 大手不動産サイトの情報から一括検!プッシュ通知で物件を見逃さない
App Storeからダウンロード Google Playで手に入れよう QRコード