アプリで簡単 物件探し 通知 共有 アプリならではの機能を使ってみる
賃貸マンション

CITY WALK練馬 練馬駅 1LDK 賃貸(賃貸マンション・アパート)

情報提供元
SUUMO
CITY WALK練馬
賃料 16.5万円  (管理費等:15000円)
礼金・敷金 なし / なし 保証金/敷引・償却 なし / -
交通
所在地 東京都練馬区練馬3周辺地図
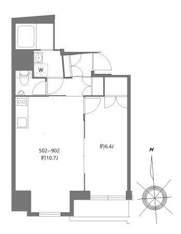
間取り 1LDK 専有面積 40.49m2
築年月 2025年10月 築年数 新築
おすすめポイント
現在空室、今すぐご見学できます!※日時を下記からご予約下さい 【スマホから】赤い「見学予約」のボタン→ご希望日時をご入力【パソコンから】”その他の問い合わせ”→ご希望日時をご入力【お電話で】0120-937-200 ※仮申込も応相談。「予約希望」とご記入下さい

詳細情報

賃料 16.5万円 管理費等 15000円
敷金 なし 礼金 なし
保証金 なし 敷引・償却 -
更新料 - 契約期間
カード決済 初期費用カード決済可
所在地 東京都練馬区練馬3周辺地図
交通
建物名 CITY WALK練馬 
間取り 1LDK(洋6.4 LDK10.7) 築年月(築年数) 2025年10月 新築
専有面積 40.49㎡ 所在階/階数 5階/9階建
建物構造 RC  方位 南 
現況   駐車場 近有 18,700円
入居可能時期 即時 住宅保険 あり 2年 20000円
情報提供元 SUUMO[030H100475367007] 情報公開日
情報更新日 次回更新予定日 随時

設備など

2階以上 最上階 - 角部屋
駐車場(近隣含) エアコン付き バス・トイレ別
室内洗濯機置き場 追焚機能 - オートロック付き
モニタ付インターホン フローリング バルコニー
ガスコンロ可 - 浴室乾燥機 24時間セキュリティ -
宅配ボックス ペット相談可 - 二人入居可
設備 冷房・暖房・エアコン・オートロック・バルコニー・バス・トイレ別・トイレ・収納スペース・洗濯機置場・洗面所・エレベーター・BS端子・フローリング・浴室乾燥機・温水洗浄便座・システムキッチン・モニタ付インターホン・宅配BOX・クローゼット・CS・衣類乾燥機・都市ガス・IHクッキングヒータ・ディンプルキー・浴トイレ別・防犯カメラ・洗面所独立・コンロ2口以上・シューズボックス・インターネット無料・インターネット対応・室内洗濯機置き場 
リフォーム履歴 -
リノベーション履歴 -
備考 プレミアデスク(2年/税込)1.65万円/更新料 新賃料1.50ヶ月分 室内清掃費用 107140円/保証会社利用必:月額総賃料の70%(最低保証料20000円)/月次保証料、月額総賃料の1.5% ※CASAからの審査になります。 【CASA】月額総賃料の70%(最低保証料20,000円)/月次保証料、月額総賃料の1.5% 【アーク賃貸保証】月額総賃料の40%/次年度以降10,000円※引落し/普通借家02年0ヶ月/二人入居可/事務所利用不可/創業28年目の信頼と実績★オンライン接客、写真や動画の撮影も無料で対応★部屋やキッチンなどの採寸代行★IT重説による郵送契約★初期費用クレジットカード対応、リボ払もできます★さまざまなご要望はお電話でもお受けいたします!※短期違約金有/バストイレ別/バルコニー/エアコン/クロゼット/TVインターホン/浴室乾燥機/オートロック/室内洗濯置/陽当り良好/シューズボックス/システムキッチン/南向き/角住戸/温水洗浄便座/脱衣所/エレベーター/洗面所独立/洗面化粧台/2口コンロ/宅配ボックス/即入居可/防犯カメラ/IHクッキングヒーター/全居室洋室/保証人不要/24時間緊急通報システム/全居室フローリング/玄関ホール/2沿線利用可/ディンプルキー/CS/ネット専用回線/ネット使用料不要/全室南向き/ダブルロックキー/保証金不要/築2年以内/24時間換気システム/耐火構造/2駅利用可/3駅以上利用可/駅徒歩10分以内/敷地内ごみ置き場/全居室6畳以上/都市ガス/洗面所にドア/南面バルコニー/BS/保証会社利用可/IT重説 対応物件/初期費用カード決済可/巡回管理/オオゼキ 練馬店(スーパー)まで328m/ライフココネリ練馬駅前店(スーパー)まで548m/西友練馬店(スーパー)まで538m/ローソン 練馬豊玉北六丁目店(コンビニ)まで254m/ファミリーマート 練馬中村三丁目店(コンビニ)まで900m/サトウ薬局(ドラッグストア)まで899m 
特記事項 二人入居可・角部屋・管理人巡回・日当り良好・保証人不要/代行 ・初期費用カード決済可

省エネ性能

エネルギー消費性能 -
断熱性能 -
目安光熱費 -

東京都練馬区練馬3 周辺地図情報

地図
※地図上に表示される物件の位置は付近住所に所在することを表すものであり、実際の物件所在地とは異なる場合がございます。
   正確な物件所在地は、取扱い不動産会社にお問い合わせください。

不動産会社情報

お問い合わせ先 商号:(株)石神井ハウジング
免許番号:東京都知事(6)第76800号
所在地:東京都練馬区石神井町3-20-14
TEL:0120-937200
取引態様:仲介
管理コード:595830
所属協会など:(公社)首都圏不動産公正取引協議会加盟、(公社)全日本不動産協会東京都本部会員
共有する
QRコード

    練馬区の暮らしデータ

    人口などの統計情報

    世帯数 374485世帯
    人口総数 741540人
    転入者数 49591人
    転入率(人口1000人当たり)
    66.88人
    転出者数 44239人
    転出率(人口1000人当たり)
    59.66人
    土地平均価格
    住宅地
    413757円/m2
    商業地
    816167円/m2

    結婚・育児の助成金

    子育て関連の独自の取り組み (1)第3子誕生祝金。(2)子育てスタート応援券。(3)外遊び型子育てのひろば(おひさまぴよぴよ)。(4)ねりますくすくアプリ(ねりすく)。(5)ねりま子育て応援ハンドブック。(6)父親の育児応援DVD。(7)1年保育(1歳児・2歳児)。(8)発達に不安がある親子を対象にしたひろば事業(のびのびひろば)。(9)産後ケア事業。(10)移動型外遊びの場提供事業「おひさま てくてく」。(11)2019年度から、練馬こどもカフェ(民間カフェ等と協働し、保護者が交流したり子どもと一緒にリラックスできる場を提供し、私立幼稚園や保育事業者の協力を得て子育て講座等を実施)を開始。(12)ねりま子育て応援アプリ。
    出産祝い あり
    公立保育所数 60所(うち0歳児保育を実施している保育所:50所)
    私立保育所数 141所(うち0歳児保育を実施している保育所:136所)
    保育所入所待機児童数 0人
    認定こども園数 3園 預かり保育実施園数 公立:3園 私立:35園
    学校給食 【小学校】完全給食【中学校】完全給食
    公立中学校の学校選択制 実施(新入学時のみ)
    子ども・学生等医療費助成<通院>対象年齢 18歳3月末まで 子ども・学生等医療費助成<入院>対象年齢 18歳3月末まで

    練馬区の治安・ごみ収集情報

    公共料金・インフラ

    ガス料金(22m3使用した場合の月額) 東京瓦斯株式会社(東京地区等)3926円
    水道料金(口径20mmで20m3の月額) 東京都水道局2816円
    下水道料金(20m3を使用した場合の月額) 東京都下水道局2068円
    下水道普及率 100.0%

    安心・安全

    建物火災出火件数 88件
    人口10000人当たり
    1.17件
    刑法犯認知件数 3480件
    人口1000人当たり
    4.62件
    ハザード・防災マップ あり

    医療

    一般病院総数 17ヶ所
    一般診療所総数 593ヶ所
    小児科医師数 125人
    小児人口10000人当たり
    14.71人
    産婦人科医師数 40人
    15~49歳女性人口1万人当たり
    2.35人
    介護保険料基準額(月額) 6670円

    ごみ

    家庭ごみ収集(可燃ごみ) 無料
    備考
    一度に多量のごみを出す場合は有料。
    家庭ごみの分別方式 3分別10種〔可燃ごみ 不燃ごみ 資源(古紙[新聞、雑誌・雑紙、ダンボール、紙パック]、びん、缶、ペットボトル、容器包装プラスチック)〕 拠点回収:古布 廃食用油 乾電池 小型家電(13品目)
    家庭ごみの戸別収集 一部実施(【練馬区戸別訪問収集実施要綱】65歳以上の方のみの世帯または障害のある方のみの世帯で、世帯員自らごみを集積所へ持ち出すことが困難で、身近な人の協力が得られない世帯が対象)
    粗大ごみ収集 あり
    備考
    有料。事前申込制(粗大ごみ受付センター)。
    生ごみ処理機助成金制度 なし
    上限金額
    -
    上限比率
    -
    暮らしデータ提供元:生活ガイド.com
    ※行政機関により公表していない地域及びデータがございます。東京23区以外の政令指定都市は、市全体のデータとして表示しています。
    ※提供データには細心の注意を払っておりますが、調査後に変更がある場合があります。 最新の情報につきましては各市区役所までお問い合わせいただくか、自治体HPなどをご確認ください。
    OCN×ドコモ光新規お申込みで合計最大137,280円相当おトク!特典の内訳・適用条件など詳細はこちら

    他のエリアから探す

    練馬区の詳細地域から賃貸物件を探す

    旭丘旭町大泉学園町大泉町春日町上石神井上石神井南町北町向山小竹町栄町桜台下石神井石神井台石神井町関町北関町東関町南高野台高松田柄立野町豊玉上豊玉北豊玉中豊玉南土支田中村中村北中村南西大泉貫井練馬羽沢早宮光が丘氷川台東大泉富士見台平和台南大泉南田中三原台谷原

    近辺の市区から探す

    さいたま市南区川口市蕨市戸田市朝霞市志木市和光市新座市千代田区港区新宿区文京区台東区目黒区世田谷区渋谷区中野区杉並区豊島区北区荒川区板橋区武蔵野市三鷹市狛江市清瀬市東久留米市西東京市

    周辺の駅から探す

    西武池袋・豊島線
    椎名町東長崎江古田桜台練馬豊島園中村橋富士見台練馬高野台

    東京都練馬区で他のジャンルから探す


    掲載情報の著作権は提供元企業等に帰属します。
    Copyright:(C) 2025 Recruit Co., Ltd.
    アプリで簡単 物件探し 大手不動産サイトの情報から一括検!プッシュ通知で物件を見逃さない
    App Storeからダウンロード Google Playで手に入れよう QRコード