賃貸マンション
豊玉ベルナ 練馬駅 2K 賃貸(賃貸マンション・アパート)
| 賃料 |
6.8万円 (管理費等:6000円) |
| 礼金・敷金 |
なし / なし |
保証金/敷引・償却 |
なし / - |
| 交通 |
|
| 所在地 |
東京都練馬区豊玉北6周辺地図
|
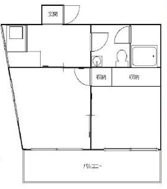
| 間取り |
2K |
専有面積 |
33.66m2 |
| 築年月 |
1976年6月 |
築年数 |
築49年5ヶ月 |
- おすすめポイント
- 敷金・礼金なし 最上階角部屋 独立洗面台 バス・トイレ別 初期費用の分割や家賃交渉等全力で致します!非掲載物件多数ございます!!保証人無、その他ご事情がある方でもお任せ下さい! まずはご連絡・ご相談下さい。
| 賃料 |
6.8万円 |
管理費等 |
6000円 |
| 敷金 |
なし |
礼金 |
なし |
| 保証金 |
なし |
敷引・償却 |
- |
| 更新料 |
- |
契約期間 |
|
| カード決済 |
初期費用カード決済可 |
| 所在地 |
東京都練馬区豊玉北6周辺地図
|
| 交通 |
|
| 建物名 |
豊玉ベルナ |
| 間取り |
2K(K) |
築年月(築年数) |
1976年6月(築49年5ヶ月)
|
| 専有面積 |
33.66㎡ |
所在階/階数 |
4階/4階建
|
| 建物構造 |
鉄骨 |
方位 |
南 |
| 現況 |
|
駐車場 |
無 |
| 入居可能時期 |
相談 |
住宅保険 |
あり 2年 16000円 |
| 情報提供元 |
SUUMO[030H100467653440] |
情報公開日 |
|
| 情報更新日 |
|
次回更新予定日 |
随時 |
設備など
| 2階以上 |
○ |
最上階 |
○ |
角部屋 |
○ |
| 駐車場(近隣含) |
- |
エアコン付き |
○ |
バス・トイレ別 |
○ |
| 室内洗濯機置き場 |
- |
追焚機能 |
○ |
オートロック付き |
- |
| モニタ付インターホン |
- |
フローリング |
○ |
バルコニー |
○ |
| ガスコンロ可 |
○ |
浴室乾燥機 |
- |
24時間セキュリティ |
- |
| 宅配ボックス |
- |
ペット相談可 |
- |
二人入居可 |
- |
| 設備 |
冷房・暖房・エアコン・バルコニー・バス・トイレ別・トイレ・収納スペース・洗面所・追焚機能・フローリング・ガスコンロ可・駐輪場・風呂・クローゼット・都市ガス・浴トイレ別・洗面所独立・コンロ2口以上・リノベーション・リフォーム・インターネット対応 |
| リフォーム履歴 |
- |
| リノベーション履歴 |
- |
| 備考 |
退去時クリーニング費用:79.200円/保証会社利用必:契約時:月総支払額の80% 更新時:12.000円/年/仲介手数料0.55ヶ月/普通借家2年/更新料:新賃料の1ヶ月分。フジコウエイなら首都圏の物件、仲介手数料最大無料でご案内できます☆※弊社では、お申込み~ご契約に至るまで来店頂かなくても全てご対応させて頂きます!ご希望のお客様はお気軽にお問合せ下さいませ!/バストイレ別/バルコニー/エアコン/ガスコンロ対応/クロゼット/フローリング/南向き/追焚機能浴室/角住戸/洗面所独立/洗面化粧台/2口コンロ/駐輪場/2面採光/最上階/全居室洋室/全居室フローリング/仲手0.55ヶ月/ネット専用回線/内装リフォーム済/南面2室/3沿線以上利用可/駅徒歩10分以内/上階無し/都市ガス/洗面所にドア/リノベーション/敷金・礼金不要/初期費用カード決済可/ファミリーマート豊玉北六丁目店(コンビニ)まで110m |
| 特記事項 |
角部屋・最上階・初期費用カード決済可 |
東京都練馬区豊玉北6 周辺地図情報
※地図上に表示される物件の位置は付近住所に所在することを表すものであり、実際の物件所在地とは異なる場合がございます。
正確な物件所在地は、取扱い不動産会社にお問い合わせください。
不動産会社情報
| お問い合わせ先 |
商号:フジコウエイ(株) 免許番号:東京都知事(6)第71729号 所在地:東京都中野区江原町3-5-10 TEL:03-3954-3951 取引態様:仲介 管理コード: 所属協会など:(公社)首都圏不動産公正取引協議会加盟、(公社)東京都宅地建物取引業協会会員
|
共有する |
|
人口などの統計情報
| 世帯数 |
374485世帯 |
| 人口総数 |
741540人 |
| 転入者数 |
49591人
- 転入率(人口1000人当たり)
- 66.88人
|
| 転出者数 |
44239人
- 転出率(人口1000人当たり)
- 59.66人
|
| 土地平均価格 |
- 住宅地
- 413757円/m2
- 商業地
- 816167円/m2
|
結婚・育児の助成金
| 子育て関連の独自の取り組み |
(1)第3子誕生祝金。(2)子育てスタート応援券。(3)外遊び型子育てのひろば(おひさまぴよぴよ)。(4)ねりますくすくアプリ(ねりすく)。(5)ねりま子育て応援ハンドブック。(6)父親の育児応援DVD。(7)1年保育(1歳児・2歳児)。(8)発達に不安がある親子を対象にしたひろば事業(のびのびひろば)。(9)産後ケア事業。(10)移動型外遊びの場提供事業「おひさま てくてく」。(11)2019年度から、練馬こどもカフェ(民間カフェ等と協働し、保護者が交流したり子どもと一緒にリラックスできる場を提供し、私立幼稚園や保育事業者の協力を得て子育て講座等を実施)を開始。(12)ねりま子育て応援アプリ。 |
| 出産祝い |
あり |
| 公立保育所数 |
60所(うち0歳児保育を実施している保育所:50所) |
| 私立保育所数 |
141所(うち0歳児保育を実施している保育所:136所) |
| 保育所入所待機児童数 |
0人 |
| 認定こども園数 |
3園 |
預かり保育実施園数 |
公立:3園 私立:35園 |
| 学校給食 |
【小学校】完全給食【中学校】完全給食 |
| 公立中学校の学校選択制 |
実施(新入学時のみ) |
| 子ども・学生等医療費助成<通院>対象年齢 |
18歳3月末まで |
子ども・学生等医療費助成<入院>対象年齢 |
18歳3月末まで |
練馬区の治安・ごみ収集情報
公共料金・インフラ
| ガス料金(22m3使用した場合の月額) |
東京瓦斯株式会社(東京地区等)3926円 |
| 水道料金(口径20mmで20m3の月額) |
東京都水道局2816円 |
| 下水道料金(20m3を使用した場合の月額) |
東京都下水道局2068円 |
| 下水道普及率 |
100.0% |
安心・安全
| 建物火災出火件数 |
88件
- 人口10000人当たり
- 1.17件
|
| 刑法犯認知件数 |
3480件
- 人口1000人当たり
- 4.62件
|
| ハザード・防災マップ |
あり |
医療
| 一般病院総数 |
17ヶ所 |
| 一般診療所総数 |
593ヶ所 |
| 小児科医師数 |
125人
- 小児人口10000人当たり
- 14.71人
|
| 産婦人科医師数 |
40人
- 15~49歳女性人口1万人当たり
- 2.35人
|
| 介護保険料基準額(月額) |
6670円 |
ごみ
| 家庭ごみ収集(可燃ごみ) |
無料
|
| 家庭ごみの分別方式 |
3分別10種〔可燃ごみ 不燃ごみ 資源(古紙[新聞、雑誌・雑紙、ダンボール、紙パック]、びん、缶、ペットボトル、容器包装プラスチック)〕 拠点回収:古布 廃食用油 乾電池 小型家電(13品目) |
| 家庭ごみの戸別収集 |
一部実施(【練馬区戸別訪問収集実施要綱】65歳以上の方のみの世帯または障害のある方のみの世帯で、世帯員自らごみを集積所へ持ち出すことが困難で、身近な人の協力が得られない世帯が対象) |
| 粗大ごみ収集 |
あり
|
| 生ごみ処理機助成金制度 |
なし
- 上限金額
- -
- 上限比率
- -
|
※行政機関により公表していない地域及びデータがございます。東京23区以外の政令指定都市は、市全体のデータとして表示しています。
※提供データには細心の注意を払っておりますが、調査後に変更がある場合があります。 最新の情報につきましては各市区役所までお問い合わせいただくか、自治体HPなどをご確認ください。
練馬区の暮らしデータをもっと見る