賃貸アパート
メゾンドグリュII 練馬駅 1K 賃貸(賃貸マンション・アパート)
 
  
    
      | 賃料 | 6.4万円  (管理費等:1000円) | 
    
      | 礼金・敷金 | 1ヶ月 / 1ヶ月 | 保証金/敷引・償却 | なし / - | 
    
      | 交通 |  | 
    
      | 所在地 | 東京都練馬区練馬1周辺地図 | 
    
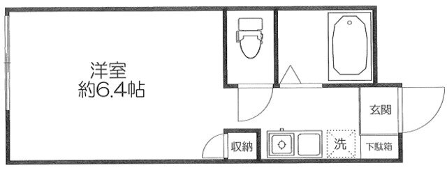
      | 間取り | 1K | 専有面積 | 18.5m2 | 
    
      | 築年月 | 2007年3月 | 築年数 | 築18年9ヶ月 | 
  
 
 
- おすすめポイント
- オンラインで申込から契約手続き、LINEでのご相談も可能です 当物件は初期費用分割払い可(クレジットカード決済も可)/お客様のご希望に合わせた方法(店頭、オンライン等)で物件をご提案いたします。初期費用のお見積りや入居希望日のご相談もお気軽にお問い合わせください
    
    
  
    - お問い合わせ先
- アエラス練馬店(株)アエラス.ER
 
  
  
  
    - お問い合わせ先
- アエラス練馬店(株)アエラス.ER
 
| 賃料 | 6.4万円 | 管理費等 | 1000円 | 
| 敷金 | 1ヶ月 | 礼金 | 1ヶ月 | 
| 保証金 | なし | 敷引・償却 | - | 
| 更新料 | - | 契約期間 |  | 
| カード決済 | 初期費用カード決済可 | 
| 所在地 | 東京都練馬区練馬1周辺地図 | 
| 交通 | 
  西武池袋線 練馬駅 徒歩1分乗換案内都営大江戸線 豊島園駅 徒歩11分乗換案内西武池袋線 桜台駅 徒歩14分乗換案内 | 
| 建物名 | メゾンドグリュII | 
| 間取り | 1K | 築年月(築年数) | 2007年3月(築18年9ヶ月) | 
| 専有面積 | 18.5㎡ | 所在階/階数 | 1階/3階建 | 
| 建物構造 | 木造 | 方位 |  | 
| 現況 |  | 駐車場 | 近有 19,800円 | 
| 入居可能時期 | 即時 | 住宅保険 | あり | 
| 情報提供元 | SUUMO[030H100466637229] | 情報公開日 |  | 
| 情報更新日 |  | 次回更新予定日 | 随時 | 
設備など
| 2階以上 | - | 最上階 | - | 角部屋 | - | 
| 駐車場(近隣含) | ○ | エアコン付き | ○ | バス・トイレ別 | ○ | 
| 室内洗濯機置き場 | ○ | 追焚機能 | - | オートロック付き | - | 
| モニタ付インターホン | - | フローリング | - | バルコニー | - | 
| ガスコンロ可 | - | 浴室乾燥機 | - | 24時間セキュリティ | - | 
| 宅配ボックス | - | ペット相談可 | - | 二人入居可 | - | 
| 設備 | 冷房・暖房・エアコン・バス・トイレ別・トイレ・洗濯機置場・都市ガス・IHクッキングヒータ・浴トイレ別・インターネット対応・室内洗濯機置き場 | 
| リフォーム履歴 | - | 
| リノベーション履歴 | - | 
| 備考 | 損保要/保証会社利用必:初回:賃料等の70% ̄100%/普通借家2年/家財保険15000円(2年間分)/退去時清掃費/鍵交換代借主負担/バストイレ別/エアコン/室内洗濯置/光ファイバー/即入居可/IHクッキングヒーター/敷金1ヶ月/保証金不要/始発駅/3駅以上利用可/3沿線以上利用可/駅前/駅徒歩5分以内/都市ガス/高速ネット対応/礼金1ヶ月/初期費用カード決済可/練馬第二診療所まで164m/練馬郵便局まで484m/ココネリ(ショッピングセンター)まで136m/ライフココネリ練馬駅前店(スーパー)まで134m/ファミリーマート 練馬駅西口店(コンビニ)まで52m/トモズ Coconeri店(ドラッグストア)まで102m/タウン・ドイト豊玉中店(ホームセンター)まで960m/フレッシュネスバーガー練馬(飲食店)まで232m/西武池袋・豊島線中村橋駅徒歩20分 | 
| 特記事項 | 初期費用カード決済可 | 
東京都練馬区練馬1 周辺地図情報
※地図上に表示される物件の位置は付近住所に所在することを表すものであり、実際の物件所在地とは異なる場合がございます。
   正確な物件所在地は、取扱い不動産会社にお問い合わせください。
 
 
  
  
  
    - お問い合わせ先
- アエラス練馬店(株)アエラス.ER
 
不動産会社情報
| お問い合わせ先 | 商号:アエラス練馬店(株)アエラス.ER 免許番号:国土交通大臣(1)第10724号
 所在地:東京都練馬区練馬1-26-2 エーゲアンフロント・ビル 2階
 TEL:03-5912-0620
 取引態様:仲介
 管理コード:68046684
 所属協会など:(公社)首都圏不動産公正取引協議会加盟、(公社)全日本不動産協会東京都本部会員
 | 共有する |  | 
  
  
  
    - お問い合わせ先
- アエラス練馬店(株)アエラス.ER
 
  
  
    人口などの統計情報
    
      
        
          | 世帯数 | 374485世帯 | 
        
          | 人口総数 | 741540人 | 
        
          | 転入者数 | 49591人 
 
              転入率(人口1000人当たり)66.88人 | 
        
          | 転出者数 | 44239人 
 
              転出率(人口1000人当たり)59.66人 | 
        
          | 土地平均価格 | 
              住宅地413757円/m2商業地816167円/m2 | 
      
    
   
    
    結婚・育児の助成金
    
      
        
          | 子育て関連の独自の取り組み | (1)第3子誕生祝金。(2)子育てスタート応援券。(3)外遊び型子育てのひろば(おひさまぴよぴよ)。(4)ねりますくすくアプリ(ねりすく)。(5)ねりま子育て応援ハンドブック。(6)父親の育児応援DVD。(7)1年保育(1歳児・2歳児)。(8)発達に不安がある親子を対象にしたひろば事業(のびのびひろば)。(9)産後ケア事業。(10)移動型外遊びの場提供事業「おひさま てくてく」。(11)2019年度から、練馬こどもカフェ(民間カフェ等と協働し、保護者が交流したり子どもと一緒にリラックスできる場を提供し、私立幼稚園や保育事業者の協力を得て子育て講座等を実施)を開始。(12)ねりま子育て応援アプリ。 | 
        
          | 出産祝い | あり | 
        
          | 公立保育所数 | 60所(うち0歳児保育を実施している保育所:50所) | 
        
          | 私立保育所数 | 141所(うち0歳児保育を実施している保育所:136所) | 
        
          | 保育所入所待機児童数 | 0人 | 
        
          | 認定こども園数 | 3園 | 預かり保育実施園数 | 公立:3園 私立:35園 | 
        
          | 学校給食 | 【小学校】完全給食【中学校】完全給食 | 
        
          | 公立中学校の学校選択制 | 実施(新入学時のみ) | 
        
          | 子ども・学生等医療費助成<通院>対象年齢 | 18歳3月末まで | 子ども・学生等医療費助成<入院>対象年齢 | 18歳3月末まで | 
      
    
   
    
    練馬区の治安・ごみ収集情報
    公共料金・インフラ
    
      
        
          | ガス料金(22m3使用した場合の月額) | 東京瓦斯株式会社(東京地区等)3926円 | 
        
          | 水道料金(口径20mmで20m3の月額) | 東京都水道局2816円 | 
        
          | 下水道料金(20m3を使用した場合の月額) | 東京都下水道局2068円 | 
        
          | 下水道普及率 | 100.0% | 
      
    
    安心・安全
    
      
        
          | 建物火災出火件数 | 88件 
              人口10000人当たり1.17件 | 
        
          | 刑法犯認知件数 | 3480件 
              人口1000人当たり4.62件 | 
        
          | ハザード・防災マップ | あり | 
      
    
    医療
    
      
        
          | 一般病院総数 | 17ヶ所 | 
        
          | 一般診療所総数 | 593ヶ所 | 
        
          | 小児科医師数 | 125人 
              小児人口10000人当たり14.71人 | 
        
          | 産婦人科医師数 | 40人 
              15~49歳女性人口1万人当たり2.35人 | 
        
          | 介護保険料基準額(月額) | 6670円 | 
      
    
    ごみ
    
      
        
          | 家庭ごみ収集(可燃ごみ) | 無料 | 
        
          | 家庭ごみの分別方式 | 3分別10種〔可燃ごみ 不燃ごみ 資源(古紙[新聞、雑誌・雑紙、ダンボール、紙パック]、びん、缶、ペットボトル、容器包装プラスチック)〕 拠点回収:古布 廃食用油 乾電池 小型家電(13品目) | 
        
          | 家庭ごみの戸別収集 | 一部実施(【練馬区戸別訪問収集実施要綱】65歳以上の方のみの世帯または障害のある方のみの世帯で、世帯員自らごみを集積所へ持ち出すことが困難で、身近な人の協力が得られない世帯が対象) | 
        
          | 粗大ごみ収集 | あり | 
        
          | 生ごみ処理機助成金制度 | なし 
              上限金額-上限比率- | 
      
    
   
  
      
    
      ※行政機関により公表していない地域及びデータがございます。東京23区以外の政令指定都市は、市全体のデータとして表示しています。
      
※提供データには細心の注意を払っておりますが、調査後に変更がある場合があります。 最新の情報につきましては各市区役所までお問い合わせいただくか、自治体HPなどをご確認ください。
    
      練馬区の暮らしデータをもっと見る