アプリで簡単 物件探し 通知 共有 アプリならではの機能を使ってみる
賃貸マンション

東京都北区滝野川2 王子駅 1K 賃貸(賃貸マンション・アパート)

情報提供元
SUUMO
賃料 12.4万円  (管理費等:15000円)
礼金・敷金 1ヶ月 / 1ヶ月 保証金/敷引・償却 なし / -
交通
所在地 東京都北区滝野川2周辺地図
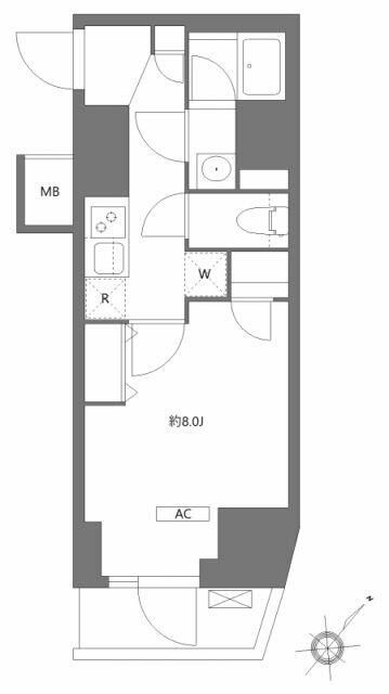
間取り 1K 専有面積 27.45m2
築年月 2024年1月 築年数 築1年12ヶ月
おすすめポイント
シンクロは【最短5秒】でお返事! 『プロ賃貸師×診断×提案』 賃貸物件は“1点もの”!それだけに物件検索と等しく【業者選び】が大切です!物件の強みも弱点も正直に、シンクロは無理なご提案をしません。焦らず納得できる選択をご一緒に!「空室確認はおヘヤ探しの第一歩!」

詳細情報

賃料 12.4万円 管理費等 15000円
敷金 1ヶ月 礼金 1ヶ月
保証金 なし 敷引・償却 -
更新料 - 契約期間
カード決済 初期費用カード決済可
所在地 東京都北区滝野川2周辺地図
交通
建物名  
間取り 1K(洋8.0) 築年月(築年数) 2024年1月(築1年12ヶ月)
専有面積 27.45㎡ 所在階/階数 8階/13階建
建物構造 RC  方位 南東 
現況   駐車場 無    近くの駐車場を探す
入居可能時期 相談 住宅保険 あり 2年 20000円
情報提供元 SUUMO[030H100463480785] 情報公開日
情報更新日 次回更新予定日 随時

設備など

2階以上 最上階 - 角部屋
駐車場(近隣含) - エアコン付き バス・トイレ別
室内洗濯機置き場 追焚機能 - オートロック付き
モニタ付インターホン フローリング バルコニー
ガスコンロ可 浴室乾燥機 24時間セキュリティ -
宅配ボックス ペット相談可 二人入居可 -
設備 冷房・暖房・エアコン・オートロック・バルコニー・バス・トイレ別・トイレ・収納スペース・洗濯機置場・洗面所・エレベーター・BS端子・フローリング・浴室乾燥機・ガスコンロ可・シャンプードレッサ・温水洗浄便座・システムキッチン・モニタ付インターホン・宅配BOX・クローゼット・CS・衣類乾燥機・都市ガス・ディンプルキー・浴トイレ別・防犯カメラ・洗面所独立・コンロ2口以上・シューズボックス・インターネット無料・インターネット対応・室内洗濯機置き場 
リフォーム履歴 -
リノベーション履歴 -
備考 プレミアムデスク(2年/税込)1.65万円 鍵交換代3.85万円/更新料 新賃料1.50ヶ月分/保証会社利用必:※エポス ルームIDからの審査になります。 ルームID月額総賃料の70%/月次保証料、月額総賃料の1.5%/1年毎10,000円 ●エポスグローバルプラン利用時:月額総賃料の100%/仲介手数料1.100ヶ月/普通借家02年0ヶ月/ペット相談/◆シンクロの宣言◆ 1.望まない仲介料以外の費用を直接請求致しません※24時間サポ、除菌消臭、事務手等 2.市場の物件は出し惜しみしません※近い物件だけの紹介や、自社物件のゴリ押し等 3.他社様の広告物件も空いていれば同条件以上でご紹介可※お気軽にご相談下さい 4.水曜日も営業中※年末年始、特別休暇除く 5.内見は車にてご案内※電車や徒歩でも可 6.初期費用分割払い可※審査あり、クレカ払い可/バストイレ別/バルコニー/エアコン/ガスコンロ対応/クロゼット/フローリング/シャワー付洗面台/TVインターホン/浴室乾燥機/オートロック/室内洗濯置/シューズボックス/システムキッチン/角住戸/温水洗浄便座/脱衣所/エレベーター/洗面所独立/洗面化粧台/2口コンロ/宅配ボックス/防犯カメラ/ペット相談/保証人不要/敷金1ヶ月/デザイナーズ/2沿線利用可/ディンプルキー/CS/ネット使用料不要/ダブルロックキー/24時間換気システム/耐震構造/2駅利用可/3駅以上利用可/3沿線以上利用可/駅徒歩5分以内/駅徒歩10分以内/24時間ゴミ出し可/敷地内ごみ置き場/都市ガス/BS/保証会社利用可/IT重説 対応物件/初期費用カード決済可/北区役所(役所)まで782m 
特記事項 ペット相談可・角部屋・デザイナーズ物件・保証人不要/代行 ・初期費用カード決済可

省エネ性能

エネルギー消費性能 -
断熱性能 -
目安光熱費 -

東京都北区滝野川2 周辺地図情報

地図
※地図上に表示される物件の位置は付近住所に所在することを表すものであり、実際の物件所在地とは異なる場合がございます。
   正確な物件所在地は、取扱い不動産会社にお問い合わせください。

不動産会社情報

お問い合わせ先 商号:シンクロ(株)
免許番号:東京都知事(1)第109538号
所在地:東京都豊島区南池袋2-10-5 中丸ビル201
TEL:03-5985-4345
取引態様:仲介
管理コード:S6514 4348863
所属協会など:(公社)首都圏不動産公正取引協議会加盟、(公社)全日本不動産協会東京都本部会員
共有する
QRコード

    北区の暮らしデータ

    人口などの統計情報

    世帯数 189579世帯
    人口総数 357701人
    転入者数 34161人
    転入率(人口1000人当たり)
    95.50人
    転出者数 27589人
    転出率(人口1000人当たり)
    77.13人
    土地平均価格
    住宅地
    588417円/m2
    商業地
    1236700円/m2

    結婚・育児の助成金

    子育て関連の独自の取り組み (1)子育て福袋事業(安心ママパパヘルパー事業等の案内)。(2)みんなでお祝い輝きバースデー事業。(3)子どもかがやき顕彰。(4)ひとり親家庭等相談支援事業。(5)子どもの居場所づくり(子ども食堂)支援事業。(6)生活困窮世帯・ひとり親世帯等の小学生、中学生への学習支援。(7)区立学校給食費補助金制度(給食費無償化)。
    出産祝い なし
    公立保育所数 42所(うち0歳児保育を実施している保育所:36所)
    私立保育所数 55所(うち0歳児保育を実施している保育所:45所)
    保育所入所待機児童数 8人
    認定こども園数 3園 預かり保育実施園数 公立:0園 私立:21園
    学校給食 【小学校】完全給食【中学校】完全給食
    公立中学校の学校選択制 未実施
    子ども・学生等医療費助成<通院>対象年齢 18歳3月末まで 子ども・学生等医療費助成<入院>対象年齢 18歳3月末まで

    北区の治安・ごみ収集情報

    公共料金・インフラ

    ガス料金(22m3使用した場合の月額) 東京瓦斯株式会社(東京地区等)3926円
    水道料金(口径20mmで20m3の月額) 東京都水道局2816円
    下水道料金(20m3を使用した場合の月額) 東京都下水道局2068円
    下水道普及率 100.0%

    安心・安全

    建物火災出火件数 58件
    人口10000人当たり
    1.63件
    刑法犯認知件数 2052件
    人口1000人当たり
    5.78件
    ハザード・防災マップ あり

    医療

    一般病院総数 17ヶ所
    一般診療所総数 294ヶ所
    小児科医師数 97人
    小児人口10000人当たり
    26.35人
    産婦人科医師数 23人
    15~49歳女性人口1万人当たり
    2.82人
    介護保険料基準額(月額) 6290円

    ごみ

    家庭ごみ収集(可燃ごみ) 無料
    備考
    日量10kgを超える場合又は臨時ごみは有料。
    家庭ごみの分別方式 5分別10種〔可燃ごみ 不燃ごみ 古紙(新聞、雑誌、ダンボール、雑紙) 資源物(ビン、カン、ペットボトル) プラスチック〕 拠点回収:紙パック 発泡トレイ 古布 廃食油 水銀入り乾電池
    家庭ごみの戸別収集 一部実施(北区内一部地域と、ご自身で集積所までごみを運び出すことが困難であり、身近な人の協力を得ることができない65歳以上又は障害のある方で、北区清掃事務所に申し出のあった方が対象)
    粗大ごみ収集 あり
    備考
    有料。事前申込制。
    生ごみ処理機助成金制度 あり
    上限金額
    20000円
    上限比率
    50.0%
    暮らしデータ提供元:生活ガイド.com
    ※行政機関により公表していない地域及びデータがございます。東京23区以外の政令指定都市は、市全体のデータとして表示しています。
    ※提供データには細心の注意を払っておりますが、調査後に変更がある場合があります。 最新の情報につきましては各市区役所までお問い合わせいただくか、自治体HPなどをご確認ください。
    OCN×ドコモ光新規お申込みで合計最大137,280円相当おトク!特典の内訳・適用条件など詳細はこちら

    北区内の各駅の住みやすさ

    他のエリアから探す

    北区の詳細地域から賃貸物件を探す

    赤羽赤羽北赤羽台赤羽西赤羽南岩淵町浮間王子王子本町上十条上中里神谷岸町桐ケ丘栄町志茂昭和町十条台十条仲原滝野川田端田端新町豊島中里中十条西が丘西ケ原東十条東田端堀船

    近辺の市区から探す

    さいたま市南区川口市草加市蕨市戸田市和光市八潮市千代田区中央区港区新宿区文京区台東区墨田区江東区目黒区渋谷区中野区杉並区豊島区荒川区板橋区練馬区足立区葛飾区

    周辺の駅から探す

    東京メトロ南北線
    東大前本駒込駒込西ケ原王子王子神谷志茂赤羽岩淵
    都営地下鉄三田線
    本蓮沼板橋本町板橋区役所前新板橋西巣鴨巣鴨千石白山春日
    都電荒川線
    梶原栄町王子駅前飛鳥山滝野川一丁目西ヶ原四丁目新庚申塚庚申塚巣鴨新田

    東京都北区で他のジャンルから探す


    掲載情報の著作権は提供元企業等に帰属します。
    Copyright:(C) 2025 Recruit Co., Ltd.
    アプリで簡単 物件探し 大手不動産サイトの情報から一括検!プッシュ通知で物件を見逃さない
    App Storeからダウンロード Google Playで手に入れよう QRコード