賃貸マンション
THE PREMIUM CUBE G 東中野 落合駅 2K 賃貸(賃貸マンション・アパート)
| 賃料 |
13.9万円 (管理費等:15000円) |
| 礼金・敷金 |
1ヶ月 / 1ヶ月 |
保証金/敷引・償却 |
なし / - |
| 交通 |
|
| 所在地 |
東京都中野区東中野5周辺地図
|
| 間取り |
2K |
専有面積 |
25.5m2 |
| 築年月 |
2023年11月 |
築年数 |
築2年1ヶ月 |
- おすすめポイント
- 当物件はオンラインまたはお近くの店舗でご相談お申込を承ります 室内見学承ります・お客様のご都合に合わせてオンラインまたはお近くの店舗でご提案可・初期費用分割払い可・クレジットカード利用可・引越業者割引・初期費用のお見積や入居日のご相談もお気軽にお問合せください
| 賃料 |
13.9万円 |
管理費等 |
15000円 |
| 敷金 |
1ヶ月 |
礼金 |
1ヶ月 |
| 保証金 |
なし |
敷引・償却 |
- |
| 更新料 |
- |
契約期間 |
|
| カード決済 |
初期費用カード決済可 |
| 所在地 |
東京都中野区東中野5周辺地図
|
| 交通 |
- 東京メトロ東西線 落合駅 徒歩9分乗換案内
- JR中央線 東中野駅 徒歩8分乗換案内
- 都営大江戸線 中井駅 徒歩14分乗換案内
|
| 建物名 |
THE PREMIUM CUBE G 東中野 |
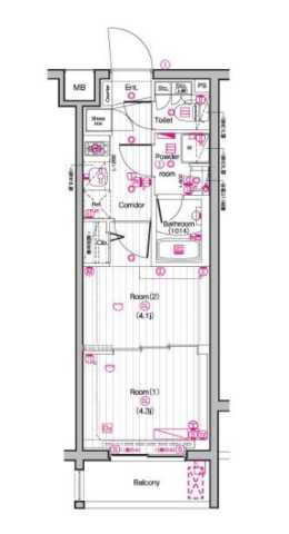
| 間取り |
2K(洋4.3 洋4.1) |
築年月(築年数) |
2023年11月(築2年1ヶ月)
|
| 専有面積 |
25.5㎡ |
所在階/階数 |
2階/5階建
|
| 建物構造 |
RC |
方位 |
北西 |
| 現況 |
|
駐車場 |
無 近くの駐車場を探す
|
| 入居可能時期 |
相談 |
住宅保険 |
あり 2年 23000円 |
| 情報提供元 |
SUUMO[030H100468826897] |
情報公開日 |
|
| 情報更新日 |
|
次回更新予定日 |
随時 |
設備など
| 2階以上 |
○ |
最上階 |
- |
角部屋 |
- |
| 駐車場(近隣含) |
- |
エアコン付き |
○ |
バス・トイレ別 |
○ |
| 室内洗濯機置き場 |
○ |
追焚機能 |
- |
オートロック付き |
○ |
| モニタ付インターホン |
○ |
フローリング |
○ |
バルコニー |
○ |
| ガスコンロ可 |
○ |
浴室乾燥機 |
○ |
24時間セキュリティ |
- |
| 宅配ボックス |
○ |
ペット相談可 |
○ |
二人入居可 |
○ |
| 設備 |
冷房・暖房・エアコン・オートロック・バルコニー・バス・トイレ別・トイレ・収納スペース・洗濯機置場・洗面所・エレベーター・CATV・BS端子・フローリング・浴室乾燥機・ガスコンロ可・温水洗浄便座・システムキッチン・モニタ付インターホン・宅配BOX・駐輪場・クローゼット・CS・衣類乾燥機・都市ガス・浴トイレ別・防犯カメラ・洗面所独立・バイク置き場・ペット用施設・コンロ2口以上・シューズボックス・インターネット無料・インターネット対応・室内洗濯機置き場 |
| リフォーム履歴 |
- |
| リノベーション履歴 |
- |
| 備考 |
償却金1ヶ月/ペット飼育の場合敷金1.00ヶ月(総額)/鍵交換代金2.2万円 事務手数料(初回のみ)1.1万円 24H安心サポート(初回のみ)2.14万円 室内抗菌処理代(初回のみ)1.76万円/保証会社利用必:初回:月額総家賃の50%~/二人入居可/ペット相談/事務所利用不可/当物件は「住まいのリライフ」で取り扱っております。リライフは首都圏25店舗のネットワークで豊富な物件情報をお客様へご提供します。当物件に類似した未公開物件なども合わせてご提案可能です。お気軽にお問合せください。ペット飼育1匹の場合共益費+3500円追加、2匹の場合共益費+3500円追加及び敷金1ヶ月追加(償却)違約金有:1年未満解約時:総賃料1ヶ月分/バストイレ別/バルコニー/エアコン/ガスコンロ対応/クロゼット/フローリング/TVインターホン/浴室乾燥機/オートロック/室内洗濯置/シューズボックス/システムキッチン/温水洗浄便座/脱衣所/エレベーター/洗面所独立/2口コンロ/駐輪場/宅配ボックス/CATV/BS・CS/防犯カメラ/ペット相談/分譲賃貸/保証人不要/二人入居相談/バイク置場/全居室フローリング/デザイナーズ/エアコン2台/ネット使用料不要/エアコン全室/24時間換気システム/ペット専用設備/エレベーター2基/3駅以上利用可/3沿線以上利用可/24時間ゴミ出し可/敷地内ごみ置き場/都市ガス/玄関収納/LAN/保証会社利用可/初期費用カード決済可/いなげや 新宿小滝橋店(スーパー)まで305m/まいばすけっと 上落合店(スーパー)まで343m/ローソン 小滝橋店(コンビニ)まで338m/ミニストップ 北新宿4丁目店(コンビニ)まで366m/ココカラファイン 東中野5丁目店(ドラッグストア)まで304m/ポニークリーニング 小滝橋店(その他)まで445m |
| 特記事項 |
ペット相談可・二人入居可・分譲タイプ・デザイナーズ物件・保証人不要/代行 ・初期費用カード決済可 |
東京都中野区東中野5 周辺地図情報
※地図上に表示される物件の位置は付近住所に所在することを表すものであり、実際の物件所在地とは異なる場合がございます。
正確な物件所在地は、取扱い不動産会社にお問い合わせください。
不動産会社情報
| お問い合わせ先 |
商号:(株)リライフ高田馬場店 免許番号:国土交通大臣(1)第10792号 所在地:東京都新宿区高田馬場2-14-8 竹内ビル201 TEL:03-4216-0978 取引態様:仲介 管理コード:/B89265R350354 所属協会など:(公社)首都圏不動産公正取引協議会加盟、(公社)東京都宅地建物取引業協会会員
|
共有する |
|
人口などの統計情報
| 世帯数 |
207944世帯 |
| 人口総数 |
337377人 |
| 転入者数 |
36387人
- 転入率(人口1000人当たり)
- 107.85人
|
| 転出者数 |
31624人
- 転出率(人口1000人当たり)
- 93.73人
|
| 土地平均価格 |
- 住宅地
- 665091円/m2
- 商業地
- 1828545円/m2
|
結婚・育児の助成金
| 子育て関連の独自の取り組み |
(1)妊娠・出産・子育てトータルケア事業。妊産婦との面接や出産・育児に関する個別支援プランの提供等を実施。(2)ブックスタート事業。絵本を開く楽しい「体験」と「絵本」をセットで提供。トートバックに絵本2冊とリーフレットを入れて配布。(3)実質ひとり親家庭への子育て支援給付事業の実施。離婚調停中で離婚成立前から実質的にひとり親家庭となった家庭に対する金銭給付の実施。(4)リトルベビーハンドブックの作成。2,500グラム以下の低出生体重児等の子どもを育てる家庭にハンドブックを配布。(5)ひとり親家庭住宅支援。区内在住のひとり親または実質ひとり親が区内転居する場合の初期費用等を補助。(6)区立小・中学校の学校給食費の無償化及び区立学校在籍以外の学齢期の児童生徒への給食費相当の支援。 |
| 出産祝い |
なし |
| 公立保育所数 |
10所(うち0歳児保育を実施している保育所:8所) |
| 私立保育所数 |
83所(うち0歳児保育を実施している保育所:65所) |
| 保育所入所待機児童数 |
0人 |
| 認定こども園数 |
5園 |
預かり保育実施園数 |
公立:2園 私立:18園 |
| 学校給食 |
【小学校】完全給食【中学校】完全給食 |
| 公立中学校の学校選択制 |
未実施 |
| 子ども・学生等医療費助成<通院>対象年齢 |
18歳3月末まで |
子ども・学生等医療費助成<入院>対象年齢 |
18歳3月末まで |
中野区の治安・ごみ収集情報
公共料金・インフラ
| ガス料金(22m3使用した場合の月額) |
東京瓦斯株式会社(東京地区等)3926円 |
| 水道料金(口径20mmで20m3の月額) |
東京都水道局2816円 |
| 下水道料金(20m3を使用した場合の月額) |
東京都下水道局2068円 |
| 下水道普及率 |
100.0% |
安心・安全
| 建物火災出火件数 |
57件
- 人口10000人当たり
- 1.65件
|
| 刑法犯認知件数 |
1976件
- 人口1000人当たり
- 5.73件
|
| ハザード・防災マップ |
あり |
医療
| 一般病院総数 |
8ヶ所 |
| 一般診療所総数 |
325ヶ所 |
| 小児科医師数 |
59人
- 小児人口10000人当たり
- 19.54人
|
| 産婦人科医師数 |
17人
- 15~49歳女性人口1万人当たり
- 2.06人
|
| 介護保険料基準額(月額) |
6274円 |
ごみ
| 家庭ごみ収集(可燃ごみ) |
無料
|
| 家庭ごみの分別方式 |
3分別6種〔燃やすごみ 陶器・ガラス・金属ごみ 資源(びん、缶、ペットボトル、プラスチック製容器包装と製品プラスチック)〕 拠点回収:紙パック 古布 乾電池 小型充電式電池 廃蛍光管 廃食用油 ※新聞 雑誌 ダンボール等の古紙及び古着 古布は町会・自治会等が実施する「集団回収」で回収 |
| 家庭ごみの戸別収集 |
一部実施(自らごみを集積所まで持ち出すことが困難で、訪問介護や親族、ボランティア等の協力が得られない、身体障がい者、要支援者や要介護者だけで構成される世帯に訪問収集を実施) |
| 粗大ごみ収集 |
あり
|
| 生ごみ処理機助成金制度 |
なし
- 上限金額
- -
- 上限比率
- -
|
※行政機関により公表していない地域及びデータがございます。東京23区以外の政令指定都市は、市全体のデータとして表示しています。
※提供データには細心の注意を払っておりますが、調査後に変更がある場合があります。 最新の情報につきましては各市区役所までお問い合わせいただくか、自治体HPなどをご確認ください。
中野区の暮らしデータをもっと見る