アプリで簡単 物件探し 通知 共有 アプリならではの機能を使ってみる
賃貸一戸建て

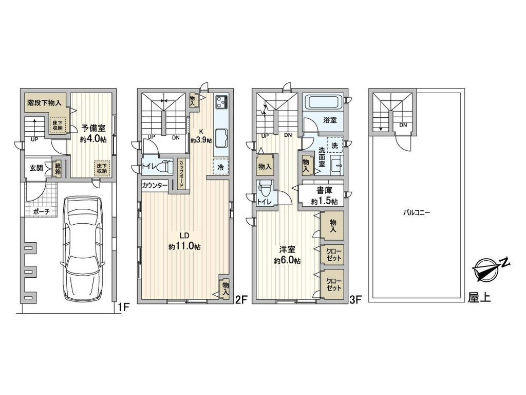
駒形2丁目戸建 浅草駅 1SLDK 賃貸(賃貸マンション・アパート)

情報提供元
SUUMO
駒形2丁目戸建 リビングダイニング約11.0帖
賃料 35万円  (管理費等:なし)
礼金・敷金 1ヶ月 / 2ヶ月 保証金/敷引・償却 なし / -
交通
所在地 東京都台東区駒形2周辺地図
間取り 1SLDK 専有面積 78.09m2
築年月 2012年9月 築年数 築13年4ヶ月
おすすめポイント
■トイレ2箇所(2F・3F)・浴室(3F)■全居室窓有り ■インターネット利用・TV視聴は別途契約、費用負担有■駐車場1台付き。*サイズは必ず現地にてお確かめください。■事務所利用相談
お問い合わせ先
三井のリハウス上野センター三井不動産リアルティ(株)
お問い合わせ先
三井のリハウス上野センター三井不動産リアルティ(株)

詳細情報

賃料 35万円 管理費等 なし
敷金 2ヶ月 礼金 1ヶ月
保証金 なし 敷引・償却 -
更新料 - 契約期間 定期借家 4年
カード決済 -
所在地 東京都台東区駒形2周辺地図
交通
建物名 駒形2丁目戸建 
間取り 1SLDK(洋6.0 LDK14.9) 築年月(築年数) 2012年9月(築13年4ヶ月)
専有面積 78.09㎡ 所在階/階数 3階建
建物構造 軽量鉄骨  方位 南東 
現況   駐車場 有 無料
入居可能時期 相談 住宅保険 あり 1年 12700円
情報提供元 SUUMO[030H100476259830] 情報公開日
情報更新日 次回更新予定日 随時

設備など

2階以上 - 最上階 - 角部屋 -
駐車場(近隣含) エアコン付き バス・トイレ別
室内洗濯機置き場 追焚機能 オートロック付き -
モニタ付インターホン フローリング バルコニー -
ガスコンロ可 浴室乾燥機 24時間セキュリティ -
宅配ボックス - ペット相談可 - 二人入居可 -
設備 冷房・暖房・エアコン・バス・トイレ別・トイレ・収納スペース・洗濯機置場・洗面所・追焚機能・フローリング・浴室乾燥機・ガスコンロ可・温水洗浄便座・システムキッチン・モニタ付インターホン・風呂・床下収納・衣類乾燥機・浄水器・浴トイレ別・洗面所独立・シューズボックス・室内洗濯機置き場 
リフォーム履歴 -
リノベーション履歴 -
備考 定期借家04年00ヶ月/事務所利用相談/■退去時清掃費用借主負担特約:220,000円(税込)■保証会社利用必須(保証料:初回賃料等の50%、賃料収納月以降1,000円/月■安心入居サポート月770円■室内・バルコニー・建物敷地内すべて禁煙/バストイレ別/エアコン/ガスコンロ対応/フローリング/TVインターホン/浴室乾燥機/室内洗濯置/シューズボックス/システムキッチン/追焚機能浴室/温水洗浄便座/洗面所独立/洗面化粧台/浄水器/敷金2ヶ月/床下収納/事務所相談/2駅利用可/3沿線以上利用可/駅徒歩5分以内/東南向き/LDK12畳以上/礼金1ヶ月/セブン-イレブン 台東雷門2丁目店(コンビニ)まで500m/ファミリーマート駒形1丁目店(コンビニ)まで400m/まいばすけっと 雷門2丁目(スーパー)まで400m/オオゼキ浅草雷門店(スーパー)まで650m/雷門郵便局(郵便局)まで450m/銀座線浅草駅 改札口エレベーター(その他)まで350m 
特記事項 事務所使用可

省エネ性能

エネルギー消費性能 -
断熱性能 -
目安光熱費 -

東京都台東区駒形2 周辺地図情報

地図
※地図上に表示される物件の位置は付近住所に所在することを表すものであり、実際の物件所在地とは異なる場合がございます。
   正確な物件所在地は、取扱い不動産会社にお問い合わせください。
お問い合わせ先
三井のリハウス上野センター三井不動産リアルティ(株)

不動産会社情報

お問い合わせ先 商号:三井のリハウス上野センター三井不動産リアルティ(株)
免許番号:国土交通大臣(15)第777号
所在地:東京都台東区上野2-14-27 ヒューリック上野の森ビル8階
TEL:0078-60187075
取引態様:仲介
管理コード:4N625113
所属協会など:(公社)首都圏不動産公正取引協議会加盟、(一社)不動産流通経営協会会員
共有する
QRコード
お問い合わせ先
三井のリハウス上野センター三井不動産リアルティ(株)

    台東区の暮らしデータ

    人口などの統計情報

    世帯数 121557世帯
    人口総数 212388人
    転入者数 25608人
    転入率(人口1000人当たり)
    120.57人
    転出者数 19506人
    転出率(人口1000人当たり)
    91.84人
    土地平均価格
    住宅地
    741667円/m2
    商業地
    1973458円/m2

    結婚・育児の助成金

    子育て関連の独自の取り組み (1)弱視等治療用眼鏡助成(9歳未満の児童が弱視等の治療用眼鏡を修理した場合及び保険で認められない期間に買い換えた場合、当該費用の一部を助成)。(2)にぎやか家庭応援プラン(第3子以降のお子さんの出生、小学校・中学校入学時に3万円相当のお祝品を贈呈)。(3)バスレクリエーション(ひとり親家庭を対象に日帰りのバスハイクを年2回実施)。
    出産祝い あり
    公立保育所数 11所(うち0歳児保育を実施している保育所:8所)
    私立保育所数 36所(うち0歳児保育を実施している保育所:26所)
    保育所入所待機児童数 0人
    認定こども園数 5園 預かり保育実施園数 公立:10園 私立:7園
    学校給食 【小学校】完全給食【中学校】完全給食
    公立中学校の学校選択制 実施
    子ども・学生等医療費助成<通院>対象年齢 18歳3月末まで 子ども・学生等医療費助成<入院>対象年齢 18歳3月末まで

    台東区の治安・ごみ収集情報

    公共料金・インフラ

    ガス料金(22m3使用した場合の月額) 東京瓦斯株式会社(東京地区等)3926円
    水道料金(口径20mmで20m3の月額) 東京都水道局2816円
    下水道料金(20m3を使用した場合の月額) 東京都下水道局2068円
    下水道普及率 100.0%

    安心・安全

    建物火災出火件数 65件
    人口10000人当たり
    3.07件
    刑法犯認知件数 2805件
    人口1000人当たり
    13.27件
    ハザード・防災マップ あり

    医療

    一般病院総数 7ヶ所
    一般診療所総数 277ヶ所
    小児科医師数 28人
    小児人口10000人当たり
    15.85人
    産婦人科医師数 16人
    15~49歳女性人口1万人当たり
    3.13人
    介護保険料基準額(月額) 6900円

    ごみ

    家庭ごみ収集(可燃ごみ) 無料
    備考
    日量10kgを超える臨時のごみは有料。
    家庭ごみの分別方式 3分別10種〔可燃ごみ 不燃ごみ 資源(新聞、雑誌・雑がみ、段ボール、紙パック、ペットボトル、缶、びん、食品発泡トレイ・カップ)〕 拠点回収:古布 ビデオテープ類 乾電池 廃食油 紙パック 小型家電 蛍光灯
    家庭ごみの戸別収集 実施
    粗大ごみ収集 あり
    備考
    有料。一般家庭に限る。
    生ごみ処理機助成金制度 なし
    上限金額
    -
    上限比率
    -
    暮らしデータ提供元:生活ガイド.com
    ※行政機関により公表していない地域及びデータがございます。東京23区以外の政令指定都市は、市全体のデータとして表示しています。
    ※提供データには細心の注意を払っておりますが、調査後に変更がある場合があります。 最新の情報につきましては各市区役所までお問い合わせいただくか、自治体HPなどをご確認ください。

    台東区内の各駅の住みやすさ

    他のエリアから探す

    台東区の詳細地域から賃貸物件を探す

    秋葉原浅草浅草橋池之端今戸入谷上野上野桜木雷門北上野清川蔵前小島寿駒形下谷千束台東鳥越西浅草日本堤根岸橋場花川戸東浅草東上野松が谷三筋三ノ輪元浅草谷中柳橋竜泉

    近辺の市区から探す

    川口市草加市浦安市千代田区中央区港区新宿区文京区墨田区江東区品川区目黒区渋谷区中野区豊島区北区荒川区板橋区練馬区足立区葛飾区江戸川区

    周辺の駅から探す

    都営地下鉄浅草線
    押上本所吾妻橋浅草蔵前浅草橋東日本橋人形町
    東京メトロ銀座線
    浅草田原町稲荷町上野上野広小路
    都営地下鉄大江戸線
    春日本郷三丁目上野御徒町新御徒町蔵前両国森下清澄白河門前仲町

    東京都台東区で他のジャンルから探す


    掲載情報の著作権は提供元企業等に帰属します。
    Copyright:(C) 2025 Recruit Co., Ltd.
    アプリで簡単 物件探し 大手不動産サイトの情報から一括検!プッシュ通知で物件を見逃さない
    App Storeからダウンロード Google Playで手に入れよう QRコード