賃貸マンション
ガリシアヒルズ六本木 六本木一丁目駅 1K 賃貸(賃貸マンション・アパート)
 
  
    
      | 賃料 | 15万円  (管理費等:20000円) | 
    
      | 礼金・敷金 | なし / 2ヶ月 | 保証金/敷引・償却 | なし / 1ヶ月 | 
    
      | 交通 |  | 
    
      | 所在地 | 東京都港区六本木2周辺地図 | 
    
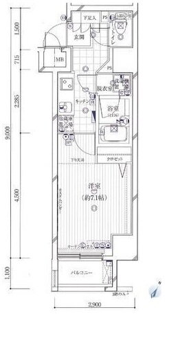
      | 間取り | 1K | 専有面積 | 24.65m2 | 
    
      | 築年月 | 2005年11月 | 築年数 | 築20年1ヶ月 | 
  
 
 
- おすすめポイント
- ♪現地お待ち合わせにてご案内可。まずはお問合わせ下さい!! 六本木・青山・麻布・赤坂・表参道エリアの物件は是非東京プレミアム不動産へお任せください。未掲載物件も多くご用意していますのでお気軽にお問い合わせください。
| 賃料 | 15万円 | 管理費等 | 20000円 | 
| 敷金 | 2ヶ月 | 礼金 | なし | 
| 保証金 | なし | 敷引・償却 | 1ヶ月 | 
| 更新料 | - | 契約期間 |  | 
| カード決済 | - | 
| 所在地 | 東京都港区六本木2周辺地図 | 
| 交通 | 
  東京メトロ南北線 六本木一丁目駅 徒歩1分乗換案内東京メトロ日比谷線 六本木駅 徒歩6分乗換案内東京メトロ千代田線 赤坂駅 徒歩10分乗換案内 | 
| 建物名 | ガリシアヒルズ六本木 | 
| 間取り | 1K(洋7.1) | 築年月(築年数) | 2005年11月(築20年1ヶ月) | 
| 専有面積 | 24.65㎡ | 所在階/階数 | 13階/15階建 | 
| 建物構造 | RC | 方位 | 南東 | 
| 現況 |  | 駐車場 | 無    近くの駐車場を探す | 
| 入居可能時期 | 相談 | 住宅保険 | あり 2年 18000円 | 
| 情報提供元 | SUUMO[030H100470356984] | 情報公開日 |  | 
| 情報更新日 |  | 次回更新予定日 | 随時 | 
設備など
| 2階以上 | ○ | 最上階 | - | 角部屋 | - | 
| 駐車場(近隣含) | - | エアコン付き | ○ | バス・トイレ別 | ○ | 
| 室内洗濯機置き場 | ○ | 追焚機能 | ○ | オートロック付き | ○ | 
| モニタ付インターホン | ○ | フローリング | ○ | バルコニー | ○ | 
| ガスコンロ可 | ○ | 浴室乾燥機 | ○ | 24時間セキュリティ | - | 
| 宅配ボックス | ○ | ペット相談可 | ○ | 二人入居可 | ○ | 
| 設備 | 冷房・暖房・エアコン・オートロック・バルコニー・バス・トイレ別・トイレ・収納スペース・洗濯機置場・洗面所・エレベーター・CATV・BS端子・追焚機能・フローリング・浴室乾燥機・ガスコンロ可・温水洗浄便座・システムキッチン・モニタ付インターホン・宅配BOX・駐輪場・風呂・クローゼット・CS・衣類乾燥機・都市ガス・浴トイレ別・防犯カメラ・オートバス・コンロ2口以上・シューズボックス・インターネット対応・室内洗濯機置き場 | 
| リフォーム履歴 | - | 
| リノベーション履歴 | - | 
| 備考 | 24時間サポート費/退去時清掃費借主負担/保証会社利用必:指定保証会社利用要(初回保証料70%~、次年度以降1万円/年)/単身者可/二人入居可/子供可/ペット相談/■分譲マンション■オートロック■宅配ボックス■インターネット光回線■駐輪場■トランクルーム■1年未満の解約の場合、短期解約違約金1ヶ月■2ヶ月前解約通知/バストイレ別/バルコニー/エアコン/クロゼット/フローリング/TVインターホン/浴室乾燥機/オートロック/室内洗濯置/シューズボックス/システムキッチン/温水洗浄便座/エレベーター/洗面化粧台/2口コンロ/駐輪場/宅配ボックス/CATV/光ファイバー/防犯カメラ/ペット相談/分譲賃貸/オートバス/保証人不要/全居室フローリング/ガスレンジ付/デザイナーズ/CS/ダブルロックキー/24時間換気システム/耐火構造/耐震構造/3駅以上利用可/3沿線以上利用可/駅徒歩5分以内/24時間ゴミ出し可/敷地内ごみ置き場/都市ガス/BS/東京ミッドタウン(ショッピングセンター)まで738m/福島屋六本木店(スーパー)まで417m/セブンイレブン六本木ティーキューブ店(コンビニ)まで295m/ココカラファイン赤坂二丁目店(ドラッグストア)まで526m/アーク森ビル内郵便局(郵便局)まで476m/ANAインターコンチネンタルホテル(その他)まで550m | 
| 特記事項 | ペット相談可・二人入居可・分譲タイプ・デザイナーズ物件・保証人不要/代行 | 
東京都港区六本木2 周辺地図情報
※地図上に表示される物件の位置は付近住所に所在することを表すものであり、実際の物件所在地とは異なる場合がございます。
   正確な物件所在地は、取扱い不動産会社にお問い合わせください。
 
 
不動産会社情報
| お問い合わせ先 | 商号:東京プレミアム不動産(株) 免許番号:東京都知事(4)第91837号
 所在地:東京都港区南青山7-14-6 南青山TCビル5階
 TEL:03-6427-9248
 取引態様:仲介
 管理コード:
 所属協会など:(公社)首都圏不動産公正取引協議会加盟、(公社)東京都宅地建物取引業協会会員
 | 共有する |  | 
  
  
    人口などの統計情報
    
      
        
          | 世帯数 | 146084世帯 | 
        
          | 人口総数 | 266306人 | 
        
          | 転入者数 | 29747人 
 
              転入率(人口1000人当たり)111.70人 | 
        
          | 転出者数 | 25086人 
 
              転出率(人口1000人当たり)94.20人 | 
        
          | 土地平均価格 | 
              住宅地2313000円/m2商業地6411852円/m2 | 
      
    
   
    
    結婚・育児の助成金
    
      
        
          | 子育て関連の独自の取り組み | (1)ひとり親世帯等の経済的負担や家事負担が軽減できるよう、提供する食料品を掲載したカタログを送付し、利用者が選択した食料品を自宅に配送(2)在宅子育て家庭等の一時保育ニーズに対応するため、小規模保育事業所の空き定員を活用した「余裕活用型一時保育」を実施。(3)延長保育料の上限額の設定し、常時延長保育を利用しなければならない世帯の経済的な負担を軽減。(4)未就学児が2人以上いる世帯に、子どもタクシー利用券を支給(5)出産費用助成の算出上限額を81万円に増額(6)全ての子育て家庭が安心して生き生きと子育てができるよう、0歳から高校生世代までのお子さんを対象に、臨時に港区商店街振興組合連合会の電子スマイル商品券を「港区子育て応援分」として、子ども一人当たり5万円配付。 | 
        
          | 出産祝い | あり | 
        
          | 公立保育所数 | 21所(うち0歳児保育を実施している保育所:21所) | 
        
          | 私立保育所数 | 62所(うち0歳児保育を実施している保育所:62所) | 
        
          | 保育所入所待機児童数 | 0人 | 
        
          | 認定こども園数 | 1園 | 預かり保育実施園数 | 公立:12園 私立:6園 | 
        
          | 学校給食 | 【小学校】完全給食【中学校】完全給食 | 
        
          | 公立中学校の学校選択制 | 実施 | 
        
          | 子ども・学生等医療費助成<通院>対象年齢 | 18歳3月末まで | 子ども・学生等医療費助成<入院>対象年齢 | 18歳3月末まで | 
      
    
   
    
    港区の治安・ごみ収集情報
    公共料金・インフラ
    
      
        
          | ガス料金(22m3使用した場合の月額) | 東京瓦斯株式会社(東京地区等)3926円 | 
        
          | 水道料金(口径20mmで20m3の月額) | 東京都水道局2816円 | 
        
          | 下水道料金(20m3を使用した場合の月額) | 東京都下水道局2068円 | 
        
          | 下水道普及率 | 100.0% | 
      
    
    安心・安全
    
      
        
          | 建物火災出火件数 | 225件 
              人口10000人当たり8.64件 | 
        
          | 刑法犯認知件数 | 2980件 
              人口1000人当たり11.44件 | 
        
          | ハザード・防災マップ | あり | 
      
    
    医療
    
      
        
          | 一般病院総数 | 13ヶ所 | 
        
          | 一般診療所総数 | 953ヶ所 | 
        
          | 小児科医師数 | 144人 
              小児人口10000人当たり39.84人 | 
        
          | 産婦人科医師数 | 191人 
              15~49歳女性人口1万人当たり28.68人 | 
        
          | 介護保険料基準額(月額) | 6400円 | 
      
    
    ごみ
    
      
        
          | 家庭ごみ収集(可燃ごみ) | 無料 | 
        
          | 家庭ごみの分別方式 | 4分別7種〔可燃ごみ 不燃ごみ 資源プラスチック 資源(ペットボトル、びん、かん、古紙[新聞、ダンボール、紙パック、雑誌、その他再生可能紙])〕 | 
        
          | 家庭ごみの戸別収集 | 一部実施(65歳以上の高齢者、介護保険法[1997年法律第123号]に規定する要介護認定を受けている方、身体障害者手帳、愛の手帳又は精神障害者保健福祉手帳の交付を受けている方、難病の患者に対する医療等に関する法律[2014年法律第50号]第5条第1項に規定する指定難病又は東京都難病患者等に係る医療費等の助成に関する規則[2000年東京都規則第94号]別表第1の第2類に定める特殊疾病に罹患している方、母子健康手帳の交付を受けた妊婦の方、産後1年を経過する月の前月末日までの子どもを養育する者ひとり親世帯の方) | 
        
          | 粗大ごみ収集 | あり | 
        
          | 生ごみ処理機助成金制度 | あり 
              上限金額20000円上限比率50.0% | 
      
    
   
  
      
    
      ※行政機関により公表していない地域及びデータがございます。東京23区以外の政令指定都市は、市全体のデータとして表示しています。
      
※提供データには細心の注意を払っておりますが、調査後に変更がある場合があります。 最新の情報につきましては各市区役所までお問い合わせいただくか、自治体HPなどをご確認ください。
    
      港区の暮らしデータをもっと見る