賃貸マンション
東京都品川区西大井1 西大井駅 1K 賃貸(賃貸マンション・アパート)
| 賃料 |
18.1万円 (管理費等:10000円) |
| 礼金・敷金 |
1ヶ月 / 1ヶ月 |
保証金/敷引・償却 |
なし / - |
| 交通 |
|
| 所在地 |
東京都品川区西大井1周辺地図
|
| 間取り |
1K |
専有面積 |
48.31m2 |
| 築年月 |
2003年6月 |
築年数 |
築22年6ヶ月 |
- おすすめポイント
- ♪現地お待ち合わせにてご案内可♪まずはお問合わせください♪♪ 品川エリアの物件は是非東京プレミアム不動産へお任せください。未掲載物件も多くご用意していますのでお気軽にお問い合わせください。
| 賃料 |
18.1万円 |
管理費等 |
10000円 |
| 敷金 |
1ヶ月 |
礼金 |
1ヶ月 |
| 保証金 |
なし |
敷引・償却 |
- |
| 更新料 |
- |
契約期間 |
|
| カード決済 |
- |
| 所在地 |
東京都品川区西大井1周辺地図
|
| 交通 |
- JR横須賀線 西大井駅 徒歩1分乗換案内
- 都営浅草線 中延駅 徒歩14分乗換案内
- 東急大井町線 戸越公園駅 徒歩14分乗換案内
|
| 建物名 |
|
| 間取り |
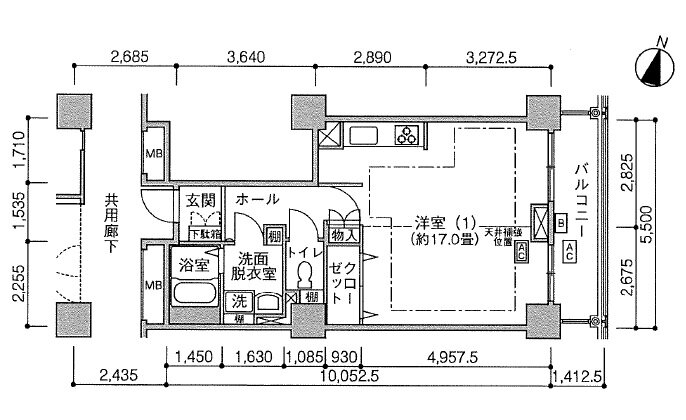
1K(洋17) |
築年月(築年数) |
2003年6月(築22年6ヶ月)
|
| 専有面積 |
48.31㎡ |
所在階/階数 |
15階/地上28階地下1階建
|
| 建物構造 |
RC |
方位 |
東 |
| 現況 |
|
駐車場 |
有 35,000円 |
| 入居可能時期 |
相談 |
住宅保険 |
あり 2年 20000円 |
| 情報提供元 |
SUUMO[030H100469191315] |
情報公開日 |
|
| 情報更新日 |
|
次回更新予定日 |
随時 |
設備など
| 2階以上 |
○ |
最上階 |
- |
角部屋 |
- |
| 駐車場(近隣含) |
○ |
エアコン付き |
○ |
バス・トイレ別 |
○ |
| 室内洗濯機置き場 |
○ |
追焚機能 |
○ |
オートロック付き |
○ |
| モニタ付インターホン |
- |
フローリング |
○ |
バルコニー |
○ |
| ガスコンロ可 |
○ |
浴室乾燥機 |
○ |
24時間セキュリティ |
- |
| 宅配ボックス |
○ |
ペット相談可 |
- |
二人入居可 |
○ |
| 設備 |
冷房・暖房・エアコン・オートロック・バルコニー・バス・トイレ別・トイレ・収納スペース・洗濯機置場・洗面所・エレベーター・CATV・追焚機能・フローリング・浴室乾燥機・ガスコンロ可・温水洗浄便座・システムキッチン・宅配BOX・駐輪場・風呂・クローゼット・床暖房・衣類乾燥機・都市ガス・浴トイレ別・車庫・防犯カメラ・オートバス・洗面所独立・コンロ2口以上・シューズボックス・インターネット対応・室内洗濯機置き場 |
| リフォーム履歴 |
- |
| リノベーション履歴 |
- |
| 備考 |
鍵交換代/退去時クリーニング代72,000円(税別)/保証会社利用必:保証料:賃料等の0.5ヶ月分(最低保証料2万円)月額保証料1.2%/単身者可/二人入居可/子供可/事務所利用不可/機械式駐/☆駅前タワーマンション☆地下機械式駐車場空きあり☆来客用駐車場あり☆管理事務所/バストイレ別/バルコニー/エアコン/クロゼット/フローリング/浴室乾燥機/オートロック/室内洗濯置/シューズボックス/システムキッチン/追焚機能浴室/温水洗浄便座/エレベーター/洗面所独立/駐輪場/宅配ボックス/CATV/光ファイバー/3口以上コンロ/防犯カメラ/オートバス/保証人不要/ガスレンジ付/駅まで平坦/床暖房/24時間換気システム/エレベーター2基/耐火構造/耐震構造/駅前/駅徒歩5分以内/タワー型マンション/24時間ゴミ出し可/敷地内ごみ置き場/地下車庫/都市ガス/マルエツプチ西大井駅前店(スーパー)まで135m/ファミリーマート西大井駅前店(コンビニ)まで65m/セブンイレブン品川西大井駅前店(コンビニ)まで102m/マツモトキヨシ西大井駅前店(ドラッグストア)まで105m/マクドナルド西大井駅前店(飲食店)まで55m/キッチンオリジン西大井店(飲食店)まで103m |
| 特記事項 |
二人入居可・保証人不要/代行 |
東京都品川区西大井1 周辺地図情報
※地図上に表示される物件の位置は付近住所に所在することを表すものであり、実際の物件所在地とは異なる場合がございます。
正確な物件所在地は、取扱い不動産会社にお問い合わせください。
不動産会社情報
| お問い合わせ先 |
商号:東京プレミアム不動産(株) 免許番号:東京都知事(4)第91837号 所在地:東京都港区南青山7-14-6 南青山TCビル5階 TEL:03-6427-9248 取引態様:仲介 管理コード: 所属協会など:(公社)首都圏不動産公正取引協議会加盟、(公社)東京都宅地建物取引業協会会員
|
共有する |
|
人口などの統計情報
| 世帯数 |
237447世帯 |
| 人口総数 |
408280人 |
| 転入者数 |
35306人
- 転入率(人口1000人当たり)
- 86.47人
|
| 転出者数 |
30642人
- 転出率(人口1000人当たり)
- 75.05人
|
| 土地平均価格 |
- 住宅地
- 966818円/m2
- 商業地
- 1410833円/m2
|
結婚・育児の助成金
| 子育て関連の独自の取り組み |
(1)特別保育(延長保育・休日保育・年末保育・病後児保育・病児保育)の実施。(2)育児休業明け入園予約制度。(3)短時間就労対応型保育。(4)子育てかんがるープラン(子育てプランを作成する支援)。(5)幼保一体施設。(6)園児の保護者による一日保育士体験。(7)9年間の一貫したカリキュラム(品川区立学校教育要領)。(8)すまいるスクール。(9)保育園・幼稚園・小学校の保幼小ジョイント事業。(10)しながわこどもぽけっと。(11)産後の家事・育児支援のヘルパー等の利用助成。(12)区立学校における給食および補助教材費の無償化。特別支援学校給食費補助事業(13)多胎児家庭の家事・育児支援のヘルパー等の利用助成。(14)医療的ケア児受入れ(常時の人工呼吸器を除く)。 |
| 出産祝い |
あり |
| 公立保育所数 |
41所(うち0歳児保育を実施している保育所:32所) |
| 私立保育所数 |
98所(うち0歳児保育を実施している保育所:94所) |
| 保育所入所待機児童数 |
0人 |
| 認定こども園数 |
11園 |
預かり保育実施園数 |
公立:9園 私立:16園 |
| 学校給食 |
【小学校】完全給食【中学校】完全給食 |
| 公立中学校の学校選択制 |
実施(新入学時のみ自由選択制により実施) |
| 子ども・学生等医療費助成<通院>対象年齢 |
18歳3月末まで |
子ども・学生等医療費助成<入院>対象年齢 |
18歳3月末まで |
品川区の治安・ごみ収集情報
公共料金・インフラ
| ガス料金(22m3使用した場合の月額) |
東京瓦斯株式会社(東京地区等)3926円 |
| 水道料金(口径20mmで20m3の月額) |
東京都水道局2816円 |
| 下水道料金(20m3を使用した場合の月額) |
東京都下水道局2068円 |
| 下水道普及率 |
100.0% |
安心・安全
| 建物火災出火件数 |
106件
- 人口10000人当たり
- 2.51件
|
| 刑法犯認知件数 |
2146件
- 人口1000人当たり
- 5.08件
|
| ハザード・防災マップ |
あり |
医療
| 一般病院総数 |
15ヶ所 |
| 一般診療所総数 |
498ヶ所 |
| 小児科医師数 |
123人
- 小児人口10000人当たり
- 26.07人
|
| 産婦人科医師数 |
75人
- 15~49歳女性人口1万人当たり
- 7.59人
|
| 介護保険料基準額(月額) |
6500円 |
ごみ
| 家庭ごみ収集(可燃ごみ) |
無料
|
| 家庭ごみの分別方式 |
3分別14種〔燃やすごみ 陶器・ガラス・金属ごみ 資源(製品プラスチック・プラスチック製容器包装、ペットボトル、飲食用びん、飲食用缶、新聞、段ボール、雑誌、紙パック、雑がみ、蛍光灯、水銀体温計・水銀血圧計、乾電池)〕 拠点回収:資源4種(古着・古布 廃食用油 不用園芸土 小型家電) |
| 家庭ごみの戸別収集 |
実施 |
| 粗大ごみ収集 |
あり
|
| 生ごみ処理機助成金制度 |
あり
- 上限金額
- 20000円
- 上限比率
- 33.3%
|
※行政機関により公表していない地域及びデータがございます。東京23区以外の政令指定都市は、市全体のデータとして表示しています。
※提供データには細心の注意を払っておりますが、調査後に変更がある場合があります。 最新の情報につきましては各市区役所までお問い合わせいただくか、自治体HPなどをご確認ください。
品川区の暮らしデータをもっと見る