アプリで簡単 物件探し 通知 共有 アプリならではの機能を使ってみる
賃貸マンション

グリーンマンション 坂戸駅 1LDK 賃貸(賃貸マンション・アパート)

情報提供元
SUUMO
グリーンマンション
賃料 4.9万円  (管理費等:2000円)
礼金・敷金 なし / 1ヶ月 保証金/敷引・償却 なし / -
交通
所在地 埼玉県坂戸市緑町周辺地図
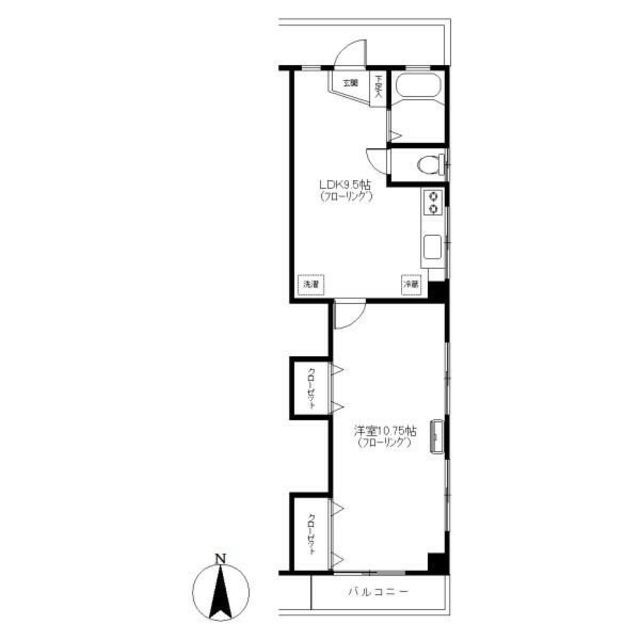
間取り 1LDK 専有面積 37.66m2
築年月 1979年3月 築年数 築46年10ヶ月
おすすめポイント
坂戸駅から徒歩2分☆★駅近の広いお部屋に住みたい人必見!! 2DKを1LDKにリフォーム済♪家具の配置がしやすい広々とした洋室10.75帖。安心してお部屋をお探しできるよう親切・丁寧にご紹介する事を心掛けております。まずはお気軽にお電話下さい♪
お問い合わせ先
ハウスルーム坂戸店(株)トラストワン
お問い合わせ先
ハウスルーム坂戸店(株)トラストワン

詳細情報

賃料 4.9万円 管理費等 2000円
敷金 1ヶ月 礼金 なし
保証金 なし 敷引・償却 -
更新料 - 契約期間
カード決済 -
所在地 埼玉県坂戸市緑町周辺地図
交通
建物名 グリーンマンション 
間取り 1LDK(洋10.7 LDK9.5) 築年月(築年数) 1979年3月(築46年10ヶ月)
専有面積 37.66㎡ 所在階/階数 1階/4階建
建物構造 RC  方位 南 
現況   駐車場 無    近くの駐車場を探す
入居可能時期 相談 住宅保険 あり 2年 20000円
情報提供元 SUUMO[030H100473485238] 情報公開日
情報更新日 次回更新予定日 随時

設備など

2階以上 - 最上階 - 角部屋
駐車場(近隣含) - エアコン付き バス・トイレ別
室内洗濯機置き場 追焚機能 - オートロック付き -
モニタ付インターホン フローリング バルコニー
ガスコンロ可 浴室乾燥機 - 24時間セキュリティ -
宅配ボックス - ペット相談可 - 二人入居可 -
設備 冷房・暖房・エアコン・バルコニー・バス・トイレ別・トイレ・収納スペース・洗濯機置場・フローリング・照明器具・ガスコンロ可・温水洗浄便座・出窓・モニタ付インターホン・クローゼット・プロパンガス・浴トイレ別・シューズボックス・室内洗濯機置き場 
リフォーム履歴 -
リノベーション履歴 -
備考 仲介手数料1.1ヶ月/普通借家2年/単身者限定/☆川越市、坂戸市、鶴ヶ島市、東松山市を中心に数多くのお部屋を取り扱いしております☆掲載物件以外にも多数ご紹介可能・契約の開始時期など全力で交渉致します!ご希望のお部屋を全力でお探しさせて頂きます★クレジットカード決済が可能な物件もお取り扱いあります★安心してお部屋をお探しできるよう親切・丁寧にご紹介する事を心掛けております。まずはお気軽にお電話下さい♪/バストイレ別/バルコニー/エアコン/ガスコンロ対応/クロゼット/フローリング/TVインターホン/室内洗濯置/シューズボックス/南向き/角住戸/温水洗浄便座/礼金不要/照明付/出窓/敷金1ヶ月/全居室フローリング/2沿線利用可/駅まで平坦/保証金不要/3駅以上利用可/駅徒歩5分以内/プロパンガス/ベルク坂戸八幡店まで951m/ウエルシア坂戸南町店まで382m/まるたけ坂戸店(スーパー)まで277m/デイリーヤマザキ坂戸緑町店(コンビニ)まで136m/ローソン坂戸駅北口店(コンビニ)まで241m/坂戸駅前郵便局(郵便局)まで100m/ミスタードーナツ坂戸駅前店(飲食店)まで344m/マルエツ坂戸店(スーパー)まで492m/賃貸戸数:20戸 
特記事項 出窓・角部屋

省エネ性能

エネルギー消費性能 -
断熱性能 -
目安光熱費 -

埼玉県坂戸市緑町 周辺地図情報

地図
※地図上に表示される物件の位置は付近住所に所在することを表すものであり、実際の物件所在地とは異なる場合がございます。
   正確な物件所在地は、取扱い不動産会社にお問い合わせください。
お問い合わせ先
ハウスルーム坂戸店(株)トラストワン

不動産会社情報

お問い合わせ先 商号:ハウスルーム坂戸店(株)トラストワン
免許番号:埼玉県知事(3)第22148号
所在地:埼玉県坂戸市南町 2-9恩田商店ビル2階
TEL:0492-80-5600
取引態様:仲介
管理コード:68840071
所属協会など:(公社)首都圏不動産公正取引協議会加盟、(公社)全日本不動産協会埼玉県本部会員
共有する
QRコード
お問い合わせ先
ハウスルーム坂戸店(株)トラストワン

    坂戸市の暮らしデータ

    人口などの統計情報

    世帯数 44495世帯
    人口総数 99527人
    転入者数 5322人
    転入率(人口1000人当たり)
    53.47人
    転出者数 4594人
    転出率(人口1000人当たり)
    46.16人
    土地平均価格
    住宅地
    67671円/m2
    商業地
    183000円/m2

    結婚・育児の助成金

    子育て関連の独自の取り組み -
    出産祝い なし
    公立保育所数 4所(うち0歳児保育を実施している保育所:4所)
    私立保育所数 10所(うち0歳児保育を実施している保育所:10所)
    保育所入所待機児童数 0人
    認定こども園数 4園 預かり保育実施園数 公立:- 私立:7園
    学校給食 【小学校】完全給食【中学校】完全給食
    公立中学校の学校選択制 未実施
    子ども・学生等医療費助成<通院>対象年齢 18歳3月末まで 子ども・学生等医療費助成<入院>対象年齢 18歳3月末まで

    坂戸市の治安・ごみ収集情報

    公共料金・インフラ

    ガス料金(22m3使用した場合の月額) 角栄ガス株式会社(川越・坂戸地区)4801円
    坂戸ガス株式会社4522円
    水道料金(口径20mmで20m3の月額) 坂戸、鶴ヶ島水道企業団2761円
    下水道料金(20m3を使用した場合の月額) 坂戸、鶴ヶ島下水道組合2343円
    下水道普及率 73.6%

    安心・安全

    建物火災出火件数 13件
    人口10000人当たり
    1.30件
    刑法犯認知件数 705件
    人口1000人当たり
    7.03件
    ハザード・防災マップ あり

    医療

    一般病院総数 5ヶ所
    一般診療所総数 64ヶ所
    小児科医師数 17人
    小児人口10000人当たり
    16.23人
    産婦人科医師数 7人
    15~49歳女性人口1万人当たり
    3.77人
    介護保険料基準額(月額) 4900円

    ごみ

    家庭ごみ収集(可燃ごみ) 無料
    備考
    指定ごみ袋は有料だが、袋代にごみ収集・処理料金等を含まず。
    家庭ごみの分別方式 10分別14種〔資源プラスチック 資源ペットボトル 資源カン 資源ビン 資源紙(新聞、雑誌・雑がみ、ダンボール、紙パック) 資源布(古着、古布) 燃やせるごみ 燃やさないごみ 廃乾電池・ライター 蛍光管類〕 拠点回収:使用済小型家電
    家庭ごみの戸別収集 一部実施(【ふれあい収集事業】ひとり暮らし等の身体障害者の方で、自らごみ等を所定の集積所へ出すことが困難で身近な人の協力が得られない方が対象)
    粗大ごみ収集 あり
    備考
    有料。戸別収集。事前申込制。品目ごとに手数料を設定。施設への直接持込みは50kgまで無料、50kgを超える分は10kgにつき100円。
    生ごみ処理機助成金制度 あり
    上限金額
    20000円
    上限比率
    50.0%
    暮らしデータ提供元:生活ガイド.com
    ※行政機関により公表していない地域及びデータがございます。東京23区以外の政令指定都市は、市全体のデータとして表示しています。
    ※提供データには細心の注意を払っておりますが、調査後に変更がある場合があります。 最新の情報につきましては各市区役所までお問い合わせいただくか、自治体HPなどをご確認ください。
    OCN×ドコモ光新規お申込みで合計最大137,280円相当おトク!特典の内訳・適用条件など詳細はこちら

    坂戸市内の各駅の住みやすさ

    他のエリアから探す

    坂戸市の詳細地域から賃貸物件を探す

    浅羽野芦山町伊豆の山町泉町大字浅羽大字厚川大字石井大字片柳大字栄大字坂戸大字中里大字堀込大字森戸鎌倉町三光町清水町末広町関間千代田鶴舞仲町中富町西坂戸にっさい花みず木花影町東坂戸日の出町本町溝端町緑町南町元町薬師町柳町八幡山田町

    近辺の市区から探す

    川越市東松山市狭山市鶴ヶ島市日高市入間郡毛呂山町入間郡越生町比企郡滑川町比企郡川島町比企郡吉見町比企郡鳩山町比企郡ときがわ町

    周辺の駅から探す

    東武鉄道東上線
    川越市霞ヶ関鶴ヶ島若葉坂戸北坂戸高坂東松山森林公園
    東武鉄道越生線
    坂戸一本松西大家川角武州長瀬

    マンションライブラリーを見る

    グリーンマンション

    埼玉県坂戸市で他のジャンルから探す


    掲載情報の著作権は提供元企業等に帰属します。
    Copyright:(C) 2025 Recruit Co., Ltd.
    アプリで簡単 物件探し 大手不動産サイトの情報から一括検!プッシュ通知で物件を見逃さない
    App Storeからダウンロード Google Playで手に入れよう QRコード