

 
| 賃料 | 5.2万円 | 管理費等 | 2000円 | 
|---|---|---|---|
| 敷金 | なし | 礼金 | なし | 
| 保証金 | なし | 敷引・償却 | - | 
| 更新料 | - | 契約期間 | |
| カード決済 | - | ||
| 所在地 | 群馬県高崎市大橋町周辺地図 | ||
| 交通 | |||
| 建物名 | ラ・ティエラ | ||
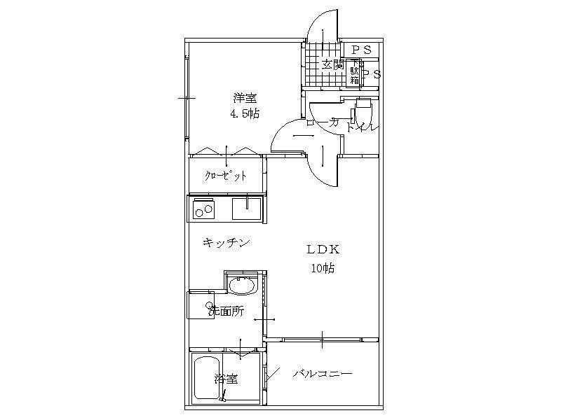
| 間取り | 1LDK(洋4.5 LDK10) | 築年月(築年数) | 2011年1月(築14年11ヶ月) | 
| 専有面積 | 35.92㎡ | 所在階/階数 | 2階/5階建 | 
| 建物構造 | 鉄骨 | 方位 | 南 | 
| 現況 | 駐車場 | 無 近くの駐車場を探す | |
| 入居可能時期 | 相談 | 住宅保険 | あり 2年 17000円 | 
| 情報提供元 | SUUMO[030H100468240269] | 情報公開日 | |
| 情報更新日 | 次回更新予定日 | 随時 | |

| 2階以上 | ○ | 最上階 | - | 角部屋 | - | 
|---|---|---|---|---|---|
| 駐車場(近隣含) | - | エアコン付き | ○ | バス・トイレ別 | ○ | 
| 室内洗濯機置き場 | ○ | 追焚機能 | ○ | オートロック付き | ○ | 
| モニタ付インターホン | ○ | フローリング | - | バルコニー | - | 
| ガスコンロ可 | ○ | 浴室乾燥機 | ○ | 24時間セキュリティ | - | 
| 宅配ボックス | - | ペット相談可 | - | 二人入居可 | - | 
| 設備 | 冷房・暖房・エアコン・オートロック・バス・トイレ別・トイレ・洗濯機置場・洗面所・エレベーター・CATV・BS端子・追焚機能・浴室乾燥機・ガスコンロ可・シャンプードレッサ・温水洗浄便座・システムキッチン・モニタ付インターホン・駐輪場・風呂・衣類乾燥機・プロパンガス・浴トイレ別・防犯カメラ・コンロ2口以上・室内洗濯機置き場 | ||||
| リフォーム履歴 | - | ||||
| リノベーション履歴 | - | ||||
| 備考 | 保証会社利用必:初回保証料・・・月額総賃料の40%、最低保証額15,000円/学生限定/女性限定/高崎経済大学学生・女性限定 敷地内禁煙 オートロック・防犯カメラ・TVドアホン完備/バストイレ別/エアコン/ガスコンロ対応/シャワー付洗面台/TVインターホン/浴室乾燥機/オートロック/室内洗濯置/システムキッチン/南向き/追焚機能浴室/温水洗浄便座/エレベーター/2口コンロ/駐輪場/CATV/防犯カメラ/3駅以上利用可/3沿線以上利用可/駅徒歩10分以内/プロパンガス/BS/敷金・礼金不要/全室照明付/賃貸戸数:9戸 | ||||
| 特記事項 | 女性限定・学生限定 | ||||
| エネルギー消費性能 | - | 
|---|---|
| 断熱性能 | - | 
| 目安光熱費 | - | 

| お問い合わせ先 | 商号:(株)住まいるハウジング 免許番号:群馬県知事(6)第6218号 所在地:群馬県高崎市大橋町 101 TEL:027-310-2700 取引態様:貸主 管理コード:117 所属協会など:(公社)首都圏不動産公正取引協議会加盟、(一社)群馬県宅地建物取引業協会会員 | 共有する | 
 | 
|---|
| 世帯数 | 160565世帯 | 
|---|---|
| 人口総数 | 367861人 | 
| 転入者数 | 14201人 
 | 
| 転出者数 | 13039人 
 | 
| 土地平均価格 | 
 | 
| 子育て関連の独自の取り組み | 【高崎市子育てなんでもセンター】子育て中の人や妊娠中の人が、1ヶ所で子育て支援、就労支援、託児等のさまざまな相談ができ、必要な支援を受けられる子育て支援の拠点であり、安心して子どもを産み、育てることができるよう、市・関係機関・NPO団体等が一体となって運営している。特に、同センター内にある託児施設「高崎キッズサポートかしの木」は、子育て中のリフレッシュとして、買い物や映画鑑賞等の際に気軽な利用が可能で、大変好評を頂いている。さらに、人口増加地域である群馬地域において、託児施設「高崎キッズサポートけやき」を開設し、子育て環境の充実を図っている(利用料:1時間300円)。 | ||
|---|---|---|---|
| 出産祝い | あり | ||
| 公立保育所数 | 21所(うち0歳児保育を実施している保育所:21所) | ||
| 私立保育所数 | 32所(うち0歳児保育を実施している保育所:32所) | ||
| 保育所入所待機児童数 | 0人 | ||
| 認定こども園数 | 53園 | 預かり保育実施園数 | 公立:8園 私立:7園 | 
| 学校給食 | 【小学校】完全給食【中学校】完全給食 | ||
| 公立中学校の学校選択制 | 一部実施 | ||
| 子ども・学生等医療費助成<通院>対象年齢 | 18歳3月末まで | 子ども・学生等医療費助成<入院>対象年齢 | 18歳3月末まで | 
| ガス料金(22m3使用した場合の月額) | 東京瓦斯株式会社(群馬地区)3648円 東京瓦斯株式会社(群馬南地区)3451円 | 
|---|---|
| 水道料金(口径20mmで20m3の月額) | 高崎市(倉渕地域)1450円 高崎市(吉井地域)2678円 高崎市(新町地域)2075円 高崎市(榛名地域)2408円 高崎市(箕郷地域)2311円 高崎市(群馬地域)1870円 高崎市(高崎地域)2506円 | 
| 下水道料金(20m3を使用した場合の月額) | 高崎市(吉井地域)2310円 高崎市(新町地域)2090円 高崎市(榛名地域)2420円 高崎市(箕郷地域)2311円 高崎市(群馬地域)2090円 高崎市(高崎地域)2173円 | 
| 下水道普及率 | 77.3% | 
| 建物火災出火件数 | 52件 
 | 
|---|---|
| 刑法犯認知件数 | 2200件 
 | 
| ハザード・防災マップ | あり | 
| 一般病院総数 | 24ヶ所 | 
|---|---|
| 一般診療所総数 | 353ヶ所 | 
| 小児科医師数 | 61人 
 | 
| 産婦人科医師数 | 29人 
 | 
| 介護保険料基準額(月額) | 6592円 | 
| 家庭ごみ収集(可燃ごみ) | 無料 
 | 
|---|---|
| 家庭ごみの分別方式 | 【高崎地域・吉井地域・榛名地域・箕郷地域・群馬地域・倉渕地域】3分別16種〔可燃ごみ 不燃ごみ 資源ごみ(飲料缶、びん類[無色透明のびん、茶色のびん、その他の色びん]、ペットボトル、古紙類[新聞紙、段ボール、紙パック、雑誌・古本、雑紙、シュレッダー]、危険物[スプレー缶・カセットボンベ・ライター、乾電池、蛍光灯])〕 【新町地域】3分別17種〔可燃ごみ 不燃ごみ 資源ごみ(飲料缶、びん類[無色透明のびん、茶色のびん、その他の色びん]、ペットボトル、古紙類[新聞紙、段ボール、紙パック、雑誌・古本、雑紙、シュレッダー]、危険物[スプレー缶・カセットボンベ・ライター、乾電池、蛍光灯]、白色トレイ)〕 | 
| 家庭ごみの戸別収集 | 一部実施(高齢者ごみ出しSOS) | 
| 粗大ごみ収集 | あり 
 | 
| 生ごみ処理機助成金制度 | あり 
 | 
相生町|赤坂町|阿久津町|旭町|足門町|東町|あら町|飯玉町|飯塚町|石原町|井出町|稲荷町|井野町|岩押町|岩鼻町|請地町|江木町|大沢町|大橋町|大八木町|沖町|貝沢町|鍛冶町|片岡町|嘉多町|金井淵町|金古町|上大島町|上大類町|上小鳥町|上小塙町|上里見町|上佐野町|上滝町|上豊岡町|上中居町|上並榎町|上和田町|菊地町|北久保町|北通町|北原町|北双葉町|木部町|京目町|行力町|九蔵町|倉賀野町|栗崎町|剣崎町|小八木町|神戸町|栄町|鞘町|新後閑町|柴崎町|芝塚町|島野町|下大類町|下小鳥町|下小塙町|下斎田町|下里見町|下佐野町|下滝町|下豊岡町|下中居町|下之城町|下室田町|下横町|下和田町|宿大類町|正観寺町|昭和町|白銀町|新田町|新保田中町|新保町|新町|末広町|菅谷町|砂賀町|住吉町|高砂町|高関町|高浜町|竜見町|田町|台新田町|台町|塚田町|筑縄町|鶴見町|寺尾町|天神町|稲荷台町|通町|常盤町|問屋町|問屋町西|中泉町|中居町|中大類町|中尾町|中里見町|中里町|中豊岡町|並榎町|成田町|西島町|西横手町|日光町|根小屋町|乗附町|鼻高町|浜川町|浜尻町|東貝沢町|東国分町|東中里町|聖石町|日高町|檜物町|福島町|藤塚町|双葉町|保渡田町|本郷町|町屋町|箕郷町生原|箕郷町柏木沢|箕郷町上芝|箕郷町下芝|箕郷町富岡|箕郷町西明屋|箕郷町東明屋|箕郷町矢原|三ツ寺町|緑町|南新波町|南大類町|南町|宮原町|宮元町|棟高町|元紺屋町|元島名町|本町|八島町|矢島町|八千代町|矢中町|柳川町|山田町|山名町|八幡町|弓町|吉井町池|吉井町石神|吉井町岩井|吉井町小串|吉井町片山|吉井町塩川|吉井町下長根|吉井町長根|吉井町南陽台|吉井町本郷|吉井町馬庭|吉井町矢田|吉井町吉井|吉井町吉井川|四ツ屋町|寄合町|羅漢町|連雀町|若松町|我峰町|綿貫町|和田多中町|和田町
