アプリで簡単 物件探し 通知 共有 アプリならではの機能を使ってみる
賃貸マンション

パールローズ 新前橋駅 2LDK 賃貸(賃貸マンション・アパート)

情報提供元
SUUMO
パールローズ
賃料 5万円  (管理費等:なし)
礼金・敷金 なし / なし 保証金/敷引・償却 なし / -
交通
所在地 群馬県前橋市古市町1周辺地図
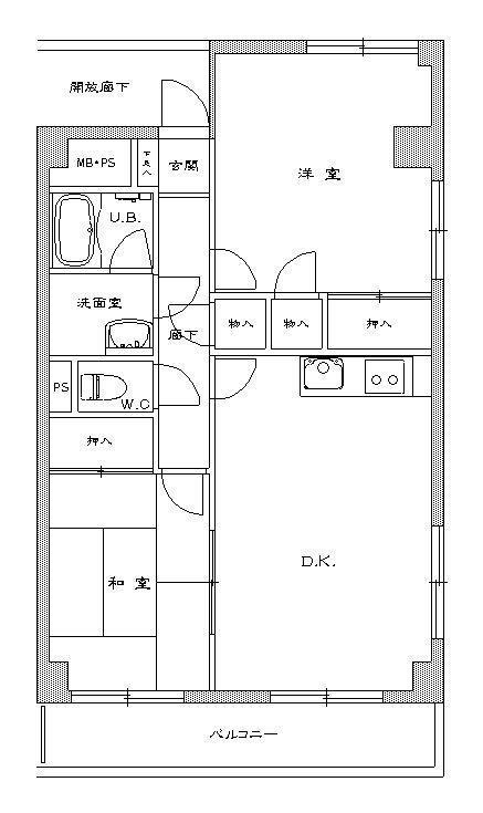
間取り 2LDK 専有面積 62.37m2
築年月 1989年11月 築年数 築36年
おすすめポイント
お部屋探しは住まいるで 信越本線北高崎駅より南へ徒歩1分 高崎市を中心に前橋市・安中市・藤岡市等様々なエリアの物件も取り扱っております お気軽にお問い合わせください 皆様の新生活を応援いたします

詳細情報

賃料 5万円 管理費等 なし
敷金 なし 礼金 なし
保証金 なし 敷引・償却 -
更新料 - 契約期間
カード決済 -
所在地 群馬県前橋市古市町1周辺地図
交通
建物名 パールローズ 
間取り 2LDK 築年月(築年数) 1989年11月(築36年)
専有面積 62.37㎡ 所在階/階数 4階/5階建
建物構造 RC  方位 南 
現況   駐車場 無    近くの駐車場を探す
入居可能時期 相談 住宅保険 あり 2年 20000円
情報提供元 SUUMO[030H100458296064] 情報公開日
情報更新日 次回更新予定日 随時

設備など

2階以上 最上階 - 角部屋
駐車場(近隣含) - エアコン付き バス・トイレ別
室内洗濯機置き場 追焚機能 - オートロック付き -
モニタ付インターホン - フローリング - バルコニー -
ガスコンロ可 浴室乾燥機 - 24時間セキュリティ -
宅配ボックス - ペット相談可 二人入居可 -
設備 冷房・暖房・エアコン・バス・トイレ別・トイレ・洗濯機置場・洗面所・エレベーター・CATV・BS端子・ガスコンロ可・駐輪場・プロパンガス・浴トイレ別・洗面所独立・インターネット無料・インターネット対応・室内洗濯機置き場 
リフォーム履歴 -
リノベーション履歴 -
備考 保証会社利用必:初回保証料・・・月額総賃料の40%、最低保証額15,000円/仲介手数料1ヶ月/ペット相談/フリーレント1ヶ月/バストイレ別/エアコン/ガスコンロ対応/室内洗濯置/南向き/角住戸/エレベーター/洗面所独立/洗面化粧台/駐輪場/CATV/ペット相談/ネット使用料不要/フリーレント/3駅以上利用可/3沿線以上利用可/プロパンガス/BS/敷金・礼金不要/全室照明付/賃貸戸数:29戸 
特記事項 ペット相談可・角部屋・フリーレント

省エネ性能

エネルギー消費性能 -
断熱性能 -
目安光熱費 -

群馬県前橋市古市町1 周辺地図情報

地図
※地図上に表示される物件の位置は付近住所に所在することを表すものであり、実際の物件所在地とは異なる場合がございます。
   正確な物件所在地は、取扱い不動産会社にお問い合わせください。

不動産会社情報

お問い合わせ先 商号:(株)住まいるハウジング
免許番号:群馬県知事(6)第6218号
所在地:群馬県高崎市大橋町 101
TEL:027-310-2700
取引態様:代理
管理コード:36
所属協会など:(公社)首都圏不動産公正取引協議会加盟、(一社)群馬県宅地建物取引業協会会員
共有する
QRコード

前橋市の暮らしデータ

人口などの統計情報

世帯数 141556世帯
人口総数 329860人
転入者数 13057人
転入率(人口1000人当たり)
39.58人
転出者数 12197人
転出率(人口1000人当たり)
36.98人
土地平均価格
住宅地
46714円/m2
商業地
76300円/m2

結婚・育児の助成金

子育て関連の独自の取り組み 市内に住所を有し、同一世帯で18歳に達する日以後の最初の3月31日までの間にある子を3人以上養育し、かつ学校給食費に未納がない人を対象に、小中学校等に在籍している第3子以降の学校給食費を無料化し、子育て世帯の経済的負担を軽減し、安心して子育てできる環境整備を図り、もって少子化対策を推進するもの。
出産祝い あり
公立保育所数 16所(うち0歳児保育を実施している保育所:2所)
私立保育所数 20所(うち0歳児保育を実施している保育所:19所)
保育所入所待機児童数 0人
認定こども園数 50園 預かり保育実施園数 公立:2園 私立:1園
学校給食 【小学校】完全給食【中学校】完全給食
公立中学校の学校選択制 未実施
子ども・学生等医療費助成<通院>対象年齢 18歳3月末まで 子ども・学生等医療費助成<入院>対象年齢 18歳3月末まで

前橋市の治安・ごみ収集情報

公共料金・インフラ

ガス料金(22m3使用した場合の月額) 東京瓦斯株式会社(群馬地区)3648円
水道料金(口径20mmで20m3の月額) 前橋市2882円
下水道料金(20m3を使用した場合の月額) 前橋市2156円
下水道普及率 72.0%

安心・安全

建物火災出火件数 61件
人口10000人当たり
1.84件
刑法犯認知件数 2449件
人口1000人当たり
7.37件
ハザード・防災マップ あり

医療

一般病院総数 18ヶ所
一般診療所総数 340ヶ所
小児科医師数 113人
小児人口10000人当たり
30.18人
産婦人科医師数 65人
15~49歳女性人口1万人当たり
10.66人
介護保険料基準額(月額) 6450円

ごみ

家庭ごみ収集(可燃ごみ) 無料
備考
-
家庭ごみの分別方式 7分別17種〔可燃ごみ 不燃ごみ プラ容器 資源ごみ(びん[無色透明のびん、茶色のびん、その他の色のびん]、缶、ペットボトル) 危険ごみ 有害ごみ 紙・衣類等(紙[新聞紙、段ボール、雑誌、紙パック、雑古紙、シュレッダーした紙]、衣類等)〕
家庭ごみの戸別収集 一部実施(高齢者・障害者等のうち、家族や知人の協力を得られない人で、介護認定や障害者手帳等の一定の要件を満たしている人が対象。同居人がいる場合も同じ要件を満たすこと)
粗大ごみ収集 あり
備考
無料。戸別収集(1回につき3個まで)。事前申込制。
生ごみ処理機助成金制度 あり
上限金額
10000円
上限比率
50.0%
暮らしデータ提供元:生活ガイド.com
※行政機関により公表していない地域及びデータがございます。東京23区以外の政令指定都市は、市全体のデータとして表示しています。
※提供データには細心の注意を払っておりますが、調査後に変更がある場合があります。 最新の情報につきましては各市区役所までお問い合わせいただくか、自治体HPなどをご確認ください。
OCN×ドコモ光新規お申込みで合計最大137,280円相当おトク!特典の内訳・適用条件など詳細はこちら

前橋市内の各駅の住みやすさ

他のエリアから探す

前橋市の詳細地域から賃貸物件を探す

青梨子町青葉町青柳町朝倉町朝日が丘町朝日町天川大島町天川原町天川町荒口町荒牧町飯土井町石倉町石関町泉沢町岩神町笂井町江木町江田町大胡町大手町大利根町大友町大前田町大渡町女屋町表町粕川町新屋粕川町女渕粕川町込皆戸粕川町膳粕川町中粕川町深津上泉町上大島町上大屋町上沖町上小出町上佐鳥町上新田町上長磯町上細井町上増田町亀泉町亀里町川原町川端町川曲町河原浜町北代田町清野町公田町小相木町紅雲町幸塚町国領町小島田町小神明町駒形町小屋原町後閑町後家町五代町山王町敷島町下石倉町下大島町下沖町下小出町下佐鳥町下新田町下細井町下増田町昭和町新前橋町城東町住吉町関根町総社町総社町植野総社町桜が丘総社町総社総社町高井高井町滝窪町田口町千代田町堤町鶴が谷町鶴光路町稲荷新田町鳥取町富田町鳥羽町問屋町南橘町新堀町西大室町西片貝町西善町日輪寺町二之宮町ぬで島町野中町端気町箱田町鼻毛石町光が丘町東大室町東片貝町東善町樋越町日吉町広瀬町富士見町石井富士見町小沢富士見町小暮富士見町時沢富士見町原之郷富士見町横室古市町文京町平和町堀越町堀之下町本町房丸町前箱田町三河町三俣町緑が丘町南町宮地町茂木町元総社町横沢町横手町力丸町龍蔵寺町六供町若宮町

近辺の市区から探す

高崎市渋川市北群馬郡榛東村北群馬郡吉岡町佐波郡玉村町

周辺の駅から探す

上越線
高崎高崎問屋町井野新前橋群馬総社八木原渋川敷島
両毛線
国定伊勢崎駒形前橋大島前橋新前橋
上毛電気鉄道上毛線
中央前橋城東三俣片貝上泉

掲載情報の著作権は提供元企業等に帰属します。
Copyright:(C) 2025 Recruit Co., Ltd.
アプリで簡単 物件探し 大手不動産サイトの情報から一括検!プッシュ通知で物件を見逃さない
App Storeからダウンロード Google Playで手に入れよう QRコード