アプリで簡単 物件探し 通知 共有 アプリならではの機能を使ってみる
賃貸アパート

コーポ滝ノ上1号棟(泉町2丁目) 泉駅 3DK 賃貸(賃貸マンション・アパート)

情報提供元
SUUMO
コーポ滝ノ上1号棟(泉町2丁目)
賃料 4.5万円  (管理費等:なし)
礼金・敷金 なし / 4.5万円 保証金/敷引・償却 なし / -
交通
所在地 福島県いわき市泉町2周辺地図
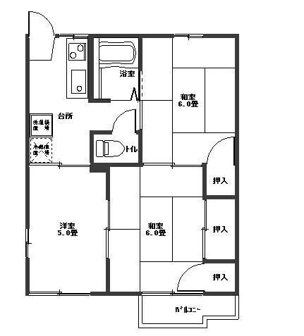
間取り 3DK 専有面積 42m2
築年月 1986年3月 築年数 築39年8ヶ月
おすすめポイント
《2階角部屋》泉駅から車で3分!買い物便利! かわいいらしい黄色の建物です♪♪和室二間続きの使いやすい間取り♪キッチンを新しく交換しました!
お問い合わせ先
ピタットハウスいわき店(株)サンアロープラン
お問い合わせ先
ピタットハウスいわき店(株)サンアロープラン

詳細情報

賃料 4.5万円 管理費等 なし
敷金 4.5万円 礼金 なし
保証金 なし 敷引・償却 -
更新料 - 契約期間
カード決済 -
所在地 福島県いわき市泉町2周辺地図
交通
建物名 コーポ滝ノ上1号棟(泉町2丁目) 
間取り 3DK(和6 和6 洋4.5 K3.75) 築年月(築年数) 1986年3月(築39年8ヶ月)
専有面積 42㎡ 所在階/階数 2階/2階建
建物構造 軽量鉄骨  方位 南 
現況   駐車場 有 無料
入居可能時期 即時 住宅保険 あり
情報提供元 SUUMO[020H100448645786] 情報公開日
情報更新日 次回更新予定日 随時

設備など

2階以上 最上階 角部屋
駐車場(近隣含) エアコン付き バス・トイレ別
室内洗濯機置き場 - 追焚機能 - オートロック付き -
モニタ付インターホン - フローリング - バルコニー
ガスコンロ可 浴室乾燥機 - 24時間セキュリティ -
宅配ボックス - ペット相談可 - 二人入居可 -
設備 冷房・暖房・エアコン・バルコニー・バス・トイレ別・トイレ・ガスコンロ可・プロパンガス・浴トイレ別 
リフォーム履歴 -
リノベーション履歴 -
備考 損保要/保証会社利用必:その他 アーク賃貸保証(保証委託料36.264円)/平置駐/バストイレ別/バルコニー/エアコン/ガスコンロ対応/南向き/角住戸/即入居可/礼金不要/最上階/駐車場1台無料/駅徒歩10分以内/プロパンガス/巡回管理/いわき市立泉小学校(小学校)まで791m/私立いわき秀英中学校(中学校)まで1347m/いわき市立泉中学校(中学校)まで1229m/泉幼稚園(幼稚園・保育園)まで525m/私立いわき秀英高校(高校・高専)まで1347m/双葉町役場いわき支所(役所)まで7019m/賃貸戸数:8戸 
特記事項 角部屋・管理人巡回・最上階

省エネ性能

エネルギー消費性能 -
断熱性能 -
目安光熱費 -

福島県いわき市泉町2 周辺地図情報

地図
※地図上に表示される物件の位置は付近住所に所在することを表すものであり、実際の物件所在地とは異なる場合がございます。
   正確な物件所在地は、取扱い不動産会社にお問い合わせください。
お問い合わせ先
ピタットハウスいわき店(株)サンアロープラン

不動産会社情報

お問い合わせ先 商号:ピタットハウスいわき店(株)サンアロープラン
免許番号:福島県知事(9)第80253号
所在地:福島県いわき市小名浜岡小名字反町 10
TEL:0246-92-0505
取引態様:仲介
管理コード:1537345
所属協会など: 東北地区不動産公正取引協議会加盟、(公社)福島県宅地建物取引業協会会員
共有する
QRコード
お問い合わせ先
ピタットハウスいわき店(株)サンアロープラン

いわき市の暮らしデータ

人口などの統計情報

世帯数 141074世帯
人口総数 306714人
転入者数 7004人
転入率(人口1000人当たり)
22.84人
転出者数 7983人
転出率(人口1000人当たり)
26.03人
土地平均価格
住宅地
37822円/m2
商業地
65291円/m2

結婚・育児の助成金

子育て関連の独自の取り組み (1)乳児の1歳の誕生月に絵本を送付する赤ちゃん絵本プレゼント事業を実施(父又は母に1年以上の継続した住民登録が必要)。(2)未就園児を持つ親子を対象に市立幼稚園を開放する「みゅう広場」、夏休みに在園児や未就園児を持つ親子を対象に市立幼稚園を開放する「夏休み園舎開放」、「子育て教育相談」等を実施。
出産祝い あり
公立保育所数 30所(うち0歳児保育を実施している保育所:16所)
私立保育所数 24所(うち0歳児保育を実施している保育所:24所)
保育所入所待機児童数 1人
認定こども園数 18園 預かり保育実施園数 公立:0園 私立:20園
学校給食 【小学校】完全給食【中学校】完全給食
公立中学校の学校選択制 一部実施(小規模特認校制)
子ども・学生等医療費助成<通院>対象年齢 18歳3月末まで 子ども・学生等医療費助成<入院>対象年齢 18歳3月末まで

いわき市の治安・ごみ収集情報

公共料金・インフラ

ガス料金(22m3使用した場合の月額) 東部瓦斯株式会社(郡山・いわき・水戸・土浦・守谷地区)5491円
常磐共同ガス株式会社5891円
常磐共同ガス株式会社(小名浜地区)6602円
常磐都市ガス株式会社6291円
水道料金(口径20mmで20m3の月額) いわき市4917円
いわき市(簡易水道)4917円
下水道料金(20m3を使用した場合の月額) いわき市4309円
下水道普及率 55.0%

安心・安全

建物火災出火件数 33件
人口10000人当たり
0.99件
刑法犯認知件数 1625件
人口1000人当たり
4.88件
ハザード・防災マップ あり

医療

一般病院総数 19ヶ所
一般診療所総数 242ヶ所
小児科医師数 45人
小児人口10000人当たり
13.45人
産婦人科医師数 17人
15~49歳女性人口1万人当たり
3.22人
介護保険料基準額(月額) 6303円

ごみ

家庭ごみ収集(可燃ごみ) 無料
備考
-
家庭ごみの分別方式 9分別13種〔燃やすごみ 燃やさないごみ 容器包装プラスチック 製品プラスチック かん類・ペットボトル びん類 小型家電・金属類 廃乾電池 古紙類(新聞紙、段ボール、紙パック、雑誌、その他の紙)〕
家庭ごみの戸別収集 未実施
粗大ごみ収集 あり
備考
有料。事前申込制。
生ごみ処理機助成金制度 あり
上限金額
15000円
上限比率
50.0%
暮らしデータ提供元:生活ガイド.com
※行政機関により公表していない地域及びデータがございます。東京23区以外の政令指定都市は、市全体のデータとして表示しています。
※提供データには細心の注意を払っておりますが、調査後に変更がある場合があります。 最新の情報につきましては各市区役所までお問い合わせいただくか、自治体HPなどをご確認ください。
OCN×ドコモ光新規お申込みで合計最大137,280円相当おトク!特典の内訳・適用条件など詳細はこちら

いわき市内の各駅の住みやすさ

他のエリアから探す

いわき市の詳細地域から賃貸物件を探す

東田町石塚町泉ケ丘泉滝尻泉玉露泉町泉町黒須野泉町下川泉町滝尻泉町玉露泉町本谷泉もえぎ台岩間町植田町植田町中央植田町本町植田町南町後田町内郷内町内郷小島町内郷白水町内郷高坂町内郷綴町内郷御台境町内郷御厩町内郷宮町江名大久町大久大久町小久小川町上小川小川町柴原小川町下小川小川町高萩小島町小名浜小名浜相子島小名浜大原小名浜岡小名小名浜金成小名浜島小名浜下神白小名浜住吉小名浜玉川町小名浜野田小名浜南富岡小名浜林城小浜町鹿島町飯田鹿島町久保鹿島町米田鹿島町下蔵持鹿島町走熊鹿島町船戸鹿島町御代金山町草木台桜ケ丘郷ケ丘佐糠町佐糠町東自由ケ丘常磐上湯長谷町常磐下船尾町常磐下湯長谷町常磐白鳥町常磐関船町常磐西郷町常磐藤原町常磐馬玉町常磐松が台常磐水野谷町常磐湯本町平赤井平泉崎平鎌田平上荒川平上平窪平北白土平塩平下荒川平下神谷平下平窪平豊間平中神谷平中塩平中平窪平中山平沼ノ内平沼ノ内諏訪原平幕ノ内平南白土平谷川瀬平山崎平吉野谷中央台飯野中央台鹿島中央台高久遠野町根岸中岡町中之作永崎勿来町勿来町窪田町通勿来町関田西仁井田町錦町錦町江栗錦町中央錦町中迎葉山久之浜町西久之浜町久之浜三和町中三坂明治団地洋向台好間町愛谷好間町今新田好間町大利好間町小谷作好間町上好間好間町川中子好間町北好間好間町榊小屋好間町下好間好間町中好間四倉町四倉町上仁井田四倉町狐塚四倉町下仁井田四倉町玉山若葉台渡辺町洞

周辺の駅から探す

常磐線
勿来植田湯本内郷いわき草野

掲載情報の著作権は提供元企業等に帰属します。
Copyright:(C) 2025 Recruit Co., Ltd.
アプリで簡単 物件探し 大手不動産サイトの情報から一括検!プッシュ通知で物件を見逃さない
App Storeからダウンロード Google Playで手に入れよう QRコード