アプリで簡単 物件探し 通知 共有 アプリならではの機能を使ってみる
賃貸アパート

サイドフォレスト 秋田駅 1LDK 賃貸(賃貸マンション・アパート)

情報提供元
SUUMO
サイドフォレスト 建物外観を気になさる方へ、見た目の良い物件です
賃料 5.3万円  (管理費等:5000円)
礼金・敷金 1ヶ月 / なし 保証金/敷引・償却 なし / -
交通
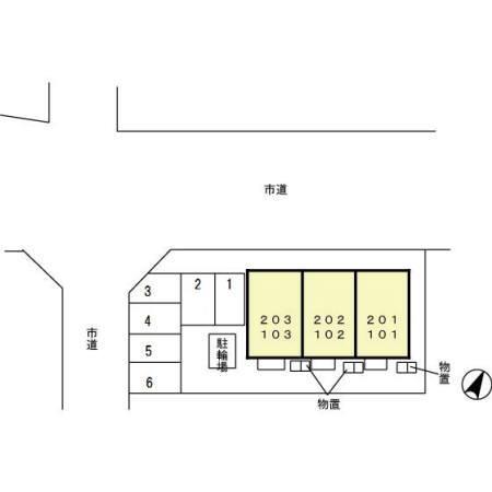
所在地 秋田県秋田市横森4周辺地図
間取り 1LDK 専有面積 37.49m2
築年月 2007年12月 築年数 築18年
おすすめポイント
■□システムキッチン、灯油FF付です♪【ペット可】□ 収納はクロゼット・シューズボックスなどが備え付けられているので、衣類や日用品の収納に重宝します。洗面化粧台はコンセントや照明、大きな鏡などがついているので化粧や身支度を整える際に役立ちます。
お問い合わせ先
(株)コンサルティングハウス
お問い合わせ先
(株)コンサルティングハウス

詳細情報

賃料 5.3万円 管理費等 5000円
敷金 なし 礼金 1ヶ月
保証金 なし 敷引・償却 -
更新料 - 契約期間
カード決済 -
所在地 秋田県秋田市横森4周辺地図
交通
建物名 サイドフォレスト 
間取り 1LDK(洋3.0 LDK9.8) 築年月(築年数) 2007年12月(築18年)
専有面積 37.49㎡ 所在階/階数 2階/2階建
建物構造 軽量鉄骨  方位  
現況   駐車場 有 無料
入居可能時期 即時 住宅保険 あり
情報提供元 SUUMO[020H100472488995] 情報公開日
情報更新日 次回更新予定日 随時

設備など

2階以上 最上階 角部屋 -
駐車場(近隣含) エアコン付き バス・トイレ別
室内洗濯機置き場 追焚機能 オートロック付き -
モニタ付インターホン フローリング バルコニー
ガスコンロ可 - 浴室乾燥機 - 24時間セキュリティ -
宅配ボックス - ペット相談可 二人入居可
設備 冷房・暖房・エアコン・バルコニー・バス・トイレ別・トイレ・収納スペース・洗濯機置場・洗面所・CATV・追焚機能・フローリング・照明器具・シャンプードレッサ・温水洗浄便座・システムキッチン・カウンターキッチン・モニタ付インターホン・駐輪場・風呂・対面K・クローゼット・物置・プロパンガス・浴トイレ別・シューズボックス・室内洗濯機置き場 
リフォーム履歴 -
リノベーション履歴 -
備考 損保要/ICロック電池(初回)0.275万円/更新料 新賃料1.00ヶ月分 室内清掃費用 49500円/保証会社利用可:初回保証料35000円、月額保証料賃料等総額の1%+800円/月/仲介手数料1.000ヶ月/普通借家02年0ヶ月/二人入居可/ペット相談/バストイレ別/バルコニー/エアコン/クロゼット/フローリング/シャワー付洗面台/TVインターホン/室内洗濯置/シューズボックス/システムキッチン/追焚機能浴室/温水洗浄便座/洗面化粧台/駐輪場/CATV/即入居可/最上階/敷金不要/対面式キッチン/ペット相談/照明付/保証人不要/物置/保証金不要/プロパンガス/室内物干機/礼金1ヶ月/秋田市立秋田南中学校(中学校)まで2298m/シャトレーゼ 広面店(飲食店)まで949m/一つ森公園(公園)まで1005m/秋田拠点センター ALVE(アルヴェ) 民間棟(ショッピングセンター)まで1982m/ローソン 秋田さくら店(コンビニ)まで622m/遠山医院(病院)まで238m 
特記事項 ペット相談可・二人入居可・最上階・保証人不要/代行

省エネ性能

エネルギー消費性能 -
断熱性能 -
目安光熱費 -

秋田県秋田市横森4 周辺地図情報

地図
※地図上に表示される物件の位置は付近住所に所在することを表すものであり、実際の物件所在地とは異なる場合がございます。
   正確な物件所在地は、取扱い不動産会社にお問い合わせください。
お問い合わせ先
(株)コンサルティングハウス

不動産会社情報

お問い合わせ先 商号:(株)コンサルティングハウス
免許番号:秋田県知事(2)第2239号
所在地:秋田県秋田市八橋本町3-20-36 M2ビル2階
TEL:018-853-6321
取引態様:仲介
管理コード:282757
所属協会など: 東北地区不動産公正取引協議会加盟、(公社)全日本不動産協会秋田県本部会員
共有する
QRコード
お問い合わせ先
(株)コンサルティングハウス

秋田市の暮らしデータ

人口などの統計情報

世帯数 136634世帯
人口総数 297316人
転入者数 8391人
転入率(人口1000人当たり)
28.22人
転出者数 8544人
転出率(人口1000人当たり)
28.74人
土地平均価格
住宅地
35063円/m2
商業地
58895円/m2

結婚・育児の助成金

子育て関連の独自の取り組み (1)在宅子育てサポート事業。(a)在宅子育てサポートクーポン券(秋田市に住民票があり、保育所[園]や幼稚園等に入所[園]していない就学前のお子さんがいる世帯に、親子遠足、一時預かり等8種類の子育て支援プランに利用できるクーポン券を交付)。(b)多子世帯サポートクーポン券(秋田市に住民票があり、保育所[園]や幼稚園等に入所[園]していない就学前の第3子以降のお子さんと、その子を含めた3人以上のお子さんがいる世帯に、同じく7種類の子育て支援プランに利用できるクーポン券を交付)。(2)ファミリー・サポート・センター利用料の助成(利用料の半額を助成)。
出産祝い なし
公立保育所数 6所(うち0歳児保育を実施している保育所:6所)
私立保育所数 41所(うち0歳児保育を実施している保育所:41所)
保育所入所待機児童数 0人
認定こども園数 35園 預かり保育実施園数 公立:- 私立:9園
学校給食 【小学校】完全給食【中学校】完全給食
公立中学校の学校選択制 一部実施(特認校制)
子ども・学生等医療費助成<通院>対象年齢 18歳3月末まで 子ども・学生等医療費助成<入院>対象年齢 18歳3月末まで

秋田市の治安・ごみ収集情報

公共料金・インフラ

ガス料金(22m3使用した場合の月額) 東部瓦斯株式会社(秋田地区)4506円
水道料金(口径20mmで20m3の月額) 秋田市3410円
下水道料金(20m3を使用した場合の月額) 秋田市3113円
下水道普及率 95.6%

安心・安全

建物火災出火件数 36件
人口10000人当たり
1.17件
刑法犯認知件数 1167件
人口1000人当たり
3.79件
ハザード・防災マップ あり

医療

一般病院総数 14ヶ所
一般診療所総数 290ヶ所
小児科医師数 79人
小児人口10000人当たり
25.71人
産婦人科医師数 37人
15~49歳女性人口1万人当たり
7.00人
介護保険料基準額(月額) 6232円

ごみ

家庭ごみ収集(可燃ごみ) 有料
備考
従量制。排出量に応じて排出者が手数料を負担する方式。1円/ごみ袋の容量1リットル。家庭ごみのみ有料。
家庭ごみの分別方式 3分別13種〔家庭ごみ 水銀含有ごみ(蛍光管、水銀体温計・温度計、水銀血圧計) 資源化物(空きびん・ガス・スプレー缶、空き缶、使用済み乾電池、ペットボトル、金属類、古紙[新聞、段ボール、雑誌・雑がみ、紙パック])〕 拠点回収:使用済み小型家電
家庭ごみの戸別収集 未実施
粗大ごみ収集 あり
備考
有料。戸別収集(委託業者による)。事前申込制。
生ごみ処理機助成金制度 あり
上限金額
30000円
上限比率
50.0%
暮らしデータ提供元:生活ガイド.com
※行政機関により公表していない地域及びデータがございます。東京23区以外の政令指定都市は、市全体のデータとして表示しています。
※提供データには細心の注意を払っておりますが、調査後に変更がある場合があります。 最新の情報につきましては各市区役所までお問い合わせいただくか、自治体HPなどをご確認ください。
OCN×ドコモ光新規お申込みで合計最大137,280円相当おトク!特典の内訳・適用条件など詳細はこちら

秋田市内の各駅の住みやすさ

他のエリアから探す

秋田市の詳細地域から賃貸物件を探す

旭川清澄町旭川新藤田東町旭川南町新屋朝日町新屋大川町新屋扇町新屋表町新屋勝平台新屋勝平町新屋栗田町新屋寿町新屋高美町新屋田尻沢中町新屋天秤野新屋比内町新屋日吉町新屋船場町新屋前野町新屋町新屋松美ガ丘北町新屋松美ガ丘東町新屋松美ガ丘南町新屋松美町新屋南浜町新屋元町新屋豊町新屋割山町飯島飯島飯田飯島川端飯島穀丁飯島新町飯島長野中町飯島長野本町飯島西袋飯島鼠田飯島文京町飯島松根西町飯島松根東町飯島道東飯島緑丘町泉一ノ坪泉北泉中央泉馬場泉東町泉三嶽根泉南牛島西牛島東牛島南大住大町御野場御野場新町卸町金足追分金足小泉川尻上野町川尻大川町川尻御休町川尻新川町川尻総社町川尻みよし町川尻若葉町河辺北野田高屋河辺畑谷河辺和田川元小川町川元開和町川元松丘町川元むつみ町川元山下町旭南旭北栄町旭北寺町旭北錦町港北新町港北松野町高陽青柳町高陽幸町御所野下堤御所野堤台御所野元町山王山王新町山王中島町山王中園町山王沼田町山王臨海町下北手松崎下新城中野下新城長岡将軍野青山町将軍野桂町将軍野堰越将軍野東将軍野南将軍野向山新藤田千秋北の丸千秋久保田町千秋公園千秋城下町千秋中島町千秋明徳町千秋矢留町添川外旭川外旭川八幡田外旭川八柳土崎港北土崎港相染町土崎港中央土崎港西土崎港東土崎港南手形手形からみでん手形休下町手形新栄町手形田中手形山崎町手形山中町手形山南町寺内寺内油田寺内後城寺内鵜ノ木寺内神屋敷寺内児桜寺内堂ノ沢寺内蛭根豊岩石田坂中通楢山愛宕下楢山石塚町楢山太田町楢山大元町楢山川口境楢山城南新町楢山城南町楢山登町楢山古川新町楢山本町楢山南新町下丁楢山南中町仁井田仁井田潟中町仁井田栄町仁井田新田仁井田蕗見町仁井田福島仁井田二ツ屋仁井田本町仁井田目長田濁川浜田茨島東通東通観音前東通館ノ越東通仲町広面保戸野桜町保戸野すわ町保戸野千代田町保戸野鉄砲町保戸野通町保戸野中町保戸野八丁保戸野原の町南通亀の町南通築地南通みその町南通宮田柳田八橋八橋イサノ八橋大沼町八橋大畑八橋新川向八橋田五郎八橋鯲沼町八橋本町八橋南八橋三和町山手台横森四ツ小屋四ツ小屋末戸松本

周辺の駅から探す

羽越本線
下浜|桂根新屋羽後牛島秋田
奥羽本線
大張野和田四ツ小屋秋田泉外旭川土崎上飯島追分大久保

掲載情報の著作権は提供元企業等に帰属します。
Copyright:(C) 2025 Recruit Co., Ltd.
アプリで簡単 物件探し 大手不動産サイトの情報から一括検!プッシュ通知で物件を見逃さない
App Storeからダウンロード Google Playで手に入れよう QRコード