アプリで簡単 物件探し 通知 共有 アプリならではの機能を使ってみる
賃貸マンション

グランシャルール武蔵境 武蔵境駅 1LDK 賃貸(賃貸マンション・アパート)

情報提供元
アットホーム
グランシャルール武蔵境 外観
賃料 19.2万円  (管理費等:8000円)
礼金・敷金 2ヶ月 / 1ヶ月 保証金/敷引・償却 なし / 実費
交通
所在地 東京都武蔵野市境1丁目周辺地図
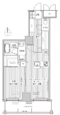
間取り 1LDK 専有面積 48.86m2
築年月 2020年2月 築年数 築5年11ヶ月
おすすめポイント
閑静な住宅街・角部屋
お問い合わせ先
(株)CJS TOKYO 賃貸住宅サービス 吉祥寺店
お問い合わせ先
(株)CJS TOKYO 賃貸住宅サービス 吉祥寺店

詳細情報

賃料 19.2万円 管理費等 8000円
敷金 1ヶ月 礼金 2ヶ月
保証金 なし 敷引・償却 実費
更新料 192000円 契約期間 2年
カード決済 -
所在地 東京都武蔵野市境1丁目周辺地図
交通
建物名 グランシャルール武蔵境 
間取り 1LDK(LDK 11.2/洋室 7) 築年月(築年数) 2020年2月(築5年11ヶ月)
専有面積 48.86㎡ 所在階/階数 6階/地上12階地下1階建
建物構造 RC  方位 南 
現況 居住中  駐車場 近有 30,000円
入居可能時期 2026年1月中旬 住宅保険 あり 0年 17000円
情報提供元 アットホーム[1153233512] 情報公開日
情報更新日 - 次回更新予定日 随時

設備など

2階以上 最上階 - 角部屋
駐車場(近隣含) エアコン付き バス・トイレ別
室内洗濯機置き場 追焚機能 オートロック付き
モニタ付インターホン フローリング バルコニー
ガスコンロ可 - 浴室乾燥機 24時間セキュリティ -
宅配ボックス ペット相談可 - 二人入居可 -
設備 エアコン・給湯・オートロック・バルコニー・バス・トイレ別・トイレ・洗濯機置場・室内洗濯機置き場・洗面所・シャワー・エレベーター・BS端子・追焚機能・都市ガス・フローリング・浴室乾燥機・温水洗浄便座・システムキッチン・カウンターキッチン・モニタ付インターホン・宅配BOX・駐輪場・CS・防犯カメラ・洗面所独立 
リフォーム履歴 -
リノベーション履歴 -
備考 鍵交換代:27500円 当店掲載物件以外もご紹介可能です。お問合せの際は電話番号をご入力いただくとスムーズです。オンラインで完結、ご来店不要。・賃貸保証等:加入要(賃貸保証料 0.4ヶ月 2年 賃貸保証更新料 1% 月次保証料賃料等の1%)・他交通手段:JR中央本線吉祥寺駅バス17分武蔵境駅南口停歩4分・当物件はクレジットカードで分割も可能です/先の入居希望や質問等お気軽にご相談下さい/契約金のお見積りやネットに掲載していない写真も、ご要望の際はお気軽にご連絡下さい/当店掲載物件以外もご紹介可能です。・駐輪場:有 
特記事項 閑静な住宅街・角部屋

省エネ性能

エネルギー消費性能 -
断熱性能 -
目安光熱費 -

東京都武蔵野市境1丁目 周辺地図情報

地図
※地図上に表示される物件の位置は付近住所に所在することを表すものであり、実際の物件所在地とは異なる場合がございます。
   正確な物件所在地は、取扱い不動産会社にお問い合わせください。
お問い合わせ先
(株)CJS TOKYO 賃貸住宅サービス 吉祥寺店

不動産会社情報

お問い合わせ先 商号:(株)CJS TOKYO 賃貸住宅サービス 吉祥寺店
免許番号:東京都知事免許(4)第86326号
所在地:武蔵野市吉祥寺本町1丁目18-2M-9吉祥寺ビル1F
TEL:0422-20-4649
取引態様:仲介
管理コード:10538111130008
所属協会など:(公社)全日本不動産協会会員、(公社)首都圏不動産公正取引協議会加盟
共有する
QRコード
お問い合わせ先
(株)CJS TOKYO 賃貸住宅サービス 吉祥寺店

    武蔵野市の暮らしデータ

    人口などの統計情報

    世帯数 77966世帯
    人口総数 147809人
    転入者数 10871人
    転入率(人口1000人当たり)
    73.55人
    転出者数 10604人
    転出率(人口1000人当たり)
    71.74人
    土地平均価格
    住宅地
    570250円/m2
    商業地
    2518143円/m2

    結婚・育児の助成金

    子育て関連の独自の取り組み (1)ベビーカー貸出しサービス事業(吉祥寺駅周辺を散策してもらうためのベビーカーを無料で貸し出すサービス)。(2)共助による子育てひろば事業(民間団体がコミュニティセンター等で子育てひろば事業を実施する際の運営費補助)。(3)おたふくかぜ予防接種の一部助成。(4)麻しん、風しん予防接種行政措置。(5)ひとり親家庭等住宅費助成(月額1万円上限、所得制限などの要件あり)。
    出産祝い あり
    公立保育所数 4所(うち0歳児保育を実施している保育所:4所)
    私立保育所数 32所(うち0歳児保育を実施している保育所:32所)
    保育所入所待機児童数 0人
    認定こども園数 1園 預かり保育実施園数 公立:- 私立:12園
    学校給食 【小学校】完全給食【中学校】家庭弁当等との選択制[内容:完全給食]
    公立中学校の学校選択制 未実施
    子ども・学生等医療費助成<通院>対象年齢 18歳3月末まで 子ども・学生等医療費助成<入院>対象年齢 18歳3月末まで

    武蔵野市の治安・ごみ収集情報

    公共料金・インフラ

    ガス料金(22m3使用した場合の月額) 東京瓦斯株式会社(東京地区等)3926円
    水道料金(口径20mmで20m3の月額) 武蔵野市2731円
    下水道料金(20m3を使用した場合の月額) 武蔵野市1246円
    下水道普及率 100.0%

    安心・安全

    建物火災出火件数 43件
    人口10000人当たり
    2.86件
    刑法犯認知件数 1265件
    人口1000人当たり
    8.42件
    ハザード・防災マップ あり

    医療

    一般病院総数 8ヶ所
    一般診療所総数 227ヶ所
    小児科医師数 39人
    小児人口10000人当たり
    22.45人
    産婦人科医師数 30人
    15~49歳女性人口1万人当たり
    8.96人
    介護保険料基準額(月額) 6600円

    ごみ

    家庭ごみ収集(可燃ごみ) 有料
    備考
    指定ごみ袋有料。資源ごみ、危険・有害ごみ、落ち葉、剪定枝、おむつは無料。
    家庭ごみの分別方式 9分別13種〔燃やすごみ 燃やさないごみ 古紙(新聞・チラシ、雑誌・古本・ノート類、段ボール、ざつがみ、シュレッダー紙) 古着 びん 缶 ペットボトル プラスチック製容器包装 危険・有害ごみ〕 拠点回収:使用済小型家電 紙パック
    家庭ごみの戸別収集 実施
    粗大ごみ収集 あり
    備考
    有料。シール券により事前申込制。手数料を徴収。生活保護受給世帯は手数料免除。リ災ごみは手数料一部減免。
    生ごみ処理機助成金制度 なし
    上限金額
    -
    上限比率
    -
    暮らしデータ提供元:生活ガイド.com
    ※行政機関により公表していない地域及びデータがございます。東京23区以外の政令指定都市は、市全体のデータとして表示しています。
    ※提供データには細心の注意を払っておりますが、調査後に変更がある場合があります。 最新の情報につきましては各市区役所までお問い合わせいただくか、自治体HPなどをご確認ください。
    OCN×ドコモ光新規お申込みで合計最大137,280円相当おトク!特典の内訳・適用条件など詳細はこちら

    武蔵野市内の各駅の住みやすさ

    他のエリアから探す

    武蔵野市の詳細地域から賃貸物件を探す

    吉祥寺北町吉祥寺東町吉祥寺本町吉祥寺南町境南町御殿山桜堤関前中町西久保緑町八幡町

    近辺の市区から探す

    所沢市朝霞市志木市和光市新座市入間郡三芳町新宿区世田谷区中野区杉並区練馬区三鷹市府中市調布市小金井市小平市東村山市国分寺市国立市狛江市東大和市清瀬市東久留米市稲城市西東京市川崎市多摩区

    周辺の駅から探す

    中央本線
    荻窪西荻窪吉祥寺三鷹武蔵境東小金井武蔵小金井国分寺西国分寺

    東京都武蔵野市で他のジャンルから探す


    掲載情報の著作権は提供元企業等に帰属します。
    Copyright:(C) 2025 At Home Co.,Ltd
    アプリで簡単 物件探し 大手不動産サイトの情報から一括検!プッシュ通知で物件を見逃さない
    App Storeからダウンロード Google Playで手に入れよう QRコード