アプリで簡単 物件探し 通知 共有 アプリならではの機能を使ってみる
賃貸アパート

robot home 千住緑町Ⅳ 千住大橋駅 1K 賃貸(賃貸マンション・アパート)

情報提供元
アットホーム
robot home 千住緑町Ⅳ
賃料 8.7万円  (管理費等:3000円)
礼金・敷金 なし / なし 保証金/敷引・償却 なし / -
交通
所在地 東京都足立区千住緑町3丁目周辺地図
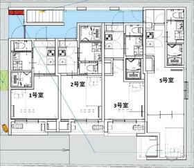
間取り 1K 専有面積 20.54m2
築年月 2025年12月 築年数 新築
おすすめポイント
デザイナーズ物件・初期費用カード決済可
お問い合わせ先
アエラス日暮里店 (株)アエラス.ER
お問い合わせ先
アエラス日暮里店 (株)アエラス.ER

詳細情報

賃料 8.7万円 管理費等 3000円
敷金 なし 礼金 なし
保証金 なし 敷引・償却 -
更新料 - 契約期間 2年
カード決済 初期費用カード決済可
所在地 東京都足立区千住緑町3丁目周辺地図
交通
建物名 robot home 千住緑町Ⅳ 
間取り 1K(K2洋室6.1) 築年月(築年数) 2025年12月 新築
専有面積 20.54㎡ 所在階/階数 1階/3階建
建物構造 木造  方位 南 
現況 未完成  駐車場 近有 17,600円
入居可能時期 2026年1月上旬 住宅保険 あり
情報提供元 アットホーム[1133541216] 情報公開日
情報更新日 - 次回更新予定日 随時

設備など

2階以上 - 最上階 - 角部屋 -
駐車場(近隣含) エアコン付き バス・トイレ別
室内洗濯機置き場 追焚機能 - オートロック付き
モニタ付インターホン フローリング バルコニー
ガスコンロ可 - 浴室乾燥機 24時間セキュリティ -
宅配ボックス ペット相談可 - 二人入居可 -
設備 エアコン・給湯・オートロック・バルコニー・バス・トイレ別・トイレ・洗濯機置場・室内洗濯機置き場・シャワー・都市ガス・洗面台・フローリング・浴室乾燥機・温水洗浄便座・システムキッチン・モニタ付インターホン・宅配BOX・モニタ付オートロック・防犯カメラ・洗面所独立・光ファイバー(ブロードバンド)・インターネット対応・インターネット無料 
リフォーム履歴 -
リノベーション履歴 -
備考 退去時ルーム清掃費55000円/ルームサポートサービス2000円(総括保険駆付けサービス入居者アプリシステム料)/口座振替手数料550円/早期解約違約金(1年未満退去家賃2ヶ月分、2年未満退去家賃1ヶ月分)/保証料10000円(年額)・賃貸保証等:加入要(初回:賃料等の100%)・オンラインで申込から契約手続き、LINEでのご相談も可能です/当物件は初期費用分割払い可(クレジットカード決済も可)/お客様のご希望に合わせた方法(店頭、オンライン等)で物件をご提案いたします/入居者アプリ設定費 16500円 
特記事項 デザイナーズ物件・初期費用カード決済可

省エネ性能

エネルギー消費性能 -
断熱性能 -
目安光熱費 -

東京都足立区千住緑町3丁目 周辺地図情報

地図
※地図上に表示される物件の位置は付近住所に所在することを表すものであり、実際の物件所在地とは異なる場合がございます。
   正確な物件所在地は、取扱い不動産会社にお問い合わせください。
お問い合わせ先
アエラス日暮里店 (株)アエラス.ER
アピールポイント
☆当店の強みをお伝えします☆①クレジットカードの初期費用分割払いを、喜んでお受けいたします(クレジットカード以外もOK)②他社様がネットに掲載されている物件は、全てお調べし、【好条件】でご紹介いたします他社様で「お申込み」された物件でも、【好条件】でご紹介できる場合がございます③「審査が不安…」「保証人がいない…」「値段交渉をして欲しい…」などなど、どのようなご条件でも、遠慮なくご相談いただけます④ご検討されている「エリア」「沿線」が「広範囲」「複数」でも、一度で漏れなくお探しいただけますポータルサイトや他社サイトで気になるお部屋がございましたらお気軽にご相談くださいお客様のご来店を心よりお待ちしております

不動産会社情報

お問い合わせ先 商号:アエラス日暮里店 (株)アエラス.ER
免許番号:国土交通大臣免許(1)第10724号
所在地:荒川区東日暮里6丁目60-5COCOSPACE日暮里 2階
TEL:03-5615-0370
取引態様:仲介
管理コード:68159211-1
所属協会など:(公社)全日本不動産協会会員、(公社)首都圏不動産公正取引協議会加盟
共有する
QRコード
お問い合わせ先
アエラス日暮里店 (株)アエラス.ER

    足立区の暮らしデータ

    人口などの統計情報

    世帯数 345010世帯
    人口総数 693223人
    転入者数 44256人
    転入率(人口1000人当たり)
    63.84人
    転出者数 35899人
    転出率(人口1000人当たり)
    51.79人
    土地平均価格
    住宅地
    371926円/m2
    商業地
    646909円/m2

    結婚・育児の助成金

    子育て関連の独自の取り組み (1)病児保育(在宅型)利用料金の助成。(2)あだちはじめてえほん事業。(3)あだち幼保小接続期カリキュラム。(4)あだちっ子歯科健診。(5)保育士・幼稚園教諭奨学金返済支援事業補助金。(6)保育士・幼稚園教諭住居借上げ支援事業補助金。(7)保育従事者永年勤続褒賞。(8)足立区教育・保育の質ガイドライン。(9)病児保育(施設型)。
    出産祝い あり
    公立保育所数 40所(うち0歳児保育を実施している保育所:21所)
    私立保育所数 113所(うち0歳児保育を実施している保育所:106所)
    保育所入所待機児童数 5人
    認定こども園数 7園 預かり保育実施園数 公立:- 私立:45園
    学校給食 【小学校】完全給食【中学校】完全給食
    公立中学校の学校選択制 実施(自由選択制)
    子ども・学生等医療費助成<通院>対象年齢 18歳3月末まで 子ども・学生等医療費助成<入院>対象年齢 18歳3月末まで

    足立区の治安・ごみ収集情報

    公共料金・インフラ

    ガス料金(22m3使用した場合の月額) 東京瓦斯株式会社(東京地区等)3926円
    水道料金(口径20mmで20m3の月額) 東京都水道局2816円
    下水道料金(20m3を使用した場合の月額) 東京都下水道局2068円
    下水道普及率 99.9%

    安心・安全

    建物火災出火件数 142件
    人口10000人当たり
    2.04件
    刑法犯認知件数 4222件
    人口1000人当たり
    6.07件
    ハザード・防災マップ あり

    医療

    一般病院総数 54ヶ所
    一般診療所総数 454ヶ所
    小児科医師数 144人
    小児人口10000人当たり
    19.86人
    産婦人科医師数 26人
    15~49歳女性人口1万人当たり
    1.79人
    介護保険料基準額(月額) 6750円

    ごみ

    家庭ごみ収集(可燃ごみ) 無料
    備考
    引越し等に伴う臨時ごみは有料。45リットルのごみ袋1袋あたり300円。
    家庭ごみの分別方式 3分別10種〔可燃ごみ 不燃ごみ 資源(古紙[新聞、雑誌類、雑がみ、段ボール、紙パック]、びん、缶、ペットボトル)〕千住、新田、宮城・小台のみ4分別12種〔可燃ごみ 不燃ごみ 資源(古紙[新聞、雑誌類、雑がみ、段ボール、紙パック]、びん、缶、ペットボトル) プラスチック(プラスチック製容器包装、製品プラスチック)〕
    家庭ごみの戸別収集 一部実施(次のいずれか位に該当する者のみで構成される世帯で、世帯員が集積所までごみを持ち出すことが困難であり、かつ、世帯員以外の者の協力を得ることが出来ない方。[1]要介護2以上に認定されている者。[2]身体障害者手帳1級又は2級に認定されている者。[3]その他自ら集積所にごみを出すことが困難であると区長が認める者)
    粗大ごみ収集 あり
    備考
    有料。事前申込制。ただし、指定場所への持込が可能な場合は年度内2回、1回につき10点まで無料。
    生ごみ処理機助成金制度 あり
    上限金額
    20000円
    上限比率
    50.0%
    暮らしデータ提供元:生活ガイド.com
    ※行政機関により公表していない地域及びデータがございます。東京23区以外の政令指定都市は、市全体のデータとして表示しています。
    ※提供データには細心の注意を払っておりますが、調査後に変更がある場合があります。 最新の情報につきましては各市区役所までお問い合わせいただくか、自治体HPなどをご確認ください。

    足立区内の各駅の住みやすさ

    他のエリアから探す

    足立区の詳細地域から賃貸物件を探す

    青井足立綾瀬伊興伊興本町入谷入谷町梅島梅田大谷田興野小台加賀加平北加平町栗原弘道江北古千谷本町佐野皿沼鹿浜島根新田神明神明南関原千住千住曙町千住旭町千住東千住大川町千住河原町千住寿町千住桜木千住関屋町千住龍田町千住中居町千住仲町千住橋戸町千住緑町千住宮元町千住元町千住柳町竹の塚辰沼中央本町椿東和舎人中川西綾瀬西新井西新井栄町西新井本町西伊興西加平西竹の塚西保木間花畑東綾瀬東伊興東保木間東六月町一ツ家日ノ出町平野保木間保塚町堀之内南花畑宮城六木本木本木北町本木西町本木東町本木南町谷在家谷中柳原六月六町

    近辺の市区から探す

    川口市草加市越谷市蕨市戸田市八潮市三郷市松戸市流山市千代田区中央区新宿区文京区台東区墨田区江東区豊島区北区荒川区板橋区葛飾区江戸川区

    周辺の駅から探す

    常磐線
    上野日暮里三河島南千住北千住松戸我孫子天王台
    京成電鉄本線
    京成上野日暮里新三河島町屋千住大橋京成関屋堀切菖蒲園お花茶屋青砥

    東京都足立区で他のジャンルから探す


    掲載情報の著作権は提供元企業等に帰属します。
    Copyright:(C) 2025 At Home Co.,Ltd
    アプリで簡単 物件探し 大手不動産サイトの情報から一括検!プッシュ通知で物件を見逃さない
    App Storeからダウンロード Google Playで手に入れよう QRコード