アプリで簡単 物件探し 通知 共有 アプリならではの機能を使ってみる
賃貸マンション

東京都文京区向丘2丁目 東大前駅 1K 賃貸(賃貸マンション・アパート)

情報提供元
アットホーム
賃料 8.6万円  (管理費等:3000円)
礼金・敷金 1ヶ月 / 1ヶ月 保証金/敷引・償却 なし / -
交通
所在地 東京都文京区向丘2丁目周辺地図
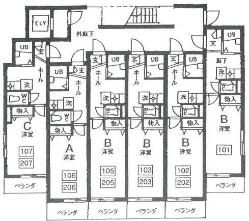
間取り 1K 専有面積 21.58m2
築年月 2003年3月 築年数 築22年10ヶ月

詳細情報

賃料 8.6万円 管理費等 3000円
敷金 1ヶ月 礼金 1ヶ月
保証金 なし 敷引・償却 -
更新料 新賃料の1ヶ月分 契約期間 2年
カード決済 -
所在地 東京都文京区向丘2丁目周辺地図
交通
  • 東京メトロ南北線 東大前駅 徒歩6分乗換案内
  • 東京メトロ千代田線 千駄木駅 徒歩7分乗換案内
  • 都営三田線 白山駅 徒歩8分乗換案内
建物名  
間取り 1K(洋 6) 築年月(築年数) 2003年3月(築22年10ヶ月)
専有面積 21.58㎡ 所在階/階数 2階/3階建
建物構造 鉄骨  方位 南 
現況 空  駐車場
入居可能時期 即時 住宅保険 あり 2年 19000円
情報提供元 アットホーム[6988443913] 情報公開日
情報更新日 - 次回更新予定日 随時

設備など

2階以上 最上階 - 角部屋 -
駐車場(近隣含) - エアコン付き バス・トイレ別
室内洗濯機置き場 - 追焚機能 - オートロック付き
モニタ付インターホン - フローリング バルコニー -
ガスコンロ可 - 浴室乾燥機 - 24時間セキュリティ -
宅配ボックス - ペット相談可 - 二人入居可 -
設備 エアコン・オートロック・バス・トイレ別・フローリング・駐輪場・リフォーム 
リフォーム履歴 ■内装
2025年11月実施
全室クロス張替え
※実施年月は、施工箇所の中で最も古いものを表示しています
リノベーション履歴 -
備考 要保証会社加入、要保険加入、更新料/新賃料の1ヵ月分、更新事務手数料/0.275ヵ月分、シリンダー交換費用負担有・賃貸保証等:加入要(初回委託料:賃料及び管理費総合計の50%、以後1年毎に1万円)・【東大前駅歩6分】1K・オートロック・バストイレ別【白山駅・本駒込駅・千駄木駅からも徒歩10分以内】・駐輪場:有(500円/月) 
特記事項

省エネ性能

エネルギー消費性能 -
断熱性能 -
目安光熱費 -

東京都文京区向丘2丁目 周辺地図情報

地図
※地図上に表示される物件の位置は付近住所に所在することを表すものであり、実際の物件所在地とは異なる場合がございます。
   正確な物件所在地は、取扱い不動産会社にお問い合わせください。
アピールポイント
【東大前駅歩6分】1K・オートロック・バストイレ別【白山駅・本駒込駅・千駄木駅からも徒歩10分以内】

不動産会社情報

お問い合わせ先 商号:日興不動産(株)
免許番号:東京都知事免許(13)第29331号
所在地:江東区白河1丁目2-10藤和シティホームズ清澄庭園1F
TEL:03-5620-0770
取引態様:仲介
管理コード:
所属協会など:(公社)東京都宅地建物取引業協会会員、(公社)首都圏不動産公正取引協議会加盟
共有する
QRコード

文京区の暮らしデータ

人口などの統計情報

世帯数 133564世帯
人口総数 232177人
転入者数 23087人
転入率(人口1000人当たり)
99.44人
転出者数 20326人
転出率(人口1000人当たり)
87.55人
土地平均価格
住宅地
1119571円/m2
商業地
1933636円/m2

結婚・育児の助成金

子育て関連の独自の取り組み (1)おうち家事・育児サポート事業(区が指定した事業者の家事・育児サポートを一定の負担で利用できる[おうち・家事育児サポート券]を希望者に配布。満3歳未満の乳幼児を養育する世帯が対象)。(2)ひとり親家庭子育て訪問支援券(区が指定した事業者のベビーシッターサービスを一定の負担で利用できる[子育て訪問支援券])を希望者に配付。(3)ネウボラ事業(妊娠から出産、子育て期にわたる切れ目ない支援を行う妊娠・出産包括支援事業)。(4)文京版スターティング・ストロング・プロジェクト(区教育センターを中心とした医師、教員、心理職等で構成された専門家チームが、区内の幼稚園・保育園等を訪問し、職員と協働して子どもに専門的発達支援を行い、子どもたちの健やかな育ちを支える)。
出産祝い なし
公立保育所数 19所(うち0歳児保育を実施している保育所:14所)
私立保育所数 77所(うち0歳児保育を実施している保育所:67所)
保育所入所待機児童数 2人
認定こども園数 1園 預かり保育実施園数 公立:10園 私立:14園
学校給食 【小学校】完全給食【中学校】完全給食
公立中学校の学校選択制 実施(新入学時又は他市区町村からの転入時[一人につき一度]のみ)
子ども・学生等医療費助成<通院>対象年齢 18歳3月末まで 子ども・学生等医療費助成<入院>対象年齢 18歳3月末まで

文京区の治安・ごみ収集情報

公共料金・インフラ

ガス料金(22m3使用した場合の月額) 東京瓦斯株式会社(東京地区等)3926円
水道料金(口径20mmで20m3の月額) 東京都水道局2816円
下水道料金(20m3を使用した場合の月額) 東京都下水道局2068円
下水道普及率 100.0%

安心・安全

建物火災出火件数 61件
人口10000人当たり
2.54件
刑法犯認知件数 1104件
人口1000人当たり
4.60件
ハザード・防災マップ あり

医療

一般病院総数 9ヶ所
一般診療所総数 309ヶ所
小児科医師数 253人
小児人口10000人当たり
85.84人
産婦人科医師数 159人
15~49歳女性人口1万人当たり
27.49人
介護保険料基準額(月額) 6107円

ごみ

家庭ごみ収集(可燃ごみ) 無料
備考
1回当たりに45リットル袋で4袋を超えるごみは有料。
家庭ごみの分別方式 3分別9種〔可燃ごみ 不燃ごみ 資源(新聞、雑誌、ダンボール、雑がみ、ビン、カン、ペットボトル)〕 拠点回収:資源(紙パック 乾電池 発泡スチロール食品トレイ 衣類 プラスチック製ボトル容器 インクカートリッジ 蛍光管 水銀使用計器類、携帯電話、スマートフォン)
家庭ごみの戸別収集 一部実施(訪問収集)
粗大ごみ収集 あり
備考
有料。事前申込制。
生ごみ処理機助成金制度 あり
上限金額
20000円
上限比率
50.0%
暮らしデータ提供元:生活ガイド.com
※行政機関により公表していない地域及びデータがございます。東京23区以外の政令指定都市は、市全体のデータとして表示しています。
※提供データには細心の注意を払っておりますが、調査後に変更がある場合があります。 最新の情報につきましては各市区役所までお問い合わせいただくか、自治体HPなどをご確認ください。
OCN×ドコモ光新規お申込みで合計最大137,280円相当おトク!特典の内訳・適用条件など詳細はこちら

文京区内の各駅の住みやすさ


掲載情報の著作権は提供元企業等に帰属します。
Copyright:(C) 2025 At Home Co.,Ltd
アプリで簡単 物件探し 大手不動産サイトの情報から一括検!プッシュ通知で物件を見逃さない
App Storeからダウンロード Google Playで手に入れよう QRコード