アプリで簡単 物件探し 通知 共有 アプリならではの機能を使ってみる
賃貸アパート

エクセル千葉寺 千葉寺駅 2LDK 賃貸(賃貸マンション・アパート)

情報提供元
アットホーム
エクセル千葉寺 外観
賃料 7.7万円  (管理費等:5000円)
礼金・敷金 なし / なし 保証金/敷引・償却 なし / -
交通
所在地 千葉県千葉市中央区千葉寺町周辺地図
間取り 2LDK 専有面積 56.01m2
築年月 1994年3月 築年数 築31年9ヶ月
おすすめポイント
角部屋
お問い合わせ先
ピタットハウス蘇我西口店 (株)エムビレッジ
お問い合わせ先
ピタットハウス蘇我西口店 (株)エムビレッジ

詳細情報

賃料 7.7万円 管理費等 5000円
敷金 なし 礼金 なし
保証金 なし 敷引・償却 -
更新料 - 契約期間 2年
カード決済 -
所在地 千葉県千葉市中央区千葉寺町周辺地図
交通
建物名 エクセル千葉寺 
間取り 2LDK 築年月(築年数) 1994年3月(築31年9ヶ月)
専有面積 56.01㎡ 所在階/階数 2階/3階建
建物構造 軽量鉄骨  方位  
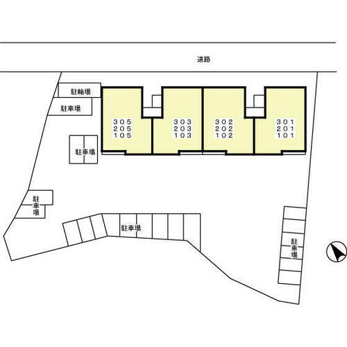
現況 空  駐車場 有 6,600円
入居可能時期 即時 住宅保険 あり
情報提供元 アットホーム[1177477202] 情報公開日
情報更新日 - 次回更新予定日 随時

設備など

2階以上 最上階 - 角部屋
駐車場(近隣含) エアコン付き バス・トイレ別
室内洗濯機置き場 追焚機能 オートロック付き -
モニタ付インターホン フローリング - バルコニー
ガスコンロ可 - 浴室乾燥機 - 24時間セキュリティ -
宅配ボックス - ペット相談可 - 二人入居可 -
設備 エアコン・バルコニー・バス・トイレ別・洗濯機置場・室内洗濯機置き場・シャワー・CATV・BS端子・追焚機能・都市ガス・シャンプードレッサ・温水洗浄便座・システムキッチン・モニタ付インターホン・シューズボックス 
リフォーム履歴 -
リノベーション履歴 -
備考 敷地内駐車場契約可能です!京成電鉄千原線千葉寺駅徒歩3分!家計に嬉しい都市ガス!室内洗濯機置場!機関保証加入必須。 機関保証料は月額賃料等総額の3.4%+800円/月(その他商品あり) 65歳以上の方の契約は定期借家契約(2年再契約型)、機関保証の加入が必須となります(初回保証料:月額賃料等合計額×100%,更新:2万円/1年) 本貸室の電気は、貸主から配給されます。/ルームクリーニング料金 77000円 
特記事項 角部屋

省エネ性能

エネルギー消費性能 -
断熱性能 -
目安光熱費 -

千葉県千葉市中央区千葉寺町 周辺地図情報

地図
※地図上に表示される物件の位置は付近住所に所在することを表すものであり、実際の物件所在地とは異なる場合がございます。
   正確な物件所在地は、取扱い不動産会社にお問い合わせください。
お問い合わせ先
ピタットハウス蘇我西口店 (株)エムビレッジ

不動産会社情報

お問い合わせ先 商号:ピタットハウス蘇我西口店 (株)エムビレッジ
免許番号:千葉県知事免許(2)第17694号
所在地:千葉市中央区今井1丁目19-22
TEL:043-420-8903
取引態様:仲介
管理コード:11623556-638
所属協会など:(公社)全日本不動産協会会員、(公社)首都圏不動産公正取引協議会加盟
共有する
QRコード
お問い合わせ先
ピタットハウス蘇我西口店 (株)エムビレッジ

千葉市中央区の暮らしデータ

人口などの統計情報

世帯数 445814世帯
人口総数 978899人
転入者数 58210人
転入率(人口1000人当たり)
59.46人
転出者数 50072人
転出率(人口1000人当たり)
51.15人
土地平均価格
住宅地
121580円/m2
商業地
397034円/m2

結婚・育児の助成金

子育て関連の独自の取り組み (1)5年連続待機児童ゼロ。(2)政令市で2番目の産後ケア利用件数(2021年度政令指定都市主管課長会議)。(3)放課後児童クラブと放課後子ども教室を一体的に運営するアフタースクール。(4)小中学生に「ふれあいパスポート」(対象施設を無料・割引で利用可能)を配布。(5)ステップルームティーチャーの配置等6つの取組み(不登校対策パッケージ)。(6)保育園での医療的ケア児の受入。(7)3歳未満児在宅保育支援給付。(8)公立保育所における休日保育。(9)施設利用選考基準における多胎児への加点。(10)子育て支援コンシェルジュ。(11)エンゼルヘルパー。(12)男性の育児休業取得促進奨励金。(13)こども誰でも通園制度の試行。
出産祝い あり
公立保育所数 52所(うち0歳児保育を実施している保育所:51所)
私立保育所数 175所(うち0歳児保育を実施している保育所:175所)
保育所入所待機児童数 0人
認定こども園数 46園 預かり保育実施園数 公立:- 私立:53園
学校給食 【小学校】完全給食【中学校】完全給食
公立中学校の学校選択制 未実施
子ども・学生等医療費助成<通院>対象年齢 18歳3月末まで 子ども・学生等医療費助成<入院>対象年齢 18歳3月末まで

千葉市中央区の治安・ごみ収集情報

公共料金・インフラ

ガス料金(22m3使用した場合の月額) 東京瓦斯株式会社(東京地区等)3926円
大多喜ガス株式会社(内房地区12A地区)4180円
大多喜ガス株式会社(内房地区13A地区)4105円
習志野市3432円
水道料金(口径20mmで20m3の月額) 千葉市3250円
千葉県営水道3250円
四街道市2640円
下水道料金(20m3を使用した場合の月額) 千葉市2140円
下水道普及率 97.5%

安心・安全

建物火災出火件数 145件
人口10000人当たり
1.49件
刑法犯認知件数 7010件
人口1000人当たり
7.19件
ハザード・防災マップ あり

医療

一般病院総数 42ヶ所
一般診療所総数 717ヶ所
小児科医師数 229人
小児人口10000人当たり
21.09人
産婦人科医師数 100人
15~49歳女性人口1万人当たり
5.17人
介護保険料基準額(月額) 6300円

ごみ

家庭ごみ収集(可燃ごみ) 有料
備考
指定ごみ袋有料。家庭ごみ処理手数料として1リットルあたり0.8円にて販売。
家庭ごみの分別方式 4分別20種〔可燃ごみ 不燃ごみ 資源物(びん[無色、茶色、その他]、缶、ペットボトル、木の枝、刈り草・葉、新聞、雑誌、段ボール、紙パック、雑がみ、布類) 有害ごみ(乾電池、蛍光灯、水銀入り体温計・血圧計、カセット式ガスボンベ・スプレー缶、使い捨てガスライター)〕
家庭ごみの戸別収集 未実施
粗大ごみ収集 あり
備考
有料。事前申込制。受付センターへ申込み。
生ごみ処理機助成金制度 あり
上限金額
35000円
上限比率
50.0%
暮らしデータ提供元:生活ガイド.com
※行政機関により公表していない地域及びデータがございます。東京23区以外の政令指定都市は、市全体のデータとして表示しています。
※提供データには細心の注意を払っておりますが、調査後に変更がある場合があります。 最新の情報につきましては各市区役所までお問い合わせいただくか、自治体HPなどをご確認ください。
OCN×ドコモ光新規お申込みで合計最大137,280円相当おトク!特典の内訳・適用条件など詳細はこちら

千葉市中央区内の各駅の住みやすさ


掲載情報の著作権は提供元企業等に帰属します。
Copyright:(C) 2025 At Home Co.,Ltd
アプリで簡単 物件探し 大手不動産サイトの情報から一括検!プッシュ通知で物件を見逃さない
App Storeからダウンロード Google Playで手に入れよう QRコード