アプリで簡単 物件探し 通知 共有 アプリならではの機能を使ってみる
中古マンション

プレミスト豊中少路 5階 2LDK

情報提供元
SUUMO
プレミスト豊中少路 【外観】<BR>2020年2月築、総戸数93戸、管理の行き届いた8階建マンションです。築浅で内外観ともに美麗です。大阪モノレール『少路』駅まで徒歩6分、『千里中央』駅までは1駅で乗車2分という好立地です◎
価格 3880万円  (管理費等:9200円/月(委託(通勤)))
修繕積立金 8,900円
交通
所在地 大阪府豊中市桜の町6周辺地図
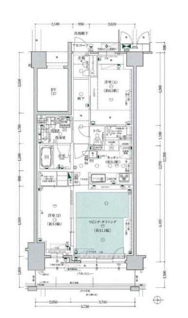
間取り 2LDK 専有面積 62.43m2
所在階/階数 5階/8階建 方位
築年月 2020年2月 築年数 築5年10ヶ月
おすすめポイント
■5階東向きワイドバルコニーに面した約14.3帖LDKには床暖房がついています■浴室暖房乾燥機・食洗機などうれしい設備あります■2部屋とも約5.5帖以上の洋室で窓とWIC収納があります◎■玄関収納・キッチン収納・リビング収納もあります■2020年2月築、総戸数93戸、オートロック・宅配ボックスつき、エレベーターすぐ隣のお部屋です■大阪中央環状線やロマンチック街道に面し車移動も便利です~周辺環境~・業務スーパー少路店 徒歩8分・セブンイレブン豊中桜の街6丁目店 徒歩3分・桜井谷東小学校 徒歩8分・第二中学校 徒歩15分・豊中敬仁会病院 徒歩7分・はたかいけ公園 徒歩4分
ペット相談可・日当り良好・角部屋・管理人日勤
お問い合わせ先
リノベ不動産 江坂店(株)ファンカンパニー
物件を見たい、物件や住環境の詳しい情報やローン相談など、
お問い合わせ先
リノベ不動産 江坂店(株)ファンカンパニー

詳細情報

価格 3880万円 管理費等 9200円/月(委託(通勤))
駐車場   修繕積立金 8,900円
所在地 大阪府豊中市桜の町6周辺地図
交通
  • 大阪モノレール本線 少路駅 徒歩6分乗換案内
  • 大阪モノレール本線 柴原阪大前駅 徒歩15分乗換案内
  • 阪急宝塚線 豊中駅 徒歩27分乗換案内
物件名 プレミスト豊中少路
築年月(築年数) 2020年2月(築5年10ヶ月) 間取り 2LDK
総戸数 93戸 専有面積 62.43m2
所在階/階数 5階/8階建 バルコニー面積
方位 建物構造 RC
管理形態 委託管理
維持費等 インターネット使用料(月額)990円 土地権利 所有権
用途地域 1種住居 借地期間・地代
現況 引渡可能年月 即時
情報提供元 SUUMO [060Z78695209] 情報公開日
情報更新日 次回更新予定日 随時

設備など

ペット相談可 即入居可 南向き -
角部屋 駐車場空き有り - トランクルーム -
オートロック - 宅配ボックス 浴室乾燥機 -
床暖房 ウォークインクローゼット 管理人常駐 -
最上階 - 2階以上 タワーマンション -
設備 収納スペース・エレベーター・管理人日勤・ウォークインクローゼット・システムキッチン・モニタ付インターホン・対面K・床暖房・複層ガラス・バイク置き場・駐輪場・宅配BOX
リフォーム履歴 -
リノベーション履歴 -
備考 <物件名>プレミスト豊中少路/委託(日勤)/<土地権利>所有権/<間取り>2LDK/<用途地域>2種住居あり/<特徴>すぐ見学可能◎少路駅徒歩6分!約14帖LDK◎ペットと暮らせます(細則有)、即引渡可・2沿線以上利用可・スーパー 徒歩10分以内・市街地が近い・システムキッチン
販売戸数:1戸/管理費等帯:9200円/修繕積立金帯:8900円
特記事項 ペット相談可・日当り良好・角部屋・管理人日勤

省エネ性能

エネルギー消費性能 -
断熱性能 -
目安光熱費 -

大阪府豊中市桜の町6 周辺地図情報

地図
※地図上に表示される物件の位置は付近住所に所在することを表すものであり、実際の物件所在地とは異なる場合がございます。
   正確な物件所在地は、取扱い不動産会社にお問い合わせください。
物件を見たい、物件や住環境の詳しい情報やローン相談など、
お問い合わせ先
リノベ不動産 江坂店(株)ファンカンパニー

不動産会社情報

お問い合わせ先 商号:リノベ不動産 江坂店(株)ファンカンパニー
免許番号:大阪府知事(1)第066279号
所在地:大阪府吹田市江坂町1-23-32-2階
TEL:0120-223666
取引態様:媒介
共有する
QRコード
物件を見たい、物件や住環境の詳しい情報やローン相談など、
お問い合わせ先
リノベ不動産 江坂店(株)ファンカンパニー

豊中市の暮らしデータ

人口などの統計情報

世帯数 176759世帯
人口総数 406836人
転入者数 20207人
転入率(人口1000人当たり)
49.67人
転出者数 19359人
転出率(人口1000人当たり)
47.58人
土地平均価格
住宅地
242750円/m2
商業地
358500円/m2

結婚・育児の助成金

子育て関連の独自の取り組み (1)子育て情報をまとめた「子育て応援BOOK『みんなで』」を配布。(2)こんにちは赤ちゃん事業(乳児家庭全戸訪問事業)。(3)保護者支援プログラムの実施(「安心感の輪」子育てプログラム)。 (4)多胎児家庭育児支援事業の実施。(5)とよなか子育て応援団(子育て家庭に配慮した取組みをする事業者を登録・周知)。(6)子育ち・子育て応援アプリ 「とよふぁみ」(成長記録や予防接種のスケジュール管理と、行政サービスやイベント等の情報発信)。(7)午前7時から登校時間(午前8時)まで、通学する小学校及び義務教育学校の体育館等での児童の見守り。(8)第二子以降の保育料無料。(9)豊中市立学校における学校教育活動徴収金無償化。
出産祝い あり
公立保育所数 0所(うち0歳児保育を実施している保育所:-)
私立保育所数 48所(うち0歳児保育を実施している保育所:46所)
保育所入所待機児童数 28人
認定こども園数 59園 預かり保育実施園数 公立:- 私立:14園
学校給食 【小学校】完全給食【中学校】デリバリー形式[運搬:ランチボックス及び食缶、内容:完全給食]
公立中学校の学校選択制 未実施
子ども・学生等医療費助成<通院>対象年齢 18歳3月末まで 子ども・学生等医療費助成<入院>対象年齢 18歳3月末まで

豊中市の治安・ごみ収集情報

公共料金・インフラ

ガス料金(22m3使用した場合の月額) 大阪瓦斯株式会社4544円
水道料金(口径20mmで20m3の月額) 豊中市2497円
下水道料金(20m3を使用した場合の月額) 豊中市1421円
下水道普及率 100.0%

安心・安全

建物火災出火件数 63件
人口10000人当たり
1.57件
刑法犯認知件数 2040件
人口1000人当たり
5.08件
ハザード・防災マップ あり

医療

一般病院総数 17ヶ所
一般診療所総数 430ヶ所
小児科医師数 71人
小児人口10000人当たり
13.09人
産婦人科医師数 33人
15~49歳女性人口1万人当たり
4.00人
介護保険料基準額(月額) 6998円

ごみ

家庭ごみ収集(可燃ごみ) 無料
備考
引越し等で、臨時に大量のごみを排出する場合は収集時に現金徴収。
家庭ごみの分別方式 8分別〔可燃ごみ 不燃ごみ 空き缶・危険ごみ 充電式電池内蔵の小型家電・電池類 プラスチック製容器包装 ペットボトル ビン 紙・布〕 拠点回収:使用済小型家電 水銀使用廃製品
家庭ごみの戸別収集 一部実施(【ふれあい収集】対象要件を満たした高齢者及び障害者に実施)
粗大ごみ収集 あり
備考
有料。事前申込制。
生ごみ処理機助成金制度 なし
上限金額
-
上限比率
-

豊中市の住まいの給付金

中古購入

利子補給制度 なし
補助/助成金制度 なし

増築・改築・改修

利子補給制度 なし
補助/助成金制度 あり
上限金額
(1)5万円(2)10万円(3)100万円(4)20万円
備考
(1)【耐震診断補助】木造住宅5万円、非木造2.5万円、1981年5月31日以前建築の住宅。(2)【耐震設計補助】1981年5月31日以前建築の階数2以下の木造住宅。(3)【耐震改修補助】1981年5月31日以前建築の階数2以下の木造住宅。(4)【スマートハウス等支援補助】市内の既築住宅の断熱リフォーム経費(必要な建築材料の購入経費と必要な工事にかかる経費)の1/3を補助(上限20万円)。(4)以外他要件あり。
暮らしデータ提供元:生活ガイド.com
※行政機関により公表していない地域及びデータがございます。東京23区以外の政令指定都市は、市全体のデータとして表示しています。
※提供データには細心の注意を払っておりますが、調査後に変更がある場合があります。 最新の情報につきましては各市区役所までお問い合わせいただくか、自治体HPなどをご確認ください。

この物件を見た人はこんな物件も見ています

OCN×ドコモ光新規お申込みで合計最大137,280円相当おトク!特典の内訳・適用条件など詳細はこちら

豊中市内の各駅の住みやすさ

他のエリアから探す

豊中市の詳細地域から中古マンション物件を探す

旭丘上野坂上野西上野東永楽荘大島町岡上の町岡町岡町北岡町南小曽根春日町上新田北桜塚北条町北緑丘熊野町桜の町三和町柴原町少路庄内幸町庄内栄町庄内西町城山町新千里北町新千里西町新千里東町新千里南町末広町清風荘千里園曽根西町曽根東町曽根南町立花町玉井町大黒町長興寺南寺内利倉西利倉東刀根山刀根山元町中桜塚西泉丘西緑丘野田町服部西町服部本町服部南町服部元町服部豊町東泉丘東寺内町東豊中町豊南町西螢池北町螢池中町螢池東町螢池南町本町三国緑丘南桜塚宮山町向丘夕日丘

近辺の市区から探す

大阪市都島区大阪市福島区大阪市此花区大阪市西区大阪市西淀川区大阪市東淀川区大阪市旭区大阪市城東区大阪市淀川区大阪市鶴見区大阪市北区大阪市中央区池田市吹田市守口市茨木市箕面市門真市摂津市尼崎市西宮市伊丹市宝塚市川西市

周辺の駅から探す

阪急電鉄宝塚線
庄内服部天神曽根岡町豊中蛍池石橋阪大前池田川西能勢口
大阪モノレール本線
大阪空港蛍池柴原阪大前少路千里中央山田万博記念公園宇野辺

マンションライブラリーを見る

プレミスト豊中少路

住宅ローンの返済額一覧

物件価格 3880万円に対して、年率 で、頭金 の場合
↓ボーナス 35年間 30年間 25年間 20年間 15年間 10年間
0万円 87,739円/月 101,126円/月 119,878円/月 148,021円/月 194,946円/月 288,825円/月
5万円 78,654円/月 92,150円/月 111,011円/月 139,262円/月 186,295円/月 280,280円/月
10万円 69,568円/月 83,174円/月 102,144円/月 130,504円/月 177,643円/月 271,735円/月
15万円 60,483円/月 74,198円/月 93,278円/月 121,745円/月 168,992円/月 263,190円/月
20万円 51,397円/月 65,223円/月 84,411円/月 112,986円/月 160,340円/月 254,645円/月
25万円 ローン不可 56,247円/月 75,544円/月 104,228円/月 151,689円/月 246,099円/月
30万円 ローン不可 ローン不可 66,677円/月 95,469円/月 143,037円/月 237,554円/月
支払い利息合計 3,064,870円~ 2,620,720円~ 2,178,800円~ 1,737,520円~ 1,299,610円~ 865,220円~
※元利均等返済方式で試算しています。 「円」の単位以下の端数金額は「切り捨て」として計算しております。
※金利は、固定金利として計算しております。
※上記の住宅ローン返済額一覧は、あくまで試算であり、将来の金利動向により、実際のご返済額とは異なります。
※ボーナス支払総額が総支払額の50%を超えている場合、上記の表では「ローン不可」となります。
※住宅ローン返済額一覧の数値は、住宅ローンのお申し込みやご融資をお約束するものではございません。
物件を見たい、物件や住環境の詳しい情報やローン相談など、
お問い合わせ先
リノベ不動産 江坂店(株)ファンカンパニー

掲載情報の著作権は提供元企業等に帰属します。
Copyright:(C) 2025 Recruit Co., Ltd.
アプリで簡単 物件探し 大手不動産サイトの情報から一括検!プッシュ通知で物件を見逃さない
App Storeからダウンロード Google Playで手に入れよう QRコード