アプリで簡単 物件探し 通知 共有 アプリならではの機能を使ってみる
中古マンション

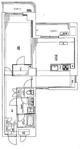
マイキャッスル大塚アーバンステージ 6階 2LDK

情報提供元
SUUMO
マイキャッスル大塚アーバンステージ 【◆マイキャッスル大塚アーバンステージ◇】<BR>6階、陽当たりに恵まれた室内は、2025年9月に新規内装リノベーション済み!新生活にぴったりな住戸です♪
価格 7990万円  (管理費等:7950円/月(委託(通勤)))
修繕積立金 6,100円
交通
所在地 東京都豊島区南大塚3周辺地図
間取り 2LDK 専有面積 51.05m2(15.44坪)(壁芯)
所在階/階数 6階/12階建 方位 北東
築年月 1996年8月 築年数 築29年3ヶ月
おすすめポイント
□□■□■ Toho House Shin-Koiwa ■□■□□◆SUUMO口コミ数 東京23区第1位!◆【950件以上! 評価点 4.7点/5.0点満点 】たくさんのお客様から嬉しいお声を頂いております。これからも素敵なお家探しをお約束します。◆SUUMO非掲載物件◆は東宝ハウス新小岩のHPでCheck!◆HPにて購入・売却後の【写真付きお客様の声】888件以上!◆お家探しを始めてみようと思われましたら【東宝ハウス新小岩】までご相談下さいませ。お問合せは【資料請求ボタン】又はフリーダイヤル【0120-104-581 】こちらまでお気軽にお問合せ下さいませ。
日当り良好・角部屋・管理人日勤・瑕疵保証(不動産会社独自)
お問い合わせ先
東宝ハウスライフソリューションズグループ(株)東宝ハウス新小岩4課
物件を見たい、物件や住環境の詳しい情報やローン相談など、
お問い合わせ先
東宝ハウスライフソリューションズグループ(株)東宝ハウス新小岩4課

詳細情報

価格 7990万円 管理費等 7950円/月(委託(通勤))
駐車場 空無 修繕積立金 6,100円
所在地 東京都豊島区南大塚3周辺地図
交通
物件名 マイキャッスル大塚アーバンステージ
築年月(築年数) 1996年8月(築29年3ヶ月) 間取り 2LDK
総戸数 55戸 専有面積 51.05m2(15.44坪)(壁芯)
所在階/階数 6階/12階建 バルコニー面積 7.32m2
方位 北東 建物構造 RC
管理形態 委託管理
維持費等 土地権利 所有権
用途地域 商業地域 借地期間・地代
現況 引渡可能年月 即時
情報提供元 SUUMO [030Z78439232] 情報公開日
情報更新日 次回更新予定日 随時

設備など

ペット相談可 - 即入居可 南向き -
角部屋 駐車場空き有り - トランクルーム -
オートロック - 宅配ボックス 浴室乾燥機 -
床暖房 - ウォークインクローゼット - 管理人常駐 -
最上階 - 2階以上 タワーマンション -
設備 バルコニー・トイレ・収納スペース・洗面所・エレベーター・管理人日勤・シャンプードレッサ・温水洗浄便座・システムキッチン・モニタ付インターホン・風呂・浄水器・食器洗浄乾燥機・リフォーム・バイク置き場・駐輪場・宅配BOX・リノベーション
リフォーム履歴 2025年9月完了
 水回り設備交換:キッチン・浴室・トイレ
 内装リフォーム:壁・床
 その他:洗面台等
※年月は一番古いリフォーム箇所を表します
リノベーション履歴 -
備考 <物件名>マイキャッスル大塚アーバンステージ/<駐車場>空無/委託(日勤)/<土地権利>所有権の共有/<間取り>2LDK/<リフォーム>●リフォーム:2025年9月完了(水回り設備交換:キッチン・浴室・トイレ、内装リフォーム:壁・床、その他:洗面台等)※年月は一番古いリフォーム箇所を表します/<特徴>◆JR山手線「大塚」駅徒歩2分◆新規内装リノベ×6階角部屋、瑕疵保証付(不動産会社独自)・修繕・点検の記録・年内引渡可・即引渡可・内装リフォーム
販売戸数:1戸/管理費等帯:7950円/修繕積立金帯:6100円
法令等制限:駐車場:月38000円・月40000円(空き要確認) バイク置場:月500円(空有) 駐輪場:無償(申込時保証料500円)
特記事項 日当り良好・角部屋・管理人日勤・瑕疵保証(不動産会社独自)

省エネ性能

エネルギー消費性能 -
断熱性能 -
目安光熱費 -

東京都豊島区南大塚3 周辺地図情報

地図
※地図上に表示される物件の位置は付近住所に所在することを表すものであり、実際の物件所在地とは異なる場合がございます。
   正確な物件所在地は、取扱い不動産会社にお問い合わせください。
物件を見たい、物件や住環境の詳しい情報やローン相談など、
お問い合わせ先
東宝ハウスライフソリューションズグループ(株)東宝ハウス新小岩4課

不動産会社情報

お問い合わせ先 商号:東宝ハウスライフソリューションズグループ(株)東宝ハウス新小岩4課
免許番号:東京都知事(2)第103488号
所在地:東京都葛飾区新小岩1-51-18 第2クレールパル1階
TEL:0120-104581
取引態様:媒介
管理コード:11492 岡本
共有する
QRコード
物件を見たい、物件や住環境の詳しい情報やローン相談など、
お問い合わせ先
東宝ハウスライフソリューションズグループ(株)東宝ハウス新小岩4課

豊島区の暮らしデータ

人口などの統計情報

世帯数 183687世帯
人口総数 291650人
転入者数 35939人
転入率(人口1000人当たり)
123.23人
転出者数 30649人
転出率(人口1000人当たり)
105.09人
土地平均価格
住宅地
783000円/m2
商業地
2992846円/m2

結婚・育児の助成金

子育て関連の独自の取り組み (1)としまもっと見る知る(アプリ)による出産子育て情報の提供。(2)ゆりかご・としま事業等実施。(3)生涯学習保育者登録制度(区民グループの学習活動中の保育者派遣)。(4)地域がつながるプロジェクト。(5)妊産婦歯科健診、1歳児歯科健診・総合相談の実施。(6)月齢4ヶ月から11ヶ月のお子さんを養育する世帯に訪問し状況を伺い育児支援品に引き換えできる電子クーポンを訪問1回につき3,000円相当を配付。(7)妊娠期からの男性育児支援。(8)一時保育事業において2回目以降の予約申し込みの際はWEB申し込み可。(9)東部・西部子ども家庭支援センターの幼児が使用したおむつを圧縮ラミネートにより無菌状態で回収。
出産祝い あり
公立保育所数 18所(うち0歳児保育を実施している保育所:18所)
私立保育所数 75所(うち0歳児保育を実施している保育所:65所)
保育所入所待機児童数 0人
認定こども園数 1園 預かり保育実施園数 公立:3園 私立:14園
学校給食 【小学校】完全給食【中学校】完全給食
公立中学校の学校選択制 実施(新入学時のみ[隣接区域選択制])
子ども・学生等医療費助成<通院>対象年齢 18歳3月末まで 子ども・学生等医療費助成<入院>対象年齢 18歳3月末まで

豊島区の治安・ごみ収集情報

公共料金・インフラ

ガス料金(22m3使用した場合の月額) 東京瓦斯株式会社(東京地区等)3926円
水道料金(口径20mmで20m3の月額) 東京都水道局2816円
下水道料金(20m3を使用した場合の月額) 東京都下水道局2068円
下水道普及率 100.0%

安心・安全

建物火災出火件数 78件
人口10000人当たり
2.59件
刑法犯認知件数 3405件
人口1000人当たり
11.29件
ハザード・防災マップ あり

医療

一般病院総数 14ヶ所
一般診療所総数 509ヶ所
小児科医師数 86人
小児人口10000人当たり
32.96人
産婦人科医師数 35人
15~49歳女性人口1万人当たり
4.75人
介護保険料基準額(月額) 6200円

ごみ

家庭ごみ収集(可燃ごみ) 無料
備考
一度に大量のごみを出す場合(45リットルの袋で4袋以上)は有料。
家庭ごみの分別方式 3分別13種〔燃やすごみ 金属・陶器・ガラスごみ 資源1(紙布類[新聞、雑誌、段ボール、厚紙製の箱、包装紙、牛乳パック、古布]、びん・かん・ペットボトル、プラスチック)〕 拠点回収:小型家電 蛍光灯 乾電池 廃食油
家庭ごみの戸別収集 一部実施(高齢者、障害者等の世帯で、自力でごみを集積所まで出すことが困難であり、身近な人の協力を得ることができない世帯に訪問収集を実施)
粗大ごみ収集 あり
備考
有料。事前申込制。
生ごみ処理機助成金制度 あり
上限金額
20000円
上限比率
50.0%

豊島区の住まいの給付金

中古購入

利子補給制度 なし
補助/助成金制度 なし

増築・改築・改修

利子補給制度 なし
補助/助成金制度 あり
上限金額
(1)20万円(2)15万円(3)150万円
備考
(1)【住宅修繕・リフォーム資金助成制度】個人住宅および賃貸住宅が対象。倉庫、車庫、店舗、外構等は除く。豊島区に2年以上居住していること、世帯所得等、条件あり。対象工事の経費(消費税を除く)のうち30%以内。修繕工事は上限10万円、リフォーム工事は上限20万円。(2)【木造住宅の耐震診断助成金】診断に係る費用、上限15万円。(3)【木造住宅の耐震改修助成金】改修費用の2/3、上限100万円。区内施工業者を利用の場合、改修費用の1/6(上限50万円)を上乗せ。
暮らしデータ提供元:生活ガイド.com
※行政機関により公表していない地域及びデータがございます。東京23区以外の政令指定都市は、市全体のデータとして表示しています。
※提供データには細心の注意を払っておりますが、調査後に変更がある場合があります。 最新の情報につきましては各市区役所までお問い合わせいただくか、自治体HPなどをご確認ください。

この物件を見た人はこんな物件も見ています

OCN×ドコモ光新規お申込みで合計最大137,280円相当おトク!特典の内訳・適用条件など詳細はこちら

豊島区内の各駅の住みやすさ

住宅ローンの返済額一覧

物件価格 7990万円に対して、年率 で、頭金 の場合
↓ボーナス 35年間 30年間 25年間 20年間 15年間 10年間
0万円 194,429円/月 224,092円/月 265,647円/月 328,012円/月 431,996円/月 640,030円/月
5万円 185,343円/月 215,117円/月 256,781円/月 319,253円/月 423,345円/月 631,485円/月
10万円 176,258円/月 206,141円/月 247,914円/月 310,495円/月 414,694円/月 622,940円/月
15万円 167,172円/月 197,165円/月 239,047円/月 301,736円/月 406,042円/月 614,395円/月
20万円 158,087円/月 188,190円/月 230,180円/月 292,977円/月 397,391円/月 605,850円/月
25万円 149,002円/月 179,214円/月 221,314円/月 284,219円/月 388,739円/月 597,305円/月
30万円 139,916円/月 170,238円/月 212,447円/月 275,460円/月 380,088円/月 588,760円/月
支払い利息合計 6,781,950円~ 5,791,840円~ 4,809,800円~ 3,835,360円~ 2,868,790円~ 1,909,940円~
※元利均等返済方式で試算しています。 「円」の単位以下の端数金額は「切り捨て」として計算しております。
※金利は、固定金利として計算しております。
※上記の住宅ローン返済額一覧は、あくまで試算であり、将来の金利動向により、実際のご返済額とは異なります。
※ボーナス支払総額が総支払額の50%を超えている場合、上記の表では「ローン不可」となります。
※住宅ローン返済額一覧の数値は、住宅ローンのお申し込みやご融資をお約束するものではございません。
物件を見たい、物件や住環境の詳しい情報やローン相談など、
お問い合わせ先
東宝ハウスライフソリューションズグループ(株)東宝ハウス新小岩4課

掲載情報の著作権は提供元企業等に帰属します。
Copyright:(C) 2025 Recruit Co., Ltd.
アプリで簡単 物件探し 大手不動産サイトの情報から一括検!プッシュ通知で物件を見逃さない
App Storeからダウンロード Google Playで手に入れよう QRコード