アプリで簡単 物件探し 通知 共有 アプリならではの機能を使ってみる
中古マンション

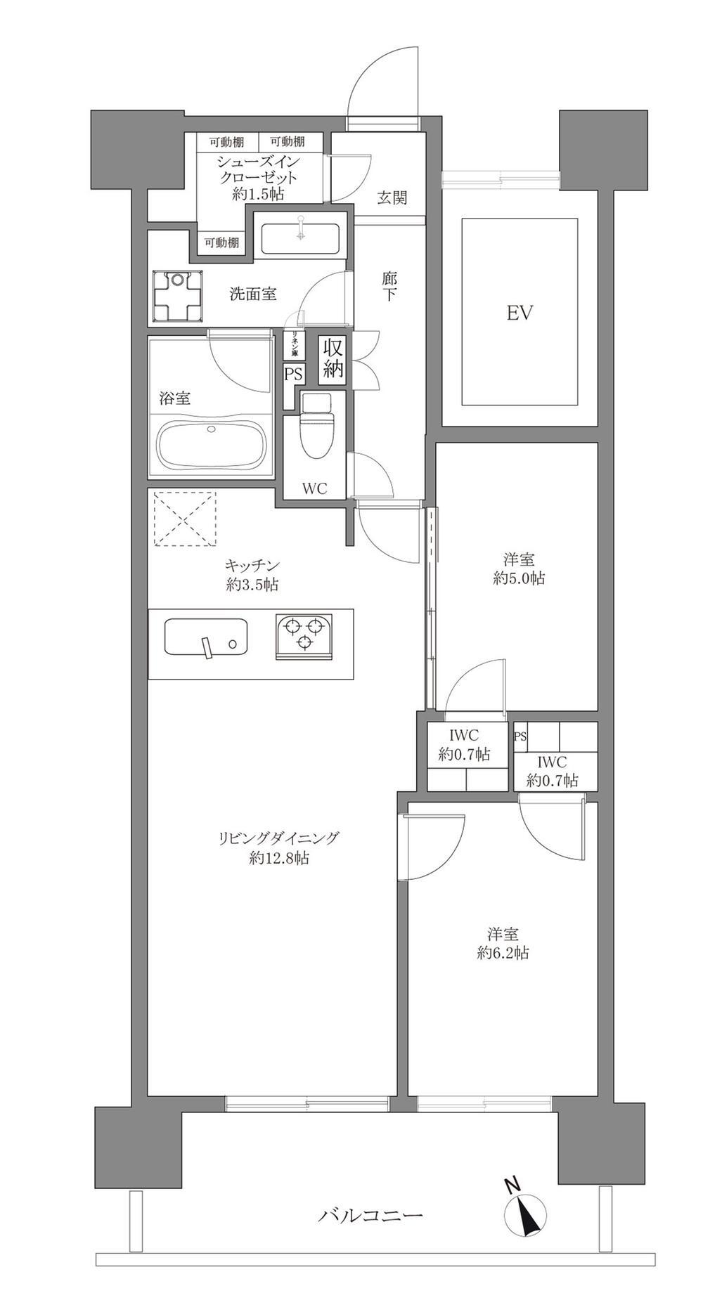
リビオシティ南砂町ステーションサイト 6階 2LDK

情報提供元
SUUMO
リビオシティ南砂町ステーションサイト 2023年1月築の築浅マンション
価格 6980万円  (管理費等:1万1250円/月(委託(通勤)))
修繕積立金 5,920円
交通
所在地 東京都江東区南砂7周辺地図
間取り 2LDK 専有面積 65.79m2(壁芯)
所在階/階数 6階/13階建 方位
築年月 2023年1月 築年数 築2年10ヶ月
おすすめポイント
■総戸数361戸のビッグコミュニティ■周辺には、スーパーやドラッグストアがあり、生活利便性の高い立地■保育園・幼稚園・小学校・中学校が徒歩6分圏内■TES式温水床暖房をリビングダイニングに設置■生ごみ処理に便利なディスポーザー付き■食器洗いに便利な食器洗浄乾燥機付き■浴室には浴室暖房換気乾燥機設置■安心な24時間遠隔セキュリティシステム■ペットと暮らせるマンション■充実の共用施設*スカイテラス(空の下で眺望や花火を楽しむ屋上ガーデン)*ラウンジ・ダイニング・スタジオ*ウエルカムラウンジ*ウエルネススタジオ(フィットネスジム)*ワークラウンジ*キッズスペースなど
ペット相談可・日当り良好・バリアフリー・管理人日勤・定期借地権・24時間ゴミ出し可
物件を見たい、物件や住環境の詳しい情報やローン相談など、
お問い合わせ先
(株)タングラム

詳細情報

価格 6980万円 管理費等 1万1250円/月(委託(通勤))
駐車場   修繕積立金 5,920円
所在地 東京都江東区南砂7周辺地図
交通
  • 東京メトロ東西線 南砂町駅 徒歩5分乗換案内
物件名 リビオシティ南砂町ステーションサイト
築年月(築年数) 2023年1月(築2年10ヶ月) 間取り 2LDK
総戸数 361戸 専有面積 65.79m2(壁芯)
所在階/階数 6階/13階建 バルコニー面積 11.21m2
方位 建物構造 RC
管理形態 委託管理
維持費等 インターネットに係る費用/定額費用1,100円 土地権利 賃借権
用途地域 準工業 借地期間・地代 6,150円/月
現況 引渡可能年月 相談
情報提供元 SUUMO [030Z78602909] 情報公開日
情報更新日 次回更新予定日 随時

設備など

ペット相談可 即入居可 - 南向き
角部屋 - 駐車場空き有り - トランクルーム -
オートロック - 宅配ボックス 浴室乾燥機
床暖房 ウォークインクローゼット 管理人常駐 -
最上階 - 2階以上 タワーマンション -
設備 バルコニー・トイレ・収納スペース・洗面所・エレベーター・管理人日勤・浴室乾燥機・ウォークインクローゼット・シャンプードレッサ・温水洗浄便座・システムキッチン・モニタ付インターホン・風呂・対面K・浄水器・床暖房・衣類乾燥機・食器洗浄乾燥機・複層ガラス・高速ネット対応・駐輪場・宅配BOX・キッズルーム・シューズインクローク
リフォーム履歴 -
リノベーション履歴 -
備考 <物件名>リビオシティ南砂町ステーションサイト/<借地権>借地期間残存59  年、借地権設定登記不可、不可、改定額事前協議/委託(日勤)/<土地権利>借地権の準共有/<間取り>2LDK/<特徴>◆2023年1月築の築浅マンション◆南向きにつき陽当たり良好◆定期借地権、スーパー 徒歩10分以内・南向き・システムキッチン・浴室乾燥機・陽当り良好
販売戸数:1戸/管理費等帯:11250円/修繕積立金帯:5920円
特記事項 ペット相談可・日当り良好・バリアフリー・管理人日勤・定期借地権・24時間ゴミ出し可

省エネ性能

エネルギー消費性能 -
断熱性能 -
目安光熱費 -

東京都江東区南砂7 周辺地図情報

地図
※地図上に表示される物件の位置は付近住所に所在することを表すものであり、実際の物件所在地とは異なる場合がございます。
   正確な物件所在地は、取扱い不動産会社にお問い合わせください。
物件を見たい、物件や住環境の詳しい情報やローン相談など、
お問い合わせ先
(株)タングラム

不動産会社情報

お問い合わせ先 商号:(株)タングラム
免許番号:東京都知事(2)第103399号
所在地:東京都港区芝浦4-9-25芝浦スクエアビル9F
TEL:03-6400-3127
取引態様:専任媒介
共有する
QRコード
物件を見たい、物件や住環境の詳しい情報やローン相談など、
お問い合わせ先
(株)タングラム

江東区の暮らしデータ

人口などの統計情報

世帯数 264111世帯
人口総数 539108人
転入者数 43873人
転入率(人口1000人当たり)
81.38人
転出者数 36037人
転出率(人口1000人当たり)
66.85人
土地平均価格
住宅地
605357円/m2
商業地
996545円/m2

結婚・育児の助成金

子育て関連の独自の取り組み 2017年度より、民有地を認可保育園として整備するため、区に相談のあった物件情報を保育施設運営事業者に提供するマッチングサポート事業を新たに開始。
出産祝い あり
公立保育所数 44所(うち0歳児保育を実施している保育所:28所)
私立保育所数 137所(うち0歳児保育を実施している保育所:94所)
保育所入所待機児童数 0人
認定こども園数 4園 預かり保育実施園数 公立:2園 私立:11園
学校給食 【小学校】完全給食【中学校】完全給食
公立中学校の学校選択制 実施
子ども・学生等医療費助成<通院>対象年齢 18歳3月末まで 子ども・学生等医療費助成<入院>対象年齢 18歳3月末まで

江東区の治安・ごみ収集情報

公共料金・インフラ

ガス料金(22m3使用した場合の月額) 東京瓦斯株式会社(東京地区等)3926円
水道料金(口径20mmで20m3の月額) 東京都水道局2816円
下水道料金(20m3を使用した場合の月額) 東京都下水道局2068円
下水道普及率 100.0%

安心・安全

建物火災出火件数 122件
人口10000人当たり
2.33件
刑法犯認知件数 3254件
人口1000人当たり
6.21件
ハザード・防災マップ あり

医療

一般病院総数 20ヶ所
一般診療所総数 471ヶ所
小児科医師数 111人
小児人口10000人当たり
16.88人
産婦人科医師数 53人
15~49歳女性人口1万人当たり
4.27人
介護保険料基準額(月額) 6200円

ごみ

家庭ごみ収集(可燃ごみ) 無料
備考
1回の収集では45リットル袋で3袋まで無料。4袋以上は1袋300円。
家庭ごみの分別方式 3分別10種〔燃やすごみ 燃やさないごみ 資源(プラスチック、古紙[新聞紙、雑誌・雑紙、段ボール]、びん、かん、ペットボトル、発泡トレイ・発泡スチロール)〕 拠点回収:使用済小型家電 古着 余剰食品 集団回収:古紙類 缶類 布類 ビン類
家庭ごみの戸別収集 一部実施
粗大ごみ収集 あり
備考
有料。事前申込制。
生ごみ処理機助成金制度 あり
上限金額
20000円
上限比率
50.0%

江東区の住まいの給付金

中古購入

利子補給制度 なし
補助/助成金制度 なし

増築・改築・改修

利子補給制度 なし
補助/助成金制度 あり
上限金額
200万円
備考
【江東区民間建築物耐震改修等助成】一定の要件を満たす耐震改修工事を行う場合、建築物の種類に応じて200万円または150万円(工事費の2/3または1/2以内)を上限に助成する。
暮らしデータ提供元:生活ガイド.com
※行政機関により公表していない地域及びデータがございます。東京23区以外の政令指定都市は、市全体のデータとして表示しています。
※提供データには細心の注意を払っておりますが、調査後に変更がある場合があります。 最新の情報につきましては各市区役所までお問い合わせいただくか、自治体HPなどをご確認ください。

この物件を見た人はこんな物件も見ています

OCN×ドコモ光新規お申込みで合計最大137,280円相当おトク!特典の内訳・適用条件など詳細はこちら

他のエリアから探す

江東区の詳細地域から中古マンション物件を探す

有明永代枝川越中島扇橋大島亀戸北砂木場清澄佐賀猿江塩浜潮見東雲白河新大橋新砂住吉千石辰巳東陽富岡豊洲東砂平野深川冬木古石場牡丹南砂三好毛利森下門前仲町

近辺の市区から探す

市川市浦安市千代田区中央区港区新宿区文京区台東区墨田区品川区目黒区渋谷区豊島区北区荒川区足立区葛飾区江戸川区

周辺の駅から探す

東京メトロ東西線
茅場町門前仲町木場東陽町南砂町西葛西葛西浦安南行徳

住宅ローンの返済額一覧

物件価格 6980万円に対して、年率 で、頭金 の場合
↓ボーナス 35年間 30年間 25年間 20年間 15年間 10年間
0万円 168,211円/月 193,874円/月 229,826円/月 283,781円/月 373,743円/月 553,724円/月
5万円 159,125円/月 184,899円/月 220,959円/月 275,022円/月 365,092円/月 545,179円/月
10万円 150,040円/月 175,923円/月 212,092円/月 266,263円/月 356,440円/月 536,634円/月
15万円 140,954円/月 166,947円/月 203,225円/月 257,505円/月 347,789円/月 528,089円/月
20万円 131,869円/月 157,972円/月 194,359円/月 248,746円/月 339,137円/月 519,544円/月
25万円 122,783円/月 148,996円/月 185,492円/月 239,987円/月 330,486円/月 510,999円/月
30万円 113,698円/月 140,020円/月 176,625円/月 231,229円/月 321,834円/月 502,454円/月
支払い利息合計 5,870,390円~ 5,013,360円~ 4,163,200円~ 3,319,920円~ 2,483,070円~ 1,653,220円~
※元利均等返済方式で試算しています。 「円」の単位以下の端数金額は「切り捨て」として計算しております。
※金利は、固定金利として計算しております。
※上記の住宅ローン返済額一覧は、あくまで試算であり、将来の金利動向により、実際のご返済額とは異なります。
※ボーナス支払総額が総支払額の50%を超えている場合、上記の表では「ローン不可」となります。
※住宅ローン返済額一覧の数値は、住宅ローンのお申し込みやご融資をお約束するものではございません。
物件を見たい、物件や住環境の詳しい情報やローン相談など、
お問い合わせ先
(株)タングラム

掲載情報の著作権は提供元企業等に帰属します。
Copyright:(C) 2025 Recruit Co., Ltd.
アプリで簡単 物件探し 大手不動産サイトの情報から一括検!プッシュ通知で物件を見逃さない
App Storeからダウンロード Google Playで手に入れよう QRコード