アプリで簡単 物件探し 通知 共有 アプリならではの機能を使ってみる
中古マンション

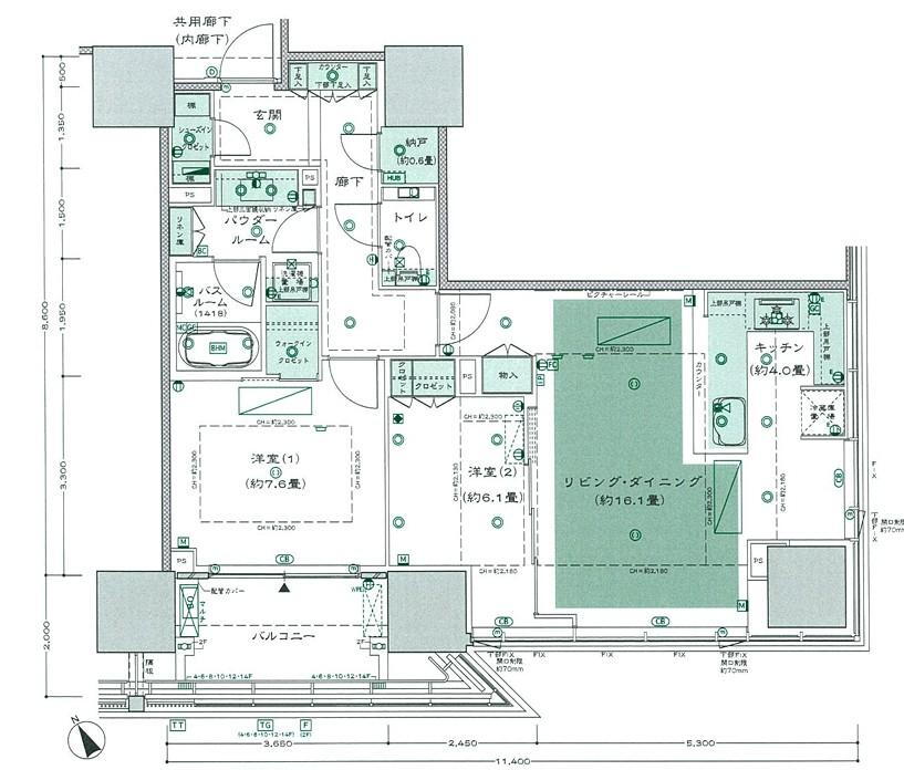
オーベル東陽町ファインレジデンス 3階 3SLDK

情報提供元
SUUMO
オーベル東陽町ファインレジデンス ここから始まる「日常」はご家族にとって大切で貴重な時間。<BR>少しでも豊かに、少しでも快適に。新しい生活を始めてください☆
価格 9480万円  (管理費等:1万4900円/月(委託(通勤)))
修繕積立金 15,320円
交通
所在地 東京都江東区塩浜2周辺地図
間取り 3SLDK 専有面積 77m2(壁芯)
所在階/階数 3階/14階建 方位
築年月 2014年2月 築年数 築11年9ヶ月
おすすめポイント
水辺の景観と落ち着いた街並みに調和する「オーベル東陽町ファインレジデンス」。開放感ある室内で家族の時間を快適に過ごせ、周辺には商業・教育施設も整う利便性の高い住環境。住み心地と資産性を兼ね備えた上質なレジデンスです。~オススメポイント~◆大規模レジデンス◆豊住線の延伸による利便性の向上◆南向き◆角部屋◆77平米の3SLDK◆2部屋独立~リフォーム箇所~・壁、天井クロス交換・エアコン新規交換・トイレ、洗面フロアタイル交換・トイレ新規交換・コンロ新規交換・洗濯パン新規交換・室内クリーニング
ペット相談可・日当り良好・角部屋・管理人日勤・24時間ゴミ出し可
物件を見たい、物件や住環境の詳しい情報やローン相談など、
お問い合わせ先
一心エステート(株)

詳細情報

価格 9480万円 管理費等 1万4900円/月(委託(通勤))
駐車場 敷地内(2万3000円~2万7000円/月) 修繕積立金 15,320円
所在地 東京都江東区塩浜2周辺地図
交通
物件名 オーベル東陽町ファインレジデンス
築年月(築年数) 2014年2月(築11年9ヶ月) 間取り 3SLDK
総戸数 143戸 専有面積 77m2(壁芯)
所在階/階数 3階/14階建 バルコニー面積 17.59m2
方位 建物構造 RC
管理形態 委託管理
維持費等 インターネットに係る費用/定額費用660円 土地権利 所有権
用途地域 借地期間・地代
現況 引渡可能年月 相談
情報提供元 SUUMO [030Z78389553] 情報公開日
情報更新日 次回更新予定日 随時

設備など

ペット相談可 即入居可 - 南向き
角部屋 駐車場空き有り トランクルーム -
オートロック - 宅配ボックス 浴室乾燥機 -
床暖房 - ウォークインクローゼット 管理人常駐 -
最上階 - 2階以上 タワーマンション -
設備 収納スペース・エレベーター・管理人日勤・ウォークインクローゼット・システムキッチン・モニタ付インターホン・対面K・リフォーム・バイク置き場・駐輪場・宅配BOX
リフォーム履歴 2025年11月完了予定
 水回り設備交換:浴室・トイレ
 内装リフォーム:壁・床・全室
 その他:コンロ
※年月は一番古いリフォーム箇所を表します
リノベーション履歴 -
備考 <物件名>オーベル東陽町ファインレジデンス/<駐車場>敷地内/委託(日勤)/<土地権利>所有権/<間取り>3LDK+S(納戸)/<リフォーム>●リフォーム:2025年11月完了予定(水回り設備交換:浴室・トイレ、内装リフォーム:壁・床・全室、その他:コンロ)※年月は一番古いリフォーム箇所を表します/<特徴>水辺の潤いと調和する上質なレジデンス、リバーサイド・スーパー 徒歩10分以内・内装リフォーム・南向き・システムキッチン
販売戸数:1戸/管理費等帯:14900円/修繕積立金帯:15320円
特記事項 ペット相談可・日当り良好・角部屋・管理人日勤・24時間ゴミ出し可

省エネ性能

エネルギー消費性能 -
断熱性能 -
目安光熱費 -

東京都江東区塩浜2 周辺地図情報

地図
※地図上に表示される物件の位置は付近住所に所在することを表すものであり、実際の物件所在地とは異なる場合がございます。
   正確な物件所在地は、取扱い不動産会社にお問い合わせください。
物件を見たい、物件や住環境の詳しい情報やローン相談など、
お問い合わせ先
一心エステート(株)

不動産会社情報

お問い合わせ先 商号:一心エステート(株)
免許番号:東京都知事(1)第106004号
所在地:東京都渋谷区恵比寿南1-1-1 ヒューマックス恵比寿ビル8階
TEL:03-6432-5347
取引態様:売主
共有する
QRコード
物件を見たい、物件や住環境の詳しい情報やローン相談など、
お問い合わせ先
一心エステート(株)

江東区の暮らしデータ

人口などの統計情報

世帯数 264111世帯
人口総数 539108人
転入者数 43873人
転入率(人口1000人当たり)
81.38人
転出者数 36037人
転出率(人口1000人当たり)
66.85人
土地平均価格
住宅地
605357円/m2
商業地
996545円/m2

結婚・育児の助成金

子育て関連の独自の取り組み 2017年度より、民有地を認可保育園として整備するため、区に相談のあった物件情報を保育施設運営事業者に提供するマッチングサポート事業を新たに開始。
出産祝い あり
公立保育所数 44所(うち0歳児保育を実施している保育所:28所)
私立保育所数 137所(うち0歳児保育を実施している保育所:94所)
保育所入所待機児童数 0人
認定こども園数 4園 預かり保育実施園数 公立:2園 私立:11園
学校給食 【小学校】完全給食【中学校】完全給食
公立中学校の学校選択制 実施
子ども・学生等医療費助成<通院>対象年齢 18歳3月末まで 子ども・学生等医療費助成<入院>対象年齢 18歳3月末まで

江東区の治安・ごみ収集情報

公共料金・インフラ

ガス料金(22m3使用した場合の月額) 東京瓦斯株式会社(東京地区等)3926円
水道料金(口径20mmで20m3の月額) 東京都水道局2816円
下水道料金(20m3を使用した場合の月額) 東京都下水道局2068円
下水道普及率 100.0%

安心・安全

建物火災出火件数 122件
人口10000人当たり
2.33件
刑法犯認知件数 3254件
人口1000人当たり
6.21件
ハザード・防災マップ あり

医療

一般病院総数 20ヶ所
一般診療所総数 471ヶ所
小児科医師数 111人
小児人口10000人当たり
16.88人
産婦人科医師数 53人
15~49歳女性人口1万人当たり
4.27人
介護保険料基準額(月額) 6200円

ごみ

家庭ごみ収集(可燃ごみ) 無料
備考
1回の収集では45リットル袋で3袋まで無料。4袋以上は1袋300円。
家庭ごみの分別方式 3分別10種〔燃やすごみ 燃やさないごみ 資源(プラスチック、古紙[新聞紙、雑誌・雑紙、段ボール]、びん、かん、ペットボトル、発泡トレイ・発泡スチロール)〕 拠点回収:使用済小型家電 古着 余剰食品 集団回収:古紙類 缶類 布類 ビン類
家庭ごみの戸別収集 一部実施
粗大ごみ収集 あり
備考
有料。事前申込制。
生ごみ処理機助成金制度 あり
上限金額
20000円
上限比率
50.0%

江東区の住まいの給付金

中古購入

利子補給制度 なし
補助/助成金制度 なし

増築・改築・改修

利子補給制度 なし
補助/助成金制度 あり
上限金額
200万円
備考
【江東区民間建築物耐震改修等助成】一定の要件を満たす耐震改修工事を行う場合、建築物の種類に応じて200万円または150万円(工事費の2/3または1/2以内)を上限に助成する。
暮らしデータ提供元:生活ガイド.com
※行政機関により公表していない地域及びデータがございます。東京23区以外の政令指定都市は、市全体のデータとして表示しています。
※提供データには細心の注意を払っておりますが、調査後に変更がある場合があります。 最新の情報につきましては各市区役所までお問い合わせいただくか、自治体HPなどをご確認ください。

この物件を見た人はこんな物件も見ています

OCN×ドコモ光新規お申込みで合計最大137,280円相当おトク!特典の内訳・適用条件など詳細はこちら

他のエリアから探す

江東区の詳細地域から中古マンション物件を探す

有明永代枝川越中島扇橋大島亀戸北砂木場清澄佐賀猿江塩浜潮見東雲白河新大橋新砂住吉千石辰巳東陽富岡豊洲東砂平野深川福住冬木古石場牡丹南砂三好毛利森下門前仲町

近辺の市区から探す

市川市浦安市千代田区中央区港区新宿区文京区台東区墨田区品川区目黒区渋谷区豊島区北区荒川区足立区葛飾区江戸川区

周辺の駅から探す

京葉線
東京八丁堀越中島潮見|新木場|葛西臨海公園舞浜新浦安
東京メトロ東西線
日本橋茅場町門前仲町木場東陽町南砂町西葛西葛西浦安

マンションライブラリーを見る

オーベル東陽町ファインレジデンス

住宅ローンの返済額一覧

物件価格 9480万円に対して、年率 で、頭金 の場合
↓ボーナス 35年間 30年間 25年間 20年間 15年間 10年間
0万円 233,107円/月 268,672円/月 318,493円/月 393,264円/月 517,934円/月 767,353円/月
5万円 224,022円/月 259,696円/月 309,626円/月 384,505円/月 509,283円/月 758,808円/月
10万円 214,936円/月 250,720円/月 300,760円/月 375,747円/月 500,631円/月 750,263円/月
15万円 205,851円/月 241,745円/月 291,893円/月 366,988円/月 491,980円/月 741,718円/月
20万円 196,765円/月 232,769円/月 283,026円/月 358,229円/月 483,329円/月 733,172円/月
25万円 187,680円/月 223,793円/月 274,159円/月 349,471円/月 474,677円/月 724,627円/月
30万円 178,594円/月 214,818円/月 265,293円/月 340,712円/月 466,026円/月 716,082円/月
支払い利息合計 8,126,710円~ 6,940,640円~ 5,763,600円~ 4,595,840円~ 3,437,630円~ 2,288,580円~
※元利均等返済方式で試算しています。 「円」の単位以下の端数金額は「切り捨て」として計算しております。
※金利は、固定金利として計算しております。
※上記の住宅ローン返済額一覧は、あくまで試算であり、将来の金利動向により、実際のご返済額とは異なります。
※ボーナス支払総額が総支払額の50%を超えている場合、上記の表では「ローン不可」となります。
※住宅ローン返済額一覧の数値は、住宅ローンのお申し込みやご融資をお約束するものではございません。
物件を見たい、物件や住環境の詳しい情報やローン相談など、
お問い合わせ先
一心エステート(株)

掲載情報の著作権は提供元企業等に帰属します。
Copyright:(C) 2025 Recruit Co., Ltd.
アプリで簡単 物件探し 大手不動産サイトの情報から一括検!プッシュ通知で物件を見逃さない
App Storeからダウンロード Google Playで手に入れよう QRコード