価格
5180 万円 (管理費等:1万2300円/月(委託(管理員なし)))
修繕積立金
10,500円
交通
所在地
東京都台東区根岸4周辺地図
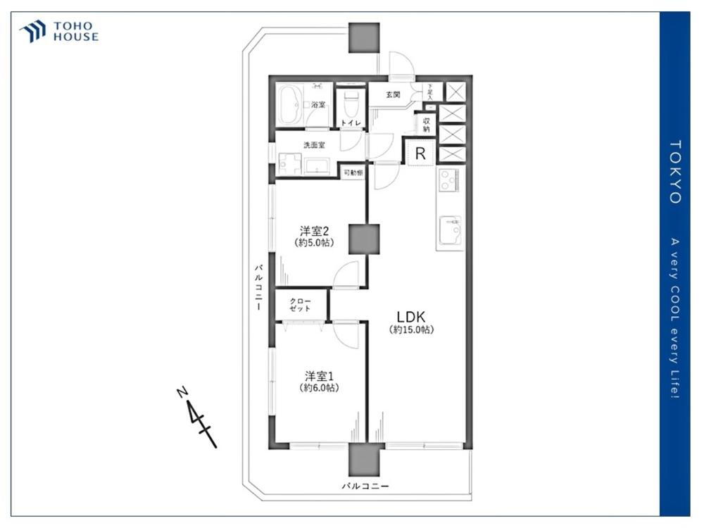
間取り
2LDK
専有面積
61.56m2
所在階/階数
3階/10階建
方位
南西
築年月
1980年5月
築年数
築45年6ヶ月
おすすめポイント
□□ Report from Toho House Oji □□【TOHO HOUSE CLUBでのアフターサービス】ご購入後の「おウチ」と「お金」のご相談窓口をご用意しております!・金利上昇時のリスクヘッジ、借換え相談、繰上返済のタイミング、各種保険の見直し・・・etc・おウチの設備保証や定期点検、駆け付けサービス・・・etc購入前のタイミングは勿論、購入後のご不安につきましてもご相談可能です!まずはお気軽に現地をご覧下さいませ。物件の詳細について、ご見学希望のお客様は下記番号までお気軽にご連絡下さい。お問い合わせ専用フリーダイヤル : 0120-104-570 日当り良好・バリアフリー・角部屋・24時間ゴミ出し可
お問い合わせ先
東宝ハウスライフソリューションズグループ(株)東宝ハウス王子2課
物件を見たい、物件や住環境の詳しい情報やローン相談など、
お問い合わせ先
東宝ハウスライフソリューションズグループ(株)東宝ハウス王子2課
価格
5180万円
管理費等
1万2300円/月(委託(管理員なし))
駐車場
敷地内(1万7000円~3万5000円/月)
修繕積立金
10,500円
所在地
東京都台東区根岸4周辺地図
交通
東京メトロ日比谷線 入谷駅 徒歩6分乗換案内
JR山手線 鶯谷駅 徒歩12分乗換案内
東京メトロ日比谷線 三ノ輪駅 徒歩10分乗換案内
物件名
ユテライズ根岸
築年月(築年数)
1980年5月(築45年6ヶ月)
間取り
2LDK
総戸数
45戸
専有面積
61.56m2
所在階/階数
3階/10階建
バルコニー面積
24.08m2
方位
南西
建物構造
SRC
管理形態
維持費等
駐輪場(年額)3,600円
土地権利
所有権
用途地域
商業地域
借地期間・地代
現況
引渡可能年月
相談
情報提供元
SUUMO [030Z78505373]
情報公開日
2025年10月26日
情報更新日
2025年10月26日
次回更新予定日
随時
設備など
ペット相談可
-
即入居可
-
南向き
-
角部屋
○
駐車場空き有り
○
トランクルーム
-
オートロック
-
宅配ボックス
-
浴室乾燥機
○
床暖房
-
ウォークインクローゼット
-
管理人常駐
-
最上階
-
2階以上
○
タワーマンション
-
設備
バルコニー・トイレ・収納スペース・洗面所・エレベーター・浴室乾燥機・シャンプードレッサ・温水洗浄便座・システムキッチン・モニタ付インターホン・風呂・浄水器・2面バルコニー・衣類乾燥機・食器洗浄乾燥機・リフォーム・駐輪場
リフォーム履歴
2025年10月完了 水回り設備交換:キッチン・浴室・トイレ 内装リフォーム:壁・床・全室 ※年月は一番古いリフォーム箇所を表します
リノベーション履歴
-
備考
<物件名>ユテライズ根岸/<駐車場>敷地内/<土地権利>所有権/<間取り>2LDK/<リフォーム>●リフォーム:2025年10月完了(水回り設備交換:キッチン・浴室・トイレ、内装リフォーム:壁・床・全室)※年月は一番古いリフォーム箇所を表します/<用途地域>1種住居あり/<特徴>~~複数路線利用可能!アクセス良好な立地♪~~■2面バルコニー◎、2沿線以上利用可・テニスコートが近い・スーパー 徒歩10分以内・市街地が近い・内装リフォーム 販売戸数:1戸/管理費等帯:12300円/修繕積立金帯:10500円
特記事項
日当り良好・バリアフリー・角部屋・24時間ゴミ出し可
東京都台東区根岸4 周辺地図情報
※地図上に表示される物件の位置は付近住所に所在することを表すものであり、実際の物件所在地とは異なる場合がございます。
正確な物件所在地は、取扱い不動産会社にお問い合わせください。
物件を見たい、物件や住環境の詳しい情報やローン相談など、
お問い合わせ先
東宝ハウスライフソリューションズグループ(株)東宝ハウス王子2課
不動産会社情報
お問い合わせ先
商号:東宝ハウスライフソリューションズグループ(株)東宝ハウス王子2課
免許番号:東京都知事(1)第110657号 所在地:東京都北区王子本町1-17-6 TEL:0120-104570 取引態様:媒介 管理コード:●池上賢一
共有する
物件を見たい、物件や住環境の詳しい情報やローン相談など、
お問い合わせ先
東宝ハウスライフソリューションズグループ(株)東宝ハウス王子2課
人口などの統計情報
世帯数
121557世帯
人口総数
212388人
転入者数
25608人
転入率(人口1000人当たり)
120.57人
転出者数
19506人
転出率(人口1000人当たり)
91.84人
土地平均価格
住宅地
741667円/m2
商業地
1973458円/m2
結婚・育児の助成金
子育て関連の独自の取り組み
(1)弱視等治療用眼鏡助成(9歳未満の児童が弱視等の治療用眼鏡を修理した場合及び保険で認められない期間に買い換えた場合、当該費用の一部を助成)。(2)にぎやか家庭応援プラン(第3子以降のお子さんの出生、小学校・中学校入学時に3万円相当のお祝品を贈呈)。(3)バスレクリエーション(ひとり親家庭を対象に日帰りのバスハイクを年2回実施)。
出産祝い
あり
公立保育所数
11所(うち0歳児保育を実施している保育所:8所)
私立保育所数
36所(うち0歳児保育を実施している保育所:26所)
保育所入所待機児童数
0人
認定こども園数
5園
預かり保育実施園数
公立:10園 私立:7園
学校給食
【小学校】完全給食【中学校】完全給食
公立中学校の学校選択制
実施
子ども・学生等医療費助成<通院>対象年齢
18歳3月末まで
子ども・学生等医療費助成<入院>対象年齢
18歳3月末まで
台東区の治安・ごみ収集情報
公共料金・インフラ
ガス料金(22m3 使用した場合の月額)
東京瓦斯株式会社(東京地区等)3926円
水道料金(口径20mmで20m3 の月額)
東京都水道局2816円
下水道料金(20m3 を使用した場合の月額)
東京都下水道局2068円
下水道普及率
100.0%
安心・安全
建物火災出火件数
65件
人口10000人当たり
3.07件
刑法犯認知件数
2805件
人口1000人当たり
13.27件
ハザード・防災マップ
あり
医療
一般病院総数
7ヶ所
一般診療所総数
277ヶ所
小児科医師数
28人
小児人口10000人当たり
15.85人
産婦人科医師数
16人
15~49歳女性人口1万人当たり
3.13人
介護保険料基準額(月額)
6900円
ごみ
家庭ごみ収集(可燃ごみ)
無料
家庭ごみの分別方式
3分別10種〔可燃ごみ 不燃ごみ 資源(新聞、雑誌・雑がみ、段ボール、紙パック、ペットボトル、缶、びん、食品発泡トレイ・カップ)〕 拠点回収:古布 ビデオテープ類 乾電池 廃食油 紙パック 小型家電 蛍光灯
家庭ごみの戸別収集
実施
粗大ごみ収集
あり
生ごみ処理機助成金制度
なし
上限金額
-
上限比率
-
台東区の住まいの給付金
中古購入
増築・改築・改修
利子補給制度
あり
上限金額
-
補助/助成金制度
あり
上限金額
(1)200万円(2)--(3)--(4)20万円
※行政機関により公表していない地域及びデータがございます。東京23区以外の政令指定都市は、市全体のデータとして表示しています。
※提供データには細心の注意を払っておりますが、調査後に変更がある場合があります。 最新の情報につきましては各市区役所までお問い合わせいただくか、自治体HPなどをご確認ください。
台東区の暮らしデータをもっと見る
ライオンズプラザ東向島
価格
3480万円 住所
東京都墨田区墨田1
専有面積
42.48m2
パンセ フレスコ
価格
14980万円 住所
東京都中央区湊3
専有面積
65.07m2
Kist原宿
価格
5800万円 住所
東京都渋谷区千駄ヶ谷3
専有面積
31.78m2
新宿サマリヤマンション
価格
5580万円 住所
東京都新宿区北新宿1
専有面積
60.56m2
物件を見たい、物件や住環境の詳しい情報やローン相談など、
お問い合わせ先
東宝ハウスライフソリューションズグループ(株)東宝ハウス王子2課