アプリで簡単 物件探し 通知 共有 アプリならではの機能を使ってみる
中古マンション

ワールドシティタワーズ キャピタルタワー 40階 2LDK

情報提供元
SUUMO
ワールドシティタワーズ キャピタルタワー 外観
価格 33500万円  (管理費等:2万4478円/月(委託(通勤)))
修繕積立金 30,470円
交通
所在地 東京都港区港南4周辺地図
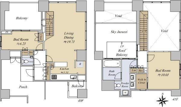
間取り 2LDK 専有面積 100.72m2(30.46坪)(壁芯)
所在階/階数 40階/地上42階地下2階建 方位
築年月 2006年10月 築年数 築19年2ヶ月
おすすめポイント
~お部屋の特徴~●専有面積:100.72㎡●2LDK+WIC●専用駐車場付(機械式駐車場)☆LDKは広々約25.2帖☆洋室1にはウォークインクローゼット有☆開放感あふれる吹き抜け☆レインボーブリッジ・スカイツリーの眺望~リフォーム履歴(2025年9月完了)~・クロス張替・挽き板フローリング張替(洋室2)・タイル張替(玄関・下階廊下・LDK・洗面室・トイレ)・カーペット張替(階段・上階廊下・洋室1)・キッチン交換(食洗機:ミーレ)・ユニットバス交換、スカイジャグジー交換、洗面化粧台交換、トイレ交換、ウッドデッキ張替・建具交換、扉交換(クローゼット・玄関収納・その他収納)
ペット相談可・日当り良好・管理人日勤・24時間ゴミ出し可
お問い合わせ先
住友不動産ステップ(株)東京湾岸マンションプラザ
物件を見たい、物件や住環境の詳しい情報やローン相談など、
お問い合わせ先
住友不動産ステップ(株)東京湾岸マンションプラザ

詳細情報

価格 33500万円 管理費等 2万4478円/月(委託(通勤))
駐車場 敷地内(2万3000円~4万8000円/月) 修繕積立金 30,470円
所在地 東京都港区港南4周辺地図
交通
  • JR山手線 品川駅 徒歩14分乗換案内
  • 東京モノレール 天王洲アイル駅 徒歩6分乗換案内
  • りんかい線 天王洲アイル駅 徒歩10分乗換案内
物件名 ワールドシティタワーズ キャピタルタワー
築年月(築年数) 2006年10月(築19年2ヶ月) 間取り 2LDK
総戸数 2090戸 専有面積 100.72m2(30.46坪)(壁芯)
所在階/階数 40階/地上42階地下2階建 バルコニー面積 15.26m2
方位 建物構造 RC
管理形態 委託管理
維持費等 土地権利 所有権
用途地域 2種住居 借地期間・地代
現況 引渡可能年月 即時
情報提供元 SUUMO [030Z78755824] 情報公開日
情報更新日 次回更新予定日 随時

設備など

ペット相談可 即入居可 南向き -
角部屋 - 駐車場空き有り トランクルーム -
オートロック - 宅配ボックス 浴室乾燥機 -
床暖房 ウォークインクローゼット 管理人常駐 -
最上階 - 2階以上 タワーマンション
設備 エレベーター・管理人日勤・ウォークインクローゼット・システムキッチン・モニタ付インターホン・風呂・トイレ2ヶ所・床暖房・リフォーム・高速ネット対応・バイク置き場・駐輪場・宅配BOX
リフォーム履歴 2025年9月完了
 水回り設備交換:キッチン・浴室・トイレ
 内装リフォーム:壁・床・全室
※年月は一番古いリフォーム箇所を表します
リノベーション履歴 -
備考 <物件名>ワールドシティタワーズ キャピタルタワー/<駐車場>敷地内/委託(日勤)/<土地権利>所有権/<間取り>2LDK/<リフォーム>●リフォーム:2025年9月完了(水回り設備交換:キッチン・浴室・トイレ、内装リフォーム:壁・床・全室)※年月は一番古いリフォーム箇所を表します/<その他制限事項>常時ゴミ出し可※粗大ごみを除く/本マンションの敷地の一部に東京モノレール高架軌道が敷設され、地上権が登記されています。/<特徴>【最上階40・41階メゾネット・プレミアム住戸】眺望良好◆リフォーム済、2沿線以上利用可・LDK20畳以上・スーパー 徒歩10分以内・市街地が近い・内装リフォーム
販売戸数:1戸/管理費等帯:24478円/修繕積立金帯:30470円
法令等制限:駐車場:車種による/24時間有人管理(夜間警備員が対応)/各階クリーンステーション有
特記事項 ペット相談可・日当り良好・管理人日勤・24時間ゴミ出し可

省エネ性能

エネルギー消費性能 -
断熱性能 -
目安光熱費 -

東京都港区港南4 周辺地図情報

地図
※地図上に表示される物件の位置は付近住所に所在することを表すものであり、実際の物件所在地とは異なる場合がございます。
   正確な物件所在地は、取扱い不動産会社にお問い合わせください。
物件を見たい、物件や住環境の詳しい情報やローン相談など、
お問い合わせ先
住友不動産ステップ(株)東京湾岸マンションプラザ

不動産会社情報

お問い合わせ先 商号:住友不動産ステップ(株)東京湾岸マンションプラザ
免許番号:国土交通大臣(13)第002077号
所在地:東京都港区東新橋1-9-2 汐留住友ビル21階
TEL:0120-210447
取引態様:媒介
管理コード:A51P3075
共有する
QRコード
物件を見たい、物件や住環境の詳しい情報やローン相談など、
お問い合わせ先
住友不動産ステップ(株)東京湾岸マンションプラザ

港区の暮らしデータ

人口などの統計情報

世帯数 146084世帯
人口総数 266306人
転入者数 29747人
転入率(人口1000人当たり)
111.70人
転出者数 25086人
転出率(人口1000人当たり)
94.20人
土地平均価格
住宅地
2313000円/m2
商業地
6411852円/m2

結婚・育児の助成金

子育て関連の独自の取り組み (1)ひとり親世帯等の経済的負担や家事負担が軽減できるよう、提供する食料品を掲載したカタログを送付し、利用者が選択した食料品を自宅に配送(2)在宅子育て家庭等の一時保育ニーズに対応するため、小規模保育事業所の空き定員を活用した「余裕活用型一時保育」を実施。(3)延長保育料の上限額の設定し、常時延長保育を利用しなければならない世帯の経済的な負担を軽減。(4)未就学児が2人以上いる世帯に、子どもタクシー利用券を支給(5)出産費用助成の算出上限額を81万円に増額(6)全ての子育て家庭が安心して生き生きと子育てができるよう、0歳から高校生世代までのお子さんを対象に、臨時に港区商店街振興組合連合会の電子スマイル商品券を「港区子育て応援分」として、子ども一人当たり5万円配付。
出産祝い あり
公立保育所数 21所(うち0歳児保育を実施している保育所:21所)
私立保育所数 62所(うち0歳児保育を実施している保育所:62所)
保育所入所待機児童数 0人
認定こども園数 1園 預かり保育実施園数 公立:12園 私立:6園
学校給食 【小学校】完全給食【中学校】完全給食
公立中学校の学校選択制 実施
子ども・学生等医療費助成<通院>対象年齢 18歳3月末まで 子ども・学生等医療費助成<入院>対象年齢 18歳3月末まで

港区の治安・ごみ収集情報

公共料金・インフラ

ガス料金(22m3使用した場合の月額) 東京瓦斯株式会社(東京地区等)3926円
水道料金(口径20mmで20m3の月額) 東京都水道局2816円
下水道料金(20m3を使用した場合の月額) 東京都下水道局2068円
下水道普及率 100.0%

安心・安全

建物火災出火件数 225件
人口10000人当たり
8.64件
刑法犯認知件数 2980件
人口1000人当たり
11.44件
ハザード・防災マップ あり

医療

一般病院総数 13ヶ所
一般診療所総数 953ヶ所
小児科医師数 144人
小児人口10000人当たり
39.84人
産婦人科医師数 191人
15~49歳女性人口1万人当たり
28.68人
介護保険料基準額(月額) 6400円

ごみ

家庭ごみ収集(可燃ごみ) 無料
備考
区条例により、10kgを超える一時多量ごみについては有料。
家庭ごみの分別方式 4分別7種〔可燃ごみ 不燃ごみ 資源プラスチック 資源(ペットボトル、びん、かん、古紙[新聞、ダンボール、紙パック、雑誌、その他再生可能紙])〕
家庭ごみの戸別収集 一部実施(65歳以上の高齢者、介護保険法[1997年法律第123号]に規定する要介護認定を受けている方、身体障害者手帳、愛の手帳又は精神障害者保健福祉手帳の交付を受けている方、難病の患者に対する医療等に関する法律[2014年法律第50号]第5条第1項に規定する指定難病又は東京都難病患者等に係る医療費等の助成に関する規則[2000年東京都規則第94号]別表第1の第2類に定める特殊疾病に罹患している方、母子健康手帳の交付を受けた妊婦の方、産後1年を経過する月の前月末日までの子どもを養育する者ひとり親世帯の方)
粗大ごみ収集 あり
備考
有料。戸別収集。事前申込制。有料粗大ごみ処理券の貼付が必要。直接持ち込みも可能で、粗大ごみ料金が400円以下であれば無料。
生ごみ処理機助成金制度 あり
上限金額
20000円
上限比率
50.0%

港区の住まいの給付金

中古購入

利子補給制度 なし
補助/助成金制度 なし

増築・改築・改修

利子補給制度 なし
補助/助成金制度 あり
上限金額
600万円
備考
【民間建築物耐震化促進事業】耐震診断の結果、耐震性に問題があることが判明した戸建て住宅の耐震改修工事に要する費用の一部を助成。(a)木造住宅(旧耐震建築物)の場合、耐震改修工事に要する費用相当額の2/3、上限400万円を補助。(b)木造住宅(1981年6月から2000年5月までに建築確認を受けたもの)の場合、耐震改修工事に要する費用相当額の1/2、上限100万円を補助。(c)非木造住宅(旧耐震建築物)の場合、耐震改修工事に要する費用相当額の2/3、上限600万円を補助。他に耐震診断、補強設計助成あり。
暮らしデータ提供元:生活ガイド.com
※行政機関により公表していない地域及びデータがございます。東京23区以外の政令指定都市は、市全体のデータとして表示しています。
※提供データには細心の注意を払っておりますが、調査後に変更がある場合があります。 最新の情報につきましては各市区役所までお問い合わせいただくか、自治体HPなどをご確認ください。
OCN×ドコモ光新規お申込みで合計最大137,280円相当おトク!特典の内訳・適用条件など詳細はこちら

住宅ローンの返済額一覧

物件価格 33500万円に対して、年率 で、頭金 の場合
↓ボーナス 35年間 30年間 25年間 20年間 15年間 10年間
0万円 856,631円/月 987,325円/月 1,170,410円/月 1,445,181円/月 1,903,324円/月 2,819,895円/月
5万円 847,546円/月 978,349円/月 1,161,544円/月 1,436,423円/月 1,894,672円/月 2,811,350円/月
10万円 838,460円/月 969,374円/月 1,152,677円/月 1,427,664円/月 1,886,021円/月 2,802,805円/月
15万円 829,375円/月 960,398円/月 1,143,810円/月 1,418,905円/月 1,877,369円/月 2,794,260円/月
20万円 820,289円/月 951,422円/月 1,134,943円/月 1,410,147円/月 1,868,718円/月 2,785,715円/月
25万円 811,204円/月 942,446円/月 1,126,077円/月 1,401,388円/月 1,860,066円/月 2,777,169円/月
30万円 802,118円/月 933,471円/月 1,117,210円/月 1,392,629円/月 1,851,415円/月 2,768,624円/月
支払い利息合計 29,806,790円~ 25,455,720円~ 21,138,700円~ 16,855,920円~ 12,607,650円~ 8,393,620円~
※元利均等返済方式で試算しています。 「円」の単位以下の端数金額は「切り捨て」として計算しております。
※金利は、固定金利として計算しております。
※上記の住宅ローン返済額一覧は、あくまで試算であり、将来の金利動向により、実際のご返済額とは異なります。
※ボーナス支払総額が総支払額の50%を超えている場合、上記の表では「ローン不可」となります。
※住宅ローン返済額一覧の数値は、住宅ローンのお申し込みやご融資をお約束するものではございません。
物件を見たい、物件や住環境の詳しい情報やローン相談など、
お問い合わせ先
住友不動産ステップ(株)東京湾岸マンションプラザ

掲載情報の著作権は提供元企業等に帰属します。
Copyright:(C) 2025 Recruit Co., Ltd.
アプリで簡単 物件探し 大手不動産サイトの情報から一括検!プッシュ通知で物件を見逃さない
App Storeからダウンロード Google Playで手に入れよう QRコード