中古マンション
オリンピアード麻布霞坂 13階 3LDK
 
  
    
      | 価格 | 43000万円  (管理費等:4万9500円/月(委託(常駐))) | 
    
      | 修繕積立金 | 27,500円 | 
    
      | 交通 |  | 
    
      | 所在地 | 東京都港区西麻布3周辺地図 | 
    
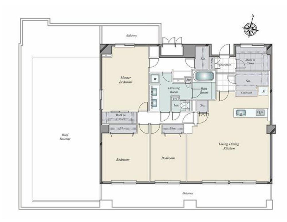
      | 間取り | 3LDK | 専有面積 | 124.99m2(壁芯) | 
    
      | 所在階/階数 | 13階/地上14階地下1階建 | 方位 | 南東 | 
    
      | 築年月 | 2000年7月 | 築年数 | 築25年4ヶ月 | 
  
 
 
- おすすめポイント
- 全面フルリフォーム住戸120m2超えゆとりある3LDK大型のシューズインクローゼット、ウォークインクローゼットを備えます
 ペット相談可・日当り良好・閑静な住宅街・駐車場2台分・角部屋・管理人常駐・24時間ゴミ出し可
  
    物件を見たい、物件や住環境の詳しい情報やローン相談など、
    
    
    
      - お問い合わせ先
- (株)丸の内一級建築士事務所
 
 
| 価格 | 43000万円 | 管理費等 | 4万9500円/月(委託(常駐)) | 
| 駐車場 | 専用使用権付駐車場(1万4000円/月) | 修繕積立金 | 27,500円 | 
| 所在地 | 東京都港区西麻布3周辺地図 | 
| 交通 | 
  東京メトロ日比谷線 六本木駅 徒歩6分乗換案内東京メトロ千代田線 乃木坂駅 徒歩12分乗換案内東京メトロ日比谷線 広尾駅 徒歩12分乗換案内 | 
| 物件名 | オリンピアード麻布霞坂 | 
| 築年月(築年数) | 2000年7月(築25年4ヶ月) | 間取り | 3LDK | 
| 総戸数 | 73戸 | 専有面積 | 124.99m2(壁芯) | 
| 所在階/階数 | 13階/地上14階地下1階建 | バルコニー面積 |  | 
| 方位 | 南東 | 建物構造 | RC | 
| 管理形態 | 委託管理 | 
| 維持費等 |  | 土地権利 | 所有権 | 
| 用途地域 | 商業地域 | 借地期間・地代 |  | 
| 現況 |  | 引渡可能年月 | 相談 | 
| 情報提供元 | SUUMO [030Z78075149] | 情報公開日 |  | 
| 情報更新日 |  | 次回更新予定日 | 随時 | 
設備など
| ペット相談可 | ○ | 即入居可 | - | 南向き | - | 
| 角部屋 | ○ | 駐車場空き有り | ○ | トランクルーム | - | 
| オートロック | - | 宅配ボックス | ○ | 浴室乾燥機 | ○ | 
| 床暖房 | ○ | ウォークインクローゼット | ○ | 管理人常駐 | ○ | 
| 最上階 | - | 2階以上 | ○ | タワーマンション | - | 
| 設備 | 収納スペース・管理人常駐・エレベーター・浴室乾燥機・ウォークインクローゼット・システムキッチン・モニタ付インターホン・風呂・対面K・床暖房・衣類乾燥機・食器洗浄乾燥機・リフォーム・宅配BOX・シューズインクローク | 
| リフォーム履歴 | 2019年6月完了 水回り設備交換:キッチン・浴室・トイレ
 内装リフォーム:床
 その他:洗面化粧台等
 ※年月は一番古いリフォーム箇所を表します
 | 
| リノベーション履歴 | - | 
| 備考 | <物件名>オリンピアード麻布霞坂/<駐車場>専用使用権付駐車場/委託(常駐)/<土地権利>所有権/<間取り>3LDK/<リフォーム>●リフォーム:2019年6月完了(水回り設備交換:キッチン・浴室・トイレ、内装リフォーム:床、その他:洗面化粧台等)※年月は一番古いリフォーム箇所を表します/<特徴>平置き駐車場2台所有権付き、ルーフバルコニー付きレジデンス、駐車2台可・2沿線以上利用可・LDK20畳以上・市街地が近い・システムキッチン 販売戸数:1戸/管理費等帯:49500円/修繕積立金帯:27500円
 | 
| 特記事項 | ペット相談可・日当り良好・閑静な住宅街・駐車場2台分・角部屋・管理人常駐・24時間ゴミ出し可 | 
東京都港区西麻布3 周辺地図情報
※地図上に表示される物件の位置は付近住所に所在することを表すものであり、実際の物件所在地とは異なる場合がございます。
   正確な物件所在地は、取扱い不動産会社にお問い合わせください。
 
 
  
    物件を見たい、物件や住環境の詳しい情報やローン相談など、
    
    
    
      - お問い合わせ先
- (株)丸の内一級建築士事務所
 
 
不動産会社情報
| お問い合わせ先 | 商号:(株)丸の内一級建築士事務所 免許番号:国土交通大臣(1)第010184号
 所在地:東京都千代田区丸の内3-2-3 丸の内二重橋ビル
 TEL:03-6665-9520
 取引態様:媒介
 | 共有する |  | 
  
    物件を見たい、物件や住環境の詳しい情報やローン相談など、
    
    
    
      - お問い合わせ先
- (株)丸の内一級建築士事務所
 
 
  
  
    人口などの統計情報
    
      
        
          | 世帯数 | 146084世帯 | 
        
          | 人口総数 | 266306人 | 
        
          | 転入者数 | 29747人 
 
              転入率(人口1000人当たり)111.70人 | 
        
          | 転出者数 | 25086人 
 
              転出率(人口1000人当たり)94.20人 | 
        
          | 土地平均価格 | 
              住宅地2313000円/m2商業地6411852円/m2 | 
      
    
   
    
    結婚・育児の助成金
    
      
        
          | 子育て関連の独自の取り組み | (1)ひとり親世帯等の経済的負担や家事負担が軽減できるよう、提供する食料品を掲載したカタログを送付し、利用者が選択した食料品を自宅に配送(2)在宅子育て家庭等の一時保育ニーズに対応するため、小規模保育事業所の空き定員を活用した「余裕活用型一時保育」を実施。(3)延長保育料の上限額の設定し、常時延長保育を利用しなければならない世帯の経済的な負担を軽減。(4)未就学児が2人以上いる世帯に、子どもタクシー利用券を支給(5)出産費用助成の算出上限額を81万円に増額(6)全ての子育て家庭が安心して生き生きと子育てができるよう、0歳から高校生世代までのお子さんを対象に、臨時に港区商店街振興組合連合会の電子スマイル商品券を「港区子育て応援分」として、子ども一人当たり5万円配付。 | 
        
          | 出産祝い | あり | 
        
          | 公立保育所数 | 21所(うち0歳児保育を実施している保育所:21所) | 
        
          | 私立保育所数 | 62所(うち0歳児保育を実施している保育所:62所) | 
        
          | 保育所入所待機児童数 | 0人 | 
        
          | 認定こども園数 | 1園 | 預かり保育実施園数 | 公立:12園 私立:6園 | 
        
          | 学校給食 | 【小学校】完全給食【中学校】完全給食 | 
        
          | 公立中学校の学校選択制 | 実施 | 
        
          | 子ども・学生等医療費助成<通院>対象年齢 | 18歳3月末まで | 子ども・学生等医療費助成<入院>対象年齢 | 18歳3月末まで | 
      
    
   
    
    港区の治安・ごみ収集情報
    公共料金・インフラ
    
      
        
          | ガス料金(22m3使用した場合の月額) | 東京瓦斯株式会社(東京地区等)3926円 | 
        
          | 水道料金(口径20mmで20m3の月額) | 東京都水道局2816円 | 
        
          | 下水道料金(20m3を使用した場合の月額) | 東京都下水道局2068円 | 
        
          | 下水道普及率 | 100.0% | 
      
    
    安心・安全
    
      
        
          | 建物火災出火件数 | 225件 
              人口10000人当たり8.64件 | 
        
          | 刑法犯認知件数 | 2980件 
              人口1000人当たり11.44件 | 
        
          | ハザード・防災マップ | あり | 
      
    
    医療
    
      
        
          | 一般病院総数 | 13ヶ所 | 
        
          | 一般診療所総数 | 953ヶ所 | 
        
          | 小児科医師数 | 144人 
              小児人口10000人当たり39.84人 | 
        
          | 産婦人科医師数 | 191人 
              15~49歳女性人口1万人当たり28.68人 | 
        
          | 介護保険料基準額(月額) | 6400円 | 
      
    
    ごみ
    
      
        
          | 家庭ごみ収集(可燃ごみ) | 無料 | 
        
          | 家庭ごみの分別方式 | 4分別7種〔可燃ごみ 不燃ごみ 資源プラスチック 資源(ペットボトル、びん、かん、古紙[新聞、ダンボール、紙パック、雑誌、その他再生可能紙])〕 | 
        
          | 家庭ごみの戸別収集 | 一部実施(65歳以上の高齢者、介護保険法[1997年法律第123号]に規定する要介護認定を受けている方、身体障害者手帳、愛の手帳又は精神障害者保健福祉手帳の交付を受けている方、難病の患者に対する医療等に関する法律[2014年法律第50号]第5条第1項に規定する指定難病又は東京都難病患者等に係る医療費等の助成に関する規則[2000年東京都規則第94号]別表第1の第2類に定める特殊疾病に罹患している方、母子健康手帳の交付を受けた妊婦の方、産後1年を経過する月の前月末日までの子どもを養育する者ひとり親世帯の方) | 
        
          | 粗大ごみ収集 | あり | 
        
          | 生ごみ処理機助成金制度 | あり 
              上限金額20000円上限比率50.0% | 
      
    
   
  
      港区の住まいの給付金
                  中古購入
    
    増築・改築・改修
    
      
        
          | 利子補給制度 | なし | 
        
          | 補助/助成金制度 | あり 
              上限金額600万円 | 
      
    
          
    
      ※行政機関により公表していない地域及びデータがございます。東京23区以外の政令指定都市は、市全体のデータとして表示しています。
      
※提供データには細心の注意を払っておりますが、調査後に変更がある場合があります。 最新の情報につきましては各市区役所までお問い合わせいただくか、自治体HPなどをご確認ください。
    
      港区の暮らしデータをもっと見る
     
 
  
        
                - 
      
                  
 
        - 藤和志木タワー
- 
          
            - 価格
- 5100万円
- 住所
- 埼玉県朝霞市朝志ケ丘2
- 専有面積
- 71.59m2
 
 
- 
      
                  
 
        - 麻布プレイス
- 
          
            - 価格
- 5999万円
- 住所
- 東京都港区麻布十番2
- 専有面積
- 37.84m2
 
 
- 
      
                  
 
        - ウェリス・ジオ梅田レジデンス
- 
          
            - 価格
- 6480万円
- 住所
- 大阪府大阪市北区豊崎3
- 専有面積
- 56.76m2
 
 
 
    
  
  
    物件を見たい、物件や住環境の詳しい情報やローン相談など、
    
    
    
      - お問い合わせ先
- (株)丸の内一級建築士事務所