中古マンション
勝どきビュータワー 24階 1LDK
 
  
    
      | 価格 | 12980万円  (管理費等:1万5630円/月(委託(通勤))) | 
    
      | 修繕積立金 | 24,160円 | 
    
      | 交通 |  | 
    
      | 所在地 | 東京都中央区勝どき1周辺地図 | 
    
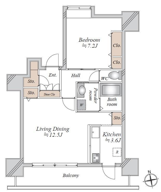
      | 間取り | 1LDK | 専有面積 | 56.43m2(壁芯) | 
    
      | 所在階/階数 | 24階/地上53階地下3階建 | 方位 | 南 | 
    
      | 築年月 | 2010年11月 | 築年数 | 築15年 | 
  
 
 
- おすすめポイント
- 駐車場「空有」は2025年7月25日時点の情報です。◆3年間の設備保証つき◆成約されたお客様には、指定設備において故障が生じた際に修理費用の負担軽減ができるサービスをご用意しております。※仲介会社を介さず、弊社から直接ご購入された場合に適用※保証内容の制限・保証限度額の設定あり◆設備トラブルの問い合わせを24時間受付対応◆成約されたお客様には、突発的な設備トラブルに対応する「駆けつけ」サービスを提供しております。24時間365日コールセンター対応!30分以内の一次応急処置を無料にて行います。※対象期間:物件引き渡し日から1年後の月末まで※対象者・対象設備・その他諸条件あり
 日当り良好・管理人日勤
  
    物件を見たい、物件や住環境の詳しい情報やローン相談など、
    
    
    
      - お問い合わせ先
- (株)ランドネット
 
 
| 価格 | 12980万円 | 管理費等 | 1万5630円/月(委託(通勤)) | 
| 駐車場 | 敷地内(3万円~5万円/月) | 修繕積立金 | 24,160円 | 
| 所在地 | 東京都中央区勝どき1周辺地図 | 
| 交通 |  | 
| 物件名 | 勝どきビュータワー | 
| 築年月(築年数) | 2010年11月(築15年) | 間取り | 1LDK | 
| 総戸数 | 746戸 | 専有面積 | 56.43m2(壁芯) | 
| 所在階/階数 | 24階/地上53階地下3階建 | バルコニー面積 | 11.4m2 | 
| 方位 | 南 | 建物構造 | RC | 
| 管理形態 | 委託管理 | 
| 維持費等 |  | 土地権利 | 所有権 | 
| 用途地域 | 商業地域 | 借地期間・地代 |  | 
| 現況 |  | 引渡可能年月 | 相談 | 
| 情報提供元 | SUUMO [030Z78386682] | 情報公開日 |  | 
| 情報更新日 |  | 次回更新予定日 | 随時 | 
設備など
| ペット相談可 | - | 即入居可 | - | 南向き | ○ | 
| 角部屋 | - | 駐車場空き有り | ○ | トランクルーム | - | 
| オートロック | - | 宅配ボックス | ○ | 浴室乾燥機 | ○ | 
| 床暖房 | ○ | ウォークインクローゼット | - | 管理人常駐 | - | 
| 最上階 | - | 2階以上 | ○ | タワーマンション | ○ | 
| 設備 | バルコニー・トイレ・洗面所・エレベーター・管理人日勤・浴室乾燥機・シャンプードレッサ・温水洗浄便座・システムキッチン・モニタ付インターホン・風呂・対面K・床暖房・衣類乾燥機・高速ネット対応・バイク置き場・駐輪場・宅配BOX・シューズインクローク | 
| リフォーム履歴 | - | 
| リノベーション履歴 | - | 
| 備考 | <物件名>勝どきビュータワー/<駐車場>敷地内/委託(日勤)/<土地権利>所有権/<間取り>1LDK/<用途地域>2種住居あり/<特徴>◆都営大江戸線「勝どき駅」直結徒歩1分!◆南からの明るい光、陽だまり空間、スーパー 徒歩10分以内・南向き・システムキッチン・浴室乾燥機・陽当り良好 販売戸数:1戸/管理費等帯:15630円/修繕積立金帯:24160円
 | 
| 特記事項 | 日当り良好・管理人日勤 | 
東京都中央区勝どき1 周辺地図情報
※地図上に表示される物件の位置は付近住所に所在することを表すものであり、実際の物件所在地とは異なる場合がございます。
   正確な物件所在地は、取扱い不動産会社にお問い合わせください。
 
 
  
    物件を見たい、物件や住環境の詳しい情報やローン相談など、
    
    
    
      - お問い合わせ先
- (株)ランドネット
 
 
不動産会社情報
| お問い合わせ先 | 商号:(株)ランドネット 免許番号:国土交通大臣(3)第008622号
 所在地:東京都豊島区南池袋1-16-15 ダイヤゲート7階
 TEL:0120-012461
 取引態様:売主
 管理コード:221509
 | 共有する |  | 
  
    物件を見たい、物件や住環境の詳しい情報やローン相談など、
    
    
    
      - お問い合わせ先
- (株)ランドネット
 
 
  
  
    人口などの統計情報
    
      
        
          | 世帯数 | 92487世帯 | 
        
          | 人口総数 | 176835人 | 
        
          | 転入者数 | 18608人 
 
              転入率(人口1000人当たり)105.23人 | 
        
          | 転出者数 | 16381人 
 
              転出率(人口1000人当たり)92.63人 | 
        
          | 土地平均価格 | 
              住宅地1480000円/m2商業地6484815円/m2 | 
      
    
   
    
    結婚・育児の助成金
    
      
        
          | 子育て関連の独自の取り組み | (1)学校給食費の無償化。(2)中央区子どもの学習・生活支援事業(小学校4年生から高校生世代までのお子さんを対象に、無料の学習・生活支援事業の実施)。(3)親子で親しむ浜離宮(子どもと同伴する保護者等の浜離宮の入場料を区が負担)。 | 
        
          | 出産祝い | あり | 
        
          | 公立保育所数 | 14所(うち0歳児保育を実施している保育所:14所) | 
        
          | 私立保育所数 | 63所(うち0歳児保育を実施している保育所:35所) | 
        
          | 保育所入所待機児童数 | 0人 | 
        
          | 認定こども園数 | 6園 | 預かり保育実施園数 | 公立:3園 私立:- | 
        
          | 学校給食 | 【小学校】完全給食【中学校】完全給食 | 
        
          | 公立中学校の学校選択制 | 実施(中学校自由選択制) | 
        
          | 子ども・学生等医療費助成<通院>対象年齢 | 18歳3月末まで | 子ども・学生等医療費助成<入院>対象年齢 | 18歳3月末まで | 
      
    
   
    
    中央区の治安・ごみ収集情報
    公共料金・インフラ
    
      
        
          | ガス料金(22m3使用した場合の月額) | 東京瓦斯株式会社(東京地区等)3926円 | 
        
          | 水道料金(口径20mmで20m3の月額) | 東京都水道局2816円 | 
        
          | 下水道料金(20m3を使用した場合の月額) | 東京都下水道局2068円 | 
        
          | 下水道普及率 | 100.0% | 
      
    
    安心・安全
    
      
        
          | 建物火災出火件数 | 106件 
              人口10000人当たり6.27件 | 
        
          | 刑法犯認知件数 | 1828件 
              人口1000人当たり10.81件 | 
        
          | ハザード・防災マップ | あり | 
      
    
    医療
    
      
        
          | 一般病院総数 | 4ヶ所 | 
        
          | 一般診療所総数 | 778ヶ所 | 
        
          | 小児科医師数 | 59人 
              小児人口10000人当たり24.65人 | 
        
          | 産婦人科医師数 | 68人 
              15~49歳女性人口1万人当たり14.62人 | 
        
          | 介護保険料基準額(月額) | 6300円 | 
      
    
    ごみ
    
      
        
          | 家庭ごみ収集(可燃ごみ) | 無料 | 
        
          | 家庭ごみの分別方式 | 4分別10種〔燃やすごみ 燃やさないごみ プラマーク 資源(紙類[新聞、雑誌、ダンボール、雑紙]、びん、ペットボトル、缶類)〕 | 
        
          | 家庭ごみの戸別収集 | 一部実施(ふれあい収集) | 
        
          | 粗大ごみ収集 | あり | 
        
          | 生ごみ処理機助成金制度 | なし 
              上限金額-上限比率- | 
      
    
   
  
      中央区の住まいの給付金
                  中古購入
    
    増築・改築・改修
    
      
        
          | 利子補給制度 | なし | 
        
          | 補助/助成金制度 | あり 
              上限金額(1)300万円(2)185.4万円 | 
      
    
          
    
      ※行政機関により公表していない地域及びデータがございます。東京23区以外の政令指定都市は、市全体のデータとして表示しています。
      
※提供データには細心の注意を払っておりますが、調査後に変更がある場合があります。 最新の情報につきましては各市区役所までお問い合わせいただくか、自治体HPなどをご確認ください。
    
      中央区の暮らしデータをもっと見る
     
 
    
  
  
    物件を見たい、物件や住環境の詳しい情報やローン相談など、
    
    
    
      - お問い合わせ先
- (株)ランドネット