アプリで簡単 物件探し 通知 共有 アプリならではの機能を使ってみる
中古マンション

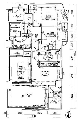
ホーユウコンフォルト鶴巻温泉 2階 ワンルーム

情報提供元
SUUMO
ホーユウコンフォルト鶴巻温泉
価格 250万円  (管理費等:7990円/月(自主管理(管理員なし)))
修繕積立金 9,700円
交通
所在地 神奈川県秦野市鶴巻南2周辺地図
間取り ワンルーム 専有面積 17.01m2(壁芯)
所在階/階数 2階/3階建 方位 西
築年月 1991年8月 築年数 築34年3ヶ月
おすすめポイント
3点式ユニットシャワーになります。浴槽はございません。◆◇◆設備トラブルの問い合わせを24時間受付対応!◆◇◆成約されたお客様には、突発的な設備トラブルに対応する「駆けつけ」サービスを提供しております。24時間365日コールセンター対応!30分以内の一次応急処置を無料にて行います。※対象期間:物件引き渡し日の翌月末まで※対象者・対象設備・その他諸条件あり
角部屋
物件を見たい、物件や住環境の詳しい情報やローン相談など、
お問い合わせ先
(株)ランドネット

詳細情報

価格 250万円 管理費等 7990円/月(自主管理(管理員なし))
駐車場 修繕積立金 9,700円
所在地 神奈川県秦野市鶴巻南2周辺地図
交通
  • 小田急小田原線 鶴巻温泉駅 徒歩9分乗換案内
物件名 ホーユウコンフォルト鶴巻温泉
築年月(築年数) 1991年8月(築34年3ヶ月) 間取り ワンルーム
総戸数 19戸 専有面積 17.01m2(壁芯)
所在階/階数 2階/3階建 バルコニー面積 2.83m2
方位 西 建物構造 RC
管理形態
維持費等 土地権利 所有権
用途地域 1種中高 借地期間・地代
現況 引渡可能年月 相談
情報提供元 SUUMO [030Z78583845] 情報公開日
情報更新日 次回更新予定日 随時

設備など

ペット相談可 - 即入居可 - 南向き -
角部屋 駐車場空き有り - トランクルーム -
オートロック - 宅配ボックス - 浴室乾燥機 -
床暖房 - ウォークインクローゼット - 管理人常駐 -
最上階 - 2階以上 タワーマンション -
設備 駐輪場
リフォーム履歴 -
リノベーション履歴 -
備考 <物件名>ホーユウコンフォルト鶴巻温泉/<駐車場>無/<土地権利>所有権/<間取り>R/<特徴>◆忙しい朝や遅い帰宅時にも嬉しい駅歩9分!◆敷地内にゴミ置き場あり、スーパー 徒歩10分以内・角住戸・駐輪場
販売戸数:1戸/管理費等帯:7990円/修繕積立金帯:9700円
特記事項 角部屋

省エネ性能

エネルギー消費性能 -
断熱性能 -
目安光熱費 -

神奈川県秦野市鶴巻南2 周辺地図情報

地図
※地図上に表示される物件の位置は付近住所に所在することを表すものであり、実際の物件所在地とは異なる場合がございます。
   正確な物件所在地は、取扱い不動産会社にお問い合わせください。
物件を見たい、物件や住環境の詳しい情報やローン相談など、
お問い合わせ先
(株)ランドネット

不動産会社情報

お問い合わせ先 商号:(株)ランドネット
免許番号:国土交通大臣(3)第008622号
所在地:東京都豊島区南池袋1-16-15 ダイヤゲート7階
TEL:0120-012461
取引態様:一般媒介
管理コード:223390
共有する
QRコード
物件を見たい、物件や住環境の詳しい情報やローン相談など、
お問い合わせ先
(株)ランドネット

秦野市の暮らしデータ

人口などの統計情報

世帯数 70325世帯
人口総数 159257人
転入者数 6488人
転入率(人口1000人当たり)
40.74人
転出者数 5556人
転出率(人口1000人当たり)
34.89人
土地平均価格
住宅地
80606円/m2
商業地
162000円/m2

結婚・育児の助成金

子育て関連の独自の取り組み (1)子育て世代包括支援センターに母子保健コーディネーター(助産師)を2名配置し妊娠期の早い段階からの支援。(2)イクメン講座(乳児家族の教室)。
出産祝い なし
公立保育所数 0所(うち0歳児保育を実施している保育所:-)
私立保育所数 23所(うち0歳児保育を実施している保育所:23所)
保育所入所待機児童数 0人
認定こども園数 9園 預かり保育実施園数 公立:7園 私立:2園
学校給食 【小学校】完全給食【中学校】完全給食
公立中学校の学校選択制 未実施
子ども・学生等医療費助成<通院>対象年齢 18歳3月末まで 子ども・学生等医療費助成<入院>対象年齢 18歳3月末まで

秦野市の治安・ごみ収集情報

公共料金・インフラ

ガス料金(22m3使用した場合の月額) 秦野瓦斯株式会社 5791円
水道料金(口径20mmで20m3の月額) 秦野市2090円
下水道料金(20m3を使用した場合の月額) 秦野市2618円
下水道普及率 88.1%

安心・安全

建物火災出火件数 30件
人口10000人当たり
1.85件
刑法犯認知件数 651件
人口1000人当たり
4.01件
ハザード・防災マップ あり

医療

一般病院総数 4ヶ所
一般診療所総数 101ヶ所
小児科医師数 20人
小児人口10000人当たり
12.20人
産婦人科医師数 4人
15~49歳女性人口1万人当たり
1.42人
介護保険料基準額(月額) 5950円

ごみ

家庭ごみ収集(可燃ごみ) 無料
備考
-
家庭ごみの分別方式 7分別21種〔可燃ごみ 容器包装プラスチック(ペットボトル、容器包装プラスチック) 資源物(新聞、雑誌類、段ボール、牛乳パック、シュレッダー紙、紙箱、衣類・布類、カン、ビン[透明、茶、その他の色]) 不燃ごみ 剪定枝 廃食用油 蛍光灯など(蛍光灯、乾電池、スプレー缶、体温計)〕
家庭ごみの戸別収集 一部実施(一部地域のみ、可燃ごみの夜間戸別収集を実施)
粗大ごみ収集 あり
備考
有料。戸別収集。事前申込制。1週間前までに環境資源対策課に連絡して収集。
生ごみ処理機助成金制度 あり
上限金額
50000円
上限比率
75.0%

秦野市の住まいの給付金

中古購入

利子補給制度 なし
補助/助成金制度 なし

増築・改築・改修

利子補給制度 なし
補助/助成金制度 あり
上限金額
(1)106.5万円(2)60万円
備考
(1)【耐震改修工事等補助金】1981年5月31日以前に建築の木造住宅の耐震工事へ補助。(a)診断費用の10/10、上限8.5万円(b)補強設計費用の1/2、上限5万円(c)改修工事費用の1/2、上限90万円(d)工事監理費用の1/2、上限3万円。(2)【秦野産材活用住宅助成制度】秦野産材使用の住宅改修補助。構造材として3m3以上使用する場合(上限60万円)。内装材として9m3以上使用する場合(上限35万円)。構造材及び内装材の両方に使用する場合(上限60万円)。
暮らしデータ提供元:生活ガイド.com
※行政機関により公表していない地域及びデータがございます。東京23区以外の政令指定都市は、市全体のデータとして表示しています。
※提供データには細心の注意を払っておりますが、調査後に変更がある場合があります。 最新の情報につきましては各市区役所までお問い合わせいただくか、自治体HPなどをご確認ください。

この物件を見た人はこんな物件も見ています

OCN×ドコモ光新規お申込みで合計最大137,280円相当おトク!特典の内訳・適用条件など詳細はこちら

秦野市内の各駅の住みやすさ

他のエリアから探す

秦野市の詳細地域から中古マンション物件を探す

今川町落合上大槻寿町曽屋千村鶴巻鶴巻北鶴巻南東田原堀川南が丘南矢名元町

近辺の市区から探す

平塚市伊勢原市南足柄市中郡大磯町中郡二宮町足柄上郡中井町足柄上郡大井町足柄上郡松田町足柄上郡山北町足柄上郡開成町

周辺の駅から探す

小田急電鉄小田原線
厚木本厚木愛甲石田伊勢原鶴巻温泉東海大学前秦野渋沢新松田

マンションライブラリーを見る

ホーユウコンフォルト鶴巻温泉

住宅ローンの返済額一覧

物件価格 250万円に対して、年率 で、頭金 の場合
↓ボーナス 35年間 30年間 25年間 20年間 15年間 10年間
0万円 ローン不可 ローン不可 ローン不可 ローン不可 ローン不可 ローン不可
5万円 ローン不可 ローン不可 ローン不可 ローン不可 ローン不可 ローン不可
10万円 ローン不可 ローン不可 ローン不可 ローン不可 ローン不可 ローン不可
15万円 ローン不可 ローン不可 ローン不可 ローン不可 ローン不可 ローン不可
20万円 ローン不可 ローン不可 ローン不可 ローン不可 ローン不可 ローン不可
25万円 ローン不可 ローン不可 ローン不可 ローン不可 ローン不可 ローン不可
30万円 ローン不可 ローン不可 ローン不可 ローン不可 ローン不可 ローン不可
支払い利息合計
※元利均等返済方式で試算しています。 「円」の単位以下の端数金額は「切り捨て」として計算しております。
※金利は、固定金利として計算しております。
※上記の住宅ローン返済額一覧は、あくまで試算であり、将来の金利動向により、実際のご返済額とは異なります。
※ボーナス支払総額が総支払額の50%を超えている場合、上記の表では「ローン不可」となります。
※住宅ローン返済額一覧の数値は、住宅ローンのお申し込みやご融資をお約束するものではございません。
物件を見たい、物件や住環境の詳しい情報やローン相談など、
お問い合わせ先
(株)ランドネット

掲載情報の著作権は提供元企業等に帰属します。
Copyright:(C) 2025 Recruit Co., Ltd.
アプリで簡単 物件探し 大手不動産サイトの情報から一括検!プッシュ通知で物件を見逃さない
App Storeからダウンロード Google Playで手に入れよう QRコード