アプリで簡単 物件探し 通知 共有 アプリならではの機能を使ってみる
中古住宅

神奈川県小田原市田島 国府津駅 中古一戸建て・中古住宅

情報提供元
LIFULL HOME'S
神奈川県小田原市田島 国府津駅 中古一戸建て・中古住宅
価格 3980万円
交通
所在地 神奈川県小田原市田島周辺地図
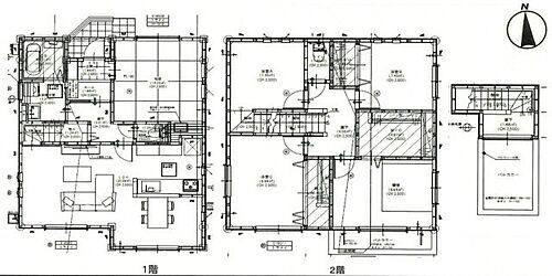
間取り 5LDK
建物面積 183.83m2 土地面積 302.45m2(実測)
築年月 2014年5月 築年数 築11年6ヶ月
おすすめポイント
JR東海道本線「国府津」駅徒歩32分。LDK広々29帖ございます!ゆとりのある5LDK!
お問い合わせ先
株式会社クリップ クリップハウジング
物件を見たい、物件や住環境の詳しい情報やローン相談など、
お問い合わせ先
株式会社クリップ クリップハウジング

詳細情報

価格 3980万円
所在地 神奈川県小田原市田島周辺地図
交通
間取り 5LDK 築年月(築年数) 2014年5月(築11年6ヶ月)
建物面積 183.83m2 建物構造・規模 木造2階建
土地面積 302.45m2(実測) 土地権利 所有権
私道面積 借地期間・地代
接道状況 南東4.5m公道 駐車場
用途地域 都市計画 調整区域
建ぺい率/容積率 50%/100% 現況 居住中
地目 宅地 引渡可能時期 相談
情報提供元 LIFULL HOME'S [1070760017400] 情報公開日
情報更新日 次回更新予定日 2025年11月2日

設備など

1種低層地域 - 即入居可 - 売主・代理 -
駐車2台以上 - 平屋 - 本下水 -
都市ガス - カウンターキッチン - 床暖房 -
ウォークインクローゼット - バリアフリー -
設備 上水道・プロパンガス・浄化槽
リフォーム履歴 -
リノベーション履歴 -
備考 クリップハウジングでは湘南・県央エリアを中心に、新築・中古戸建、土地、マンションなど、豊富な物件情報を取り扱っております。応対スタッフは「宅地建物取引士」、「住宅ローンアドバイザー」資格を保有しており、プロとして的確なアドバイスをいたします。また、当社でしか取扱いできない物件も多数保有しており、幅広いご提案が可能です。お住替え・ご売却についても高額査定・買取保証付きの当社にお任せください。
述べ床面積:183.83m2
特記事項

省エネ性能

エネルギー消費性能 -
断熱性能 -
目安光熱費 -

神奈川県小田原市田島 周辺地図情報

地図
※地図上に表示される物件の位置は付近住所に所在することを表すものであり、実際の物件所在地とは異なる場合がございます。
   正確な物件所在地は、取扱い不動産会社にお問い合わせください。
物件を見たい、物件や住環境の詳しい情報やローン相談など、
お問い合わせ先
株式会社クリップ クリップハウジング

不動産会社情報

お問い合わせ先 商号:株式会社クリップ クリップハウジング
免許番号:国土交通大臣免許(1)第10086号
所在地:神奈川県平塚市花水台15-11
取引態様:媒介
管理コード:17400
共有する
QRコード

お電話でのお問い合わせ

電話をかける(携帯・PHS可)
お問い合わせダイヤル
通話無料0037-634-00194
営業時間 09:00~20:00 (定休日:毎週水曜日 GW休暇 お盆休暇 年末年始)
音声案内に従って数字を入力
お問い合わせ番号
95529-2978
不動産会社につながります
不動産会社のスタッフと
直接電話で話せます。
※不動産会社がお電話に出られなかった場合、株式会社LIFULLは電話会社が提供するサービスを介してお客様の発信者番号を受領後、折り返し専用の電話番号を発番してお問合せの不動産会社に通知します(お客様の発信者番号がお問合せの不動産会社に通知されることはございません)
※光IP電話、及びIP電話からはご利用になれません
※0037で始まる電話番号に携帯電話からお問合せいただいた方には、ショートメッセージ(SMS)によるお問合せ完了通知をお届けする場合があります
物件を見たい、物件や住環境の詳しい情報やローン相談など、
お問い合わせ先
株式会社クリップ クリップハウジング

小田原市の暮らしデータ

人口などの統計情報

世帯数 81622世帯
人口総数 187040人
転入者数 7388人
転入率(人口1000人当たり)
39.50人
転出者数 6595人
転出率(人口1000人当たり)
35.26人
土地平均価格
住宅地
106278円/m2
商業地
195000円/m2

結婚・育児の助成金

子育て関連の独自の取り組み -
出産祝い あり
公立保育所数 5所(うち0歳児保育を実施している保育所:4所)
私立保育所数 26所(うち0歳児保育を実施している保育所:25所)
保育所入所待機児童数 3人
認定こども園数 5園 預かり保育実施園数 公立:2園 私立:10園
学校給食 【小学校】完全給食【中学校】完全給食
公立中学校の学校選択制 未実施
子ども・学生等医療費助成<通院>対象年齢 中学校卒業まで 子ども・学生等医療費助成<入院>対象年齢 中学校卒業まで

小田原市の治安・ごみ収集情報

公共料金・インフラ

ガス料金(22m3使用した場合の月額) 小田原瓦斯株式会社4489円
水道料金(口径20mmで20m3の月額) 小田原市2255円
神奈川県営水道2509円
下水道料金(20m3を使用した場合の月額) 小田原市2636円
下水道普及率 83.6%

安心・安全

建物火災出火件数 33件
人口10000人当たり
1.75件
刑法犯認知件数 928件
人口1000人当たり
4.91件
ハザード・防災マップ あり

医療

一般病院総数 11ヶ所
一般診療所総数 152ヶ所
小児科医師数 32人
小児人口10000人当たり
16.39人
産婦人科医師数 15人
15~49歳女性人口1万人当たり
4.44人
介護保険料基準額(月額) 5990円

ごみ

家庭ごみ収集(可燃ごみ) 無料
備考
清掃工場に持ち込みの場合は、有料(25円/kg)。
家庭ごみの分別方式 8分別17種〔燃せるごみ 紙・布類(新聞紙、雑誌、段ボール、紙パック、その他紙、布類) ペットボトル トレー類・プラマーク表示のあるもの かん類 びん類 燃せないごみ スプレー缶など(スプレー缶・カセットボンベ、蛍光灯、乾電池、ビデオテープ・カセットテープ、廃食用油)〕
家庭ごみの戸別収集 一部実施(紙・布類について高齢者世帯、障がい者世帯を対象に、紙・布類の登録制戸別収集を実施)
粗大ごみ収集 あり
備考
有料(1,000円/枚の証紙購入)。事前申込制による戸別収集。
生ごみ処理機助成金制度 なし
上限金額
-
上限比率
-

小田原市の住まいの給付金

中古購入

利子補給制度 なし
補助/助成金制度 なし

増築・改築・改修

利子補給制度 なし
補助/助成金制度 あり
上限金額
(1)(カタログギフト)5万円(2)9万円(3)100万円
備考
(1)【住宅リフォーム支援】住宅リフォームを市内施工業者で実施した際に、5万円分の地場産品等の商品を進呈(カタログギフト方式)する(金銭補助ではない)。(2)【耐震診断助成】1981年5月31日以前建築の木造2階建以下の住宅が対象。65歳以上の非課税世帯は上限9万円。それ以外の世帯は上限6万円。(3)【耐震改修助成】(2)の要件及び耐震診断の評点が1.0未満の住宅が対象。設計・工事監理費の2/3(上限15万円)。改修費の1/2(上限85万円)。
暮らしデータ提供元:生活ガイド.com
※行政機関により公表していない地域及びデータがございます。東京23区以外の政令指定都市は、市全体のデータとして表示しています。
※提供データには細心の注意を払っておりますが、調査後に変更がある場合があります。 最新の情報につきましては各市区役所までお問い合わせいただくか、自治体HPなどをご確認ください。

この物件を見た人はこんな物件も見ています

OCN×ドコモ光新規お申込みで合計最大137,280円相当おトク!特典の内訳・適用条件など詳細はこちら

小田原市内の各駅の住みやすさ

住宅ローンの返済額一覧

物件価格 3980万円に対して、年率 で、頭金 の場合
↓ボーナス 35年間 30年間 25年間 20年間 15年間 10年間
0万円 90,335円/月 104,117円/月 123,425円/月 152,400円/月 200,714円/月 297,370円/月
5万円 81,250円/月 95,142円/月 114,558円/月 143,642円/月 192,062円/月 288,825円/月
10万円 72,164円/月 86,166円/月 105,691円/月 134,883円/月 183,411円/月 280,280円/月
15万円 63,079円/月 77,190円/月 96,824円/月 126,124円/月 174,759円/月 271,735円/月
20万円 53,993円/月 68,215円/月 87,958円/月 117,366円/月 166,108円/月 263,190円/月
25万円 ローン不可 59,239円/月 79,091円/月 108,607円/月 157,456円/月 254,645円/月
30万円 ローン不可 ローン不可 70,224円/月 99,848円/月 148,805円/月 246,099円/月
支払い利息合計 3,155,190円~ 2,697,840円~ 2,242,900円~ 1,788,480円~ 1,337,850円~ 890,620円~
※元利均等返済方式で試算しています。 「円」の単位以下の端数金額は「切り捨て」として計算しております。
※金利は、固定金利として計算しております。
※上記の住宅ローン返済額一覧は、あくまで試算であり、将来の金利動向により、実際のご返済額とは異なります。
※ボーナス支払総額が総支払額の50%を超えている場合、上記の表では「ローン不可」となります。
※住宅ローン返済額一覧の数値は、住宅ローンのお申し込みやご融資をお約束するものではございません。
物件を見たい、物件や住環境の詳しい情報やローン相談など、
お問い合わせ先
株式会社クリップ クリップハウジング

掲載情報の著作権は提供元企業等に帰属します。
Copyright:(C) 2025 LIFULL Co.,Ltd.
アプリで簡単 物件探し 大手不動産サイトの情報から一括検!プッシュ通知で物件を見逃さない
App Storeからダウンロード Google Playで手に入れよう QRコード