アプリで簡単 物件探し 通知 共有 アプリならではの機能を使ってみる
中古住宅

兵庫県西宮市名塩さくら台1 西宮名塩駅 中古一戸建て・中古住宅

情報提供元
SUUMO
兵庫県西宮市名塩さくら台1 西宮名塩駅 中古一戸建て・中古住宅
価格 4380万円
交通
所在地 兵庫県西宮市名塩さくら台1周辺地図
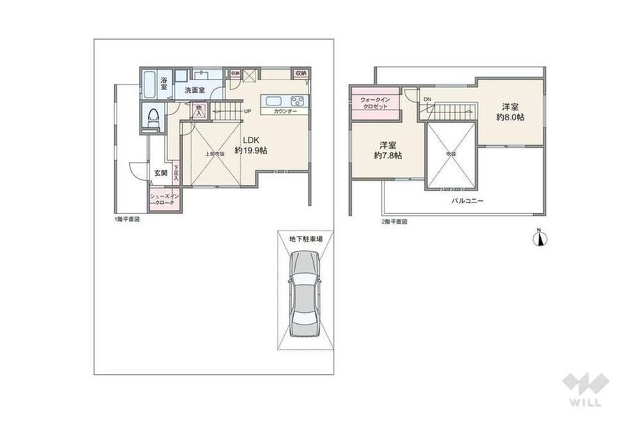
間取り 2LDK
建物面積 92.86m2(登記) 土地面積 233.94m2(登記)
築年月 2023年10月 築年数 築2年1ヶ月
おすすめポイント
駐車2台可能!1台分は電動シャッター付ビルトインガレージ!電気自動車充電用コンセント(200V)有!□LDKは約20帖!開放感のある間取□シューズインクローゼット・ ウォークインクローゼット等収納多数!□広々としたお庭付!□耐震等級3取得!□室内丁寧にお使いです!□ファミリーマート西宮名塩店まで850m□24時間スーパーハローズ西宮山口店まで5.5km□静かで落ち着いた住宅街で、在宅ワークにも最適!□土日はもちろん、平日や夜間も内覧OK!□今なら家具・家電付きでの引き渡しもご相談可能!■弊社の特徴について・駐車場も完備しておりますのでご利用ください。
日当り良好・閑静な住宅街・バリアフリー・駐車場2台分
お問い合わせ先
ウィル不動産販売 宝塚本店(株)ウィル
物件を見たい、物件や住環境の詳しい情報やローン相談など、
お問い合わせ先
ウィル不動産販売 宝塚本店(株)ウィル

詳細情報

価格 4380万円
所在地 兵庫県西宮市名塩さくら台1周辺地図
交通
  • JR福知山線 西宮名塩駅 バス16分/「さくら台1丁目」バス停 停歩2分乗換案内
間取り 2LDK 築年月(築年数) 2023年10月(築2年1ヶ月)
建物面積 92.86m2(登記) 建物構造・規模 木造2階建
土地面積 233.94m2(登記) 土地権利 所有権
私道面積 借地期間・地代
接道状況 南6m接面13m 駐車場
用途地域 1種低層 都市計画
建ぺい率/容積率 50%/100% 現況
地目 引渡可能時期 相談
情報提供元 SUUMO [060Z77552708] 情報公開日
情報更新日 次回更新予定日 随時

設備など

1種低層地域 即入居可 - 売主・代理 -
駐車2台以上 平屋 - 本下水
都市ガス カウンターキッチン - 床暖房 -
ウォークインクローゼット バリアフリー
設備 バルコニー・トイレ・都市ガス・浴室乾燥機・ウォークインクローゼット・温水洗浄便座・システムキッチン・モニタ付インターホン・風呂・庭・対面K・IHクッキングヒータ・浄水器・衣類乾燥機・食器洗浄乾燥機・上水道・本下水・駐車場2台分・フローリング・シューズインクローク
リフォーム履歴 -
リノベーション履歴 -
備考 <物件名>名塩さくら台1 4380万円/<駐車場>車庫/<土地権利>所有権/<間取り>2LDK/<特徴>■ウィル不動産販売■【有名建築士設計によるデザイナーズ注文住宅】、駐車2台可・LDK18畳以上・南向き・システムキッチン・浴室乾燥機
販売戸数:1戸
特記事項 日当り良好・閑静な住宅街・バリアフリー・駐車場2台分

省エネ性能

エネルギー消費性能 -
断熱性能 -
目安光熱費 -

兵庫県西宮市名塩さくら台1 周辺地図情報

地図
※地図上に表示される物件の位置は付近住所に所在することを表すものであり、実際の物件所在地とは異なる場合がございます。
   正確な物件所在地は、取扱い不動産会社にお問い合わせください。
物件を見たい、物件や住環境の詳しい情報やローン相談など、
お問い合わせ先
ウィル不動産販売 宝塚本店(株)ウィル

不動産会社情報

お問い合わせ先 商号:ウィル不動産販売 宝塚本店(株)ウィル
免許番号:国土交通大臣(5)第006447号
所在地:兵庫県宝塚市逆瀬川1-14-6
TEL:0120-666374
取引態様:専任媒介
管理コード:769171R
共有する
QRコード
物件を見たい、物件や住環境の詳しい情報やローン相談など、
お問い合わせ先
ウィル不動産販売 宝塚本店(株)ウィル

西宮市の暮らしデータ

人口などの統計情報

世帯数 215454世帯
人口総数 482594人
転入者数 21367人
転入率(人口1000人当たり)
44.28人
転出者数 20159人
転出率(人口1000人当たり)
41.77人
土地平均価格
住宅地
267031円/m2
商業地
529100円/m2

結婚・育児の助成金

子育て関連の独自の取り組み (1)赤ちゃんへの手紙(市内小学生から西宮に生まれた赤ちゃんに手紙を贈る事業)。(2)父子手帳(父親の育児参加促進のため、妊娠中のパートナーへの配慮のほか、赤ちゃんのあやし方やお風呂の入れ方等、イラストを交えて紹介した育児マニュアルを発行。母子健康手帳交付時に一体的に配布)。
出産祝い なし
公立保育所数 23所(うち0歳児保育を実施している保育所:21所)
私立保育所数 30所(うち0歳児保育を実施している保育所:29所)
保育所入所待機児童数 121人
認定こども園数 38園 預かり保育実施園数 公立:3園 私立:31園
学校給食 【小学校】完全給食【中学校】完全給食
公立中学校の学校選択制 一部実施(通学区域特認校制度を実施)
子ども・学生等医療費助成<通院>対象年齢 18歳3月末まで 子ども・学生等医療費助成<入院>対象年齢 18歳3月末まで

西宮市の治安・ごみ収集情報

公共料金・インフラ

ガス料金(22m3使用した場合の月額) 大阪瓦斯株式会社4544円
水道料金(口径20mmで20m3の月額) 西宮市2909円
下水道料金(20m3を使用した場合の月額) 西宮市1777円
下水道普及率 100.0%

安心・安全

建物火災出火件数 51件
人口10000人当たり
1.05件
刑法犯認知件数 3110件
人口1000人当たり
6.40件
ハザード・防災マップ あり

医療

一般病院総数 23ヶ所
一般診療所総数 553ヶ所
小児科医師数 128人
小児人口10000人当たり
20.58人
産婦人科医師数 58人
15~49歳女性人口1万人当たり
5.77人
介護保険料基準額(月額) 6400円

ごみ

家庭ごみ収集(可燃ごみ) 無料
備考
単純指定袋制。袋代にごみ収集・処理料金等を含まず。
家庭ごみの分別方式 6分別12種〔もやすごみ もやさないごみ 資源A(新聞、ダンボール、紙パック、古着) 資源B(雑誌、古本、チラシ、紙箱) ペットボトル その他プラ〕 拠点回収:使用済小型家電
家庭ごみの戸別収集 一部実施(【にこやか収集】要件を満たす障がい者、高齢者、要介護者が対象)
粗大ごみ収集 あり
備考
有料。事前申込制。300~3,600円/点。
生ごみ処理機助成金制度 なし
上限金額
-
上限比率
-

西宮市の住まいの給付金

中古購入

利子補給制度 なし
補助/助成金制度 なし

増築・改築・改修

利子補給制度 なし
補助/助成金制度 あり
上限金額
(1)10万円(2)100万円(3)30万円
備考
(1)【住宅リフォーム助成事業】市内施工業者によるリフォーム工事費用を一部助成。費用の10%、上限10万円。(2)【住宅耐震改修促進事業】1981年以前着工の住宅の耐震化に補助。(3)【人生いきいき住宅改造助成事業】バリアフリー改修工事費用の一部を補助。※すべてその他要件あり。
暮らしデータ提供元:生活ガイド.com
※行政機関により公表していない地域及びデータがございます。東京23区以外の政令指定都市は、市全体のデータとして表示しています。
※提供データには細心の注意を払っておりますが、調査後に変更がある場合があります。 最新の情報につきましては各市区役所までお問い合わせいただくか、自治体HPなどをご確認ください。

この物件を見た人はこんな物件も見ています

OCN×ドコモ光新規お申込みで合計最大137,280円相当おトク!特典の内訳・適用条件など詳細はこちら

他のエリアから探す

西宮市の詳細地域から一戸建て物件を探す

青木町青葉台愛宕山荒木町池田町石刎町泉町一ケ谷町一里山町今津曙町今津上野町今津野田町今津水波町今津山中町上ケ原九番町上ケ原五番町上ケ原七番町上ケ原二番町上ケ原八番町上ケ原山田町上ケ原四番町上田中町江上町老松町大谷町大畑町大屋町神楽町笠屋町霞町上大市神垣町上甲子園上甲東園神園町上之町上葭原町柏堂西町川添町川西町川東町瓦林町神原菊谷町木津山町北六甲台久出ケ谷町久保町熊野町苦楽園一番町苦楽園五番町苦楽園三番町苦楽園二番町苦楽園四番町苦楽園六番町結善町剣谷町甲子園網引町甲子園浦風町甲子園口甲子園五番町甲子園七番町甲子園二番町甲子園春風町甲子園三保町甲子園六石町甲東園甲陽園山王町甲陽園西山町甲陽園東山町甲陽園日之出町甲陽園本庄町甲陽園目神山町甲陽園若江町甑岩町越水町寿町小松東町小松南町郷免町五月ケ丘獅子ケ口町下葭原町新甲陽町鷲林寺南町角石町すみれ台染殿町大社町高座町高塚町段上町堤町津門綾羽町津門大箇町津門呉羽町殿山町中島町中須佐町中屋町名塩名塩赤坂名塩ガーデン名塩木之元名塩さくら台名塩山荘名塩茶園町名塩平成台名塩南台名塩美山生瀬高台生瀬東町鳴尾町仁川五ケ山町仁川町仁川百合野町西波止町西平町能登町花園町花の峯浜甲子園浜町浜脇町東鳴尾町東町東山台樋ノ口町日野町平松町広田町深谷町伏原町二見町宝生ケ丘豊楽町堀切町松風町松ケ丘町松下町松園町松並町丸橋町満池谷町美作町南甲子園門戸岡田町門戸荘山口町上山口山口町香花園山口町下山口山口町中野山口町船坂弓場町与古道町六軒町若草町若山町

近辺の市区から探す

大阪市福島区大阪市此花区大阪市西淀川区豊中市池田市神戸市東灘区神戸市灘区尼崎市芦屋市伊丹市宝塚市川西市

周辺の駅から探す

福知山線
川西池田中山寺宝塚生瀬西宮名塩武田尾道場三田新三田

住宅ローンの返済額一覧

物件価格 4380万円に対して、年率 で、頭金 の場合
↓ボーナス 35年間 30年間 25年間 20年間 15年間 10年間
0万円 100,719円/月 116,085円/月 137,611円/月 169,918円/月 223,784円/月 331,551円/月
5万円 91,633円/月 107,109円/月 128,745円/月 161,159円/月 215,133円/月 323,006円/月
10万円 82,548円/月 98,134円/月 119,878円/月 152,400円/月 206,481円/月 314,461円/月
15万円 73,462円/月 89,158円/月 111,011円/月 143,642円/月 197,830円/月 305,915円/月
20万円 64,377円/月 80,182円/月 102,144円/月 134,883円/月 189,178円/月 297,370円/月
25万円 55,291円/月 71,207円/月 93,278円/月 126,124円/月 180,527円/月 288,825円/月
30万円 ローン不可 62,231円/月 84,411円/月 117,366円/月 171,875円/月 280,280円/月
支払い利息合計 3,519,900円~ 3,009,320円~ 2,499,000円~ 1,992,800円~ 1,490,450円~ 992,340円~
※元利均等返済方式で試算しています。 「円」の単位以下の端数金額は「切り捨て」として計算しております。
※金利は、固定金利として計算しております。
※上記の住宅ローン返済額一覧は、あくまで試算であり、将来の金利動向により、実際のご返済額とは異なります。
※ボーナス支払総額が総支払額の50%を超えている場合、上記の表では「ローン不可」となります。
※住宅ローン返済額一覧の数値は、住宅ローンのお申し込みやご融資をお約束するものではございません。
物件を見たい、物件や住環境の詳しい情報やローン相談など、
お問い合わせ先
ウィル不動産販売 宝塚本店(株)ウィル

掲載情報の著作権は提供元企業等に帰属します。
Copyright:(C) 2025 Recruit Co., Ltd.
アプリで簡単 物件探し 大手不動産サイトの情報から一括検!プッシュ通知で物件を見逃さない
App Storeからダウンロード Google Playで手に入れよう QRコード