アプリで簡単 物件探し 通知 共有 アプリならではの機能を使ってみる
中古住宅

東京都東久留米市学園町1 ひばりヶ丘駅 中古一戸建て・中古住宅

情報提供元
SUUMO
東京都東久留米市学園町1 ひばりヶ丘駅 中古一戸建て・中古住宅
価格 11000万円
交通
所在地 東京都東久留米市学園町1周辺地図
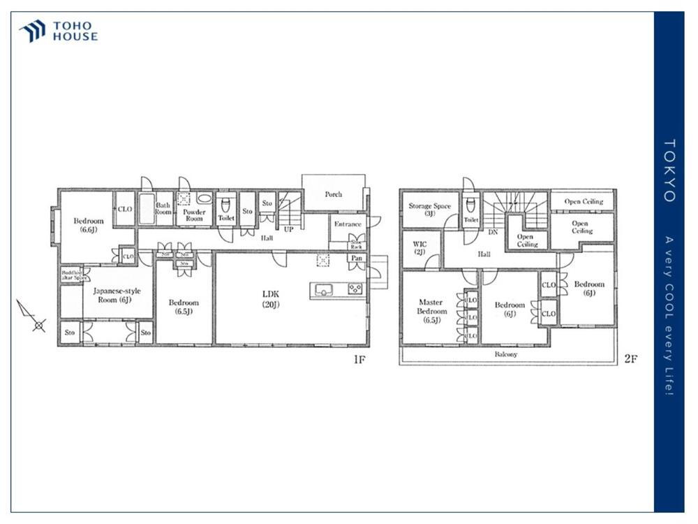
間取り 6SLDK
建物面積 277.61m2 土地面積 277.61m2
築年月 2004年9月 築年数 築21年2ヶ月
おすすめポイント
【TOHO HOUSE CLUBでのアフターサービス】☆防犯や日々の開閉に便利な電動シャッター(1Fのみ)を完備!☆土地面積277.61㎡(約83.97坪)を誇る、ゆとりある敷地!☆全居室6帖以上を確保した、ゆとりのあるプライベート空間!☆西武池袋線 急行停車駅「ひばりヶ丘」駅まで徒歩6分!ご購入後の「おウチ」と「お金」のご相談窓口をご用意しております!・金利上昇時のリスクヘッジ、借換え相談、繰上返済のタイミング、各種保険の見直し・・・etc・おウチの設備保証や定期点検、駆け付けサービス・・・etcお問い合わせ専用フリーダイヤル :0120-068-101
日当り良好・閑静な住宅街・駐車場2台分・浴室1坪以上
お問い合わせ先
東宝ハウスライフソリューションズグループ(株)東宝ハウス練馬
物件を見たい、物件や住環境の詳しい情報やローン相談など、
お問い合わせ先
東宝ハウスライフソリューションズグループ(株)東宝ハウス練馬

詳細情報

価格 11000万円
所在地 東京都東久留米市学園町1周辺地図
交通
間取り 6SLDK 築年月(築年数) 2004年9月(築21年2ヶ月)
建物面積 277.61m2 建物構造・規模 木造2階建
土地面積 277.61m2 土地権利 所有権
私道面積 借地期間・地代
接道状況 北東7.2m接面3.5m 駐車場
用途地域 1種低層 都市計画
建ぺい率/容積率 40%/80% 現況
地目 引渡可能時期 即時
情報提供元 SUUMO [030Z78614698] 情報公開日
情報更新日 次回更新予定日 随時

設備など

1種低層地域 即入居可 売主・代理 -
駐車2台以上 平屋 - 本下水
都市ガス カウンターキッチン - 床暖房 -
ウォークインクローゼット バリアフリー -
設備 バルコニー・トイレ・収納スペース・洗面所・都市ガス・浴室乾燥機・ウォークインクローゼット・シャンプードレッサ・温水洗浄便座・システムキッチン・モニタ付インターホン・風呂・庭・対面K・トイレ2ヶ所・浄水器・衣類乾燥機・食器洗浄乾燥機・複層ガラス・上水道・本下水・駐車場2台分・リフォーム・リノベーション
リフォーム履歴 2017年6月完了
 内装リフォーム:壁
 その他:LDK間仕切り撤去
※年月は一番古いリフォーム箇所を表します
リノベーション履歴 -
備考 <物件名>「学園町」 知的な静けさ。83坪の敷地に、住友林業旧施工のゆとりが息づく。/<駐車場>カースペース/<土地権利>所有権/<間取り>6LDK+S(納戸)/<リフォーム>●リフォーム:2017年6月完了(内装リフォーム:壁、その他:LDK間仕切り撤去)※年月は一番古いリフォーム箇所を表します/<特徴>この邸宅に、窮屈という言葉はない。光と風が通り抜ける空間で、上質な日常を。、地盤調査済・駐車2台可・即引渡可・2沿線以上利用可・LDK20畳以上
販売戸数:1戸
法令等制限:景観法による規制有、宅地造成工事規制区域、高さ最高限度有、日影制限有
特記事項 日当り良好・閑静な住宅街・駐車場2台分・浴室1坪以上

省エネ性能

エネルギー消費性能 -
断熱性能 -
目安光熱費 -

東京都東久留米市学園町1 周辺地図情報

地図
※地図上に表示される物件の位置は付近住所に所在することを表すものであり、実際の物件所在地とは異なる場合がございます。
   正確な物件所在地は、取扱い不動産会社にお問い合わせください。
物件を見たい、物件や住環境の詳しい情報やローン相談など、
お問い合わせ先
東宝ハウスライフソリューションズグループ(株)東宝ハウス練馬

不動産会社情報

お問い合わせ先 商号:東宝ハウスライフソリューションズグループ(株)東宝ハウス練馬
免許番号:東京都知事(2)第098694号
所在地:東京都練馬区東大泉1-27-22 光和ビル2F
TEL:0120-068101
取引態様:媒介
管理コード:河野
共有する
QRコード
物件を見たい、物件や住環境の詳しい情報やローン相談など、
お問い合わせ先
東宝ハウスライフソリューションズグループ(株)東宝ハウス練馬

東久留米市の暮らしデータ

人口などの統計情報

世帯数 51146世帯
人口総数 116512人
転入者数 5315人
転入率(人口1000人当たり)
45.62人
転出者数 4843人
転出率(人口1000人当たり)
41.57人
土地平均価格
住宅地
203000円/m2
商業地
392500円/m2

結婚・育児の助成金

子育て関連の独自の取り組み 児童の居場所づくり事業。
出産祝い なし
公立保育所数 7所(うち0歳児保育を実施している保育所:7所)
私立保育所数 14所(うち0歳児保育を実施している保育所:13所)
保育所入所待機児童数 0人
認定こども園数 2園 預かり保育実施園数 公立:- 私立:4園
学校給食 【小学校】完全給食【中学校】家庭弁当等との選択制/デリバリー形式[運搬:ランチボックス、内容:完全給食]
公立中学校の学校選択制 未実施
子ども・学生等医療費助成<通院>対象年齢 18歳3月末まで 子ども・学生等医療費助成<入院>対象年齢 18歳3月末まで

東久留米市の治安・ごみ収集情報

公共料金・インフラ

ガス料金(22m3使用した場合の月額) 東京瓦斯株式会社(東京地区等)3926円
水道料金(口径20mmで20m3の月額) 東京都水道局2816円
下水道料金(20m3を使用した場合の月額) 東久留米市2134円
下水道普及率 100.0%

安心・安全

建物火災出火件数 24件
人口10000人当たり
2.08件
刑法犯認知件数 605件
人口1000人当たり
5.25件
ハザード・防災マップ あり

医療

一般病院総数 3ヶ所
一般診療所総数 67ヶ所
小児科医師数 15人
小児人口10000人当たり
10.96人
産婦人科医師数 15人
15~49歳女性人口1万人当たり
6.95人
介護保険料基準額(月額) 5900円

ごみ

家庭ごみ収集(可燃ごみ) 有料
備考
燃やせるごみ・燃やせないごみ・容器包装プラスチックは有料(2017年10月1日より)。
家庭ごみの分別方式 10分別12種〔燃やせるごみ 燃やせないごみ リサイクルカン リサイクルビン 紙類(新聞・チラシ、ダンボール、雑紙・雑誌) 布類 容器包装プラスチック ペットボトル 有害ごみ 剪定枝〕 拠点回収:小型廃家電類
家庭ごみの戸別収集 実施
粗大ごみ収集 あり
備考
有料。品目別料金。
生ごみ処理機助成金制度 なし
上限金額
-
上限比率
-

東久留米市の住まいの給付金

中古購入

利子補給制度 なし
補助/助成金制度 なし

増築・改築・改修

利子補給制度 なし
補助/助成金制度 あり
上限金額
(1)5万円(2)100万円
備考
(1)【木造住宅耐震診断助成制度】1981年5月31日以前に建てられた住宅に関して、一定の条件を満たせば耐震診断費用の一部を助成。耐震診断に要した費用1/2、上限5万円を補助。(2)【木造住宅耐震改修助成制度】1981年5月31日以前に建てられた住宅に関して、耐震診断の結果、耐震性が低いことが判明した住宅について一定の条件を満たせば耐震改修工事費用の一部を助成。耐震改修に要した費用1/3、上限100万円を補助。
暮らしデータ提供元:生活ガイド.com
※行政機関により公表していない地域及びデータがございます。東京23区以外の政令指定都市は、市全体のデータとして表示しています。
※提供データには細心の注意を払っておりますが、調査後に変更がある場合があります。 最新の情報につきましては各市区役所までお問い合わせいただくか、自治体HPなどをご確認ください。

この物件を見た人はこんな物件も見ています

OCN×ドコモ光新規お申込みで合計最大137,280円相当おトク!特典の内訳・適用条件など詳細はこちら

東久留米市内の各駅の住みやすさ

住宅ローンの返済額一覧

物件価格 11000万円に対して、年率 で、頭金 の場合
↓ボーナス 35年間 30年間 25年間 20年間 15年間 10年間
0万円 272,564円/月 314,148円/月 372,403円/月 459,830円/月 605,603円/月 897,239円/月
5万円 263,479円/月 305,173円/月 363,536円/月 451,071円/月 596,951円/月 888,694円/月
10万円 254,393円/月 296,197円/月 354,669円/月 442,313円/月 588,300円/月 880,149円/月
15万円 245,308円/月 287,221円/月 345,803円/月 433,554円/月 579,648円/月 871,604円/月
20万円 236,222円/月 278,246円/月 336,936円/月 424,795円/月 570,997円/月 863,058円/月
25万円 227,137円/月 269,270円/月 328,069円/月 416,037円/月 562,345円/月 854,513円/月
30万円 218,051円/月 260,294円/月 319,202円/月 407,278円/月 553,694円/月 845,968円/月
支払い利息合計 9,498,650円~ 8,112,000円~ 6,736,300円~ 5,371,680円~ 4,017,870円~ 2,674,900円~
※元利均等返済方式で試算しています。 「円」の単位以下の端数金額は「切り捨て」として計算しております。
※金利は、固定金利として計算しております。
※上記の住宅ローン返済額一覧は、あくまで試算であり、将来の金利動向により、実際のご返済額とは異なります。
※ボーナス支払総額が総支払額の50%を超えている場合、上記の表では「ローン不可」となります。
※住宅ローン返済額一覧の数値は、住宅ローンのお申し込みやご融資をお約束するものではございません。
物件を見たい、物件や住環境の詳しい情報やローン相談など、
お問い合わせ先
東宝ハウスライフソリューションズグループ(株)東宝ハウス練馬

掲載情報の著作権は提供元企業等に帰属します。
Copyright:(C) 2025 Recruit Co., Ltd.
アプリで簡単 物件探し 大手不動産サイトの情報から一括検!プッシュ通知で物件を見逃さない
App Storeからダウンロード Google Playで手に入れよう QRコード