アプリで簡単 物件探し 通知 共有 アプリならではの機能を使ってみる
中古住宅

東京都国分寺市泉町1 国分寺駅 中古一戸建て・中古住宅

情報提供元
SUUMO
東京都国分寺市泉町1 国分寺駅 中古一戸建て・中古住宅
価格 7980万円
交通
所在地 東京都国分寺市泉町1周辺地図
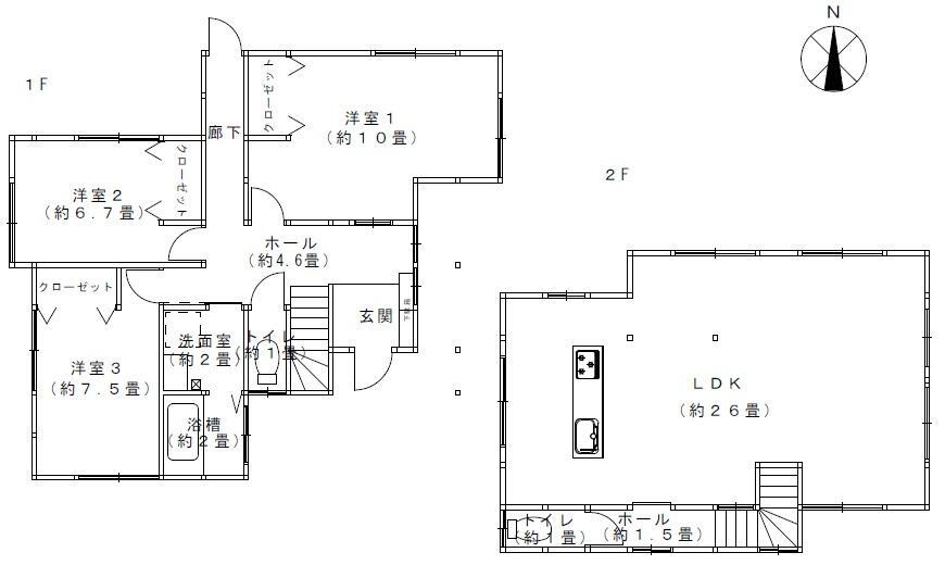
間取り 3LDK
建物面積 115.43m2(登記) 土地面積 259.58m2(登記)
築年月 1953年12月 築年数 築71年11ヶ月
おすすめポイント
(売主物件、諸経費お得!最短引越可能!工事必要なし!) =おすすめポイント=  <中央線の国分寺駅徒歩約8分> ・ 2025年5月水回り、内外装リフォーム完了済み! ・ 自社施工物件に付き、末永くメンテナンスが安心 ・ システムキッチン・浴室・トイレなど水回り一新で安心  ・ 広々とした259.58平米の土地お子様がのびのび遊べる庭付き♪ ・ LDK20畳以上!家族が集まるゆったり空間♪ ・ 全居室6畳以上、全居室フローリング、バリアフリー ・ 浴室1坪以上、浴室乾燥機付きで雨の日も安心 ・ TVモニター付インターホンで防犯面も配慮 ・ 耐震基準適合証明書取得で安心!
日当り良好・閑静な住宅街・駐車場2台分・セットバック要・浴室1坪以上・瑕疵保険(国交省指定法人)
物件を見たい、物件や住環境の詳しい情報やローン相談など、
お問い合わせ先
(株)大工高野建築工房

詳細情報

価格 7980万円
所在地 東京都国分寺市泉町1周辺地図
交通
間取り 3LDK 築年月(築年数) 1953年12月(築71年11ヶ月)
建物面積 115.43m2(登記) 建物構造・規模 木造2階建
土地面積 259.58m2(登記) 土地権利 所有権
私道面積 借地期間・地代
接道状況 東3.8m接面10.5m 駐車場
用途地域 1種低層 都市計画
建ぺい率/容積率 50%/100% 現況
地目 引渡可能時期 即時
情報提供元 SUUMO [030Z77393192] 情報公開日
情報更新日 次回更新予定日 随時

設備など

1種低層地域 即入居可 売主・代理
駐車2台以上 平屋 - 本下水
都市ガス カウンターキッチン - 床暖房 -
ウォークインクローゼット - バリアフリー -
設備 トイレ・洗面所・都市ガス・浴室乾燥機・シャンプードレッサ・温水洗浄便座・システムキッチン・モニタ付インターホン・風呂・庭・トイレ2ヶ所・浄水器・衣類乾燥機・食器洗浄乾燥機・上水道・本下水・駐車場2台分・リフォーム・フローリング・リノベーション
リフォーム履歴 2025年2月完了
 水回り設備交換:キッチン・浴室・トイレ
 内装リフォーム:壁・床・全室
2025年2月完了
 その他リフォーム:外壁・屋根
※年月は一番古いリフォーム箇所を表します
リノベーション履歴 -
備考 <物件名>国分寺駅近!広々土地78坪!建物35坪!子育て家族にうれしい木のぬくもりリノベ邸宅!/<駐車場>車庫/<土地権利>所有権/<間取り>3LDK/<リフォーム>●リフォーム:2025年2月完了(水回り設備交換:キッチン・浴室・トイレ、内装リフォーム:壁・床・全室)、2025年2月完了(その他リフォーム:外壁・屋根)※年月は一番古いリフォーム箇所を表します/<特徴>国分寺駅まで徒歩約8分、家族でひろびろあたたかい木の空間で暮らせます! 、耐震基準適合証明書・瑕疵保険(国交省指定)保証付・駐車2台可・2沿線以上利用可・LDK20畳以上
販売戸数:1戸
特記事項 日当り良好・閑静な住宅街・駐車場2台分・セットバック要・浴室1坪以上・瑕疵保険(国交省指定法人)

省エネ性能

エネルギー消費性能 -
断熱性能 -
目安光熱費 -

東京都国分寺市泉町1 周辺地図情報

地図
※地図上に表示される物件の位置は付近住所に所在することを表すものであり、実際の物件所在地とは異なる場合がございます。
   正確な物件所在地は、取扱い不動産会社にお問い合わせください。
物件を見たい、物件や住環境の詳しい情報やローン相談など、
お問い合わせ先
(株)大工高野建築工房

不動産会社情報

お問い合わせ先 商号:(株)大工高野建築工房
免許番号:東京都知事(1)第104057号
所在地:東京都小金井市前原町1-4-30
TEL:042-403-3481
取引態様:売主
共有する
QRコード
物件を見たい、物件や住環境の詳しい情報やローン相談など、
お問い合わせ先
(株)大工高野建築工房

国分寺市の暮らしデータ

人口などの統計情報

世帯数 63916世帯
人口総数 128762人
転入者数 8662人
転入率(人口1000人当たり)
67.27人
転出者数 7785人
転出率(人口1000人当たり)
60.46人
土地平均価格
住宅地
297222円/m2
商業地
1375000円/m2

結婚・育児の助成金

子育て関連の独自の取り組み (1)プレイステーションは、2020年4月に移設。戸外及び建物のどちらも利用できる遊び場。(2)児童発達支援センターつくしんぼ(お子さんやお子さんの発達に不安をもつご家族とその関係者を対象に、お子さんの発達や子育てに関する総合的な支援を行う)。(3)地区連絡会(子どもとその家庭を支援するネットワークが形成するため、市と国分寺子育て支援事業者連絡協議会が協働し、子育て支援活動団体等が情報交換できる会議を実施)。
出産祝い あり
公立保育所数 3所(うち0歳児保育を実施している保育所:3所)
私立保育所数 41所(うち0歳児保育を実施している保育所:38所)
保育所入所待機児童数 24人
認定こども園数 0園 預かり保育実施園数 公立:- 私立:4園
学校給食 【小学校】完全給食【中学校】家庭弁当等との選択制/デリバリー形式[運搬:ランチボックス、内容:完全給食]
公立中学校の学校選択制 一部実施
子ども・学生等医療費助成<通院>対象年齢 18歳3月末まで 子ども・学生等医療費助成<入院>対象年齢 18歳3月末まで

国分寺市の治安・ごみ収集情報

公共料金・インフラ

ガス料金(22m3使用した場合の月額) 東京瓦斯株式会社(東京地区等)3926円
水道料金(口径20mmで20m3の月額) 東京都水道局2816円
下水道料金(20m3を使用した場合の月額) 国分寺市1699円
下水道普及率 100.0%

安心・安全

建物火災出火件数 23件
人口10000人当たり
1.78件
刑法犯認知件数 594件
人口1000人当たり
4.60件
ハザード・防災マップ あり

医療

一般病院総数 2ヶ所
一般診療所総数 112ヶ所
小児科医師数 12人
小児人口10000人当たり
7.47人
産婦人科医師数 7人
15~49歳女性人口1万人当たり
2.50人
介護保険料基準額(月額) 5917円

ごみ

家庭ごみ収集(可燃ごみ) 有料
備考
指定ごみ袋有料。
家庭ごみの分別方式 4分別22種〔可燃ごみ(もやせるごみ、おむつ) 不燃ごみ 有害ごみ(刃物、電球、スプレー缶・カセットボンベ、蛍光灯・ライター・体温計、電池、小型家電) 資源ごみ(プラスチック、ビン、カン、新聞紙、ダンボール、牛乳パック類、本・雑誌、その他の紙、衣類・布類、ペットボトル、せん定枝、落葉、下草)〕
家庭ごみの戸別収集 実施(次のものは拠点収集も行っている。生ごみ[登録制]、食用油、陶磁器、金物、小型家電、使い捨てコンタクトレンズケース、靴、かばん、ベルト、ぬいぐるみ、入れ歯)
粗大ごみ収集 あり
備考
有料。戸別収集。事前申込制。
生ごみ処理機助成金制度 あり
上限金額
30000円
上限比率
66.7%

国分寺市の住まいの給付金

中古購入

利子補給制度 なし
補助/助成金制度 なし

増築・改築・改修

利子補給制度 あり
上限金額
(融資限度額)450万円
備考
【住宅改修資金融資あっせん制度】住宅改修にかかる借入金の利子を補助。利子補給率1.975%、償還期間5~90ヶ月以内(融資額による)。
補助/助成金制度 あり
上限金額
100万円
備考
【耐震改修等助成】耐震診断で評点が1.0未満と診断された建物の耐震性を向上させる工事にかかった費用の一部を助成。該当工事費の8/10、最大100万円を助成。限度額3万4,100円/m2。(a)1981年5月31日以前に建築された木造住宅である。または、1981年6月1日から2000年5月31日までの間に在来軸組工法により建築された2階建て以下の木造住宅である。(b)市の「木造住宅耐震診断士派遣事業」により耐震診断を受け、上部構造評点が1.0未満と診断されたものである。(c)建築基準法に明らかに違反していない建築物である。(d)当該住宅の所有者又は二親等以内の親族が工事を行う。(e)市税を滞納していない。
暮らしデータ提供元:生活ガイド.com
※行政機関により公表していない地域及びデータがございます。東京23区以外の政令指定都市は、市全体のデータとして表示しています。
※提供データには細心の注意を払っておりますが、調査後に変更がある場合があります。 最新の情報につきましては各市区役所までお問い合わせいただくか、自治体HPなどをご確認ください。

この物件を見た人はこんな物件も見ています

OCN×ドコモ光新規お申込みで合計最大137,280円相当おトク!特典の内訳・適用条件など詳細はこちら

国分寺市内の各駅の住みやすさ

住宅ローンの返済額一覧

物件価格 7980万円に対して、年率 で、頭金 の場合
↓ボーナス 35年間 30年間 25年間 20年間 15年間 10年間
0万円 194,169円/月 223,793円/月 265,293円/月 327,574円/月 431,420円/月 639,176円/月
5万円 185,084円/月 214,818円/月 256,426円/月 318,815円/月 422,768円/月 630,631円/月
10万円 175,998円/月 205,842円/月 247,559円/月 310,057円/月 414,117円/月 622,086円/月
15万円 166,913円/月 196,866円/月 238,692円/月 301,298円/月 405,465円/月 613,540円/月
20万円 157,827円/月 187,891円/月 229,826円/月 292,539円/月 396,814円/月 604,995円/月
25万円 148,742円/月 178,915円/月 220,959円/月 283,781円/月 388,162円/月 596,450円/月
30万円 139,656円/月 169,939円/月 212,092円/月 275,022円/月 379,511円/月 587,905円/月
支払い利息合計 6,772,750円~ 5,784,200円~ 4,803,300円~ 3,830,240円~ 2,864,930円~ 1,907,340円~
※元利均等返済方式で試算しています。 「円」の単位以下の端数金額は「切り捨て」として計算しております。
※金利は、固定金利として計算しております。
※上記の住宅ローン返済額一覧は、あくまで試算であり、将来の金利動向により、実際のご返済額とは異なります。
※ボーナス支払総額が総支払額の50%を超えている場合、上記の表では「ローン不可」となります。
※住宅ローン返済額一覧の数値は、住宅ローンのお申し込みやご融資をお約束するものではございません。
物件を見たい、物件や住環境の詳しい情報やローン相談など、
お問い合わせ先
(株)大工高野建築工房

掲載情報の著作権は提供元企業等に帰属します。
Copyright:(C) 2025 Recruit Co., Ltd.
アプリで簡単 物件探し 大手不動産サイトの情報から一括検!プッシュ通知で物件を見逃さない
App Storeからダウンロード Google Playで手に入れよう QRコード