アプリで簡単 物件探し 通知 共有 アプリならではの機能を使ってみる
中古住宅

東京都足立区平野2 梅島駅 中古一戸建て・中古住宅

情報提供元
SUUMO
東京都足立区平野2 梅島駅 中古一戸建て・中古住宅
価格 5000万円
交通
所在地 東京都足立区平野2周辺地図
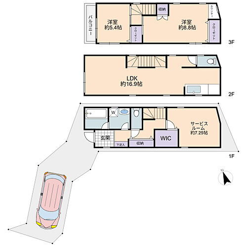
間取り 5LDK
建物面積 96.5m2(登記) 土地面積 87m2(登記)
築年月 2002年10月 築年数 築23年1ヶ月
おすすめポイント
閑静な住宅街
物件を見たい、物件や住環境の詳しい情報やローン相談など、
お問い合わせ先
(株)LUANA

詳細情報

価格 5000万円
所在地 東京都足立区平野2周辺地図
交通
間取り 5LDK 築年月(築年数) 2002年10月(築23年1ヶ月)
建物面積 96.5m2(登記) 建物構造・規模 木造2階建
土地面積 87m2(登記) 土地権利 所有権
私道面積 借地期間・地代
接道状況 駐車場
用途地域 1種住居 都市計画
建ぺい率/容積率 60%/300% 現況
地目 引渡可能時期 相談
情報提供元 SUUMO [030Z78490800] 情報公開日
情報更新日 次回更新予定日 随時

設備など

1種低層地域 - 即入居可 - 売主・代理 -
駐車2台以上 - 平屋 - 本下水 -
都市ガス - カウンターキッチン - 床暖房 -
ウォークインクローゼット - バリアフリー -
設備
リフォーム履歴 -
リノベーション履歴 -
備考 <物件名>平野2(梅島駅) 5000万円/<土地権利>所有権/<間取り>5LDK/<特徴>市街地が近い・閑静な住宅地・2階建
販売戸数:1戸
特記事項 閑静な住宅街

省エネ性能

エネルギー消費性能 -
断熱性能 -
目安光熱費 -

東京都足立区平野2 周辺地図情報

地図
※地図上に表示される物件の位置は付近住所に所在することを表すものであり、実際の物件所在地とは異なる場合がございます。
   正確な物件所在地は、取扱い不動産会社にお問い合わせください。
物件を見たい、物件や住環境の詳しい情報やローン相談など、
お問い合わせ先
(株)LUANA

不動産会社情報

お問い合わせ先 商号:(株)LUANA
免許番号:東京都知事(2)第101950号
所在地:東京都港区三田5-4-1 4階
TEL:03-6271-9643
取引態様:専属専任媒介
共有する
QRコード
物件を見たい、物件や住環境の詳しい情報やローン相談など、
お問い合わせ先
(株)LUANA

足立区の暮らしデータ

人口などの統計情報

世帯数 345010世帯
人口総数 693223人
転入者数 44256人
転入率(人口1000人当たり)
63.84人
転出者数 35899人
転出率(人口1000人当たり)
51.79人
土地平均価格
住宅地
371926円/m2
商業地
646909円/m2

結婚・育児の助成金

子育て関連の独自の取り組み (1)病児保育(在宅型)利用料金の助成。(2)あだちはじめてえほん事業。(3)あだち幼保小接続期カリキュラム。(4)あだちっ子歯科健診。(5)保育士・幼稚園教諭奨学金返済支援事業補助金。(6)保育士・幼稚園教諭住居借上げ支援事業補助金。(7)保育従事者永年勤続褒賞。(8)足立区教育・保育の質ガイドライン。(9)病児保育(施設型)。
出産祝い あり
公立保育所数 40所(うち0歳児保育を実施している保育所:21所)
私立保育所数 113所(うち0歳児保育を実施している保育所:106所)
保育所入所待機児童数 5人
認定こども園数 7園 預かり保育実施園数 公立:- 私立:45園
学校給食 【小学校】完全給食【中学校】完全給食
公立中学校の学校選択制 実施(自由選択制)
子ども・学生等医療費助成<通院>対象年齢 18歳3月末まで 子ども・学生等医療費助成<入院>対象年齢 18歳3月末まで

足立区の治安・ごみ収集情報

公共料金・インフラ

ガス料金(22m3使用した場合の月額) 東京瓦斯株式会社(東京地区等)3926円
水道料金(口径20mmで20m3の月額) 東京都水道局2816円
下水道料金(20m3を使用した場合の月額) 東京都下水道局2068円
下水道普及率 99.9%

安心・安全

建物火災出火件数 142件
人口10000人当たり
2.04件
刑法犯認知件数 4222件
人口1000人当たり
6.07件
ハザード・防災マップ あり

医療

一般病院総数 54ヶ所
一般診療所総数 454ヶ所
小児科医師数 144人
小児人口10000人当たり
19.86人
産婦人科医師数 26人
15~49歳女性人口1万人当たり
1.79人
介護保険料基準額(月額) 6750円

ごみ

家庭ごみ収集(可燃ごみ) 無料
備考
引越し等に伴う臨時ごみは有料。45リットルのごみ袋1袋あたり300円。
家庭ごみの分別方式 3分別10種〔可燃ごみ 不燃ごみ 資源(古紙[新聞、雑誌類、雑がみ、段ボール、紙パック]、びん、缶、ペットボトル)〕千住、新田、宮城・小台のみ4分別12種〔可燃ごみ 不燃ごみ 資源(古紙[新聞、雑誌類、雑がみ、段ボール、紙パック]、びん、缶、ペットボトル) プラスチック(プラスチック製容器包装、製品プラスチック)〕
家庭ごみの戸別収集 一部実施(次のいずれか位に該当する者のみで構成される世帯で、世帯員が集積所までごみを持ち出すことが困難であり、かつ、世帯員以外の者の協力を得ることが出来ない方。[1]要介護2以上に認定されている者。[2]身体障害者手帳1級又は2級に認定されている者。[3]その他自ら集積所にごみを出すことが困難であると区長が認める者)
粗大ごみ収集 あり
備考
有料。事前申込制。ただし、指定場所への持込が可能な場合は年度内2回、1回につき10点まで無料。
生ごみ処理機助成金制度 あり
上限金額
20000円
上限比率
50.0%

足立区の住まいの給付金

中古購入

利子補給制度 なし
補助/助成金制度 なし

増築・改築・改修

利子補給制度 なし
補助/助成金制度 あり
上限金額
(1)250万円(2)40万円(3)50万円
備考
(1)【住宅・建築物耐震助成】<耐震診断>木造戸建上限30万円、非木造戸建上限50万円。要件あり。<耐震改修工事>木造戸建住宅(一般地域)で上限150万円。木造戸建住宅(特定地域)で上限200万円。非木造戸建住宅で上限200万円。要件あり。※2023年度からの3年間限定拡充。(2)【住宅改良助成】手すりの設置、段差解消、トイレ洋式化、畳のフローリング等に対する助成。工事費の1/5、上限30万円。制限あり。<新しい生活様式への助成>固定式宅配ボックス設置、換気扇設置、玄関脇手洗い器新設、在宅勤務のための間取り変更に対する助成。工事費の1/5、上限10万円。制限あり。(3)【止水板設置工事助成】建物の出入口等に設置する止水板に対する助成。工事費の1/2、上限50万円。要件あり。
暮らしデータ提供元:生活ガイド.com
※行政機関により公表していない地域及びデータがございます。東京23区以外の政令指定都市は、市全体のデータとして表示しています。
※提供データには細心の注意を払っておりますが、調査後に変更がある場合があります。 最新の情報につきましては各市区役所までお問い合わせいただくか、自治体HPなどをご確認ください。

この物件を見た人はこんな物件も見ています

OCN×ドコモ光新規お申込みで合計最大137,280円相当おトク!特典の内訳・適用条件など詳細はこちら

足立区内の各駅の住みやすさ

住宅ローンの返済額一覧

物件価格 5000万円に対して、年率 で、頭金 の場合
↓ボーナス 35年間 30年間 25年間 20年間 15年間 10年間
0万円 116,813円/月 134,635円/月 159,601円/月 197,070円/月 259,544円/月 384,531円/月
5万円 107,727円/月 125,659円/月 150,734円/月 188,311円/月 250,892円/月 375,986円/月
10万円 98,642円/月 116,683円/月 141,867円/月 179,552円/月 242,241円/月 367,440円/月
15万円 89,556円/月 107,708円/月 133,001円/月 170,794円/月 233,589円/月 358,895円/月
20万円 80,471円/月 98,732円/月 124,134円/月 162,035円/月 224,938円/月 350,350円/月
25万円 71,385円/月 89,756円/月 115,267円/月 153,276円/月 216,286円/月 341,805円/月
30万円 62,300円/月 80,781円/月 106,400円/月 144,518円/月 207,635円/月 333,260円/月
支払い利息合計 4,083,230円~ 3,487,320円~ 2,895,700円~ 2,309,280円~ 1,727,250円~ 1,149,940円~
※元利均等返済方式で試算しています。 「円」の単位以下の端数金額は「切り捨て」として計算しております。
※金利は、固定金利として計算しております。
※上記の住宅ローン返済額一覧は、あくまで試算であり、将来の金利動向により、実際のご返済額とは異なります。
※ボーナス支払総額が総支払額の50%を超えている場合、上記の表では「ローン不可」となります。
※住宅ローン返済額一覧の数値は、住宅ローンのお申し込みやご融資をお約束するものではございません。
物件を見たい、物件や住環境の詳しい情報やローン相談など、
お問い合わせ先
(株)LUANA

掲載情報の著作権は提供元企業等に帰属します。
Copyright:(C) 2025 Recruit Co., Ltd.
アプリで簡単 物件探し 大手不動産サイトの情報から一括検!プッシュ通知で物件を見逃さない
App Storeからダウンロード Google Playで手に入れよう QRコード