アプリで簡単 物件探し 通知 共有 アプリならではの機能を使ってみる
中古住宅

東京都板橋区常盤台3 上板橋駅 中古一戸建て・中古住宅

情報提供元
SUUMO
東京都板橋区常盤台3 上板橋駅 中古一戸建て・中古住宅
価格 12980万円
交通
所在地 東京都板橋区常盤台3周辺地図
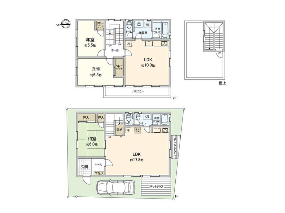
間取り 3LDK
建物面積 115.92m2(35.06坪)(登記) 土地面積 99.58m2(30.12坪)(登記)
築年月 2012年3月 築年数 築13年8ヶ月
おすすめポイント
-物件のおすすめポイント-▼立地・東武東上線「上板橋」駅 徒歩7分 他・緑豊かな住環境▼特徴・1階部分1LDK・2階部分2LDKの間取り・家具の配置がしやすい壁付けキッチン(1・2階)・LDKは2面採光(1・2階)・デッキテラス有・二世帯住宅や店舗併用住宅等の幅広い用途にて検討可能、詳細はお問い合わせください▼設備・1616サイズの浴室(2階)▼周辺環境・スーパー「東武ストア前野町店」徒歩5分(約370m)・板橋区平和公園 徒歩1分(約10m)■ ご希望の住まい探しをお手伝いします ━━━━━・・・物件の詳細・ご相談はお気軽にお問い合わせください。
日当り良好・浴室1坪以上
お問い合わせ先
三井のリハウスときわ台センター三井不動産リアルティ(株)
物件を見たい、物件や住環境の詳しい情報やローン相談など、
お問い合わせ先
三井のリハウスときわ台センター三井不動産リアルティ(株)

詳細情報

価格 12980万円
所在地 東京都板橋区常盤台3周辺地図
交通
間取り 3LDK 築年月(築年数) 2012年3月(築13年8ヶ月)
建物面積 115.92m2(35.06坪)(登記) 建物構造・規模 木造2階建
土地面積 99.58m2(30.12坪)(登記) 土地権利 所有権
私道面積 借地期間・地代
接道状況 西5.8m接面9.5m 駐車場
用途地域 1種中高 都市計画
建ぺい率/容積率 60%/200% 現況
地目 引渡可能時期 相談
情報提供元 SUUMO [030Z77687741] 情報公開日
情報更新日 次回更新予定日 随時

設備など

1種低層地域 - 即入居可 - 売主・代理 -
駐車2台以上 - 平屋 - 本下水
都市ガス カウンターキッチン - 床暖房 -
ウォークインクローゼット - バリアフリー -
設備 バルコニー・トイレ・収納スペース・洗面所・都市ガス・シャンプードレッサ・温水洗浄便座・風呂・テラス・トイレ2ヶ所・床下収納・ルーフバルコニー・上水道・本下水・シューズインクローク
リフォーム履歴 -
リノベーション履歴 -
備考 <物件名>常盤台3(上板橋駅) 1億2980万円/<駐車場>カースペース/<土地権利>所有権/<間取り>3LDK/<特徴>■三井のリハウス■ルーフバルコニー付二世帯住宅等として利用可能な間取り、スーパー 徒歩10分以内・市街地が近い・陽当り良好・駅まで平坦・LDK15畳以上
販売戸数:1戸
法令等制限:高度地区、準防火地域
特記事項 日当り良好・浴室1坪以上

省エネ性能

エネルギー消費性能 -
断熱性能 -
目安光熱費 -

東京都板橋区常盤台3 周辺地図情報

地図
※地図上に表示される物件の位置は付近住所に所在することを表すものであり、実際の物件所在地とは異なる場合がございます。
   正確な物件所在地は、取扱い不動産会社にお問い合わせください。
物件を見たい、物件や住環境の詳しい情報やローン相談など、
お問い合わせ先
三井のリハウスときわ台センター三井不動産リアルティ(株)

不動産会社情報

お問い合わせ先 商号:三井のリハウスときわ台センター三井不動産リアルティ(株)
免許番号:国土交通大臣(15)第000777号
所在地:東京都板橋区常盤台2-5-3 アビアートときわ台1階
TEL:00786-01793765
取引態様:専任媒介
管理コード:F56AFA02
共有する
QRコード
物件を見たい、物件や住環境の詳しい情報やローン相談など、
お問い合わせ先
三井のリハウスときわ台センター三井不動産リアルティ(株)

板橋区の暮らしデータ

人口などの統計情報

世帯数 314133世帯
人口総数 572927人
転入者数 46136人
転入率(人口1000人当たり)
80.53人
転出者数 37895人
転出率(人口1000人当たり)
66.14人
土地平均価格
住宅地
488053円/m2
商業地
851462円/m2

結婚・育児の助成金

子育て関連の独自の取り組み (1)すくすくカード事業。(2)赤ちゃんの駅事業。(3)児童館における乳幼児親子向けプログラム及び相談事業の拡充。(4)乳幼児親子専用のお部屋「すくすくサロン」の児童館全館設置。(5)発達が気になる乳幼児親子向け事業「ほっとプログラム」の実施、その親子が安心して過ごせるお部屋「ほっとサロン」の設置。(6)東京家政大学内の緑豊かで安全な環境で実施される「森のサロン」(地域子育て支援拠点事業)。(7)子育て出張相談。(8)いたばし子育て応援アプリの配信。
出産祝い あり
公立保育所数 37所(うち0歳児保育を実施している保育所:30所)
私立保育所数 105所(うち0歳児保育を実施している保育所:97所)
保育所入所待機児童数 0人
認定こども園数 3園 預かり保育実施園数 公立:1園 私立:29園
学校給食 【小学校】完全給食【中学校】完全給食
公立中学校の学校選択制 実施(新入学時)
子ども・学生等医療費助成<通院>対象年齢 18歳3月末まで 子ども・学生等医療費助成<入院>対象年齢 18歳3月末まで

板橋区の治安・ごみ収集情報

公共料金・インフラ

ガス料金(22m3使用した場合の月額) 東京瓦斯株式会社(東京地区等)3926円
水道料金(口径20mmで20m3の月額) 東京都水道局2816円
下水道料金(20m3を使用した場合の月額) 東京都下水道局2068円
下水道普及率 100.0%

安心・安全

建物火災出火件数 104件
人口10000人当たり
1.78件
刑法犯認知件数 2916件
人口1000人当たり
4.99件
ハザード・防災マップ あり

医療

一般病院総数 41ヶ所
一般診療所総数 399ヶ所
小児科医師数 181人
小児人口10000人当たり
31.10人
産婦人科医師数 87人
15~49歳女性人口1万人当たり
6.47人
介護保険料基準額(月額) 6520円

ごみ

家庭ごみ収集(可燃ごみ) 無料
備考
引越しなどで、1日に10kg以上の資源、可燃ごみ、不燃ごみを出す場合は、通常とは別に臨時に有料にて収集を行う(家庭から出るもので、分別されたものに限る)。
家庭ごみの分別方式 3分別11種〔可燃ごみ 不燃ごみ 資源(古紙[新聞、雑誌、段ボール、紙パック、紙箱・紙袋・OA用紙]、びん、缶、ペットボトル、プラスチック)〕 拠点回収:廃食用油 古布・古着 使用済小型家電 食品用トレイ 紙パック ボトル容器 乾電池、ハブラシ
家庭ごみの戸別収集 一部実施(【板橋区高齢者・障害者ごみ戸別収集サービス】障がい者・高齢者のみ実施)
粗大ごみ収集 あり
備考
有料。事前申込制。
生ごみ処理機助成金制度 なし
上限金額
-
上限比率
-

板橋区の住まいの給付金

中古購入

利子補給制度 なし
補助/助成金制度 なし

増築・改築・改修

利子補給制度 なし
補助/助成金制度 あり
上限金額
100万円
備考
【耐震補強工事助成】工事費の1/2で上限75万円。高齢者等の場合は、工事費の2/3で上限100万円。2000年5月31日以前に建築された木造住宅(2階建て以下)、個人の建物所有者等、区民税等を滞納していない、国認定の耐震診断法による評点が1.0未満で、その診断結果に基づいた評点1.0以上の耐震計画の補強工事である、建築基準法における重大な違反がない等の条件あり。
暮らしデータ提供元:生活ガイド.com
※行政機関により公表していない地域及びデータがございます。東京23区以外の政令指定都市は、市全体のデータとして表示しています。
※提供データには細心の注意を払っておりますが、調査後に変更がある場合があります。 最新の情報につきましては各市区役所までお問い合わせいただくか、自治体HPなどをご確認ください。

この物件を見た人はこんな物件も見ています

OCN×ドコモ光新規お申込みで合計最大137,280円相当おトク!特典の内訳・適用条件など詳細はこちら

板橋区内の各駅の住みやすさ

住宅ローンの返済額一覧

物件価格 12980万円に対して、年率 で、頭金 の場合
↓ボーナス 35年間 30年間 25年間 20年間 15年間 10年間
0万円 323,962円/月 373,388円/月 442,628円/月 546,541円/月 719,802円/月 1,066,433円/月
5万円 314,877円/月 364,412円/月 433,761円/月 537,782円/月 711,151円/月 1,057,888円/月
10万円 305,791円/月 355,437円/月 424,894円/月 529,024円/月 702,499円/月 1,049,342円/月
15万円 296,706円/月 346,461円/月 416,027円/月 520,265円/月 693,848円/月 1,040,797円/月
20万円 287,620円/月 337,485円/月 407,161円/月 511,506円/月 685,196円/月 1,032,252円/月
25万円 278,535円/月 328,510円/月 398,294円/月 502,748円/月 676,545円/月 1,023,707円/月
30万円 269,449円/月 319,534円/月 389,427円/月 493,989円/月 667,893円/月 1,015,162円/月
支払い利息合計 11,285,810円~ 9,638,400円~ 8,003,800円~ 6,382,320円~ 4,773,690円~ 3,178,180円~
※元利均等返済方式で試算しています。 「円」の単位以下の端数金額は「切り捨て」として計算しております。
※金利は、固定金利として計算しております。
※上記の住宅ローン返済額一覧は、あくまで試算であり、将来の金利動向により、実際のご返済額とは異なります。
※ボーナス支払総額が総支払額の50%を超えている場合、上記の表では「ローン不可」となります。
※住宅ローン返済額一覧の数値は、住宅ローンのお申し込みやご融資をお約束するものではございません。
物件を見たい、物件や住環境の詳しい情報やローン相談など、
お問い合わせ先
三井のリハウスときわ台センター三井不動産リアルティ(株)

掲載情報の著作権は提供元企業等に帰属します。
Copyright:(C) 2025 Recruit Co., Ltd.
アプリで簡単 物件探し 大手不動産サイトの情報から一括検!プッシュ通知で物件を見逃さない
App Storeからダウンロード Google Playで手に入れよう QRコード