アプリで簡単 物件探し 通知 共有 アプリならではの機能を使ってみる
中古住宅

東京都中野区若宮2 都立家政駅 中古一戸建て・中古住宅

情報提供元
SUUMO
東京都中野区若宮2 都立家政駅 中古一戸建て・中古住宅
価格 10800万円
交通
所在地 東京都中野区若宮2周辺地図
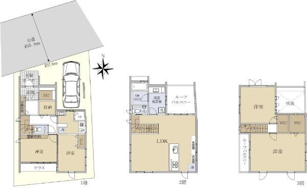
間取り 4LDK
建物面積 127.24m2(38.48坪) 土地面積 87.59m2(26.49坪)(登記)
築年月 2013年4月 築年数 築12年7ヶ月
おすすめポイント
□西部新宿線「都立家政」駅徒歩7分□2013年4月築 住友不動産株式会社施工□建物延床面積127.24㎡□間取り:4LDK□設備・仕様・1階部分にミニキッチン有り・トイレ2ヶ所(1階・2階)・1階(洋室)2階(リビング)床暖房有り・モニター付インターフォン・3階部分ウォークインクローゼット2ヶ所
お問い合わせ先
住友不動産ステップ(株)下北沢営業センター
物件を見たい、物件や住環境の詳しい情報やローン相談など、
お問い合わせ先
住友不動産ステップ(株)下北沢営業センター

詳細情報

価格 10800万円
所在地 東京都中野区若宮2周辺地図
交通
間取り 4LDK 築年月(築年数) 2013年4月(築12年7ヶ月)
建物面積 127.24m2(38.48坪) 建物構造・規模 木造3階建
土地面積 87.59m2(26.49坪)(登記) 土地権利 所有権
私道面積 借地期間・地代
接道状況 北5.6m接面7.6m 駐車場
用途地域 1種低層 都市計画
建ぺい率/容積率 60%/150% 現況
地目 引渡可能時期 相談
情報提供元 SUUMO [030Z78447378] 情報公開日
情報更新日 次回更新予定日 随時

設備など

1種低層地域 即入居可 - 売主・代理 -
駐車2台以上 - 平屋 - 本下水 -
都市ガス カウンターキッチン - 床暖房
ウォークインクローゼット バリアフリー -
設備 バルコニー・トイレ・収納スペース・浴室乾燥機・ウォークインクローゼット・温水洗浄便座・システムキッチン・モニタ付インターホン・風呂・対面K・トイレ2ヶ所・ルーフバルコニー・IHクッキングヒータ・床暖房・衣類乾燥機・都市ガス・フローリング・シューズインクローク
リフォーム履歴 -
リノベーション履歴 -
備考 <物件名>若宮2(都立家政駅) 1億800万円/<土地権利>所有権/<間取り>4LDK/<特徴>2013年4月築 住友不動産株式会社施工 間取り4LDKの戸建、スーパー 徒歩10分以内・システムキッチン・浴室乾燥機・全居室収納・駅まで平坦
販売戸数:1戸
法令等制限:地勢:平坦/駐車場有り/駐車可能な車輛は車種によります
特記事項

省エネ性能

エネルギー消費性能 -
断熱性能 -
目安光熱費 -

東京都中野区若宮2 周辺地図情報

地図
※地図上に表示される物件の位置は付近住所に所在することを表すものであり、実際の物件所在地とは異なる場合がございます。
   正確な物件所在地は、取扱い不動産会社にお問い合わせください。
物件を見たい、物件や住環境の詳しい情報やローン相談など、
お問い合わせ先
住友不動産ステップ(株)下北沢営業センター

不動産会社情報

お問い合わせ先 商号:住友不動産ステップ(株)下北沢営業センター
免許番号:国土交通大臣(13)第002077号
所在地:東京都世田谷区北沢2-14-16 北沢プラザ1階3階
TEL:0120-983029
取引態様:一般媒介
管理コード:15432033
共有する
QRコード
物件を見たい、物件や住環境の詳しい情報やローン相談など、
お問い合わせ先
住友不動産ステップ(株)下北沢営業センター

中野区の暮らしデータ

人口などの統計情報

世帯数 207944世帯
人口総数 337377人
転入者数 36387人
転入率(人口1000人当たり)
107.85人
転出者数 31624人
転出率(人口1000人当たり)
93.73人
土地平均価格
住宅地
665091円/m2
商業地
1828545円/m2

結婚・育児の助成金

子育て関連の独自の取り組み (1)妊娠・出産・子育てトータルケア事業。妊産婦との面接や出産・育児に関する個別支援プランの提供等を実施。(2)ブックスタート事業。絵本を開く楽しい「体験」と「絵本」をセットで提供。トートバックに絵本2冊とリーフレットを入れて配布。(3)実質ひとり親家庭への子育て支援給付事業の実施。離婚調停中で離婚成立前から実質的にひとり親家庭となった家庭に対する金銭給付の実施。(4)リトルベビーハンドブックの作成。2,500グラム以下の低出生体重児等の子どもを育てる家庭にハンドブックを配布。(5)ひとり親家庭住宅支援。区内在住のひとり親または実質ひとり親が区内転居する場合の初期費用等を補助。(6)区立小・中学校の学校給食費の無償化及び区立学校在籍以外の学齢期の児童生徒への給食費相当の支援。
出産祝い なし
公立保育所数 10所(うち0歳児保育を実施している保育所:8所)
私立保育所数 83所(うち0歳児保育を実施している保育所:65所)
保育所入所待機児童数 0人
認定こども園数 5園 預かり保育実施園数 公立:2園 私立:18園
学校給食 【小学校】完全給食【中学校】完全給食
公立中学校の学校選択制 未実施
子ども・学生等医療費助成<通院>対象年齢 18歳3月末まで 子ども・学生等医療費助成<入院>対象年齢 18歳3月末まで

中野区の治安・ごみ収集情報

公共料金・インフラ

ガス料金(22m3使用した場合の月額) 東京瓦斯株式会社(東京地区等)3926円
水道料金(口径20mmで20m3の月額) 東京都水道局2816円
下水道料金(20m3を使用した場合の月額) 東京都下水道局2068円
下水道普及率 100.0%

安心・安全

建物火災出火件数 57件
人口10000人当たり
1.65件
刑法犯認知件数 1976件
人口1000人当たり
5.73件
ハザード・防災マップ あり

医療

一般病院総数 8ヶ所
一般診療所総数 325ヶ所
小児科医師数 59人
小児人口10000人当たり
19.54人
産婦人科医師数 17人
15~49歳女性人口1万人当たり
2.06人
介護保険料基準額(月額) 6274円

ごみ

家庭ごみ収集(可燃ごみ) 無料
備考
家庭から出るごみも、引越しなどで一度に多量(45リットルのごみ袋で5袋以上)に出す場合は有料。45リットル300円、70リットル500円、90リットル600円。
家庭ごみの分別方式 3分別6種〔燃やすごみ 陶器・ガラス・金属ごみ 資源(びん、缶、ペットボトル、プラスチック製容器包装と製品プラスチック)〕 拠点回収:紙パック 古布 乾電池 小型充電式電池 廃蛍光管 廃食用油 ※新聞 雑誌 ダンボール等の古紙及び古着 古布は町会・自治会等が実施する「集団回収」で回収
家庭ごみの戸別収集 一部実施(自らごみを集積所まで持ち出すことが困難で、訪問介護や親族、ボランティア等の協力が得られない、身体障がい者、要支援者や要介護者だけで構成される世帯に訪問収集を実施)
粗大ごみ収集 あり
備考
有料。事前申込制。
生ごみ処理機助成金制度 なし
上限金額
-
上限比率
-

中野区の住まいの給付金

中古購入

利子補給制度 なし
補助/助成金制度 なし

増築・改築・改修

利子補給制度 なし
補助/助成金制度 なし
暮らしデータ提供元:生活ガイド.com
※行政機関により公表していない地域及びデータがございます。東京23区以外の政令指定都市は、市全体のデータとして表示しています。
※提供データには細心の注意を払っておりますが、調査後に変更がある場合があります。 最新の情報につきましては各市区役所までお問い合わせいただくか、自治体HPなどをご確認ください。

この物件を見た人はこんな物件も見ています

OCN×ドコモ光新規お申込みで合計最大137,280円相当おトク!特典の内訳・適用条件など詳細はこちら

中野区内の各駅の住みやすさ

住宅ローンの返済額一覧

物件価格 10800万円に対して、年率 で、頭金 の場合
↓ボーナス 35年間 30年間 25年間 20年間 15年間 10年間
0万円 267,372円/月 308,165円/月 365,310円/月 451,071円/月 594,067円/月 880,149円/月
5万円 258,287円/月 299,189円/月 356,443円/月 442,313円/月 585,416円/月 871,604円/月
10万円 249,201円/月 290,213円/月 347,576円/月 433,554円/月 576,764円/月 863,058円/月
15万円 240,116円/月 281,238円/月 338,709円/月 424,795円/月 568,113円/月 854,513円/月
20万円 231,030円/月 272,262円/月 329,843円/月 416,037円/月 559,462円/月 845,968円/月
25万円 221,945円/月 263,286円/月 320,976円/月 407,278円/月 550,810円/月 837,423円/月
30万円 212,860円/月 254,311円/月 312,109円/月 398,519円/月 542,159円/月 828,878円/月
支払い利息合計 9,318,430円~ 7,958,120円~ 6,608,400円~ 5,269,520円~ 3,941,570円~ 2,624,100円~
※元利均等返済方式で試算しています。 「円」の単位以下の端数金額は「切り捨て」として計算しております。
※金利は、固定金利として計算しております。
※上記の住宅ローン返済額一覧は、あくまで試算であり、将来の金利動向により、実際のご返済額とは異なります。
※ボーナス支払総額が総支払額の50%を超えている場合、上記の表では「ローン不可」となります。
※住宅ローン返済額一覧の数値は、住宅ローンのお申し込みやご融資をお約束するものではございません。
物件を見たい、物件や住環境の詳しい情報やローン相談など、
お問い合わせ先
住友不動産ステップ(株)下北沢営業センター

掲載情報の著作権は提供元企業等に帰属します。
Copyright:(C) 2025 Recruit Co., Ltd.
アプリで簡単 物件探し 大手不動産サイトの情報から一括検!プッシュ通知で物件を見逃さない
App Storeからダウンロード Google Playで手に入れよう QRコード