中古住宅
東京都大田区南久が原2 久が原駅 中古一戸建て・中古住宅
 
  
    
      | 価格 | 22000万円 | 
    
      | 交通 |  | 
    
      | 所在地 | 東京都大田区南久が原2周辺地図 | 
    
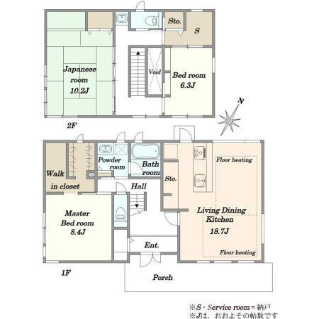
      | 間取り | 3SLDK | 
    
      | 建物面積 | 124.87m2(37.77坪)(登記) | 土地面積 | 233.78m2(70.71坪)(登記) | 
    
      | 築年月 | 2022年9月 | 築年数 | 築3年2ヶ月 | 
  
 
 
- おすすめポイント
- ・設計・施工:大和ハウス工業施工 「XEVOΣ」シリーズの鉄骨造の2階建住宅です。・2022年築の注文住宅 室内は大変きれいにお使いです。・全3室5帖以上の居室スペース 10帖以上の和室があり、客間としても利用可能・充実の収納スペース 玄関にシューズインクローク、 1階主寝室には約4.8帖のウォークインクローゼット、 2階洋室には約3.1帖の納戸スペースあり・明るく吹抜けのある玄関・2駅2路線利用可能 東急池上線「久が原」駅徒歩5分 東急多摩川線「鵜の木」駅徒歩6分
    
    
  
    - お問い合わせ先
- 野村の仲介+旗の台センター野村不動産ソリューションズ(株)
 
  
    物件を見たい、物件や住環境の詳しい情報やローン相談など、
    
    
    
      - お問い合わせ先
- 野村の仲介+旗の台センター野村不動産ソリューションズ(株)
 
 
| 価格 | 22000万円 | 
| 所在地 | 東京都大田区南久が原2周辺地図 | 
| 交通 | 
  東急池上線 久が原駅 徒歩5分乗換案内東急多摩川線 鵜の木駅 徒歩6分乗換案内 | 
| 間取り | 3SLDK | 築年月(築年数) | 2022年9月(築3年2ヶ月) | 
| 建物面積 | 124.87m2(37.77坪)(登記) | 建物構造・規模 | 軽量鉄骨2階建 | 
| 土地面積 | 233.78m2(70.71坪)(登記) | 土地権利 | 所有権 | 
| 私道面積 |  | 借地期間・地代 |  | 
| 接道状況 | 南東6m接面5.6m | 駐車場 | 有 | 
| 用途地域 | 1種中高 | 都市計画 |  | 
| 建ぺい率/容積率 | 60%/200% | 現況 |  | 
| 地目 |  | 引渡可能時期 | 相談 | 
| 情報提供元 | SUUMO [030Z78299332] | 情報公開日 |  | 
| 情報更新日 |  | 次回更新予定日 | 随時 | 
設備など
| 1種低層地域 | - | 即入居可 | - | 売主・代理 | - | 
| 駐車2台以上 | - | 平屋 | - | 本下水 | ○ | 
| 都市ガス | ○ | カウンターキッチン | - | 床暖房 | ○ | 
| ウォークインクローゼット | ○ | バリアフリー | - |  |  | 
| 設備 | 都市ガス・浴室乾燥機・ウォークインクローゼット・モニタ付インターホン・風呂・対面K・IHクッキングヒータ・床暖房・衣類乾燥機・複層ガラス・上水道・本下水・シューズインクローク | 
| リフォーム履歴 | - | 
| リノベーション履歴 | - | 
| 備考 | <物件名>南久が原2(久が原駅) 2億2000万円/<駐車場>車庫/<土地権利>所有権/<間取り>3LDK+S(納戸)/<特徴>2022年築●大和ハウス工業施工2駅2路線利用可●南東向きの明るい住戸、2沿線以上利用可・土地50坪以上・スーパー 徒歩10分以内・浴室乾燥機・前道6m以上 販売戸数:1戸
 法令等制限:高度地区、準防火地域
 | 
| 特記事項 |  | 
東京都大田区南久が原2 周辺地図情報
※地図上に表示される物件の位置は付近住所に所在することを表すものであり、実際の物件所在地とは異なる場合がございます。
   正確な物件所在地は、取扱い不動産会社にお問い合わせください。
 
 
  
    物件を見たい、物件や住環境の詳しい情報やローン相談など、
    
    
    
      - お問い合わせ先
- 野村の仲介+旗の台センター野村不動産ソリューションズ(株)
 
 
不動産会社情報
| お問い合わせ先 | 商号:野村の仲介+旗の台センター野村不動産ソリューションズ(株) 免許番号:国土交通大臣(5)第006101号
 所在地:東京都品川区旗の台2-8-9
 TEL:0120-803-917
 取引態様:一般媒介
 管理コード:FE1B8003
 | 共有する |  | 
  
    物件を見たい、物件や住環境の詳しい情報やローン相談など、
    
    
    
      - お問い合わせ先
- 野村の仲介+旗の台センター野村不動産ソリューションズ(株)
 
 
  
  
    人口などの統計情報
    
      
        
          | 世帯数 | 399628世帯 | 
        
          | 人口総数 | 733634人 | 
        
          | 転入者数 | 55358人 
 
              転入率(人口1000人当たり)75.46人 | 
        
          | 転出者数 | 47162人 
 
              転出率(人口1000人当たり)64.29人 | 
        
          | 土地平均価格 | 
              住宅地524720円/m2商業地895412円/m2 | 
      
    
   
    
    結婚・育児の助成金
    
      
        
          | 子育て関連の独自の取り組み | 区内保育施設の人材の確保・定着を支援し、また保育の質の向上を目的とする研修実施の他、若年層保育士の定着促進と中堅・ベテラン層保育士の同一施設における継続勤務を奨励することで保育士の質の向上を図る保育士応援手当を交付している。 | 
        
          | 出産祝い | あり | 
        
          | 公立保育所数 | 37所(うち0歳児保育を実施している保育所:26所) | 
        
          | 私立保育所数 | 155所(うち0歳児保育を実施している保育所:104所) | 
        
          | 保育所入所待機児童数 | 0人 | 
        
          | 認定こども園数 | 0園 | 預かり保育実施園数 | 公立:0園 私立:45園 | 
        
          | 学校給食 | 【小学校】完全給食【中学校】完全給食 | 
        
          | 公立中学校の学校選択制 | 未実施 | 
        
          | 子ども・学生等医療費助成<通院>対象年齢 | 18歳3月末まで | 子ども・学生等医療費助成<入院>対象年齢 | 18歳3月末まで | 
      
    
   
    
    大田区の治安・ごみ収集情報
    公共料金・インフラ
    
      
        
          | ガス料金(22m3使用した場合の月額) | 東京瓦斯株式会社(東京地区等)3926円 | 
        
          | 水道料金(口径20mmで20m3の月額) | 東京都水道局2816円 | 
        
          | 下水道料金(20m3を使用した場合の月額) | 東京都下水道局2068円 | 
        
          | 下水道普及率 | 100.0% | 
      
    
    安心・安全
    
      
        
          | 建物火災出火件数 | 118件 
              人口10000人当たり1.58件 | 
        
          | 刑法犯認知件数 | 3851件 
              人口1000人当たり5.15件 | 
        
          | ハザード・防災マップ | あり | 
      
    
    医療
    
      
        
          | 一般病院総数 | 24ヶ所 | 
        
          | 一般診療所総数 | 613ヶ所 | 
        
          | 小児科医師数 | 149人 
              小児人口10000人当たり19.74人 | 
        
          | 産婦人科医師数 | 66人 
              15~49歳女性人口1万人当たり3.96人 | 
        
          | 介護保険料基準額(月額) | 6600円 | 
      
    
    ごみ
    
      
        
          | 家庭ごみ収集(可燃ごみ) | 無料 | 
        
          | 家庭ごみの分別方式 | 3分別11種〔可燃ごみ 不燃ごみ 資源9品目(新聞・チラシ、雑誌・雑がみ、紙パック、段ボール、飲食用びん、飲食用かん、食品トレイ、ペットボトル、発泡スチロール)〕 拠点回収:使用済小型家電10品目(携帯電話 携帯音楽プレーヤー 携帯ゲーム機器 デジタルカメラ ポータブルビデオカメラ ポータブルカーナビ 電子辞書 卓上計算機 ACアダプター USBメモリ) 廃食用油 古着 | 
        
          | 家庭ごみの戸別収集 | 一部実施(次のいずれかに該当する者のみで構成される世帯で、自ら集積所までごみを持ち出すことが困難であり、また他の者の協力を得ることができない世帯。[1]要介護2以上に認定されていること。[2]身体障害者障害程度1級及び2級に認定されていること。[3]その他、区長が認める者) | 
        
          | 粗大ごみ収集 | あり | 
        
          | 生ごみ処理機助成金制度 | なし 
              上限金額-上限比率- | 
      
    
   
  
      大田区の住まいの給付金
                  中古購入
    
    増築・改築・改修
    
      
        
          | 利子補給制度 | なし | 
        
          | 補助/助成金制度 | あり 
              上限金額(1)150万円(2)50万円(3)37.9万円 | 
      
    
          
    
      ※行政機関により公表していない地域及びデータがございます。東京23区以外の政令指定都市は、市全体のデータとして表示しています。
      
※提供データには細心の注意を払っておりますが、調査後に変更がある場合があります。 最新の情報につきましては各市区役所までお問い合わせいただくか、自治体HPなどをご確認ください。
    
      大田区の暮らしデータをもっと見る
     
 
  
    
  
  
    物件を見たい、物件や住環境の詳しい情報やローン相談など、
    
    
    
      - お問い合わせ先
- 野村の仲介+旗の台センター野村不動産ソリューションズ(株)