アプリで簡単 物件探し 通知 共有 アプリならではの機能を使ってみる
中古住宅

千葉県松戸市小金原7 常盤平駅 中古一戸建て・中古住宅

情報提供元
SUUMO
千葉県松戸市小金原7 常盤平駅 中古一戸建て・中古住宅
価格 2740万円
交通
所在地 千葉県松戸市小金原7周辺地図
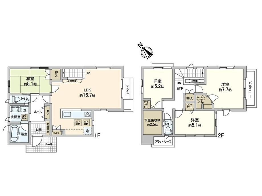
間取り 4LDK
建物面積 95.21m2(28.80坪)(登記) 土地面積 120.18m2(36.35坪)(登記)
築年月 2013年2月 築年数 築12年10ヶ月
おすすめポイント
-物件のおすすめポイント-▼立地・第一種低層住居専用地域・NTT都市開発(株)旧分譲地内▼特徴・全居室2面以上からの採光を確保・自然と会話が増える対面式キッチン・リビングイン階段・テラスに面したLDKは約16.7帖・LDに2WAY動線の和室が隣接、多用途に活用可能・下屋裏収納・パントリー等の収納有・主寝室は約7.7帖の広さ、WIC・南東向きバルコニー有▼設備・食洗機・浴室乾燥機▼周辺環境・スーパー「マルエツ小金原店」徒歩8分(約590m)■ ご希望の住まい探しをお手伝いします ━━━━━・・・物件の詳細・ご相談はお気軽にお問い合わせください。
角地
お問い合わせ先
三井のリハウス松戸センター三井不動産リアルティ(株)
物件を見たい、物件や住環境の詳しい情報やローン相談など、
お問い合わせ先
三井のリハウス松戸センター三井不動産リアルティ(株)

詳細情報

価格 2740万円
所在地 千葉県松戸市小金原7周辺地図
交通
間取り 4LDK 築年月(築年数) 2013年2月(築12年10ヶ月)
建物面積 95.21m2(28.80坪)(登記) 建物構造・規模 木造2階建
土地面積 120.18m2(36.35坪)(登記) 土地権利 所有権
私道面積 借地期間・地代
接道状況 北東5.5m接面8.4m 南東5.5m接面8.4m 二方道路 駐車場
用途地域 1種低層 都市計画
建ぺい率/容積率 50%/100% 現況
地目 引渡可能時期 相談
情報提供元 SUUMO [030Z76179678] 情報公開日
情報更新日 次回更新予定日 随時

設備など

1種低層地域 即入居可 - 売主・代理 -
駐車2台以上 - 平屋 - 本下水
都市ガス カウンターキッチン - 床暖房 -
ウォークインクローゼット バリアフリー -
設備 バルコニー・トイレ・収納スペース・都市ガス・浴室乾燥機・ウォークインクローゼット・温水洗浄便座・システムキッチン・風呂・テラス・対面K・トイレ2ヶ所・床下収納・浄水器・衣類乾燥機・食器洗浄乾燥機・上水道・本下水
リフォーム履歴 -
リノベーション履歴 -
備考 <物件名>小金原7(常盤平駅) 2740万円/<土地権利>所有権/<間取り>4LDK/<特徴>■三井のリハウス■南東・北東の角地三井ホーム施工、2×4工法採用、スーパー 徒歩10分以内・システムキッチン・浴室乾燥機・全居室収納・LDK15畳以上
販売戸数:1戸
法令等制限:がけ条例
特記事項 角地

省エネ性能

エネルギー消費性能 -
断熱性能 -
目安光熱費 -

千葉県松戸市小金原7 周辺地図情報

地図
※地図上に表示される物件の位置は付近住所に所在することを表すものであり、実際の物件所在地とは異なる場合がございます。
   正確な物件所在地は、取扱い不動産会社にお問い合わせください。
物件を見たい、物件や住環境の詳しい情報やローン相談など、
お問い合わせ先
三井のリハウス松戸センター三井不動産リアルティ(株)

不動産会社情報

お問い合わせ先 商号:三井のリハウス松戸センター三井不動産リアルティ(株)
免許番号:国土交通大臣(15)第000777号
所在地:千葉県松戸市松戸1178 イセウビル5階
TEL:00786-01793993
取引態様:専任媒介
管理コード:F747SA1D
共有する
QRコード
物件を見たい、物件や住環境の詳しい情報やローン相談など、
お問い合わせ先
三井のリハウス松戸センター三井不動産リアルティ(株)

松戸市の暮らしデータ

人口などの統計情報

世帯数 230931世帯
人口総数 498222人
転入者数 26880人
転入率(人口1000人当たり)
53.95人
転出者数 23303人
転出率(人口1000人当たり)
46.77人
土地平均価格
住宅地
151213円/m2
商業地
463125円/m2

結婚・育児の助成金

子育て関連の独自の取り組み (1)全ての地域子育て支援拠点へ子育てコーディネーターを配置。(2)幼稚園の預かり保育での保育料助成及び人件費補助。(3)公立保育所での英語あそび・幼稚園等への補助金交付。(4)子育て世代包括支援センターにおける保健師・助産師・社会福祉士の3職種専任対応。(5)こども家庭センターの設置。(6)託児機能付きコワーキングスペースの設置。(7)「養育費をもらえていないひとり親家庭への給付金」の支給。(8)養育費確保支援・面会交流支援。(9)ひとり親家庭学習支援事業を利用している生徒の塾費用を助成。(10)幼児同乗用自転車等の購入費助成。(11)妊婦及び未就園児の0~2歳児がいる家庭への家事・育児ヘルパーの訪問。
出産祝い なし
公立保育所数 17所(うち0歳児保育を実施している保育所:14所)
私立保育所数 50所(うち0歳児保育を実施している保育所:48所)
保育所入所待機児童数 0人
認定こども園数 12園 預かり保育実施園数 公立:- 私立:34園
学校給食 【小学校】完全給食【中学校】完全給食
公立中学校の学校選択制 実施
子ども・学生等医療費助成<通院>対象年齢 18歳3月末まで 子ども・学生等医療費助成<入院>対象年齢 18歳3月末まで

松戸市の治安・ごみ収集情報

公共料金・インフラ

ガス料金(22m3使用した場合の月額) 京葉瓦斯株式会社4515円
水道料金(口径20mmで20m3の月額) 千葉県営水道3250円
松戸市2761円
下水道料金(20m3を使用した場合の月額) 松戸市2468円
下水道普及率 89.0%

安心・安全

建物火災出火件数 72件
人口10000人当たり
1.45件
刑法犯認知件数 2631件
人口1000人当たり
5.28件
ハザード・防災マップ あり

医療

一般病院総数 18ヶ所
一般診療所総数 277ヶ所
小児科医師数 64人
小児人口10000人当たり
11.69人
産婦人科医師数 28人
15~49歳女性人口1万人当たり
2.79人
介護保険料基準額(月額) 6300円

ごみ

家庭ごみ収集(可燃ごみ) 無料
備考
-
家庭ごみの分別方式 6分別22種〔可燃ごみ 不燃ごみ(スプレー缶等、金属製品類、陶磁器・ガラス製品類、小型家電製品類、普通自転車、30センチ以上50センチ未満プラスチック製品) リサイクルするプラスチック その他のプラスチックなどのごみ 資源ごみ(段ボール、新聞紙、折り込みチラシ、雑誌、本、紙パック、雑がみ、布類、ビン類、缶類) 有害ごみ(乾電池・コイン電池、蛍光灯等、体温計、使い捨てライター、珪藻土マット、30cm未満の小型充電式電池内蔵製品)〕 拠点回収:ペットボトル
家庭ごみの戸別収集 一部実施(【松戸市家庭ごみ訪問収集事業】世帯員自ら排出することが困難である世帯に対して戸別収集を実施)
粗大ごみ収集 あり
備考
有料。1,000円/点の「粗大ごみ処理券」を取扱所で購入。事前申込制。
生ごみ処理機助成金制度 あり
上限金額
20000円
上限比率
33.3%

松戸市の住まいの給付金

中古購入

利子補給制度 なし
補助/助成金制度 あり
上限金額
100万円
備考
【松戸市子育て世帯親元近居・同居住宅取得補助金】子育て世帯が市内に住む親世帯と近居又は同居するために、住宅を取得する際の費用の一部を補助する。補助額は最大100万円(近居50万円、同居75万円、市外からの転入は25万円を加算)。

増築・改築・改修

利子補給制度 なし
補助/助成金制度 あり
上限金額
(1)100万円(2)30万円
備考
(1)【松戸市木造住宅耐震改修費補助金】木造住宅で市の規定する耐震改修工事を行った場合は、その設計費、監理費及び工事費の合計に4/5で100万円までを助成。(2)【松戸市木造住宅の耐震改修に伴うリフォーム事業費補助金】前述の耐震改修工事と同時にリフォーム工事を行った場合には、リフォーム工事費の1/10で30万円までを助成。
暮らしデータ提供元:生活ガイド.com
※行政機関により公表していない地域及びデータがございます。東京23区以外の政令指定都市は、市全体のデータとして表示しています。
※提供データには細心の注意を払っておりますが、調査後に変更がある場合があります。 最新の情報につきましては各市区役所までお問い合わせいただくか、自治体HPなどをご確認ください。

この物件を見た人はこんな物件も見ています

OCN×ドコモ光新規お申込みで合計最大137,280円相当おトク!特典の内訳・適用条件など詳細はこちら

松戸市内の各駅の住みやすさ

住宅ローンの返済額一覧

物件価格 2740万円に対して、年率 で、頭金 の場合
↓ボーナス 35年間 30年間 25年間 20年間 15年間 10年間
0万円 58,147円/月 67,018円/月 79,446円/月 98,097円/月 129,195円/月 191,411円/月
5万円 49,061円/月 58,042円/月 70,579円/月 89,338円/月 120,543円/月 182,865円/月
10万円 39,976円/月 49,067円/月 61,712円/月 80,579円/月 111,892円/月 174,320円/月
15万円 30,890円/月 40,091円/月 52,845円/月 71,821円/月 103,240円/月 165,775円/月
20万円 ローン不可 ローン不可 43,979円/月 63,062円/月 94,589円/月 157,230円/月
25万円 ローン不可 ローン不可 ローン不可 54,303円/月 85,937円/月 148,685円/月
30万円 ローン不可 ローン不可 ローン不可 ローン不可 77,286円/月 140,140円/月
支払い利息合計 2,032,380円~ 1,735,840円~ 1,444,150円~ 1,153,520円~ 864,430円~ 575,540円~
※元利均等返済方式で試算しています。 「円」の単位以下の端数金額は「切り捨て」として計算しております。
※金利は、固定金利として計算しております。
※上記の住宅ローン返済額一覧は、あくまで試算であり、将来の金利動向により、実際のご返済額とは異なります。
※ボーナス支払総額が総支払額の50%を超えている場合、上記の表では「ローン不可」となります。
※住宅ローン返済額一覧の数値は、住宅ローンのお申し込みやご融資をお約束するものではございません。
物件を見たい、物件や住環境の詳しい情報やローン相談など、
お問い合わせ先
三井のリハウス松戸センター三井不動産リアルティ(株)

掲載情報の著作権は提供元企業等に帰属します。
Copyright:(C) 2025 Recruit Co., Ltd.
アプリで簡単 物件探し 大手不動産サイトの情報から一括検!プッシュ通知で物件を見逃さない
App Storeからダウンロード Google Playで手に入れよう QRコード