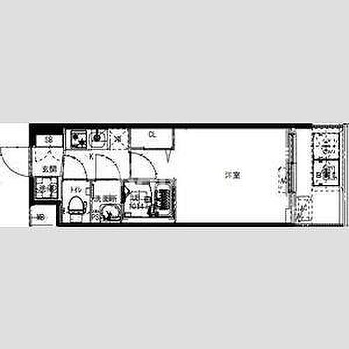
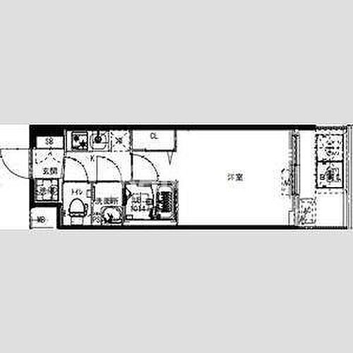
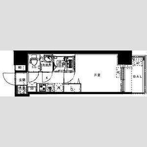
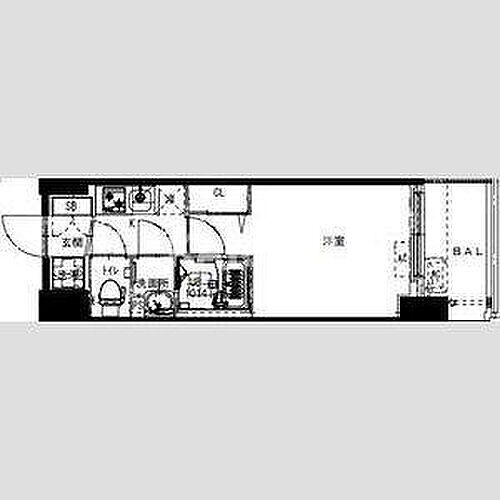
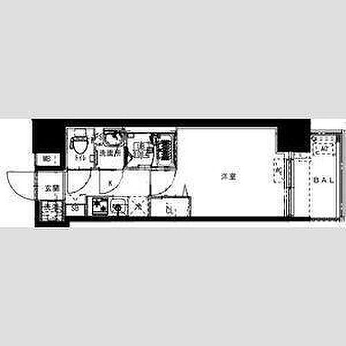
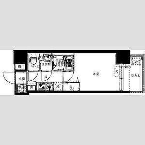
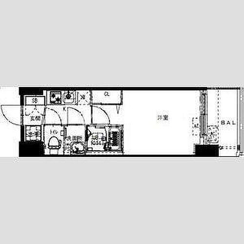
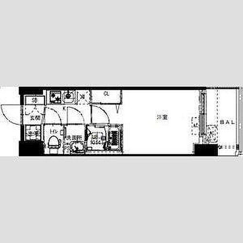
JR東西線(兵庫県)のWebで見学予約可能の賃貸物件(賃貸マンション・アパート) 物件一覧(2ページ目)
実際にお部屋を内覧してから契約を決めたい。そんな方におすすめの、Webで見学予約可能物件を紹介します。気になる物件を見つけたら、ご都合のよい日程ですぐに見学予約を申し込めるので、お部屋探しもスムーズに進みますよ。複数のお部屋を実際に見比べて、快適に暮らせる物件を探してみてくださいね。
