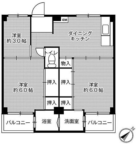
和泉市幸のシニア・高齢者向けの賃貸物件(賃貸マンション・アパート) 物件一覧
65歳以上のシニアや高齢者でも入居しやすい賃貸物件を紹介します。シニアや高齢者の方は、入居審査に通りにくい・設備不足の部屋だと暮らしにくいなどの点に注意が必要です。シニア・高齢者向けの物件はバリアフリー仕様が多いので、足腰が悪くても不便なく生活できるでしょう。充実したセカンドライフを始めるためにも、お気に入りの物件を見つけてくださいね。
