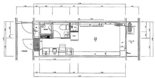
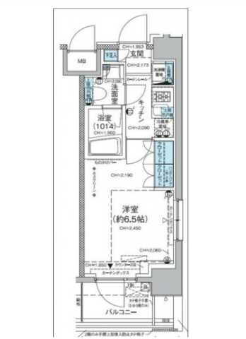
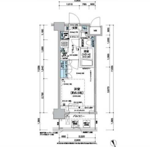
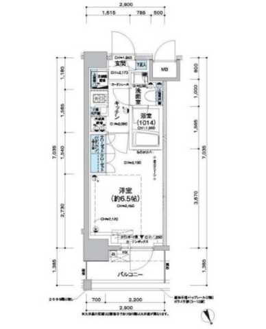
京浜急行電鉄空港線(東京都)の保証人不要・保証人代行の賃貸物件(賃貸マンション・アパート) 物件一覧(40ページ目)
賃貸物件を借りたいけれど、保証人を用意できないとお悩みではありませんか?ここでは、保証人不要・保証人代行可の物件を紹介します。保証人代行とは、企業が保証人を代行してくれるサービスです。保証人を用意できなくてもお部屋を借りられるので、希望にあう物件を探せますよ。好みのお部屋を見つけて、充実した生活を送りましょう。
