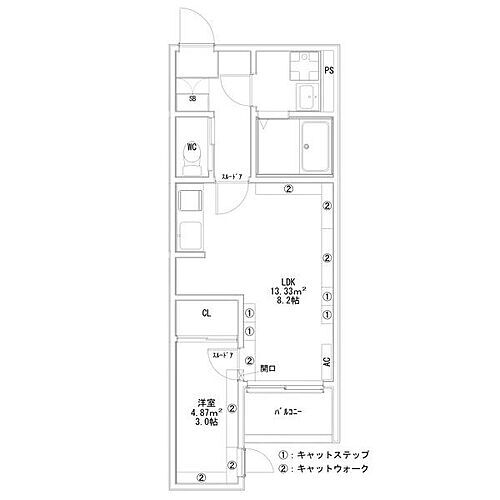
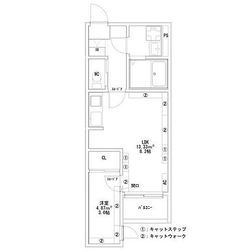
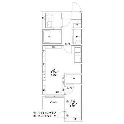
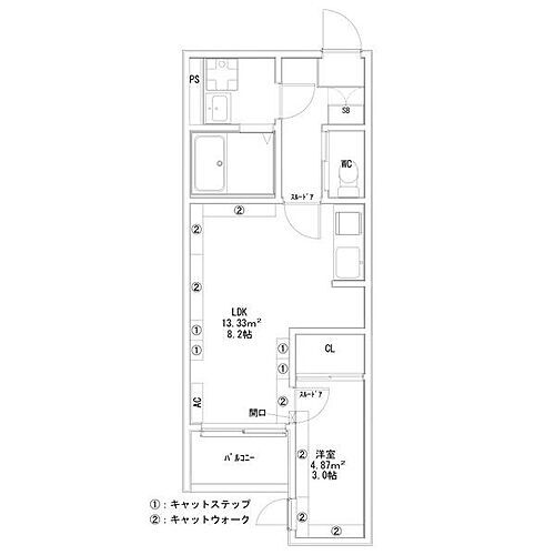
中村公園駅(愛知県)の新築・築浅の賃貸物件(賃貸マンション・アパート) 物件一覧
新築、または築年数の浅い物件で新生活を始めたいと考えていませんか?築年数の浅い物件は家賃が高いデメリットを持つものの、新しい設備付きのきれいなお部屋で暮らせることが大きな魅力。なかには家賃を抑えた物件もあるので、無理なく借りられるお部屋を選べますよ。ここで紹介する新築・築浅物件から、気になるお部屋を見つけてみてください。
