アプリで簡単 物件探し 通知 共有 アプリならではの機能を使ってみる
賃貸アパート

growing 直江津駅 ワンルーム 賃貸(賃貸マンション・アパート)

情報提供元
スモッカ
growing
賃料 5.9万円  (管理費等:6000円)
礼金・敷金 6万円 / なし 保証金/敷引・償却 なし / -
交通
所在地 新潟県上越市大字春日新田周辺地図
間取り ワンルーム 専有面積 34.34m2
築年月 2017年1月 築年数 築8年11ヶ月
おすすめポイント
幅広い方に好評の全居室フローリングの物件になっております。駐車場があり、敷地内に車を置いておくことができます。システムキッチンはコンロや作業台が一体化しているので段差がなく、掃除がとても楽になります。お財布にも優しい、BSアンテナ設置済み物件となっています。広々とした1Rを当社でご紹介しております。収納はシューズボックス・クロゼット・全居室収納などが備え付けられているので、衣類や日用品の収納に重宝します。モニターで来訪者を確認して、インターホンを通じて室内から会話することができます。メイクをする時にも快適な、洗面化粧台付きの物件です。普段からパソコンを使う方にオススメ物件、ネット回線導入済み。中古住宅選びの中でニーズの高い築8年の物件となっています。
1階の物件・保証人不要/代行 ・駐車場2台以上
お問い合わせ先
株式会社J Class JCルーム
お問い合わせ先
株式会社J Class JCルーム

詳細情報

賃料 5.9万円 管理費等 6000円
敷金 なし 礼金 6万円
保証金 なし 敷引・償却 -
更新料 - 契約期間 2年
カード決済 -
所在地 新潟県上越市大字春日新田周辺地図
交通
  • 信越本線 直江津駅 バス7分/「春日新田西」バス停 停歩4分乗換案内
建物名 growing 
間取り ワンルーム(洋室 14.1帖) 築年月(築年数) 2017年1月(築8年11ヶ月)
専有面積 34.34㎡ 所在階/階数 1階/2階建
建物構造 軽量鉄骨  方位 東 
現況 居住中  駐車場 -   近くの駐車場を探す
入居可能時期 相談 住宅保険 なし
情報提供元 スモッカ[jclass_399220000269858] 情報公開日
情報更新日 - 次回更新予定日 随時

設備など

2階以上 - 最上階 - 角部屋 -
駐車場(近隣含) - エアコン付き バス・トイレ別
室内洗濯機置き場 追焚機能 オートロック付き -
モニタ付インターホン フローリング バルコニー -
ガスコンロ可 - 浴室乾燥機 - 24時間セキュリティ -
宅配ボックス - ペット相談可 - 二人入居可 -
設備 システムキッチン・IHクッキングヒータ・バス・トイレ別・追焚機能・温水洗浄便座・エアコン・床下収納・トランクルーム・BS端子・インターネット対応・モニタ付インターホン・フローリング・室内洗濯機置き場・駐車場・駐輪場・都市ガス・敷地内ゴミ置場 
リフォーム履歴 -
リノベーション履歴 -
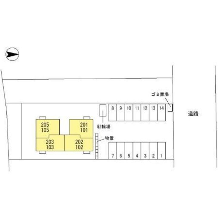
備考 こちらの物件はアパートです。どこの物件に引っ越そうか悩んでいる方へ、こちらは令和7年12月に入居予定の物件です。このアパートは契約とチューナーの購入でBS視聴が可能です。こちらは角部屋物件です。インターネット無料物件でインターネットを利用すれば、回線契約が必要ないのでネット回線の解約による違約金がかかりません。収納はクロゼット・シューズボックス・全居室収納など豊富なので、広々と空間を利用することも可能です。洗面化粧台は収納が優れているだけでなくお手入れが簡単なデザインになっているため、お掃除の手間も減らせます。モニター越しに来訪者を確認し、インターホンを通じて室内から会話することができます。インターネット有り物件なので、ネットをよく使う方におすすめ。築8年の設備が充実した物件となっています。 クリーニング費用:49,500円 D-roomCardキー料金:16,500円 更新料:1ヶ月 保証会社:利用必須 初回保証料35000円、月額保証料賃料等総額の1%+800円/月 駐車場備考:空有 空き台数 2台 1台目無料 2台目3300円 区画:9/10(並列)/仲介手数料 64900円 
特記事項 1階の物件・保証人不要/代行 ・駐車場2台以上

新潟県上越市大字春日新田 周辺地図情報

地図
※地図上に表示される物件の位置は付近住所に所在することを表すものであり、実際の物件所在地とは異なる場合がございます。
   正確な物件所在地は、取扱い不動産会社にお問い合わせください。
お問い合わせ先
株式会社J Class JCルーム

不動産会社情報

お問い合わせ先 商号:株式会社J Class JCルーム
免許番号:新潟県知事免許(1)第5660号
所在地:新潟県上越市春日新田2丁目7番25号
TEL:025-520-8274
取引態様:仲介
管理コード:399220000269858
所属協会など:公益社団法人 新潟県宅地建物取引業協会(上越支部)
共有する
QRコード
お問い合わせ先
株式会社J Class JCルーム

上越市の暮らしデータ

人口などの統計情報

世帯数 72655世帯
人口総数 182911人
転入者数 4284人
転入率(人口1000人当たり)
23.42人
転出者数 4550人
転出率(人口1000人当たり)
24.88人
土地平均価格
住宅地
16097円/m2
商業地
35711円/m2

結婚・育児の助成金

子育て関連の独自の取り組み (1)ファミリーヘルプ保育園(生後8週間から就学前の乳幼児の保護者で、就労や疾病、リフレッシュ等により緊急または一時的に保育が難しいと認められるときに子どもを預かる)。(2)子育てジョイカード(18歳未満の子どもが3人以上いる世帯に交付し、協賛店で買い物等をした場合、割引等のサービスを受けられる)。(3)保育園士雇用事業(社会経験の豊富な中高齢者を保育園士として各保育園に配置し、世代間交流を促進する)。
出産祝い なし
公立保育所数 34所(うち0歳児保育を実施している保育所:33所)
私立保育所数 3所(うち0歳児保育を実施している保育所:3所)
保育所入所待機児童数 0人
認定こども園数 28園 預かり保育実施園数 公立:0園 私立:-
学校給食 【小学校】完全給食【中学校】完全給食
公立中学校の学校選択制 未実施
子ども・学生等医療費助成<通院>対象年齢 18歳3月末まで 子ども・学生等医療費助成<入院>対象年齢 18歳3月末まで

上越市の治安・ごみ収集情報

公共料金・インフラ

ガス料金(22m3使用した場合の月額) 上越市3069円
水道料金(口径20mmで20m3の月額) 上越市4284円
下水道料金(20m3を使用した場合の月額) 上越市4205円
下水道普及率 66.8%

安心・安全

建物火災出火件数 24件
人口10000人当たり
1.28件
刑法犯認知件数 731件
人口1000人当たり
3.89件
ハザード・防災マップ あり

医療

一般病院総数 7ヶ所
一般診療所総数 140ヶ所
小児科医師数 29人
小児人口10000人当たり
14.46人
産婦人科医師数 14人
15~49歳女性人口1万人当たり
4.53人
介護保険料基準額(月額) 6450円

ごみ

家庭ごみ収集(可燃ごみ) 有料
備考
可燃ごみ・不燃ごみ・生ごみの3品目が有料対象。
家庭ごみの分別方式 3分別13種〔可燃ごみ 不燃ごみ 資源ごみ(缶、びん、ペットボトル、新聞紙、雑誌類、段ボール、プラスチック製容器包装、紙製容器包装、生ごみ、乾電池・ライター類、蛍光灯)〕 拠点回収:廃食用油
家庭ごみの戸別収集 未実施
粗大ごみ収集 なし
備考
-
生ごみ処理機助成金制度 なし
上限金額
-
上限比率
-
暮らしデータ提供元:生活ガイド.com
※行政機関により公表していない地域及びデータがございます。東京23区以外の政令指定都市は、市全体のデータとして表示しています。
※提供データには細心の注意を払っておりますが、調査後に変更がある場合があります。 最新の情報につきましては各市区役所までお問い合わせいただくか、自治体HPなどをご確認ください。
OCN×ドコモ光新規お申込みで合計最大137,280円相当おトク!特典の内訳・適用条件など詳細はこちら

上越市内の各駅の住みやすさ

他のエリアから探す

上越市の詳細地域から賃貸物件を探す

石橋板倉区稲増稲田浦川原区有島大字青木大字飯大字今池大字岩木大字夷浜大字春日大字春日新田大字上源入大字上新町大字上中田大字木島大字木田大字黒井大字子安大字五智国分大字四ケ所大字下源入大字下真砂大字滝寺大字大日大字塚田新田大字土橋大字寺大字寺町大字戸野目大字富岡大字中田原大字中屋敷大字福田大字藤新田大字藤塚大字藤野新田大字藤巻大字松村新田大字三ツ橋新田大字安江大潟区潟町大潟区潟守新田大潟区上小船津浜大潟区雁子浜大潟区九戸浜大潟区犀潟大潟区渋柿浜大潟区下小船津浜大潟区土底浜大貫大町加賀町柿崎区柿崎柿崎区上直海柿崎区坂田新田柿崎区上下浜柿崎区高寺柿崎区竹鼻柿崎区直海浜春日新田春日野春日山町上源入上昭和町鴨島北城町北本町木田頸城区上吉頸城区下中島頸城区下吉頸城区西福島頸城区松橋高土町国府子安子安新田五智五智新町御殿山町幸町栄町栄町桜町佐内町塩屋新田下源入下門前昭和町新光町新町大学前大豆中央土橋寺町東雲町富岡とよば中郷区市屋中通町仲町中門前西城町西本町東城町東本町藤新田藤野新田藤巻平成町本町港町南城町南新町南高田町南本町本城町安江大和山屋敷町吉川区長峰

周辺の駅から探す

信越本線
今井川中島安茂里長野直江津黒井犀潟土底浜潟町

掲載情報の著作権は提供元企業等に帰属します。
Copyright:(C) 2025 ZIGExN Co., Ltd.
アプリで簡単 物件探し 大手不動産サイトの情報から一括検!プッシュ通知で物件を見逃さない
App Storeからダウンロード Google Playで手に入れよう QRコード